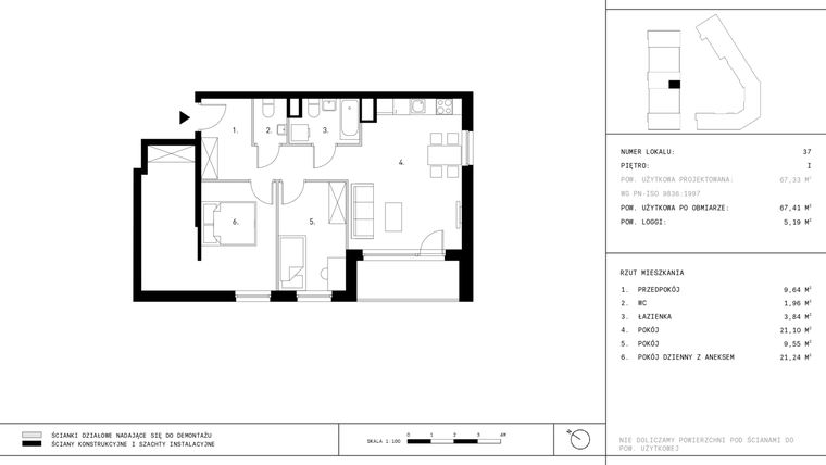
Mieszkanie na sprzedaż 3 pokoje o powierzchni 67,41 m² numer A8.P1
Estymowana rata kredytu: 6 000 zł
Inwestycja:
Nocznickiego 29 bud. ADeweloper:
Strus Development Sp. z o.o.
Inwestycja:
Nocznickiego 29 bud. ADeweloper:
Strus Development Sp. z o.o.Warszawa, Bielany, Wawrzyszew, ul. Tomasza Nocznickiego 29
Warszawa, Bielany, Wawrzyszew, ul. Tomasza Nocznickiego 29
Termin oddania
Gotowe
Ilość pokoi
3 pokoje
Metraż
67,41 m²
Piętro
1 piętro
Kuchnia
otwarta kuchnia
Wysokość pomieszczeń
270 cm wysokości
Ilość poziomów
1 poziom
Oznaczenie oferty
A8.P1

Raport o deweloperze
Poznaj dewelopera bliżej! Pobierz raport, w którym znajdziesz kluczowe informacje o firmie, jej doświadczeniu, nagrodach oraz aktualnych i zrealizowanych inwestycjach.
Budynek i otoczenie
Miejsca postojowe | |
|---|---|
Komórki lokatorskie | dostępne |
Standard wykończenia | standard deweloperski |
Realizacja inwestycji | rozpoczęcie budowy w 1 kw. 2018 roku, inwestycja została oddana do użytkowania w 4 kw. 2019 roku |
Udogodnienia | ochrona całodobowa, plac zabaw, internet, przystosowane dla niepełnosprawnych, TV kablowa, usługi w budynku, winda, videodomofon, patio / dziedziniec |
Przyroda | informacja u dewelopera |
Charakterystyka energetyczna nieruchomości |
|
Rezerwacja i finanse
Rodzaj własności | Odrębna własność z własnością gruntu |
|---|---|
Wysokość czynszu | informacja u dewelopera |
Warunki rezerwacji | Informacja u dewelopera |
Zabezpieczenie środków | Informacja u dewelopera |
Zdjęcia z budowy
Zobacz na jakim etapie budowy jest ta inwestycja
Lokalizacja inwestycji
Metro - Młociny - 636 m
Przystanek Tramwajowy - 173 m
Przystanek Autobusowy - 261 m
Dojazd do centrum: pokaż
W pobliżu 1 km od tej inwestycji znajdują się:
29 kawiarni i restauracji, 37 sklepów, 46 obiektów sportowych, 5 placówek medycznych, 29 placówek edukacyjnych, 30 placów zabaw
Przeczytaj więcej o lokalizacji
„Zielona dzielnica” Bielany usytuowana jest na lewobrzeżnych tarasach Wisły i pod względem liczby ludności plasuje się na piątym miejscu wśród innych rejonów stolicy. Jedynie połowę powierzchni zajmują zabudowania, zaś 28% stanowią obszary lasów, parków i rezerwatów, m.in.: Las Bielański, Las i Park Młociński czy Zespół Przyrodniczo-Krajobrazowy „Olszyna”. Bielany sąsiadują także z Kampinoskim Parkiem Narodowym. Pośród zielonego pejzażu przebiegają liczne szlaki rowerowe i turystyczne. Niewielka ilość wysokiej architektury występuje na osiedlach: Chomiczówka, Marymont-Ruda, Stare Bielany, Wawrzyszew. Niskie, willowe budownictwo dominuje na Młocinach i Radiowie, zaś na osiedlu Piaski powstają nowe budynki mieszkalne. Dzięki przystankom autobusowym i tramwajowym, a także czterem stacjom metra, zaciszne Bielany połączone są z centrum miasta. Główną arterią jest Trasa Armii Krajowej, a ośrodkiem przemysłowym – Huta Warszawa.
Opis oferty
Nowe 3-pokojowe mieszkanie na sprzedaż o powierzchni 67,41 m² znajduje się w nowo budowanej inwestycji deweloperskiej Nocznickiego 29 bud. A na Wawrzyszewie, ul. Tomasza Nocznickiego 29 (8.6 km od centrum Warszawy).
Inwestycja jest realizowana przez Strus Development Sp. z o.o.
Cała inwestycja składa się z 3 budynków, w których łącznie znajduje się 305 nowych mieszkań.
Na sprzedaż pozostaje 9 ofert o powierzchni od 57 do 122 m².
W budynkach jest od 4 do 5 kondygnacji naziemnych oraz 2 kondygnacje podziemne.
Inwestycja Nocznickiego 29 bud. A została wybudowana i oddana do użytkowania w 4 kw. 2019 roku.
Nowe mieszkanie o oznaczeniu A8.P1 znajduje się na 1 piętrze i jest 1-poziomowe. Pomieszczenia mają 270 centymetrów wysokości. W mieszkaniu znajdują się 3 pokoje.
Dla przyszłych mieszkańców Nocznickiego 29 bud. A deweloper przewidział miejsca postojowe podziemne.
Dzięki temu przyszli właściciele nie będą musieli poszukiwać wolnej przestrzeni parkingowej. Dodatkowo, miejsce postojowe w garażu podziemnym zabezpiecza przed niekorzystnymi warunkami atmosferycznymi.
Opis Inwestycji
Inwestycja Nocznickiego powstaje w zielonej dzielnicy Warszawy – Bielany. Przyszli mieszkańcy z pewnością docenią komfort i wygodę jaką daje ta atrakcyjna lokalizacja. Nieopodal inwestycji znajdują się przystanki linii tramwajowych i autobusowych, a od najbliższej stacji metra (Młociny) dzieli ją 600m. W okolicy znajdują się liczne placówki edukacyjne, zarówno dla maluchów jaki i młodzieży. Wciąż powiększa się również infrastruktura handlowo – usługowa. W 2018r planowane jest otwarcie Galerii Młociny, która będzie stanowiła jeden z największych tego typów obiektów w stolicy.
W naszej ofercie, znajdą Państwo zarówno przytulne kawalerki, jaki i przestronne mieszkania z antresolami. Nowoczesna i ponadczasowa architektura osiedla, dopełniona starannie przemyślanym projektem zagospodarowania terenu oraz części wspólnych, to gwarancja dobrej inwestycji.
Mieszkanie znajduje się w inwestycji Nocznickiego 29 bud. A, w której znajduje się w sprzedaży jeszcze 16 podobnych nowych mieszkań.
Kup to mieszkanie na kredyt
Symulacja miesięcznej raty kredytowej
Wkład własny
Większość banków wymaga wkładu własnego na poziomie 20% ceny nieruchomości
%
zł
Okres kredytowania
Rata miesięczna jest zależna od długości okresu kredytowania
Kalkulator wylicza orientacyjną ratę Twojego kredytu przy założeniu, że średnie oprocentowanie kredytu wraz z WIBOR i marżą banku wynosi 6.5% (oprocentowanie stałe w okresie 5 lat).
Twoja miesięczna rata kredytu
6 000 zł
Kalkulacja raty kredytowej została oparta o estymowaną cenę nieruchomości (1 186 416 zł) na podstawie ostatnich danych od dewelopera i naszych danych analitycznych
Strus Development Sp. z o.o.
Strona internetowa inwestycjiAdres biura sprzedaży:
UL. NOCZNICKIEGO 29 LOK. 410 01-918 WARSZAWA




