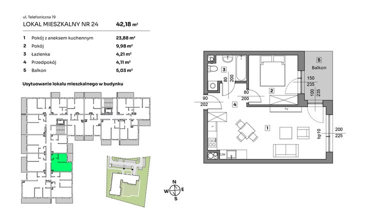
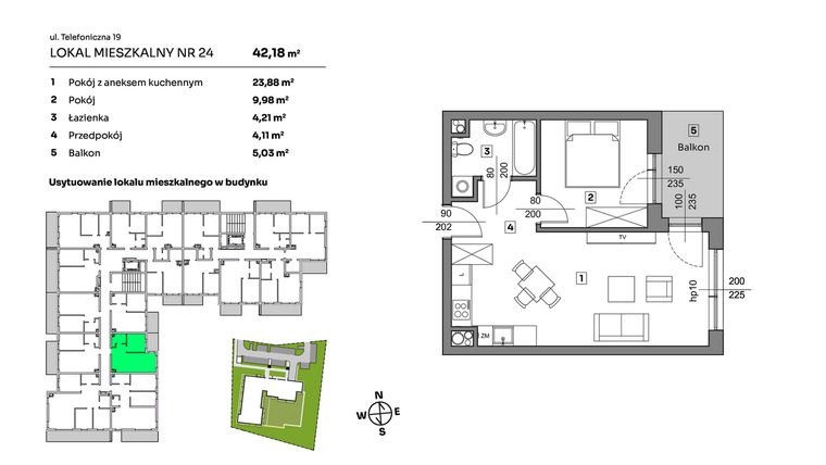
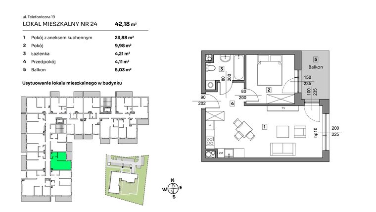
Mieszkanie na sprzedaż 2 pokoje o powierzchni 42,18 m² numer 24
Inwestycja:
Nova RadiostacjaDeweloper:
Optimum Property
Inwestycja:
Nova RadiostacjaDeweloper:
Optimum PropertyŁódź, Śródmieście, Śródmieście-Wschód, ul. Telefoniczna 19
Łódź, Śródmieście, Śródmieście-Wschód, ul. Telefoniczna 19
Termin oddania
2 kw. 2026
Ilość pokoi
2 pokoje
Metraż
42,18 m²
Piętro
2 piętro
Powierzchnie dodatkowe
Balkon
Wysokość pomieszczeń
od 260 do 280 cm wysokości
Ilość poziomów
1 poziom
Oznaczenie oferty
24

Raport o deweloperze
Poznaj dewelopera bliżej! Pobierz raport, w którym znajdziesz kluczowe informacje o firmie, jej doświadczeniu, nagrodach oraz aktualnych i zrealizowanych inwestycjach.
Budynek i otoczenie
Miejsca postojowe | |
|---|---|
Komórki lokatorskie | dostępne: wielkość: 2,02-6,24 m2 |
Standard wykończenia | standard deweloperski |
Realizacja inwestycji | rozpoczęcie budowy w 1 kw. 2024 roku, planowane oddanie do użytkowania w 2 kw. 2026 roku |
Udogodnienia | monitoring, teren ogrodzony, winda, rowerownia |
Przyroda | informacja u dewelopera |
Charakterystyka energetyczna nieruchomości | informacja u dewelopera |
Rezerwacja i finanse
Rodzaj własności | Odrębna własność z własnością gruntu |
|---|---|
Wysokość czynszu | informacja u dewelopera |
Warunki rezerwacji | 1% ceny netto |
Zabezpieczenie środków | Otwarty mieszkaniowy rachunek powierniczy |
Zdjęcia z budowy
Zobacz na jakim etapie budowy jest ta inwestycja
Lokalizacja inwestycji
Stacja kolejowa - Łódź Stoki - 1409 m
Przystanek Tramwajowy - 521 m
Przystanek Autobusowy - 69 m
Dojazd do centrum: pokaż
W pobliżu 1 km od tej inwestycji znajdują się:
12 kawiarni i restauracji, 18 sklepów, 47 obiektów sportowych, 7 placówek medycznych, 26 placówek edukacyjnych, 16 placów zabaw
Przeczytaj więcej o lokalizacji
Łódzkie Śródmieście to obszar w kształcie litery „L” ograniczony ulicami Północną, Piotrkowską i Kilińskiego. Najbardziej rozpoznawalną ulicą Śródmieścia, jak i całej Łodzi, jest ulica Piotrkowska. To tu koncentruje się życie kulturalne i rozrywkowe miasta. Ze Śródmieścia można nie tylko wygodnie dojechać do każdej dzielnicy miasta, ale też w ciągu ok. godziny znaleźć się w Warszawie dzięki położonej tu stacji PKP Łódź Fabryczna. Centrum miasta składa się głównie z przedwojennej zabudowy, czyli kamienic, uzupełnionych wielomieszkaniową zabudową powojenną. Znajduje się tu Uniwersytet Łódzki, główny ośrodek naukowy w mieście. To też doskonały dostęp do szpitali, bo w Śródmieściu ulokowane są dwa szpitale miejskie. Dzielnica otoczona jest terenami zielonymi ,takimi jak Park Piłsudskiego czy Park Poniatowskiego. Nowe budownictwo sąsiaduje tu więc z licznymi miejscami do aktywnego wypoczynku jak i zabytkami.
Opis oferty
Nowe 2-pokojowe mieszkanie na sprzedaż o powierzchni 42,18 m² znajduje się w nowo budowanej inwestycji deweloperskiej Nova Radiostacja w Sródmieściu-Wschód, ul. Telefoniczna 19 (3.6 km od centrum Łodzi).
Inwestycja jest realizowana przez Optimum Property.
Cała inwestycja składa się z 1 budynku, w którym łącznie znajduje się 77 nowych mieszkań.
Na sprzedaż pozostaje 26 ofert o powierzchni od 32 do 80 m².
W budynku jest 6 kondygnacji naziemnych oraz 1 kondygnacja podziemna.
Inwestycja Nova Radiostacja jest w trakcie budowy z planowanym na 2 kw. 2026 roku terminem oddania do użytkowania.
Nowe mieszkanie o oznaczeniu 24 znajduje się na 2 piętrze i jest 1-poziomowe. Pomieszczenia mają od 260 do 280 centymetrów wysokości. W mieszkaniu znajdują się 2 pokoje.
Dla przyszłych mieszkańców Nova Radiostacja deweloper przewidział miejsca postojowe podziemne, miejsca postojowe naziemne.
Dzięki temu przyszli właściciele nie będą musieli poszukiwać wolnej przestrzeni parkingowej. Dodatkowo, miejsce postojowe w garażu podziemnym zabezpiecza przed niekorzystnymi warunkami atmosferycznymi.
Opis Inwestycji
Okazyjna cena
Tereny zielone
Pow. dodatkowe
Cenisz wygodę, szukasz spokojnego i bezpiecznego miejsca do zamieszkania z dala od zgiełku miasta, a jednocześnie blisko centrum? Nova Radiostacja to Twój nowy adres!
W nowoczesnym pięciopiętrowym budynku otoczonym zielenią, położonym przy ulicy Telefonicznej 19 w Łodzi, powstanie blisko 100 mieszkań, apartamentów i lokali użytkowych o powierzchniach od 30 do 80 m2 z zielonymi tarasami i balkonami.
Osiedle będzie ogrodzone, a wjazd będzie odbywał się przez dwie bramy na pilot. To nie tylko komfort na co dzień, ale także gwarancja spokoju i bezpieczeństwa. Ponadto, w budynku zaprojektowaliśmy ogólnodostępną rowerownię na parterze i garaż podziemny z miejscami postojowymi, komórkami lokatorskimi i prywatnymi pomieszczeniami na rowery.
Jesteśmy pewni, że każdy znajdzie tu swoje wymarzone miejsce do życia!
Wybierz nowe mieszkanie już teraz!
Mieszkanie znajduje się w inwestycji Nova Radiostacja, w której znajduje się w sprzedaży jeszcze 20 podobnych nowych mieszkań.
Optimum Property
Strona internetowa inwestycjiAdres biura sprzedaży:
93-120 Łódź, ul. Przybyszewskiego 161Godziny otwarcia biura sprzedaży:
- Poniedziałek: 09:00 - 17:00
- Wtorek: 09:00 - 17:00
- Środa: 09:00 - 17:00
- Czwartek: 09:00 - 17:00
- Piątek: 09:00 - 17:00





