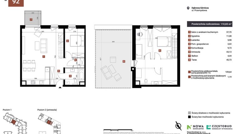
Mieszkanie na sprzedaż 4 pokoje o powierzchni 108,29 m² numer A92-I
Inwestycja:
Nowy RedenDeweloper:
Nowa Deweloper Sp. z o.o.
Inwestycja:
Nowy RedenDeweloper:
Nowa Deweloper Sp. z o.o.Dąbrowa Górnicza, ul. Przemysłowa 1
Dąbrowa Górnicza, ul. Przemysłowa 1
Termin oddania
Gotowe
Ilość pokoi
4 pokoje
Metraż
108,29 m²
Piętro
4 piętro
Powierzchnie dodatkowe
Balkon, Taras
Wysokość pomieszczeń
od 260 do 280 cm wysokości
Ilość poziomów
1 poziom
Oznaczenie oferty
A92-I

Raport o deweloperze
Poznaj dewelopera bliżej! Pobierz raport, w którym znajdziesz kluczowe informacje o firmie, jej doświadczeniu, nagrodach oraz aktualnych i zrealizowanych inwestycjach.
Budynek i otoczenie
Miejsca postojowe | |
|---|---|
Komórki lokatorskie | dostępne |
Standard wykończenia | standard deweloperski |
Realizacja inwestycji | rozpoczęcie budowy w 4 kw. 2023 roku, inwestycja została oddana do użytkowania w 1 kw. 2026 roku |
Udogodnienia | plac zabaw, monitoring, teren ogrodzony, klimatyzacja, usługi w budynku, winda, rowerownia, wózkarnia, instalacja fotowoltaiczna, miejsce do ładowania samochodów elektrycznych |
Przyroda | informacja u dewelopera |
Charakterystyka energetyczna nieruchomości |
|
Rezerwacja i finanse
Rodzaj własności | Odrębna własność z własnością gruntu |
|---|---|
Wysokość czynszu | informacja u dewelopera |
Warunki rezerwacji | opłata rezerwacyjna 10 tyś. zł |
Zabezpieczenie środków | Otwarty mieszkaniowy rachunek powierniczy |
Zdjęcia z budowy
Zobacz na jakim etapie budowy jest ta inwestycja
Lokalizacja inwestycji
Stacja kolejowa - Dąbrowa Górnicza - 2008 m
Przystanek Tramwajowy - 618 m
Przystanek Autobusowy - 339 m
Dojazd do centrum: pokaż
W pobliżu 1 km od tej inwestycji znajdują się:
20 kawiarni i restauracji, 39 sklepów, 20 obiektów sportowych, 19 placówek medycznych, 30 placówek edukacyjnych, 28 placów zabaw
Przeczytaj więcej o lokalizacji
Dąbrowa Górnicza to jedno z największych miast Polski. Powierzchnia aglomeracji zajmuje ponad 188 km2 i stanowi część Górnośląsko - Zagłębiowskiej Metropolii, która skupia czternaście miast regionu. Aktualnie w Dąbrowie mieszka ponad 125 tysięcy osób. Rozległy teren miasta rozciąga się od czarnej Przemszy aż do Pustyni Błędowskiej i podzielony jest na 18 dzielnic. Miejskie zabudowania mieszają się tu z budynkami fabryk, malowniczą roślinnością. Dąbrowa Górnicza jako nieliczna w województwie śląskim posiada rozmaite tereny rekreacyjne umożliwiające wypoczynek na świeżym powietrzu, wśród grona rodziny czy przyjaciół. Dodatkowo, miasto jest siedzibą największej w Polsce huty stali oraz szkła i koksowni. Wiele zlokalizowanych tu placówek edukacyjnych daje możliwość rozwoju i przyuczenia zawodu a rozbudowana sieć komunikacyjna umożliwia podróże po terenie całego Kraju.
Opis oferty
Nowe 4-pokojowe mieszkanie na sprzedaż o powierzchni 108,29 m² znajduje się w nowo budowanej inwestycji deweloperskiej Nowy Reden w Dąbrowie Górniczej, ul. Przemysłowa 1 (1 km od centrum Dąbrowy Górniczej).
Inwestycja jest realizowana przez Nowa Deweloper Sp. z o.o.
Cała inwestycja składa się z 2 budynków, w których łącznie znajduje się 135 nowych mieszkań.
Na sprzedaż pozostaje 5 ofert o powierzchni od 46 do 111 m².
W budynkach jest 6 kondygnacji naziemnych oraz 1 kondygnacja podziemna.
Inwestycja Nowy Reden została wybudowana i oddana do użytkowania w 1 kw. 2026 roku.
Nowe mieszkanie o oznaczeniu A92-I znajduje się na 4 piętrze i jest 1-poziomowe. Pomieszczenia mają od 260 do 280 centymetrów wysokości. W mieszkaniu znajdują się 4 pokoje.
Dla przyszłych mieszkańców Nowy Reden deweloper przewidział miejsca postojowe podziemne, miejsca postojowe naziemne.
Dzięki temu przyszli właściciele nie będą musieli poszukiwać wolnej przestrzeni parkingowej. Dodatkowo, miejsce postojowe w garażu podziemnym zabezpiecza przed niekorzystnymi warunkami atmosferycznymi.
Opis Inwestycji
Pow. dodatkowe
Jeśli szukasz mieszkania na sprzedaż od dewelopera w Dąbrowie Górniczej, inwestycja Nowy Reden jest idealnym wyborem. Projekt deweloperski składa się się z 2 budynków – budynku A z 95 mieszkaniami oraz budynku B z 40 mieszkaniami. Inwestycja pozwala na wybór mieszkania o odpowiednim metrażu, od kawalerek po przestronne apartamenty z antresolami na najwyższych piętrach. Mieszkania od dewelopera w Dąbrowie Górniczej, na inwestycji Nowy Reden, zostały zaprojektowane z dbałością o funkcjonalność i estetykę, a także zrealizowane z wysokiej jakości materiałów. Nowa Deweloper w Dąbrowe Górniczej, oferuje mieszkania, które nawiązują do industrialnego charakteru miasta, co nadaje inwestycji niepowtarzalny klimat.
Mieszkanie znajduje się w inwestycji Nowy Reden, w której znajduje się w sprzedaży jeszcze 1 podobne nowe mieszkanie.
Nowa Deweloper Sp. z o.o.
Adres biura sprzedaży:
ul. Okulickiego 80, 42-200 CzęstochowaGodziny otwarcia biura sprzedaży:
- Poniedziałek: 08:00 - 17:00
- Wtorek: 08:00 - 17:00
- Środa: 08:00 - 17:00
- Czwartek: 08:00 - 17:00
- Piątek: 08:00 - 17:00
- Sobota: 09:00 - 14:00





