Dom na sprzedaż 4 pokoje o powierzchni 85,77 m² numer 12
Inwestycja:
Ahoj PogórzeDeweloper:
Novisa Development Sp. z o.o.
Inwestycja:
Ahoj PogórzeDeweloper:
Novisa Development Sp. z o.o.pucki, Pogórze, ul. Feliksa Dorsza
pucki, Pogórze, ul. Feliksa Dorsza
Termin oddania
4 kw. 2027
Ilość pokoi
4 pokoje
Metraż
85,77 m²
Piętro
Parter
Strona świata
wschód, zachód, północ, południe
Powierzchnie dodatkowe
Ogródek
Wysokość pomieszczeń
od 260 do 280 cm wysokości
Ilość kondygnacji
1 poziom
Oznaczenie oferty
12

Raport o deweloperze
Poznaj dewelopera bliżej! Pobierz raport, w którym znajdziesz kluczowe informacje o firmie, jej doświadczeniu, nagrodach oraz aktualnych i zrealizowanych inwestycjach.
Budynek i otoczenie
Miejsca postojowe | |
|---|---|
Standard wykończenia | standard deweloperski Ogrzewanie gazowe |
Realizacja inwestycji | rozpoczęcie budowy w 2 kw. 2026 roku, planowane oddanie do użytkowania w 4 kw. 2027 roku |
Udogodnienia | informacja u dewelopera |
Przyroda | w okolicy inwestycji znajduje się park, las, morze, rezerwat przyrody |
Charakterystyka energetyczna nieruchomości | informacja u dewelopera |
Rezerwacja i finanse
Rodzaj własności | Odrębna własność z własnością gruntu |
|---|---|
Wysokość czynszu | planowany czynsz będzie w wysokości od 6 do 6 zł/m² (czyli od 515 do 515 zł za całość) |
Warunki rezerwacji | bezpłatna rezerwacja ustna na okres na 3 dni robocznych |
Zabezpieczenie środków | Otwarty mieszkaniowy rachunek powierniczy |
Zdjęcia z budowy
Zobacz na jakim etapie budowy jest ta inwestycja
Lokalizacja inwestycji
Przystanek Autobusowy - 256 m
Dojazd do centrum Gdyni: pokaż
W pobliżu 1 km od tej inwestycji znajdują się:
24 kawiarnie i restauracje, 33 sklepy, 13 obiektów sportowych, 4 placówki medyczne, 9 placówek edukacyjnych, 33 place zabaw
Przeczytaj więcej o lokalizacji
Powiat pucki to region o powierzchni 572 km2, leżący w północnej części woj. pomorskiego i liczący sobie ok. 82 400 mieszkańców. Składa się na niego 7 gmin, w których leżą cztery miasta. Stolicą regionu jest Puck. Powiat leży wyjątkowo malowniczym miejscu, od północy granicząc z Bałtykiem, od wschodu z Zatoką Pucką, od południa z Puszczą Darzlubską, Jeziorem Żarnowieckim i wzgórzami morenowymi. W jego granicach leży Półwysep Helski. Znaczna część zabudowy ma tu charakter małomiasteczkowy. Wiele budynków pełni jedynie funkcję turystyczną. W regionie działa szereg ośrodków i domów kultury oraz instytucji sportowych, co zapewnia mieszkańcom liczne rozrywki i daje dostęp do rozbudowanej infrastruktury sportowej. Dzięki plażom, trasom rowerowym i ścieżkom dydaktycznym, są to tereny o wysokich walorach rekreacyjnych. Znajduje się tu ok. 70 szkół różnego szczebla, a o zdrowie mieszkańców dbają lekarze z puckiego szpitala i 34 przychodni lekarskich. Biegną tędy 4 drogi wojewódzkie, kursuje linia kolejowa, a w Pucku mieści się port jachtowy.
Opis oferty
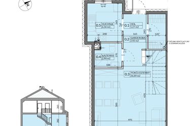
Oto przestronny, 85-metrowy dom z tradycyjnym podziałem na strefy. Na parterze, gdzie toczy się życie codziennie – mamy jasną kuchnię, łazienkę, garderobę tuż przy wejściu oraz duży salon z wyjściem do ogrodu – miejsca na przyjęcie z przyjaciółmi, piknik z rodziną czy relaks w samotności. Na piętrze czeka strefa prywatna: 3 pokoje, które możesz zaaranżować jako sypialnię, pokój dziecięcy i gabinet lub dwa pokoje dziecięce — wszystko według potrzeb domowników. Druga łazienka na piętrze dodaje komfortu i ułatwia poranną rutynę.
Nowy 4-pokojowy dom na sprzedaż o powierzchni 85,77 m² znajduje się w nowo budowanej inwestycji deweloperskiej Ahoj Pogórze w Pogórzu, ul. Feliksa Dorsza (0.6 km od Gdyni).
Inwestycja jest realizowana przez Novisa Development Sp. z o.o.
Cała inwestycja składa się z 8 nowych domów.
Inwestycja Ahoj Pogórze jest w trakcie przygotowań z planowanym na 4 kw. 2027 roku terminem oddania do użytkowania.
Nowy dom o oznaczeniu 12 , składa się z 1 kondygnacji bez poddasza, nie posiada podpiwniczenia. Wysokość pomieszczeń wynosi 282 cm.
W domu numer 12 znajdują się się 4 pokoje.
Okna domu wychodzą na wschód, zachód, północ, południe.
Do domu przynależy ogródek o powierzchni 88 m².
Dla przyszłych mieszkańców Ahoj Pogórze deweloper przewidział miejsca postojowe naziemne (80 miejsc)
Opis Inwestycji
Pow. dodatkowe
Nowe domy na sprzedaż – blisko morza, bliżej siebie
Przedstawiamy kameralne osiedle domów jednorodzinnych w Pogórzu, tuż pod Gdynią, położone zaledwie 4 km od morza. Miejsce, które natychmiast budzi skojarzenie z nadmorskim spokojem – miękkie światło o poranku, zapach sosen w powietrzu i jod, który tak pozytywnie wpływa na Twoje ciało.
Inwestycja obejmuje 40 dwukondygnacyjnych lokali w zabudowie bliźniaczej dwulokalowej o powierzchniach od 77 do 85 m². Każdy dom posiada prywatny ogródek od 42 do 192 m² i szeroki wybór ekspozycji słonecznej. Ahoj Pogórze to miejsce stworzone dla tych, którzy szukają równowagi między naturą a miastem: dla rodzin planujących spokojną przyszłość, profesjonalistów pracujących w Trójmieście oraz osób marzących o życiu blisko morza.
Do każdego lokalu przynależą dwa miejsca postojowe – na zewnątrz lub w garażu. Układy mieszkań dopasowaliśmy do potrzeb rodziny – osobna jasna kuchnia, przestronny salon i 3 pokoje na piętrze. Wszystko przemyślane tak, aby codzienność była wygodna, a przestrzeń sprzyjała zarówno wspólnym chwilom, jak i indywidualnemu odpoczynkowi.
Ahoj Pogórze to wyjątkowo zielone osiedle. W części wspólne wkomponowaliśmy roślinność charakterystyczną dla Nadmorskiego Parku Krajobrazowego – wysokie sosny, trawy wydmowe i lokalne byliny. Zieleń na osiedlu jest integralną częścią projektu, która nieustannie przypomina – weź głęboki oddech, jesteś nad morzem.
Domy nad morzem – poznaj bliżej gminę Kosakowo
Pogórze to rozwijająca się, rodzinna miejscowość w gminie Kosakowo, gdzie znajdziesz wszystko, czego potrzeba na co dzień.
W pobliżu osiedla mamy:
– piekarnię – 260 m,
– sklep spożywczy – 350 m
– market Netto – 1,2 km
– galerię handlową Szperk – 1,5 km
– siłownię – 1,5 km
– usługi: makijaż, barber, fizjoterapia – kilkaset metrów
– przystanek autobusowy 400 m
– placówki edukacyjne w zasięgu krótkiego spaceru – najbliższe przedszkole 500 m od osiedla
Zaledwie 12 minut autem dzieli osiedle od malowniczej plaży w Gdyni, z klifowym wybrzeżem przypominającym Jastrzębią Górę.
Tu wakacyjny czar trwa cały rok.
Dom znajduje się w inwestycji Ahoj Pogórze, w której znajduje się w sprzedaży jeszcze 7 podobnych nowych domów.
Novisa Development Sp. z o.o.
Strona internetowa inwestycjiAdres biura sprzedaży:
ul. Morenowa 2B, 80-172 GdańskGodziny otwarcia biura sprzedaży:
- Poniedziałek: 10:00 - 18:00
- Wtorek: 10:00 - 18:00
- Środa: 10:00 - 18:00
- Czwartek: 10:00 - 18:00
- Piątek: 10:00 - 18:00
Artykuły powiązane:
![[SONDA] Jakich promocji szukają klienci deweloperów?](https://thumbs.rynekpierwotny.pl/2fafa89d:9-_fZi6jnrIBq1G-4WqLMvPnymg/440x440/filters:upscale():format(jpg)/articles/gallery/image/8601/a005ae.jpg)
[SONDA] Jakich promocji szukają klienci deweloperów?
Deweloperzy kuszą promocjami, rabatami i różnymi „okazjami” dla osób szukających mieszkań. Które z nich jednak najbardziej przykuwają uwagę klientów? Największym powodzeniem wśród klientów cieszą się promocje związane przede wszystkim ceną. Są to wszelkiego rodzaju obniżki, ale także promocje w ramach...
26 czerwca 2017
Mikołaj Ostrowski





