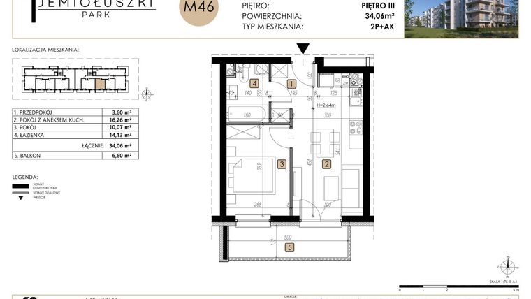
Mieszkanie na sprzedaż 2 pokoje o powierzchni 34,06 m² numer M46
Inwestycja:
Jemiołuszki ParkDeweloper:
Lalak Development Sp. z o.o.
Inwestycja:
Jemiołuszki ParkDeweloper:
Lalak Development Sp. z o.o.Lublin, Węglin Południowy, ul. Jemiołuszki
Lublin, Węglin Południowy, ul. Jemiołuszki
Termin oddania
2 kw. 2026
Ilość pokoi
2 pokoje
Metraż
34,06 m²
Piętro
3 piętro
Kuchnia
otwarta kuchnia
Wysokość pomieszczeń
od 260 do 280 cm wysokości
Ilość poziomów
1 poziom
Oznaczenie oferty
M46

Raport o deweloperze
Poznaj dewelopera bliżej! Pobierz raport, w którym znajdziesz kluczowe informacje o firmie, jej doświadczeniu, nagrodach oraz aktualnych i zrealizowanych inwestycjach.
Budynek i otoczenie
Miejsca postojowe | |
|---|---|
Komórki lokatorskie | dostępne (37): nieobowiązkowy zakup; od 1,5 do 3 m2 |
Standard wykończenia | standard deweloperski Ogrzewanie miejskie |
Realizacja inwestycji | rozpoczęcie budowy w 3 kw. 2024 roku, planowane oddanie do użytkowania w 2 kw. 2026 roku |
Udogodnienia | winda |
Przyroda | w okolicy inwestycji znajduje się las |
Charakterystyka energetyczna nieruchomości |
|
Rezerwacja i finanse
Rodzaj własności | Odrębna własność z własnością gruntu |
|---|---|
Wysokość czynszu | informacja u dewelopera |
Warunki rezerwacji | Informacja u dewelopera |
Zabezpieczenie środków | Otwarty mieszkaniowy rachunek powierniczy |
Zdjęcia z budowy
Zobacz na jakim etapie budowy jest ta inwestycja
Lokalizacja inwestycji
Stacja kolejowa - Stasin Polny - 915 m
Przystanek Autobusowy - 635 m
Dojazd do centrum: pokaż
W pobliżu 1 km od tej inwestycji znajdują się:
9 kawiarni i restauracji, 13 sklepów, 8 obiektów sportowych, 3 placówki medyczne, 19 placówek edukacyjnych, 33 place zabaw
Przeczytaj więcej o lokalizacji
Jemiołuszki Park współbrzmi z Twoimi potrzebami. Zlokalizowane są w południowo-zachodniej części Lublina, w kameralnej okolicy niskiej zabudowy wielorodzinnej. Inwestycja znajduje się w doskonałym punkcie komunikacyjnym, w pobliżu ulic Jana Pawła II i al. Kraśnickiej , zaledwie kilkanaście minut drogi samochodem do centrum miasta. Spokojna okolica gwarantuje wszystko to, co sprawi, że będzie Ci się tu żyło komfortowo. W najbliższym sąsiedztwie nie brakuje dużych sklepów spożywczych, przychodni, stacji paliw, żłobka czy szkoły podstawowej. W odległości około 1,5 km znajdują się sklep Agata Meble, Selgros, Galeria Handlowa Węglin Park , Mc’Donalds, Decathlon czy Bricoman. Tylko 3 km dzieli Jemiołuszki Park od obwodnicy Lublina i trasy Lublin--Warszawa. Lublin jest miastem powiatowym i stolicą woj. lubelskiego. To największy ośrodek miejski wschodniej Polski. Ze względu na bliskość Ukrainy i Białorusi, miasto wyróżnia się wielokulturowością, co widoczne jest m.in. w stylistyce architektonicznej miasta. Typ zabudowy jest natomiast zależny od dzielnicy, np. na Starym Mieście przeważają zabytkowe kamienice, Rury składają się niemal z samych osiedli mieszkalnych, a Zemborzyce to spokojna okolica otoczona przyrodą. Lublin to także ważny ośrodek akademicki. Mieści się tu kilkanaście szkół wyższych, takich jak Politechnika Lubelska, Uniwersytet Medyczny i Katolicki Uniwersytet Lubelski Jana Pawła II. Jest tu też kilkanaście szpitali, w tym kilka szpitali wojewódzkich i klinicznych. Pod względem rekreacyjnym miasto słynie z dróg rowerowych o łącznej długości ok. 100 km. Kwitnie tu życie kulturalne, działa filharmonia, wiele kin i teatrów. Mieści się tu również kilka galerii handlowych. Prężnie funkcjonuje komunikacja miejska, w tym trolejbusy, a z resztą kraju Lublin łączą dwie drogi krajowe, droga ekspresowa i okoliczna sieć ponad kilkunastu przecinających się dróg wojewódzkich.
Lublin jest miastem powiatowym i stolicą woj. lubelskiego. To największy ośrodek miejski wschodniej Polski. Ze względu na bliskość Ukrainy i Białorusi, miasto wyróżnia się wielokulturowością, co widoczne jest m.in. w stylistyce architektonicznej miasta. Typ zabudowy jest natomiast zależny od dzielnicy, np. na Starym Mieście przeważają zabytkowe kamienice, Rury składają się niemal z samych osiedli mieszkalnych, a Zemborzyce to spokojna okolica otoczona przyrodą. Lublin to także ważny ośrodek akademicki. Mieści się tu kilkanaście szkół wyższych, takich jak Politechnika Lubelska, Uniwersytet Medyczny i Katolicki Uniwersytet Lubelski Jana Pawła II. Jest tu też kilkanaście szpitali, w tym kilka szpitali wojewódzkich i klinicznych. Pod względem rekreacyjnym miasto słynie z dróg rowerowych o łącznej długości ok. 100 km. Kwitnie tu życie kulturalne, działa filharmonia, wiele kin i teatrów. Mieści się tu również kilka galerii handlowych. Prężnie funkcjonuje komunikacja miejska, w tym trolejbusy, a z resztą kraju Lublin łączą dwie drogi krajowe, droga ekspresowa i okoliczna sieć ponad kilkunastu przecinających się dróg wojewódzkich.
Opis oferty
Nowe 2-pokojowe mieszkanie na sprzedaż o powierzchni 34,06 m² znajduje się w nowo budowanej inwestycji deweloperskiej Jemiołuszki Park na Węglinie Południowym, ul. Jemiołuszki (6.9 km od centrum Lublina).
Inwestycja jest realizowana przez Lalak Development Sp. z o.o.
Cała inwestycja składa się z 1 budynku, w którym łącznie znajduje się 48 nowych mieszkań.
Na sprzedaż pozostaje 26 ofert o powierzchni od 34 do 66 m².
W budynku są 4 kondygnacje naziemne oraz 1 kondygnacja podziemna.
Inwestycja Jemiołuszki Park jest w trakcie budowy z planowanym na 2 kw. 2026 roku terminem oddania do użytkowania.
Nowe mieszkanie o oznaczeniu M46 znajduje się na 3 piętrze i jest 1-poziomowe. Pomieszczenia mają od 260 do 280 centymetrów wysokości. W mieszkaniu znajdują się 2 pokoje.
Do mieszkania przewidziano możliwość zakupu komórki lokatorskiej, którą można zagospodarować na spiżarnię, warsztat czy składzik.
Dla przyszłych mieszkańców Jemiołuszki Park deweloper przewidział miejsca postojowe podziemne, miejsca postojowe naziemne.
Dzięki temu przyszli właściciele nie będą musieli poszukiwać wolnej przestrzeni parkingowej. Dodatkowo, miejsce postojowe w garażu podziemnym zabezpiecza przed niekorzystnymi warunkami atmosferycznymi.
Opis Inwestycji
Okazyjna cena
Dom to miejsce, w którym chcesz poczuć harmonię i wolność. Jesteśmy przekonani, że Jemiołuszki Park to inwestycja, która spełni wszelkie oczekiwania. Tu, w kameralnej części Lublina, wygoda, minimalizm i niewymuszona elegancja, współgrają ze sobą wprost doskonale.
Położone w bliskiej odległości od arterii komunikacyjnych osiedle, gwarantuje spokój i wytchnienie, tak charakterystyczne dla podmiejskich okolic. W I etapie inwestycji zaprojektowano 48 funkcjonalnych mieszkań o zróżnicowanym metrażu, dostosowanym do różnych potrzeb. Swoje wymarzone miejsce znajdzie tu zarówno osoba poszukująca kameralnej kawalerki, jak i rodzina z dziećmi, marząca o przestronnym apartamencie.
Bryła budynku utrzymana jest w ponadczasowym, eleganckim stylu. Białą elewację dopełniają charakterystyczne drewniane panele oraz przeszklone balkony. Jemiołuszki Park to jednak nie tylko doskonały design, to również architektura wpisująca się w potrzeby użytkowników. Znajdziesz tu całą gamę rozwiązań, w tym ergonomicznie zaprojektowany parking, oraz rozwiązania zaprojektowane z myślą o osobach niepełnosprawnych, starszych.
Mieszkanie znajduje się w inwestycji Jemiołuszki Park, w której znajduje się w sprzedaży jeszcze 11 podobnych nowych mieszkań.
Adres biura sprzedaży:
ul. Chodźki 10a - IV piętro, 20-093 LublinGodziny otwarcia biura sprzedaży:
- Poniedziałek: 08:00 - 16:00
- Wtorek: 08:00 - 16:00
- Środa: 08:00 - 16:00
- Czwartek: 08:00 - 16:00
- Piątek: 08:00 - 16:00





