Dom na sprzedaż 5 pokoi o powierzchni 143,59 m² numer B2
Inwestycja:
Aniceta ResidenceDeweloper:
New Aparts Invest Sp. z o.o.
Inwestycja:
Aniceta ResidenceDeweloper:
New Aparts Invest Sp. z o.o.Warszawa, Białołęka, Brzeziny, ul. Ojca Aniceta 10
Warszawa, Białołęka, Brzeziny, ul. Ojca Aniceta 10
Uwaga
Ta nieruchomość jest nieaktywna. Informacje na jej temat pomagają nam jednak tworzyć wiarygodną bazę informacji na temat lokalnego rynku nieruchomości statystycznych portalu
Najbliższe inwestycje
- BIAŁOŁĘCKA 327 to kameralne osiedle mieszkań oraz segmentów bezczynszowych. Mieszkanie na parterze 89m2 z ogródkiem do 253m2, mieszkanie na piętrze 104m2 z poddaszem 83m2 oraz segment środkowy 123m2 z ogródkiem do 53m2 i poddaszem 63m2 oraz segment skrajny 123m2 z ogródkiem do 169m2 i poddaszem 53m2. Oddzielne wejście, brak klatki schodowej. Wysokość 280 cm. Wysokie właściwości energetyczne oraz
1 kwartał 2027
Warszawa, Białołęka, Brzeziny,
ul. Białołęcka 327
5 pokoi, Metraż 123 m2
% Promocje
Majewska Domy – Przemyślane i Nowoczesne Przestrzenie Mieszkalne Majewska Domy to nowa inwestycja zlokalizowana na malowniczych warszawskich Brzezinach - na Białołęce, ul. Włady Majewskiej (ok. 15 km od centrum Warszawy). Lokalizacja gwarantuje idealną komunikację, dostęp do edukacji, usług i obiektów różnego rodzaju, w tym rekreacyjnych, sklepów, szkół i przedszkoli – wszystkiego, co niezbędne4 kwartał 2026
Warszawa, Białołęka, Brzeziny,
ul. Włady Majewskiej
5 pokoi, Metraż 121 m2
Termin oddania
2 kw. 2026
Ilość pokoi
5 pokoi
Metraż
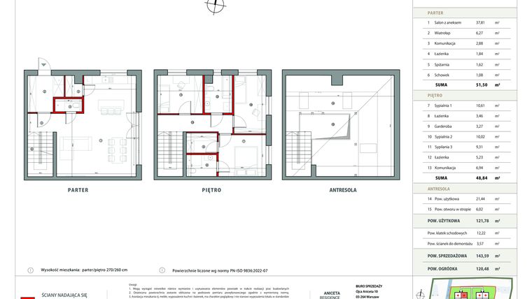
143,59 m²
Piętro
Parter
Strona świata
wschód, północ
Powierzchnie dodatkowe
Ogródek
Kuchnia
otwarta kuchnia
Wysokość pomieszczeń
od 260 do 270 cm wysokości
Ilość kondygnacji
2 poziomy
Oznaczenie oferty
B2

Raport o deweloperze
Poznaj dewelopera bliżej! Pobierz raport, w którym znajdziesz kluczowe informacje o firmie, jej doświadczeniu, nagrodach oraz aktualnych i zrealizowanych inwestycjach.
Budynek i otoczenie
Miejsca postojowe | |
|---|---|
Standard wykończenia | standard deweloperski Ogrzewanie pompa ciepła |
Realizacja inwestycji | rozpoczęcie budowy w 1 kw. 2025 roku, planowane oddanie do użytkowania w 2 kw. 2026 roku |
Udogodnienia | monitoring, teren ogrodzony, instalacja fotowoltaiczna, pompa ciepła |
Przyroda | informacja u dewelopera |
Charakterystyka energetyczna nieruchomości | informacja u dewelopera |
Rezerwacja i finanse
Rodzaj własności | Odrębna własność z własnością gruntu |
|---|---|
Wysokość czynszu | informacja u dewelopera |
Warunki rezerwacji | Informacja u dewelopera |
Zabezpieczenie środków | Otwarty mieszkaniowy rachunek powierniczy |
Lokalizacja inwestycji
Metro - Bródno - 1365 m
Przystanek Tramwajowy - 1223 m
Przystanek Autobusowy - 369 m
Dojazd do centrum: pokaż
W pobliżu 1 km od tej inwestycji znajdują się:
9 kawiarni i restauracji, 17 sklepów, 62 obiekty sportowe, 2 placówki medyczne, 19 placówek edukacyjnych, 37 placów zabaw
Przeczytaj więcej o lokalizacji
Białołęka to północna, druga pod względem wielkości powierzchni, dzielnica Warszawy odznaczająca się najszybszym rozwojem. Występują tutaj zarówno osiedla domów jednorodzinnych w północnej części obszaru, jak również wysoka, nowoczesna zabudowa mieszkaniowa. Dużą popularnością nadal cieszą się białołęckie osiedla z wielkiej płyty: Nowy Tarchomin, Nowodwory i Nowe Świdry. W strefie centralnej i południowej rozwija się infrastruktura handlowo-usługowa, więc obszar ten ma szansę stać się czymś więcej, niż kolejną warszawską "sypialnią". Białołęka jest jedną z najspokojniejszych dzielnic, a wypoczynek umożliwiają: kompleksy leśne, parki, rezerwaty przyrody i ścieżki rowerowe. Dogodnym sposobem dojazdu do centrum miasta są tutaj liczne linie autobusowe z pętlą Nowodwory, zaś do głównych arterii dzielnicy należą fragmenty dróg krajowych: ul. Modlińska i Trasa Toruńska, a także ul. Płochocińska.
Opis oferty
Nowy 5-pokojowy dom bliźniak na sprzedaż o powierzchni 143,59 m² znajduje się w nowo budowanej inwestycji deweloperskiej Aniceta Residence na Brzezinach, ul. Ojca Aniceta 10 (8.5 km od centrum Warszawy).
Inwestycja jest realizowana przez New Aparts Invest Sp. z o.o.
Cała inwestycja składa się z 8 nowych domów.
Inwestycja Aniceta Residence jest w trakcie budowy z planowanym na 2 kw. 2026 roku terminem oddania do użytkowania.
Nowy dom bliźniak o oznaczeniu B2 , składa się z 2 kondygnacji bez poddasza, nie posiada podpiwniczenia. Wysokość pomieszczeń wynosi od 260 do 270 cm.
W domu bliźniaku numer B2 znajduje się się 5 pokoi.
Okna domu wychodzą na wschód, północ.
Do domu przynależy ogródek o powierzchni 120,48 m².
Dla przyszłych mieszkańców Aniceta Residence deweloper przewidział miejsca postojowe naziemne (18 miejsc)
Dom znajduje się w inwestycji Aniceta Residence.





