Majewska Domy
Domy na sprzedaż oferowane bezpośrednio przez ELMIS GK Sp. z o.o. S.K.A.
Warszawa, Białołęka, Brzeziny, ul. Włady Majewskiej
Warszawa, Białołęka, Brzeziny, ul. Włady Majewskiej
:format(jpg)/offers/offer/18905/main_image/majewska-domy_1b3e66.jpg)
:format(jpg)/offers/offer/18905/main_image/majewska-domy_1b3e66.jpg)
1 zdjęcie
Termin oddania
4 kw. 2026
Powierzchnie
121/m2
Przedział pokoi
5
Kondygnacje
2
Budynki
2
Stand. wykończenia
Standard deweloperski
Domy w inwestycji (18)
Sortuj
Promocje
Promocja
Miejsce postojowe zewnętrzne – W CENIE LOKALU!* Dla pierwszych 3 Klientów 30 tys. rabatu!
*Oferta cenowa ważna do odwołania
Przystanek Tramwajowy - 2591 m
Przystanek Autobusowy - 104 m
Dojazd do centrum: pokaż
W pobliżu 1 km od tej inwestycji znajdują się:
3 kawiarnie i restauracje, 6 sklepów, 16 obiektów sportowych, 1 placówka medyczna, 15 placówek edukacyjnych, 8 placów zabaw
Zdjęcia z budowy
Zobacz na jakim etapie budowy jest ta inwestycja
Udogodnienia Inwestycji
Standard i bezpieczeństwo
- teren ogrodzony
- Standard deweloperski
Instalacje i energetyka
- instalacja fotowoltaiczna
Szczegóły inwestycji
Realizacja inwestycji: | rozpoczęcie budowy w 1 kw. 2025 roku,
planowane oddanie do użytkowania w 4 kw. 2026 roku |
|---|---|
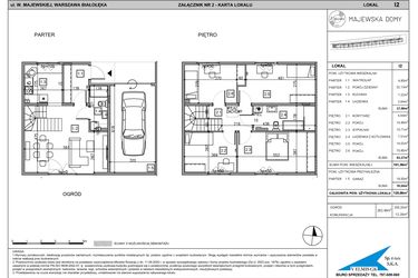
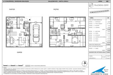
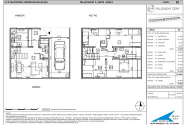
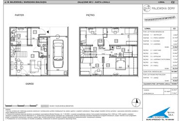
Liczba domów: | cała inwestycja składa się z 18 domów |
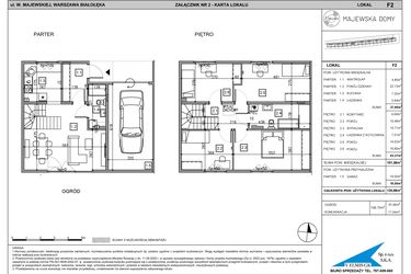
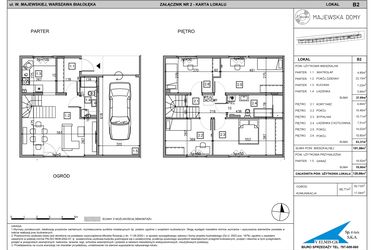
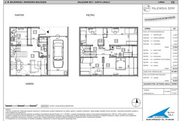
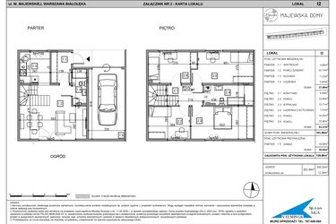
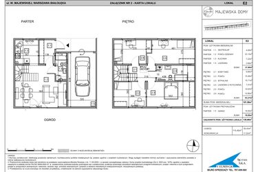
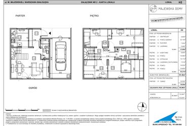
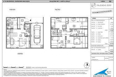
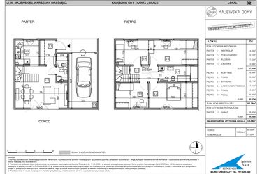
Liczba kondygnacji: | domy posiadają 2 kondygnacje wraz z parterem oraz nie posiadają poddasza |
Wysokość pomieszczeń: | na wszystkich kondygnacjach po 280 cm wysokości |
Standard wykończenia | standard deweloperski Ogrzewanie gazowe |
Rodzaj własności: | odrębna własność z własnością gruntu |
Garaże: | domy posiadają garaże oraz przewidziano:
|
Przyroda: | informacja u dewelopera |
Aktualna oferta
Dostępne domy: | aktualnie dostępnych jest 18 domów szeregowych |
|---|---|
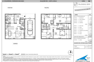
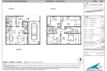
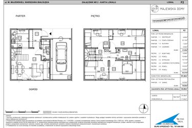
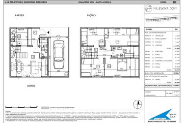
Powierzchnie domów: | 121 m² |
Opis płatności: | ratalna |
Warunki rezerwacji: | umowa rezerwacyjna - 1% ceny |
Zabezpieczenie środków klienta: | otwarty mieszkaniowy rachunek powierniczy i gwarancję bankową |
Wysokość czynszu: | informacja u dewelopera |
Opis inwestycji
Majewska Domy – Przemyślane i Nowoczesne Przestrzenie Mieszkalne
Majewska Domy to nowa inwestycja zlokalizowana na malowniczych warszawskich Brzezinach - na Białołęce, ul. Włady Majewskiej (ok. 15 km od centrum Warszawy).
Lokalizacja gwarantuje idealną komunikację, dostęp do edukacji, usług i obiektów różnego rodzaju, w tym rekreacyjnych, sklepów, szkół i przedszkoli – wszystkiego, co niezbędne do życia i funkcjonowania na co dzień.
Projekt składa się z 18 nowych lokali mieszkalnych o powierzchni 121 m². Każdy lokal posiada garaż, miejsce na podjeździe, miejsce zewnętrzne i ogródki o pow. od 66 do 335 m².
Inwestycja jest w trakcie budowy, odbiór lokali planowany w IV kwartale 2026 roku.
Inwestycja Majewska Domy znajduje się na Brzezinach, ul. Włady Majewskiej (11 km od centrum Warszawy), jest realizowana przez ELMIS GK Sp. z o.o. S.K.A.
Inwestycja obecnie jest w trakcie budowy z planowanym na 4 kw. 2026 roku terminem oddania do użytkowania
Cały projekt składa się z 18 nowych domów.
Aktualnie w inwestycji Majewska Domy w sprzedaży jest 18 nowych domów o powierzchni 121 metrów kwadratowych , w cenie od 1 300 000 zł.
Dla przyszłych mieszkańców Majewska Domy deweloper przewidział:
- miejsca postojowe naziemne (18 miejsc)
Lokalizacja inwestycji
Białołęka to północna, druga pod względem wielkości powierzchni, dzielnica Warszawy odznaczająca się najszybszym rozwojem. Występują tutaj zarówno osiedla domów jednorodzinnych w północnej części obszaru, jak również wysoka, nowoczesna zabudowa mieszkaniowa. Dużą popularnością nadal cieszą się białołęckie osiedla z wielkiej płyty: Nowy Tarchomin, Nowodwory i Nowe Świdry. W strefie centralnej i południowej rozwija się infrastruktura handlowo-usługowa, więc obszar ten ma szansę stać się czymś więcej, niż kolejną warszawską "sypialnią". Białołęka jest jedną z najspokojniejszych dzielnic, a wypoczynek umożliwiają: kompleksy leśne, parki, rezerwaty przyrody i ścieżki rowerowe. Dogodnym sposobem dojazdu do centrum miasta są tutaj liczne linie autobusowe z pętlą Nowodwory, zaś do głównych arterii dzielnicy należą fragmenty dróg krajowych: ul. Modlińska i Trasa Toruńska, a także ul. Płochocińska.
Komunikacja
Jak wygląda komunikacja w okolicy inwestycji Majewska Domy?
Na terenie dzielnicy Białołęka znajdują się 4 stacje PKP. Kursują stąd autobusy, a także tramwaje umożliwiające bezpośrednie dotarcie do centrum Warszawy.
Przyszli mieszkańcy inwestycji Majewska Domy mogą korzystać z rozbudowanej sieci połączeń komunikacyjnych. W odległości 100 metrów od inwestycji Majewska Domy znajduje się najbliższy punkt komunikacyjny - Warzelnicza-Szkoła 01.
Edukacja
Czy w pobliżu inwestycji Majewska Domy znajdują się szkoły/przedszkola?
Mieszkańcy mogą korzystać z bogatej oferty edukacyjnej. W najbliższej okolicy inwestycji Majewska Domy znajduje się 15 placówek edukacyjnych. Najbliżej położone to: Szkoła Podstawowa nr 368 im. Polskich Olimpijczyków w odległości 50 m, Plastusiowe Przedszkole z Oddziałami Integracyjnymi nr 414 w odległości 300 m.
Opieka medyczna
Dużym atutem inwestycji Majewska Domy jest bliskość ośrodków zdrowotnych. Dostęp do opieki medycznej zapewnią położone w pobliżu: CMP Białołęka w odległości 900 m.
Sklepy i usługi
Jak daleko jest do najbliższego sklepu?
Na infrastrukturę handlowo-usługową inwestycji Majewska Domy składa się wiele punktów. Nieopodal, w odległości 500 m znajduje się Biedronka, w odległości 800 m znajduje się Prim.
Sport
Bliskość terenów rekreacyjnych oraz obiektów sportowych to mocna strona tej lokalizacji. W najbliższej okolicy inwestycji Majewska Domy w odległości 200 m znajduje się boisko / kort.
ELMIS GK Sp. z o.o. S.K.A.
Strona internetowa inwestycjiAdres biura sprzedaży:
ul. Warszawska 92, 05-092 ŁomiankiGodziny otwarcia biura sprzedaży:
- Poniedziałek: 09:00 - 17:00
- Wtorek: 09:00 - 17:00
- Środa: 09:00 - 17:00
- Czwartek: 09:00 - 17:00
- Piątek: 09:00 - 17:00





