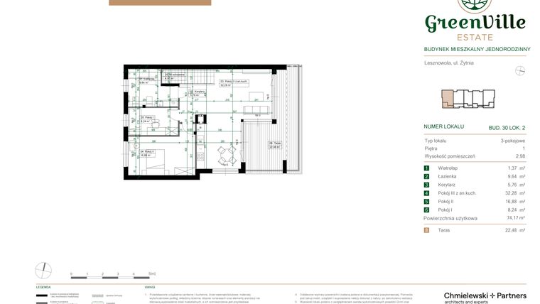
Mieszkanie na sprzedaż 3 pokoje o powierzchni 74,17 m² numer 30.2
Inwestycja:
Green VilleDeweloper:
MOTTON ESTATES SP. Z O.O.
Inwestycja:
Green VilleDeweloper:
MOTTON ESTATES SP. Z O.O.piaseczyński, Lesznowola-Pole, ul. Żytnia
piaseczyński, Lesznowola-Pole, ul. Żytnia
Oddanie
3 kw. 2026
Ilość pokoi
3 pokoje
Metraż
74,17 m²
Piętro
1 piętro
Strona świata
wschód, zachód, południe
Dodatkowe
Balkon
Kuchnia
otwarta kuchnia
Wysokość
290 cm wysokości
Poziomy
1 poziom
Oznaczenie oferty
30.2

Raport o deweloperze
Poznaj dewelopera bliżej! Pobierz raport, w którym znajdziesz kluczowe informacje o firmie, jej doświadczeniu, nagrodach oraz aktualnych i zrealizowanych inwestycjach.
Budynek i otoczenie
Miejsca postojowe | |
|---|---|
Standard wykończenia | standard deweloperski Ogrzewanie pompa ciepła, podłogowe |
Realizacja inwestycji | rozpoczęcie budowy w 2 kw. 2024 roku, planowane oddanie do użytkowania w 3 kw. 2026 roku |
Udogodnienia | instalacja fotowoltaiczna, pompa ciepła, plac zabaw, monitoring, teren ogrodzony, sauna, inteligentny dom |
Przyroda | w okolicy inwestycji znajduje się las, park, rezerwat przyrody |
Charakterystyka energetyczna nieruchomości | informacja u dewelopera |
Rezerwacja i finanse
Rodzaj własności | Odrębna własność z własnością gruntu |
|---|---|
Wysokość czynszu | informacja u dewelopera |
Warunki rezerwacji | Informacja u dewelopera |
Zabezpieczenie środków | Informacja u dewelopera |

Zdjęcia z budowy i widok 3D
Zobacz na jakim etapie budowy jest ta inwestycja
Lokalizacja inwestycji
Przystanek Autobusowy - 78 m
Dojazd do centrum Warszawy: pokaż
W pobliżu 1 km od tej inwestycji znajdują się:
1 sklep, 6 obiektów sportowych, 4 place zabaw
Przeczytaj więcej o lokalizacji
Powiat piaseczyński znajduje się w środkowej części województwa mazowieckiego i należy do najbogatszych oraz najintensywniej rozwijających się powiatów w Polsce. W jego obrębie znajdują się miasta: Piaseczno, Konstancin-Jeziorna, Góra Kalwaria, Tarczyn oraz 223 wsie. Obszar o powierzchni 621 km2 przecinają liczne rzeki, m.in. Wisła, Jeziorka, Czarna, Utrata, a w ich dolinach występują łąki i torfowiska. Znaczne połacie terenu zajmują lasy, np. Chojnowskie, zaś pejzaż urozmaicają stawy, zalewy i wydmy. Warunki naturalne sprzyjają turystce i rekreacji, toteż w powiecie znajdują się liczne obiekty i kluby sportowe, tereny do jazdy konnej, kąpielisko Zalesie Górne oraz dobrze rozwinięta baza noclegowa i gastronomiczna. Dominuje niska zabudowa mieszkaniowa i usługowo-handlowa, a do obiektów zabytkowych należą m.in. Zamek w Czersku, wille i dwory. Ważne arterie to trasa E77 oraz drogi krajowe: nr 79 i nr 50. Do stolicy kursuje stąd 18 linii autobusowych warszawskiej komunikacji miejskiej.
Opis oferty
Nowe 3-pokojowe mieszkanie na sprzedaż o powierzchni 74,17 m² znajduje się w nowo budowanej inwestycji deweloperskiej Green Ville w Lesznowola-Pole, ul. Żytnia (4.2 km od Warszawy).
Inwestycja jest realizowana przez MOTTON ESTATES SP. Z O.O.
Cała inwestycja składa się z 8 budynków, w których łącznie znajduje się 80 nowych mieszkań.
Na sprzedaż pozostaje 26 ofert o powierzchni od 57 do 89 m².
W budynkach są 2 kondygnacje naziemne. Budynek nie posiada kondygnacji podziemnych.
Inwestycja Green Ville jest w trakcie budowy z planowanym na 3 kw. 2026 roku terminem oddania do użytkowania.
Nowe mieszkanie o oznaczeniu 30.2 znajduje się na 1 piętrze i jest 1-poziomowe. Pomieszczenia mają 290 centymetrów wysokości. W mieszkaniu znajdują się 3 pokoje.
Okna w mieszkaniu wychodzą na wschód, zachód, południe.
Okna wychodzące na południe gwarantują maksymalną ilość naturalnego światła, co czyni wnętrza jasnymi i ciepłymi. Dodatkowo południowa ekspozycja pomaga obniżyć koszty ogrzewania w zimie. Okna na południe są idealne dla osób pragnących cieszyć się jasnym otoczeniem, które sprzyja dobremu samopoczuciu oraz pozytywnej energii.
Wschodnia orientacja zapewnia dostęp do łagodnego porannego światła, idealnego dla rozpoczęcia dnia pełnego energii. Wnętrza pozostają jasne, ale nieprzegrzane, co sprzyja utrzymaniu komfortowej temperatury. Przebywanie w pomieszczeniu z oknami na wschód inspiruje do działania i pozytywnie wpływa na poranny rytuał.
Zachodnia ekspozycja to gwarancja intensywnego popołudniowego światła, które nadaje wnętrzom przytulności i ciepła. Idealne dla miłośników słonecznych wieczorów, którzy pragną cieszyć się pięknymi zachodami słońca we własnym domu. Zachodnie światło podkreśla kolory i faktury w aranżacji wnętrz, tworząc atmosferę sprzyjającą relaksowi po długim dniu.
Dla przyszłych mieszkańców Green Ville deweloper przewidział miejsca postojowe naziemne.
Dzięki temu przyszli właściciele nie będą musieli poszukiwać wolnej przestrzeni parkingowej.
Opis Inwestycji
Pow. dodatkowe
GreenVille wyróżnia się tym, że łączy nowoczesne technologie z realnymi oszczędnościami dla mieszkańców.
Jako jedyna w okolicy oferuje w standardzie inteligentne sterowanie ogrzewaniem, zaawansowany system energetyczny oparty na pompach ciepła, fotowoltaice i magazynie energii, co przekłada się na niższe koszty utrzymania lokali. Przewagą GreenVille jest także wyjątkowo dobra lokalizacja – z pełną infrastrukturą handlową i komunikacją tuż obok oraz szybkim dojazdem do tras S7 i S8. Całość uzupełnia wysoki standard wykończenia, przestronne wnętrza i rozbudowana strefa rekreacyjna, której nie oferują konkurencyjne inwestycje w Lesznowoli i okolicach.
Mieszkanie znajduje się w inwestycji Green Ville, w której znajduje się w sprzedaży jeszcze 10 podobnych nowych mieszkań.
MOTTON ESTATES SP. Z O.O.
Strona internetowa inwestycjiAdres biura sprzedaży:
ul. Jedności 30 lok. U3, 05-506 Lesznowola




