Apartament na sprzedaż 4 pokoje o powierzchni 93,03 m² numer A23
Inwestycja:
Rezydencja Zegrze etap IIDeweloper:
Mostostal S.A.
Inwestycja:
Rezydencja Zegrze etap IIDeweloper:
Mostostal S.A.legionowski, Zegrze, ul. Groszkowskiego 22A
legionowski, Zegrze, ul. Groszkowskiego 22A
Termin oddania
Gotowe
Ilość pokoi
4 pokoje
Metraż
93,03 m²
Piętro
4 piętro
Kuchnia
otwarta kuchnia
Wysokość pomieszczeń
264 cm wysokości
Ilość poziomów
2 poziomy
Oznaczenie oferty
A23

Raport o deweloperze
Poznaj dewelopera bliżej! Pobierz raport, w którym znajdziesz kluczowe informacje o firmie, jej doświadczeniu, nagrodach oraz aktualnych i zrealizowanych inwestycjach.
Budynek i otoczenie
Miejsca postojowe | |
|---|---|
Komórki lokatorskie | dostępne (33): wielkość 2,34 - 6,26 m2; cena 8 700 - 10 400 zł/m2; zakup nie jest obowiązkowy |
Standard wykończenia | standard deweloperski |
Realizacja inwestycji | rozpoczęcie budowy w 2 kw. 2022 roku, inwestycja została oddana do użytkowania w 1 kw. 2024 roku |
Udogodnienia | plac zabaw, pomieszczenie rekreacyjne, monitoring, teren ogrodzony, internet, przystosowane dla niepełnosprawnych, sauna, TV kablowa, winda, rowerownia, videodomofon, własna kotłownia, sala fitness, wózkarnia, patio / dziedziniec |
Przyroda | w okolicy inwestycji znajduje się park, las, jezioro, rzeka, rezerwat przyrody, zalew |
Charakterystyka energetyczna nieruchomości |
|
Rezerwacja i finanse
Rodzaj własności | Odrębna własność z własnością gruntu |
|---|---|
Wysokość czynszu | informacja u dewelopera |
Warunki rezerwacji | 10 000 zł |
Zabezpieczenie środków | Otwarty mieszkaniowy rachunek powierniczy |
Zdjęcia z budowy
Zobacz na jakim etapie budowy jest ta inwestycja
Lokalizacja inwestycji
Stacja kolejowa - Zegrze Południowe - 2167 m
Przystanek Autobusowy - 459 m
Dojazd do centrum Warszawy: pokaż
W pobliżu 1 km od tej inwestycji znajdują się:
1 kawiarnia lub restauracja, 1 sklep, 5 obiektów sportowych, 1 placówka medyczna, 3 placówki edukacyjne, 3 place zabaw
Przeczytaj więcej o lokalizacji
Usytuowany w centralnej części Niziny Mazowieckiej, w widłach Wisły i Narwi, powiat legionowski zajmuje powierzchnię ok. 389 km2 i jest najgęściej zaludnionym powiatem w Polsce. Duża liczba ludności sięgająca ok. 108 tys. wynika z atrakcyjności miejsca: malowniczego krajobrazu, spokoju okolic, bliskości Warszawy oraz dobrych połączeń komunikacyjnych ze stolicą. Powiat legionowski to popularne miejsce wypoczynku, bowiem znaczna część jego terenu leży w obrębie Warszawskiego Obszaru Chronionego Krajobrazu. Znajduje się tutaj 10 rezerwatów przyrody, a strefami rekreacji są ośrodki wypoczynkowe nad Zalewem Zegrzyńskim, m.in. Dzika Plaża z kąpieliskiem w Nieporęcie oraz plaża, molo i kąpielisko w Serocku. Na terenie powiatu dominuje niska zabudowa, zaś rozwijają się: rolnictwo, usługi i handel. Dogodnym sposobem komunikacji z Warszawą są linie Szybkiej Kolei Miejskiej (S3 i S9) i linie autobusowe. Przebiegają tędy drogi krajowe nr 61 i nr 62 oraz trasa europejska E77.
Opis oferty
Nowy 4-pokojowy apartament na sprzedaż o powierzchni 93,03 m² znajduje się w nowo budowanej inwestycji deweloperskiej Rezydencja Zegrze etap II w Zegrzu, ul. Groszkowskiego 22A (10.5 km od Warszawy).
Inwestycja jest realizowana przez Mostostal S.A.
Cała inwestycja składa się z 1 budynku, w którym łącznie znajduje się 119 nowych apartamentów.
Na sprzedaż pozostaje 1 oferta o powierzchni 93 m².
W budynku jest 5 kondygnacji naziemnych oraz 1 kondygnacja podziemna.
Inwestycja Rezydencja Zegrze etap II została wybudowana i oddana do użytkowania w 1 kw. 2024 roku.
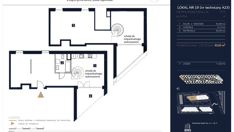
Nowy apartament o oznaczeniu A23 znajduje się na 4 piętrze i jest 2-poziomowy. Pomieszczenia mają 264 centymetrów wysokości. W apartamencie znajdują się 4 pokoje. W mieszkaniu jest także antresola o powierzchni 33 m².
Do apartamentu przewidziano możliwość zakupu komórki lokatorskiej, którą można zagospodarować na spiżarnię, warsztat czy składzik.
Dla przyszłych mieszkańców Rezydencja Zegrze etap II deweloper przewidział miejsca postojowe podziemne.
Dzięki temu przyszli właściciele nie będą musieli poszukiwać wolnej przestrzeni parkingowej. Dodatkowo, miejsce postojowe w garażu podziemnym zabezpiecza przed niekorzystnymi warunkami atmosferycznymi.
Opis Inwestycji
Bezpośrednio nad wodą, zaledwie 15 km od granic Warszawy, powstanie niezwykła inwestycja mieszkaniowa – drugi etap Rezydencji Zegrze. Posiadając tutaj własne „M” będzie można codziennie budzić się wśród szumu drzew, a za oknem mieć widok na spokojną taflę jeziora.
Rezydencja Zegrze to budowana przez doświadczonego dewelopera Mostostal SA elegancka i prestiżowa inwestycja powstająca przy ul. Groszkowskiego 22A w Zegrzu. W drugim etapie powstanie 119 mieszkań i apartamentów o metrażach od 29 do 124 m2.
Każde mieszkanie będzie posiadało zwrócone w stronę jeziora przestronne tarasy i loggie oraz przeszklenia okien od podłogi do samego sufitu, które pozwolą codziennie cieszyć się rytmem zmieniających się pór roku i wyjątkowym mikroklimatem. Na parterach przewidziano kameralne ogródki, a najwyższych piętrach apartamenty dla koneserów przestrzeni i światła – lokale dwupoziomowe z przestronnymi antresolami.
Do dyspozycji mieszkańców będzie otwarte w stronę jeziora urokliwe patio wypełnione starannie zaprojektowaną zielenią, placami zabaw dla dzieci i strefą fontann. Maksymalna ekspozycja budynków na Zalew Zegrzyński zapewni widok na wodę z każdego mieszkania.
Na ogrodzonej działce z bezpośrednim dostępem do wody i plaży powstanie 4-piętrowy, wtopiony w malownicze nadbrzeże apartamentowiec, o elewacjach w stonowanych kolorach – białym, szarym oraz naturalnym kolorze drewna i cegły. Do mieszkań z podziemnej hali garażowej poprowadzą cichobieżne windy, a do dyspozycji mieszkańców będą rozlokowane w budynkach schowki.
Inwestycja Rezydencja Zegrze zlokalizowana jest nad samą wodą w niewielkiej miejscowości Zegrze, 15 km od granic Warszawy. To propozycja idealna dla wszystkich szukających na stałe wytchnienia od szybkiego życia w stolicy oraz tych, decydujących się na zakup apartamentu jako alternatywy dla szybkiego wyjazdu tylko na weekendy.
Apartament znajduje się w inwestycji Rezydencja Zegrze etap II.
Mostostal S.A.
Strona internetowa inwestycjiAdres biura sprzedaży:
ul. Groszkowskiego 22 A lok. 23, 05-131 ZegrzeGodziny otwarcia biura sprzedaży:
- Poniedziałek: 09:00 - 17:00
- Wtorek: 09:00 - 17:00
- Środa: 09:00 - 17:00
- Czwartek: 09:00 - 17:00
- Piątek: 09:00 - 17:00
- Sobota: 10:00 - 15:00





