Apartament na sprzedaż 2 pokoje o powierzchni 50,27 m² numer C09
Inwestycja:
Nowa PalmiarniaDeweloper:
Moje Miejsce Development Sp. z o.o.
Inwestycja:
Nowa PalmiarniaDeweloper:
Moje Miejsce Development Sp. z o.o.Polanica-Zdrój, ul. Zdrojowa
Polanica-Zdrój, ul. Zdrojowa
Promocje
Promocja
NOWA PALMIARNIA Polanica-Zdrój – apartamenty inwestycyjne od 9800 zł netto/m²!
Zainwestuj w apartament w Polanicy-Zdroju! NOWA PALMIARNIA oferuje lokale już od 9800 zł netto/m². Wybierz apartament C03 (41,50 m²) lub A04 (59,94 m²) i skorzystaj z najlepszej okazji inwestycyjnej w Kotlinie Kłodzkiej!
Promocja
Inwestuj mądrze, odpoczywaj przyjemnie - kup apartament w Polanicy-Zdroju i wypoczywaj za darmo od zaraz!
Kup apartament w inwestycji NOWA PALMIARNIA i skorzystaj z darmowego 14-dniowego pobytu w MOIM MIEJSCU Polanica-Zdrój. Masz czas, aby go wykorzystać od zaraz (od momentu podpisania umowy deweloperskiej) aż do odbioru gotowego apartamentu.
Promocja
Sfinansuj zakup apartamentu w Polanicy-Zdroju w systemie 30/70. Skorzystaj z promocji w inwestycji NOWA PALMIARNIA!
Zainwestuj w apartament w inwestycji NOWA PALMIARNIA i zapłać za niego w dwóch korzystanych transzach – 30% po podpisaniu umowy przedwstępnej i 70% po zakończeniu ostatniego etapu budowy. Pamiętaj, liczba lokali objętych promocją jest ograniczona!
Oddanie
3 kw. 2026
Ilość pokoi
2 pokoje
Metraż
50,27 m²
Piętro
2 piętro
Strona świata
wschód
Dodatkowe
Balkon
Kuchnia
otwarta kuchnia
Wysokość
285 cm wysokości
Poziomy
1 poziom
Oznaczenie oferty
C09

Raport o deweloperze
Poznaj dewelopera bliżej! Pobierz raport, w którym znajdziesz kluczowe informacje o firmie, jej doświadczeniu, nagrodach oraz aktualnych i zrealizowanych inwestycjach.
Budynek i otoczenie
Miejsca postojowe | |
|---|---|
Komórki lokatorskie | dostępne: wielkość: 4,5-6,9 m2 |
Standard wykończenia | wykończenie pod klucz Ogrzewanie podłogowe |
Realizacja inwestycji | rozpoczęcie budowy w 3 kw. 2024 roku, planowane oddanie do użytkowania w 3 kw. 2026 roku |
Udogodnienia | monitoring, teren ogrodzony, winda, miejsce do ładowania samochodów elektrycznych, pompa ciepła |
Przyroda | w okolicy inwestycji znajduje się park, las, rezerwat przyrody, góry |
Charakterystyka energetyczna nieruchomości |
|
Rezerwacja i finanse
Rodzaj własności | Odrębna własność z własnością gruntu |
|---|---|
Wysokość czynszu | planowany czynsz będzie w wysokości od 800 do 800 zł/m² (czyli od 40 216 do 40 216 zł za całość) |
Warunki rezerwacji | 10% |
Zabezpieczenie środków | Informacja u dewelopera |
Postępy i zdjęcia z budowy
Zobacz na jakim etapie budowy jest ta inwestycja
Lokalizacja inwestycji
Stacja kolejowa - Polanica-Zdrój - 2392 m
Przystanek Autobusowy - 551 m
Dojazd do centrum Kłodzka: pokaż
W pobliżu 1 km od tej inwestycji znajdują się:
2 kawiarnie i restauracje, 2 sklepy, 11 obiektów sportowych, 2 placówki medyczne, 5 placówek edukacyjnych
Przeczytaj więcej o lokalizacji
Polanica-Zdrój położona jest w województwie dolnośląskim. Leży w centralnej części Kotliny Kłodzkiej. Jest słynnym na całą Polskę miasteczkiem uzdrowiskowym. Nietypowy układ miasta nie jest żadną przeszkodą zarówno dla mieszkańców, jak i turystów, a nawet uznawany jest za jego duży atut. Polanica-Zdrój nie posiada klasycznego rynku, a w samym centrum znajduje się Park Zdrojowy, wokół którego rozbudowała się miejscowość. Położenie w malowniczej dolinie Bystrzycy Dusznickiej przyciąga każdego roku coraz więcej osób. Ponadto warto wspomnieć, że w okolicy łącznie znajduje się ok. 100 km szlaków turystycznych.
Opis oferty
Nowy 2-pokojowy apartament na sprzedaż o powierzchni 50,27 m² znajduje się w nowo budowanej inwestycji deweloperskiej Nowa Palmiarnia w Polanicy-Zdroju, ul. Zdrojowa (6.7 km od Kłodzka).
Inwestycja jest realizowana przez Moje Miejsce Development Sp. z o.o.
Cała inwestycja składa się z 1 budynku, w którym łącznie znajduje się 40 nowych apartamentów.
Na sprzedaż pozostaje 10 ofert o powierzchni od 31 do 60 m².
W budynku są 3 kondygnacje naziemne. Budynek nie posiada kondygnacji podziemnych.
Inwestycja Nowa Palmiarnia jest w trakcie budowy z planowanym na 3 kw. 2026 roku terminem oddania do użytkowania.
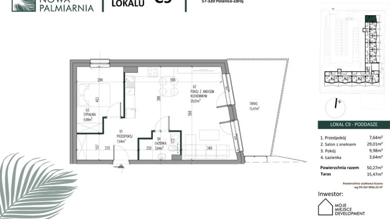
Nowy apartament o oznaczeniu C09 znajduje się na 2 piętrze i jest 1-poziomowy. Pomieszczenia mają 285 centymetrów wysokości. W apartamencie znajdują się 2 pokoje.
Okna w apartamencie wychodzą na wschód.
Wschodnia orientacja zapewnia dostęp do łagodnego porannego światła, idealnego dla rozpoczęcia dnia pełnego energii. Wnętrza pozostają jasne, ale nieprzegrzane, co sprzyja utrzymaniu komfortowej temperatury. Przebywanie w pomieszczeniu z oknami na wschód inspiruje do działania i pozytywnie wpływa na poranny rytuał.
Dla przyszłych mieszkańców Nowa Palmiarnia deweloper przewidział miejsca postojowe naziemne.
Dzięki temu przyszli właściciele nie będą musieli poszukiwać wolnej przestrzeni parkingowej.
Opis Inwestycji
Pow. dodatkowe
Niepowtarzalny klimat Polanicy-Zdroju, jej uzdrowiskowy charakter oraz położenie na granicy Gór Stołowych i Gór Bystrzyckich zainspirowały nas do stworzenia wyjątkowej inwestycji zatopionej w naturze i otoczonej zielenią.
Nowa Palmiarnia to inwestycja, w której powstaną 42 lokale użytkowe z komórkami lokatorskimi i miejscami postojowymi. Sercem inwestycji będzie wewnętrzna palmiarnia – wysoka na dwa piętra, przeszklona przestrzeń wypełniona egzotycznymi roślinami, z dużą palmą pośrodku. Jej aranżacja będzie nawiązywać do tradycyjnych palmiarni w uzdrowiskach Dolnego Śląska.
Ponadto mieszkańcy będą mieli do dyspozycji taras widokowy o powierzchni ok. 200 metrów kwadratowych, zlokalizowany na dachy inwestycji. Będzie to przestrzeń dostępna jedynie dla lokatorów Nowej Palmiarni. Z tarasu będzie rozciągał się przepiękny widok na Góry Bystrzyckie i Masyw Śnieżnika.
Nasze apartamenty to również pewna lokata kapitału dla Inwestorów, którzy oczekują wzrostu wartości posiadanej nieruchomości oraz regularnego zysku z wynajmu krótkoterminowego.
Apartament znajduje się w inwestycji Nowa Palmiarnia, w której znajdują się w sprzedaży jeszcze 4 podobne nowe apartamenty.
Moje Miejsce Development Sp. z o.o.
Strona internetowa inwestycjiAdres biura sprzedaży:
kontakt telefonicznyGodziny otwarcia biura sprzedaży:
- Poniedziałek: 09:00 - 18:00
- Wtorek: 09:00 - 18:00
- Środa: 09:00 - 18:00
- Czwartek: 09:00 - 18:00
- Piątek: 09:00 - 18:00





