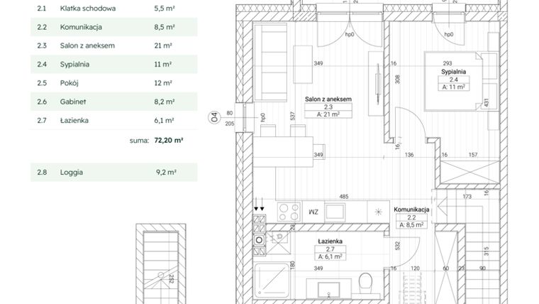
Mieszkanie na sprzedaż 4 pokoje o powierzchni 72,2 m² numer C1M2
Rezerwacja
Inwestycja:
Nefrytowa ParkDeweloper:
Metropolitan Development Sp. z o.o.
Inwestycja:
Nefrytowa ParkDeweloper:
Metropolitan Development Sp. z o.o.Rzeszów, Załęże, ul. Nefrytowa
Rzeszów, Załęże, ul. Nefrytowa
Termin oddania
3 kw. 2026
Ilość pokoi
4 pokoje
Metraż
72,2 m²
Piętro
1 piętro
Powierzchnie dodatkowe
Balkon
Kuchnia
otwarta kuchnia
Wysokość pomieszczeń
od 260 do 280 cm wysokości
Ilość poziomów
1 poziom
Oznaczenie oferty
C1M2

Raport o deweloperze
Poznaj dewelopera bliżej! Pobierz raport, w którym znajdziesz kluczowe informacje o firmie, jej doświadczeniu, nagrodach oraz aktualnych i zrealizowanych inwestycjach.
Budynek i otoczenie
Miejsca postojowe | |
|---|---|
Standard wykończenia | standard deweloperski Ogrzewanie gazowe |
Realizacja inwestycji | rozpoczęcie budowy w 2 kw. 2025 roku, planowane oddanie do użytkowania w 3 kw. 2026 roku |
Udogodnienia | informacja u dewelopera |
Przyroda | informacja u dewelopera |
Charakterystyka energetyczna nieruchomości | informacja u dewelopera |
Rezerwacja i finanse
Rodzaj własności | Odrębna własność z własnością gruntu |
|---|---|
Wysokość czynszu | informacja u dewelopera |
Warunki rezerwacji | Informacja u dewelopera |
Zabezpieczenie środków | Otwarty mieszkaniowy rachunek powierniczy |
Zdjęcia z budowy
Zobacz na jakim etapie budowy jest ta inwestycja
Lokalizacja inwestycji
Stacja kolejowa - Rzeszów Załęże - 575 m
Przystanek Autobusowy - 140 m
Dojazd do centrum: pokaż
W pobliżu 1 km od tej inwestycji znajdują się:
1 sklep, 4 obiekty sportowe, 1 placówka medyczna
Przeczytaj więcej o lokalizacji
Rzeszów to miasto w południowo-wschodniej Polsce będące stolica województwa podkarpackiego. Położony jest na Podgórzu Rzeszowskim. W skład Rzeszowa wchodzi kilkadziesiąt osiedli. Zabudowa Śródmieścia Rzeszowa pochodzi w większości z XIX wieku, pozostałe części miasta charakteryzują się przeważnie zabudową typową dla osiedli miejskich – są to bloki oraz osiedla domów jednorodzinnych czy szeregowców. Do najważniejszych zabytków Rzeszowa należy gotycki kościół farny oraz zamek z czasów Lubomirskich. Reprezentacyjną częścią miasta jest deptak 3 Maja. W Rzeszowie jest też kilka wieżowców – w 2014 roku oddano do użytku 18-piętrowy apartamentowiec Capital Towers, a w 2015 r. SkyRes Warszawska, 14-piętrowy biurowiec wraz z zapleczem mieszkalnym. W obrębie Rzeszowa znajduje się także rezerwat przyrody Lisia Góra położony nad Zbiornikiem Rzeszowskim. W mieście znajduje się również wiele ważnych obiektów sportowych oraz kulturalnych, m.in. Filharmonia Podkarpacka czy Hala Podpromie.
Opis oferty
Nowe 4-pokojowe mieszkanie na sprzedaż o powierzchni 72,2 m² znajduje się w nowo budowanej inwestycji deweloperskiej Nefrytowa Park na Załężu, ul. Nefrytowa (4.9 km od centrum Rzeszowa).
Inwestycja jest realizowana przez Metropolitan Development Sp. z o.o.
Cała inwestycja składa się z 3 budynków, w których łącznie znajdują się 32 nowe mieszkania.
Na sprzedaż pozostaje 15 ofert o powierzchni od 58 do 72 m².
W budynkach są 2 kondygnacje naziemne. Budynek nie posiada kondygnacji podziemnych.
Inwestycja Nefrytowa Park jest w trakcie budowy z planowanym na 3 kw. 2026 roku terminem oddania do użytkowania.
Nowe mieszkanie o oznaczeniu C1M2 znajduje się na 1 piętrze i jest 1-poziomowe. Pomieszczenia mają od 260 do 280 centymetrów wysokości. W mieszkaniu znajdują się 4 pokoje.
Dla przyszłych mieszkańców Nefrytowa Park deweloper przewidział miejsca postojowe naziemne.
Dzięki temu przyszli właściciele nie będą musieli poszukiwać wolnej przestrzeni parkingowej.
Opis Inwestycji
Okazyjna cena
Pow. dodatkowe
Nefrytowa Park - Twoje nowe miejsce w zielonej części miasta!
Zamieszkaj przy ul. Nefrytowej - w miejscu, które łączy komfort nowoczesnego budownictwa z bliskością natury i udogodnień miejskich.
Nefrytowa Park to kameralne osiedle zaprojektowane z myślą o funkcjonalności i komforcie życia. Nowoczesne osiedle mieszkaniowe w dzielnicy Załęże łączy bliskość natury z wygodnym dostępem do centrum miasta i głównych tras komunikacyjnych.
Zaledwie kilka minut dzieli Cię od centrum Rzeszowa oraz wjazdu na trasę S19, co zapewnia szybki dojazd do ważnych punktów miasta i okolic. W sąsiedztwie znajduje się ponad 50-hektarowy las oraz liczne ścieżki spacerowe, co czyni Nefrytową Park idealnym miejscem dla osób ceniących spokój i kontakt z naturą.
Przedsięwzięcie obejmuje trzy budynki - dwa pierwsze złożone z 5 segmentów, zaś trzeci z 6 segmentów o powierzchni od 58,36m2 do 72,20m2. Lokale oferują wysoki standard wykończenia stanu deweloperskiego z możliwością naniesienia zmian deweloperskich.
Dodatkowe udogodnienia i wykończenie:
*każde mieszkanie posiada własny ogródek lub loggię, osobne wejście oraz dwa miejsca parkingowe W CENIE,
*zastosowano ogrzewanie podłogowe na całej powierzchni mieszkania, które zapewnia nie tylko komfort, ale też energooszczędność,
*w cenie zostaną zamontowane dla Państwa rolety zewnętrzne na oknach.
Przygotowujemy również instalację pod panele fotowoltaiczne oraz klimatyzację.
Przewidziane zakończenie budowy inwestycji III kwartał 2026r.
Kupujący nie płaci 2% podatku od czynności cywilno-prawnych (PCC).
Zapraszam do kontaktu w celu uzyskania dokładnych informacji.
https://www.nefrytowapark.pl/
Mieszkanie znajduje się w inwestycji Nefrytowa Park, w której znajduje się w sprzedaży jeszcze 5 podobnych nowych mieszkań.
Metropolitan Development Sp. z o.o.
Strona internetowa inwestycjiAdres biura sprzedaży:
35-213 Rzeszów, Technologiczna 46Godziny otwarcia biura sprzedaży:
- Poniedziałek: 09:00 - 17:00
- Wtorek: 09:00 - 17:00
- Środa: 09:00 - 17:00
- Czwartek: 09:00 - 17:00
- Piątek: 09:00 - 17:00





