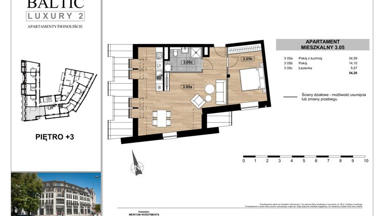
Apartament na sprzedaż 2 pokoje o powierzchni 54,26 m² numer 3.05
Inwestycja:
Baltic Luxury 2Deweloper:
Meritum Sp. z o.o.
Inwestycja:
Baltic Luxury 2Deweloper:
Meritum Sp. z o.o.Świnoujście, Plac Wolności 3
Świnoujście, Plac Wolności 3
Oddanie
Gotowe
Ilość pokoi
2 pokoje
Metraż
54,26 m²
Piętro
3 piętro
Kuchnia
otwarta kuchnia
Wysokość
od 260 do 280 cm wysokości
Poziomy
1 poziom
Oznaczenie oferty
3.05

Raport o deweloperze
Poznaj dewelopera bliżej! Pobierz raport, w którym znajdziesz kluczowe informacje o firmie, jej doświadczeniu, nagrodach oraz aktualnych i zrealizowanych inwestycjach.
Budynek i otoczenie
Miejsca postojowe | |
|---|---|
Standard wykończenia | standard deweloperski |
Realizacja inwestycji | rozpoczęcie budowy w 3 kw. 2024 roku, inwestycja została oddana do użytkowania w 4 kw. 2025 roku |
Udogodnienia | winda, klimatyzacja |
Przyroda | w okolicy inwestycji znajduje się morze |
Charakterystyka energetyczna nieruchomości | informacja u dewelopera |
Rezerwacja i finanse
Rodzaj własności | Odrębna własność z użytkowaniem wieczystym gruntu |
|---|---|
Wysokość czynszu | informacja u dewelopera |
Warunki rezerwacji | Informacja u dewelopera |
Zabezpieczenie środków | Informacja u dewelopera |
Postępy i zdjęcia z budowy
Zobacz na jakim etapie budowy jest ta inwestycja
Lokalizacja inwestycji
Stacja kolejowa - Świnoujście Port - 1144 m
Przystanek Autobusowy - 95 m
Dojazd do centrum: pokaż
W pobliżu 1 km od tej inwestycji znajdują się:
51 kawiarni i restauracji, 31 sklepów, 45 obiektów sportowych, 7 placówek medycznych, 22 placówki edukacyjne, 19 placów zabaw
Przeczytaj więcej o lokalizacji
Świnoujście, jedno z najatrakcyjniejszych miast polskiego wybrzeża, położone jest na północno-zachodnim krańcu Polski. Jest jedynym miastem w Polsce leżącym na kilkudziesięciu wyspach. Jego granice stanowią: od południa Zalew Szczeciński, od północy Morze Bałtyckie, od zachodu granica państwowa z Niemcami, zaś od strony wschodniej gmina Międzyzdroje. To właśnie dzięki swojemu wyjątkowemu położeniu Świnoujście jest miastem o wielu obliczach – z jednej strony ważnym ośrodkiem gospodarki morskiej (jednym z czterech kluczowych portów w Polsce) i bazą marynarki wojennej, z drugiej – popularnym uzdrowiskiem i miejscowością turystyczną. Świnoujście ma status miasta na prawach powiatu i jest jednym z największych miast w województwie zachodniopomorskim. Z każdym rokiem powiększa swój obszar poprzez nanoszenie piasku na plaży przez prądy morskie.
Opis oferty
Nowy 2-pokojowy apartament na sprzedaż o powierzchni 54,26 m² znajduje się w nowo budowanej inwestycji deweloperskiej Baltic Luxury 2 w Świnoujściu
Inwestycja jest realizowana przez Meritum Sp. z o.o.
Cała inwestycja składa się z 1 budynku, w którym łącznie znajdują się 43 nowe apartamenty.
Na sprzedaż pozostaje 30 ofert o powierzchni od 30 do 78 m².
W budynku jest 5 kondygnacji naziemnych oraz 1 kondygnacja podziemna.
Inwestycja Baltic Luxury 2 została wybudowana i oddana do użytkowania w 4 kw. 2025 roku.
Nowy apartament o oznaczeniu 3.05 znajduje się na 3 piętrze i jest 1-poziomowy. Pomieszczenia mają od 260 do 280 centymetrów wysokości. W apartamencie znajdują się 2 pokoje.
Dla przyszłych mieszkańców Baltic Luxury 2 deweloper przewidział miejsca postojowe podziemne.
Dzięki temu przyszli właściciele nie będą musieli poszukiwać wolnej przestrzeni parkingowej. Dodatkowo, miejsce postojowe w garażu podziemnym zabezpiecza przed niekorzystnymi warunkami atmosferycznymi.
Opis Inwestycji
Tereny zielone
Apartamenty inwestycyjne w sercu Świnoujścia, oferujące nowoczesne i inwestycyjne opcje, podkreślające wysoki standard oraz potencjał zysków finansowych. Doskonałe połączenie stylu, elegancji i wyrafinowanego designu w prestiżowej lokalizacji, zapewniającej niepowtarzalne doświadczenie mieszkalne oraz atrakcyjną możliwość generowania stałego przychodu z wynajmu.
Baltic Luxury 2 ma do zaoferowania wiele udogodnień potrzebnych każdemu mieszkańcowi apartamentu na sprzedaż, zapewniając najwyższy standard w zakresie nowoczesnych rozwiązań architektonicznych. Właściciele apartamentów znajdą tutaj wszystko co potrzebne do komfortowego życia na wysokim poziomie. Baltic Luxury 2 to także doskonałe miejsce do bezpiecznych inwestycji.
Apartament znajduje się w inwestycji Baltic Luxury 2, w której znajduje się w sprzedaży jeszcze 16 podobnych nowych apartamentów.
Meritum Sp. z o.o.
Strona internetowa inwestycjiAdres biura sprzedaży:
Szczecin 71-687 ul. Cienista 18




