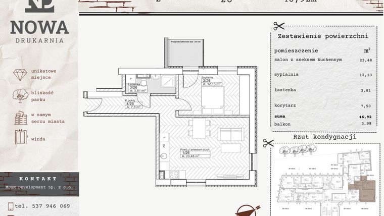
Mieszkanie na sprzedaż 2 pokoje o powierzchni 46,92 m² numer M26
Inwestycja:
Nowa DrukarniaDeweloper:
MDGM Development Sp. z o.o.
Inwestycja:
Nowa DrukarniaDeweloper:
MDGM Development Sp. z o.o.Stargard, ul. Generała Władysława Andersa 3
Stargard, ul. Generała Władysława Andersa 3
Oddanie
4 kw. 2026
Ilość pokoi
2 pokoje
Metraż
46,92 m²
Piętro
2 piętro
Dodatkowe
Balkon
Kuchnia
otwarta kuchnia
Wysokość
od 260 do 280 cm wysokości
Poziomy
1 poziom
Oznaczenie oferty
M26

Raport o deweloperze
Poznaj dewelopera bliżej! Pobierz raport, w którym znajdziesz kluczowe informacje o firmie, jej doświadczeniu, nagrodach oraz aktualnych i zrealizowanych inwestycjach.
Budynek i otoczenie
Miejsca postojowe | |
|---|---|
Standard wykończenia | standard deweloperski Ogrzewanie podłogowe, gazowe |
Realizacja inwestycji | oddanie do użytkowania w 4 kw. 2026 roku |
Udogodnienia | teren ogrodzony, winda, pompa ciepła |
Przyroda | w okolicy inwestycji znajduje się park |
Charakterystyka energetyczna nieruchomości | informacja u dewelopera |
Rezerwacja i finanse
Rodzaj własności | Odrębna własność z własnością gruntu |
|---|---|
Wysokość czynszu | informacja u dewelopera |
Warunki rezerwacji | 1% |
Zabezpieczenie środków | Otwarty mieszkaniowy rachunek powierniczy i gwarancję bankową |
Postępy i zdjęcia z budowy
Zobacz na jakim etapie budowy jest ta inwestycja
Lokalizacja inwestycji
Stacja kolejowa - Stargard - 1406 m
Przystanek Autobusowy - 78 m
Dojazd do centrum Szczecina: pokaż
W pobliżu 1 km od tej inwestycji znajdują się:
15 kawiarni i restauracji, 16 sklepów, 8 obiektów sportowych, 3 placówki medyczne, 33 placówki edukacyjne, 8 placów zabaw
Przeczytaj więcej o lokalizacji
Położenie w sercu Stargardu – obok parku i Starego Miasta Lokalizacja łączy dla Ciebie to, co najlepsze: miejską wygodę i spokój zieleni. Sklepy, apteki, kawiarnie i punkty usługowe masz w zasięgu kilku minut spacerem – codzienne sprawy załatwiasz szybko i bez stresu. Jednocześnie, zaledwie 2 minuty dzielą Cię od parku Jagiellońskiego – idealnego miejsca na poranny bieg, wieczorny spacer z psem czy weekendowy relaks z rodziną. To lokalizacja, która sprawia, że Twoje codzienne życie jest wygodne, przyjemne i pełne możliwości.
Stargard jest miastem leżącym w woj. zachodniopomorskim, nad rzeką Iną. Jego powierzchnia wynosi 48,10 km2, a mieszka tu ok. 70 000 osób. Ciekawe warunki geograficzne zapewnia mu położenie na styku Niziny Szczecińskiej i Pojezierza Szczecińskiego. Centrum miasta stanowią głównie budynki zabytkowe zaadaptowane na nowoczesne, bardziej funkcjonalne obiekty, a duże natężenie historycznych budowli sprawiło, że Stargard należy do Europejskiego Szlaku Gotyku Ceglanego. Stargard ma rozwiniętą infrastrukturę oświatową. Działa tu szpital i przychodnie lekarskie. Miasto sprzyja rekreacji – wyznaczonych jest 7 szlaków rowerowych, 5 pieszych i jeden kajakowy prowadzący rzeką Iną.
Opis oferty
Nowe 2-pokojowe mieszkanie na sprzedaż o powierzchni 46,92 m² znajduje się w nowo wybudowanej inwestycji deweloperskiej Nowa Drukarnia w Stargardzie, ul. Generała Władysława Andersa 3 (16.3 km od Szczecina).
Inwestycja została zrealizowana przez MDGM Development Sp. z o.o.
Cała inwestycja składa się z 1 budynku, w którym łącznie znajduje się 27 nowych mieszkań.
Na sprzedaż pozostaje 14 ofert o powierzchni od 26 do 49 m².
W budynku są 3 kondygnacje naziemne. Budynek nie posiada kondygnacji podziemnych.
Inwestycja Nowa Drukarnia jest w trakcie budowy z planowanym na 4 kw. 2026 roku terminem oddania do użytkowania.
Nowe mieszkanie o oznaczeniu M26 znajduje się na 2 piętrze i jest 1-poziomowe. Pomieszczenia mają od 260 do 280 centymetrów wysokości. W mieszkaniu znajdują się 2 pokoje.
Dla przyszłych mieszkańców Nowa Drukarnia deweloper przewidział miejsca postojowe naziemne.
Dzięki temu przyszli właściciele nie będą musieli poszukiwać wolnej przestrzeni parkingowej.
Opis Inwestycji
Tereny zielone
Pow. dodatkowe
Nowoczesna przestrzeń mieszkaniowa w Stargardzie!
Dawna drukarnia, niegdyś tętniąca życiem i historiami zapisanymi na kartach, zyskuje drugie życie.
Przekształcamy ją w nowoczesną przestrzeń mieszkaniową, która łączy ducha przeszłości z komfortem i funkcjonalnością współczesnej architektury.
Kameralna skala – tylko 27 mieszkań na 3 kondygnacjach
Mniejsza skala to dla Ciebie większy komfort i prywatność – bez anonimowości dużych bloków, z poczuciem ekskluzywności i przyjaznych relacji sąsiedzkich.
Prywatne ogródki przy lokalach na parterze
Dodatek, który wyróżnia Twoje mieszkanie – miejsce do relaksu, spotkań czy pracy na świeżym powietrzu, co zwiększa wartość i atrakcyjność Twojego domu.
Loftowy charakter z industrialnym klimatem
Cegła, stal, wysokie sufity i duże okna – Twoje mieszkanie to nie standardowy wykończony blok, ale przestrzeń z charakterem, która inspiruje i wyróżnia się na tle innych. Mieszkasz w miejscu, które ma duszę.
Mieszkanie znajduje się w inwestycji Nowa Drukarnia, w której znajduje się w sprzedaży jeszcze 10 podobnych nowych mieszkań.
MDGM Development Sp. z o.o.
Strona internetowa inwestycjiAdres biura sprzedaży:
ul. Santocka 39, Hala P, Szczecin 71-083Godziny otwarcia biura sprzedaży:
- Poniedziałek: 08:00 - 16:00
- Wtorek: 08:00 - 16:00
- Środa: 08:00 - 16:00
- Czwartek: 08:00 - 16:00
- Piątek: 08:00 - 16:00





