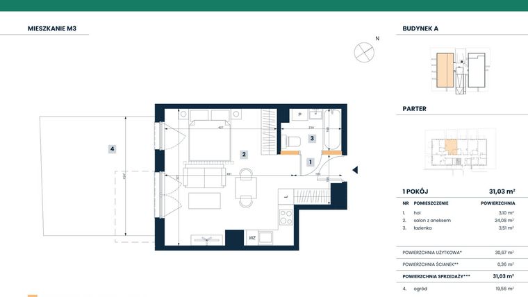
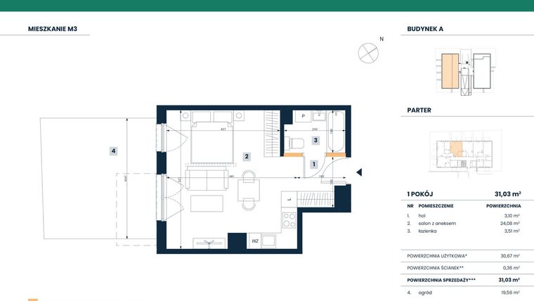
Mieszkanie na sprzedaż 2 pokoje o powierzchni 30,67 m² numer M03
Promocja
Inwestycja:
RenetaDeweloper:
Masovia Projekt 1 Sp. z o.o.
Inwestycja:
RenetaDeweloper:
Masovia Projekt 1 Sp. z o.o.Warszawa, Włochy, Raków, ul. Nasienna 11
Warszawa, Włochy, Raków, ul. Nasienna 11
Promocje
Promocja
Reneta – Promocja wiosenna: wybrane mieszkania taniej + miejsce postojowe tylko 39 000 zł
Skorzystaj z Promocji Wiosennej w inwestycji Reneta. Wybrane mieszkania w obniżonych cenach, a miejsce postojowe dostępne w promocyjnej cenie 39 000 zł. Oferta ograniczona czasowo i dotyczy wybranych lokali.
Termin oddania
2 kw. 2027
Ilość pokoi
2 pokoje
Metraż
30,67 m²
Piętro
Parter
Strona świata
zachód, południe
Powierzchnie dodatkowe
Ogródek
Kuchnia
otwarta kuchnia
Wysokość pomieszczeń
265 cm wysokości
Ilość poziomów
1 poziom
Oznaczenie oferty
M03

Raport o deweloperze
Poznaj dewelopera bliżej! Pobierz raport, w którym znajdziesz kluczowe informacje o firmie, jej doświadczeniu, nagrodach oraz aktualnych i zrealizowanych inwestycjach.
Budynek i otoczenie
Miejsca postojowe | |
|---|---|
Komórki lokatorskie | dostępne (4): nieobowiązkowy zakup; od 4,69 do 5,97 m2; 4 500 zł/m2 |
Standard wykończenia | standard deweloperski drzwi antywłamaniowe
kontrola dostępu Ogrzewanie kotłownia gazowa |
Realizacja inwestycji | rozpoczęcie budowy w 3 kw. 2025 roku, planowane oddanie do użytkowania w 2 kw. 2027 roku |
Udogodnienia | monitoring, winda, instalacja fotowoltaiczna, miejsce do ładowania samochodów elektrycznych, TV kablowa, internet, przystosowane dla niepełnosprawnych, teren ogrodzony |
Przyroda | informacja u dewelopera |
Charakterystyka energetyczna nieruchomości | informacja u dewelopera |
Rezerwacja i finanse
Rodzaj własności | Odrębna własność z własnością gruntu |
|---|---|
Wysokość czynszu | informacja u dewelopera |
Warunki rezerwacji | umowa rezerwacyjna + opłata rezerwacyjna w wys. 1% wartości umowy |
Zabezpieczenie środków | Otwarty mieszkaniowy rachunek powierniczy |

Zdjęcia z budowy i widok 3D
Zobacz na jakim etapie budowy jest ta inwestycja
Lokalizacja inwestycji
Stacja kolejowa - Warszawa Raków - 664 m
Przystanek Tramwajowy - 916 m
Przystanek Autobusowy - 288 m
Dojazd do centrum: pokaż
W pobliżu 1 km od tej inwestycji znajdują się:
32 kawiarnie i restauracje, 14 sklepów, 9 obiektów sportowych, 2 placówki medyczne, 6 placówek edukacyjnych, 19 placów zabaw
Przeczytaj więcej o lokalizacji
Włochy to warszawska dzielnica o powierzchni ok. 29 km2, która położona jest na południowo-zachodnim krańcu miasta. Charakterystyczną częścią obszaru jest największy w Polsce port lotniczy Warszawa-Okęcie. Ze względu na obecność lotniska występuje tutaj niska zabudowa: nowoczesne domy wielorodzinne oraz budynki biurowo-usługowe, będące siedzibami znanych firm, np. Avon, Philips, Microsoft, Mercedes-Benz. Włochy zamieszkuje obecnie ok. 39 tys. osób, lecz intensywny rozwój osiedli mieszkaniowych powoduje wzrost liczby ludności. W obrębie dzielnicy znajdują się przestrzenie zielonego krajobrazu: Park Kombatantów, Park Staw Koziorożca, Park Stawy Cietrzewia oraz kilka zieleńców. Tereny zielone wyposażone są w place zabaw, siłownie, place wypoczynkowe i pomosty dla wędkarzy. Pociągi Szybkiej Kolei Miejskiej i Warszawskiej Kolei Dojazdowej pozwalają dojechać do centrum w czasie 15-20 minut. Ważnymi trasami wylotowymi są Al. Jerozolimskie i Al. Krakowska, a arteriami miejskimi – 2 obwodnice.
Opis oferty
Nowe 2-pokojowe mieszkanie na sprzedaż o powierzchni 30,67 m² znajduje się w nowo budowanej inwestycji deweloperskiej Reneta na Rakowie, ul. Nasienna 11 (6.4 km od centrum Warszawy).
Inwestycja jest realizowana przez Masovia Projekt 1 Sp. z o.o.
Cała inwestycja składa się z 1 budynku, w którym łącznie znajdują się 33 nowe mieszkania.
Na sprzedaż pozostają 24 oferty o powierzchni od 27 do 73 m².
W budynku są 3 kondygnacje naziemne oraz 1 kondygnacja podziemna.
Inwestycja Reneta jest w trakcie budowy z planowanym na 2 kw. 2027 roku terminem oddania do użytkowania.
Nowe mieszkanie o oznaczeniu M03 znajduje się na parterze i jest 1-poziomowe. Pomieszczenia mają 265 centymetrów wysokości. W mieszkaniu znajdują się 2 pokoje.
Do mieszkania przewidziano możliwość zakupu komórki lokatorskiej, którą można zagospodarować na spiżarnię, warsztat czy składzik.
Okna w mieszkaniu wychodzą na zachód, południe.
Okna wychodzące na południe gwarantują maksymalną ilość naturalnego światła, co czyni wnętrza jasnymi i ciepłymi. Dodatkowo południowa ekspozycja pomaga obniżyć koszty ogrzewania w zimie. Okna na południe są idealne dla osób pragnących cieszyć się jasnym otoczeniem, które sprzyja dobremu samopoczuciu oraz pozytywnej energii.
Zachodnia ekspozycja to gwarancja intensywnego popołudniowego światła, które nadaje wnętrzom przytulności i ciepła. Idealne dla miłośników słonecznych wieczorów, którzy pragną cieszyć się pięknymi zachodami słońca we własnym domu. Zachodnie światło podkreśla kolory i faktury w aranżacji wnętrz, tworząc atmosferę sprzyjającą relaksowi po długim dniu.
Dla przyszłych mieszkańców Reneta deweloper przewidział miejsca postojowe podziemne.
Dzięki temu przyszli właściciele nie będą musieli poszukiwać wolnej przestrzeni parkingowej. Dodatkowo, miejsce postojowe w garażu podziemnym zabezpiecza przed niekorzystnymi warunkami atmosferycznymi.
Opis Inwestycji
Pow. dodatkowe
Wyobraź sobie miejsce, gdzie codzienność nabiera wyjątkowego smaku – w otoczeniu zieleni, ciszy i kameralnej zabudowy, a jednocześnie z szybkim dojazdem do centrum Warszawy i Służewca. Tak właśnie powstaje Reneta – nowoczesna, butikowa inwestycja przy ul. Nasiennej, inspirowana tradycją dawnych sadów i szlachetną odmianą jabłoni.
To tylko 33 funkcjonalne mieszkania w dwóch eleganckich budynkach – każde z balkonem, ogródkiem lub tarasem. Przemyślane układy i architektura nawiązująca do natury sprawiają, że Reneta to miejsce stworzone dla tych, którzy cenią komfort, prywatność i perspektywę wzrostu wartości swojej inwestycji.
Dlaczego warto wybrać Renetę?
• Kameralna skala – tylko 33 mieszkania w dwóch niewielkich budynkach, bez tłumów i z ograniczonym dostępem z zewnątrz
• Zielone otoczenie – inwestycja zlokalizowana przy niewielkiej jednokierunkowej ulicy otoczonej zielenią, która będzie pierwszym woonerfem na Włochach (a drugim w Warszawie)
• Historia miejsca – dawne sady, które dziś stają się nowoczesną enklawą spokoju
• Doskonała lokalizacja – szybki dojazd do centrum i biznesowego Służewca
• Niskie koszty utrzymania - dzięki energooszczędnym rozwiązaniom i zastosowaniu fotovoltaiki
• Przemyślana architektura – ogródki, loggie, balkony i tarasy w każdym mieszkaniu
• Bezpieczeństwo i komfort – ograniczony ruch uliczny, otoczenie domów jednorodzinnych zapewnione przez Miejscowy Plan Zagospodarowania Przestrzennego, monitoring wizyjny części wspólnych
• Idealna propozycja dla młodych profesjonalistów, osób kupujących pierwsze mieszkanie oraz inwestorów szukających lokalizacji z potencjałem
Mieszkanie znajduje się w inwestycji Reneta, w której znajduje się w sprzedaży jeszcze 12 podobnych nowych mieszkań.





