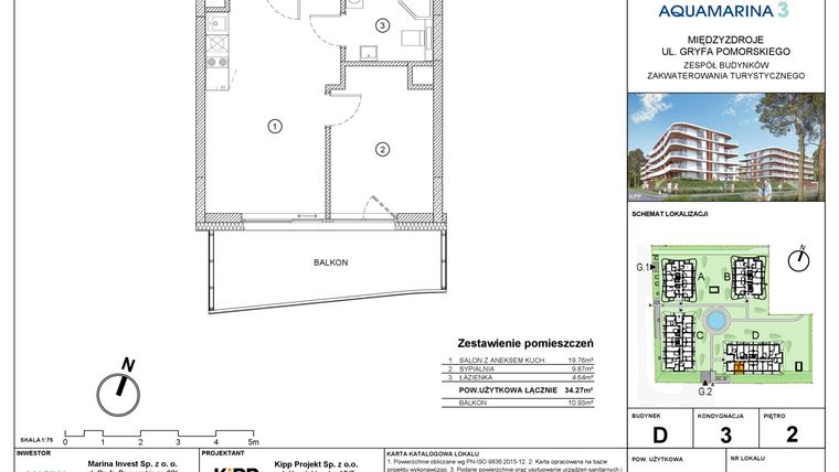
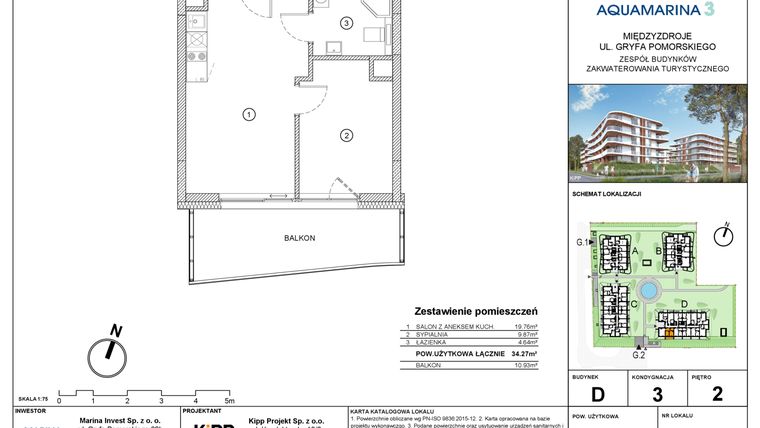
Apartament na sprzedaż 2 pokoje o powierzchni 34,27 m² numer D3.02
Promocja
Inwestycja:
Aquamarina 3Deweloper:
Marina Invest Sp. z o.o.
Inwestycja:
Aquamarina 3Deweloper:
Marina Invest Sp. z o.o.Międzyzdroje, ul. Gryfa Pomorskiego
Międzyzdroje, ul. Gryfa Pomorskiego
Termin oddania
2 kw. 2027
Ilość pokoi
2 pokoje
Metraż
34,27 m²
Piętro
2 piętro
Powierzchnie dodatkowe
Balkon
Kuchnia
otwarta kuchnia
Wysokość pomieszczeń
270 cm wysokości
Ilość poziomów
1 poziom
Oznaczenie oferty
D3.02

Raport o deweloperze
Poznaj dewelopera bliżej! Pobierz raport, w którym znajdziesz kluczowe informacje o firmie, jej doświadczeniu, nagrodach oraz aktualnych i zrealizowanych inwestycjach.
Budynek i otoczenie
Miejsca postojowe | |
|---|---|
Standard wykończenia | wykończenie pod klucz Ogrzewanie gazowe |
Realizacja inwestycji | rozpoczęcie budowy w 2 kw. 2025 roku, planowane oddanie do użytkowania w 2 kw. 2027 roku |
Udogodnienia | ochrona całodobowa, monitoring, teren ogrodzony, usługi w budynku, winda, miejsce do ładowania samochodów elektrycznych |
Przyroda | w okolicy inwestycji znajduje się las, morze |
Charakterystyka energetyczna nieruchomości | informacja u dewelopera |
Rezerwacja i finanse
Rodzaj własności | Odrębna własność z własnością gruntu |
|---|---|
Wysokość czynszu | informacja u dewelopera |
Warunki rezerwacji | Informacja u dewelopera |
Zabezpieczenie środków | Informacja u dewelopera |
Zdjęcia z budowy
Zobacz na jakim etapie budowy jest ta inwestycja
Lokalizacja inwestycji
Stacja kolejowa - Lubiewo - 1030 m
Przystanek Autobusowy - 678 m
Dojazd do centrum: pokaż
W pobliżu 1 km od tej inwestycji znajdują się:
10 kawiarni i restauracji, 5 sklepów, 19 obiektów sportowych, 6 placów zabaw
Przeczytaj więcej o lokalizacji
Międzyzdroje to jedna z popularniejszych miejscowości nadmorskich w Polsce. Leży na wyspie Wolin w powiecie kamieńskim na Pomorzu Zachodnim i bezpośrednio sąsiaduje z Wolińskim Parkiem Narodowym oraz z Bałtykiem. Od strony nadmorskiej zabudowa ma charakter historyczno-turystyczny, znajdują się tu główne atrakcje miejscowości. Pozostała część to obszar mieszkalny przeplatany budynkami usługowymi i najważniejszymi instytucjami. W Międzyzdrojach znajdują się także zakłady opieki zdrowotnej. Dzieci i młodzież mają dostęp do trzech placówek oświatowych. Jest tu ośrodek szkoleniowo-wypoczynkowy z boiskami i kortami tenisowymi. Działa kino, salon gier i planetarium.
Opis oferty
Nowy 2-pokojowy apartament na sprzedaż o powierzchni 34,27 m² znajduje się w nowo budowanej inwestycji deweloperskiej Aquamarina 3 w Międzyzdrojach, ul. Gryfa Pomorskiego (0.8 km od centrum Międzyzdrojów).
Inwestycja jest realizowana przez Marina Invest Sp. z o.o.
Cała inwestycja składa się z 4 budynków, w których łącznie znajduje się 199 nowych apartamentów.
Na sprzedaż pozostaje 19 ofert o powierzchni od 24 do 89 m².
W budynkach jest 5 kondygnacji naziemnych oraz 1 kondygnacja podziemna.
Inwestycja Aquamarina 3 jest w trakcie budowy z planowanym na 2 kw. 2027 roku terminem oddania do użytkowania.
Nowy apartament o oznaczeniu D3.02 znajduje się na 2 piętrze i jest 1-poziomowy. Pomieszczenia mają 270 centymetrów wysokości. W apartamencie znajdują się 2 pokoje.
Dla przyszłych mieszkańców Aquamarina 3 deweloper przewidział miejsca postojowe podziemne.
Dzięki temu przyszli właściciele nie będą musieli poszukiwać wolnej przestrzeni parkingowej. Dodatkowo, miejsce postojowe w garażu podziemnym zabezpiecza przed niekorzystnymi warunkami atmosferycznymi.
Opis Inwestycji
Pow. dodatkowe
Nowa inwestycja w harmonii z naturą - Aquamarina 3 w Międzyzdrojach
Aquamarina 3 to wyjątkowy projekt łączący idealną przestrzeń do wypoczynku w bezkonkurencyjnej lokalizacji oraz wygodną inwestycję.
Zlokalizowana w topowym kurorcie o ogromnym potencjale turystycznym. W najbardziej naturalnej, zachodniej części Międzyzdrojów, tuż przy wydmach, plaży i terenach Natura 2000, gdzie bliskość natury przynosi wytchnienie od codzienności i turystycznego zgiełku. W odległości jedynie 15 min spacerem od centrum kurortu.
Projekt zakłada 200 lokali w 4 budynkach w niskiej zabudowie z garażem podziemnym. Apartamenty 1-,2-,3-pokojowe w najbardziej pożądanych metrażach - od 23 do 89 m2 wykończone w standardzie pod klucz. Istnieje możliwość zamówienia kompletnego wyposażenia apartamentu, usługa jest dodatkowo płatna, jednak w sytuacji zakupu lokalu pod inwestycję, znacznie przyspiesza przekazanie go do najmu.
Aquamarina 3 w Międzyzdrojach to idealne miejsce do inwestowania i czerpania korzyści z wynajmu. Od ponad 15 lat zapewniamy kompleksową obsługę zarządzania oraz administrowania powierzonymi apartamentami. Nasz wykwalifikowany zespół zarządza ponad 400 apartamentami w Międzyzdrojach, Świnoujściu i Dąbkach. Doświadczenie i kompetencje Mariny Invest jako operatora najmu znajdują potwierdzenie w dobrych relacjach z naszymi Klientami i stałym wzroście bazy wypoczywających gości. Obiekty AQUAMARINA to miejsca które przyciągają turystów z Polski i Niemiec przez cały rok.
Lokale sprzedawane ze stawką VAT 23%. Cena apartamentu uwzględnia wykończenie w standardzie pod klucz, obejmujące: umeblowany aneks kuchenny wyposażony w sprzęty AGD, wykończoną łazienkę, podłogi, drzwi wewnętrzne i inne elementy zgodne ze standardem wykonania.
Przedstawione w niniejszym materiale wizualizacje inwestycji i wnętrz oraz prezentowane na nich elementy wykończenia i wyposażenia wnętrz jak meble, dodatki, sprzęt AGD itp. mają wyłącznie charakter poglądowy, nie stanowiąc oferty handlowej w rozumieniu art. 66 oraz następnych kodeksu cywilnego ani zobowiązania umownego i mogą ulec zmianie.
Apartament znajduje się w inwestycji Aquamarina 3, w której znajduje się w sprzedaży jeszcze 68 podobnych nowych apartamentów.
Marina Invest Sp. z o.o.
Strona internetowa inwestycjiAdres biura sprzedaży:
MiędzyzdrojeGodziny otwarcia biura sprzedaży:
- Poniedziałek: 08:00 - 17:00
- Wtorek: 08:00 - 17:00
- Środa: 08:00 - 17:00
- Czwartek: 08:00 - 17:00
- Piątek: 08:00 - 17:00





