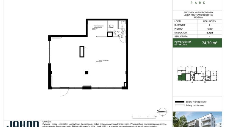
Lokal użytkowy na sprzedaż 1 pokój o powierzchni 74,94 m² numer 2.AU2
Inwestycja:
Mosina ParkDeweloper:
Jakon Sp. z o.o.
Inwestycja:
Mosina ParkDeweloper:
Jakon Sp. z o.o.Mosina, ul. Krotowskiego
Mosina, ul. Krotowskiego
Termin oddania
Gotowe
Ilość pokoi
1 pokój
Metraż
74,94 m²
Piętro
Parter
Strona świata
wschód, południe
Wysokość pomieszczeń
od 260 do 280 cm wysokości
Ilość poziomów
1 poziom
Oznaczenie oferty
2.AU2

Raport o deweloperze
Poznaj dewelopera bliżej! Pobierz raport, w którym znajdziesz kluczowe informacje o firmie, jej doświadczeniu, nagrodach oraz aktualnych i zrealizowanych inwestycjach.
Budynek i otoczenie
Miejsca postojowe | |
|---|---|
Standard wykończenia | standard deweloperski Ogrzewanie centralne, gazowe |
Realizacja inwestycji | rozpoczęcie budowy w 4 kw. 2023 roku, inwestycja została oddana do użytkowania w 3 kw. 2025 roku |
Udogodnienia | monitoring, usługi w budynku, winda |
Przyroda | w okolicy inwestycji znajduje się park |
Charakterystyka energetyczna nieruchomości |
|
Rezerwacja i finanse
Rodzaj własności | Odrębna własność z własnością gruntu |
|---|---|
Wysokość czynszu | informacja u dewelopera |
Warunki rezerwacji | umowa rezerwacyjna |
Zabezpieczenie środków | Otwarty mieszkaniowy rachunek powierniczy |
Zdjęcia z budowy
Zobacz na jakim etapie budowy jest ta inwestycja
Lokalizacja inwestycji
Stacja kolejowa - Mosina Pożegowo - 364 m
Przystanek Autobusowy - 240 m
Dojazd do centrum Poznania: pokaż
W pobliżu 1 km od tej inwestycji znajdują się:
10 kawiarni i restauracji, 30 sklepów, 11 obiektów sportowych, 5 placówek medycznych, 11 placówek edukacyjnych, 6 placów zabaw
Przeczytaj więcej o lokalizacji
Mosina to miasto usytuowane w południowej części powiatu poznańskiego i oddalone o ok. 22 km od stolicy Wielkopolski. Przez miasto przepływa dopływ Warty – Kanał Mosiński, zaś o walorach pejzażowych okolic decydują jeziora: Góreckie, Dymaczewskie i Budzyńskie, kąpielisko Glinianki oraz tereny: Wielkopolskiego Parku Narodowego i Rogalińskiego Parku Krajobrazowego. Miasto obejmuje obszar o powierzchni prawie 14 km2 i odznacza się oryginalnym średniowiecznym układem przestrzennym z czworobocznym rynkiem, zabytkowymi kamienicami i wąskimi uliczkami. Liczba ok. 12 tys. mieszkańców stale wzrasta, toteż intensywnie rozwija się nowe budownictwo mieszkaniowe w postaci domów jednorodzinnych i niskich bloków. W mieście znajduje się ośrodek kultury, Izba Muzealna, Galeria Miejska oraz Ośrodek Sportu i Rekreacji, a nieopodal – kompleksy pałacowe w Rogalinie i Kórniku.
Opis oferty
Nowy lokal użytkowy na sprzedaż o powierzchni 74,94 m² znajduje się w nowo budowanej inwestycji deweloperskiej Mosina Park w Mosinie, ul. Krotowskiego (9.9 km od Poznania).
Inwestycja jest realizowana przez Jakon Sp. z o.o.
Cała inwestycja składa się z 1 budynku, w którym łącznie znajdują się 11 nowych lokali użytkowych.
Budynek posiada 5 kondygnacji naziemnych oraz nie posiada kondygnacji podziemnych.
Inwestycja Mosina Park została wybudowana i oddana do użytkowania w 3 kw. 2025 roku.
Lokal użytkowy o oznaczeniu 2.AU2 znajduje się na parterze budynku, a wysokość pomieszczeń wynosi od 260 do 280 cm.
Dla przyszłych właścicieli Jakon Sp. z o.o. przewidział: miejsca postojowe naziemne.
Opis Inwestycji
Kameralny budynek
Prezentujemy Państwu naszą, nową ofertę mieszkaniową w Mosinie. Wielorodzinny budynek zostanie zlokalizowany w sąsiedztwie dwóch parków: Wielkopolskiego Parku Narodowego i Rogalińskiego Parku Krajobrazowego. Pięć kondygnacji, na które składa się 37 lokali mieszkalnych i 12 lokali użytkowych na poziomie parteru. Do dyspozycji są lokale mieszkalne dwu-, trzy- i czteropokojowe o powierzchni od 37,83 m2 do 72,99 m2. Każdy z nich ma balkon. Funkcjonale układy, bliskość terenów zielonych i obiektów handlowo- usługowej to niewątpliwe atuty inwestycji. Dodatkowym udogodnieniem są windy zamontowane w każdej z klatek, wózkarnia i dostępność miejsc postojowych zewnętrznych.
Lokale usługowe
Metraż lokali usługowych od 23,18 m2 do 64,70 m2 sama część usługowa, do tego pomieszczenie pomocnicze, przedsionek i WC.
Jakon Sp. z o.o.
Strona internetowa inwestycjiAdres biura sprzedaży:
ul. Dobrzyckiego 4, PoznańGodziny otwarcia biura sprzedaży:
- Poniedziałek: 07:30 - 16:00
- Wtorek: 07:30 - 16:00
- Środa: 07:30 - 16:00
- Czwartek: 07:30 - 16:00
- Piątek: 07:30 - 16:00





