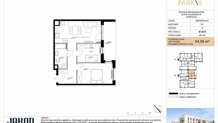
Mieszkanie na sprzedaż 3 pokoje o powierzchni 54,59 m² numer B1.B19
Inwestycja:
Merano Park IIDeweloper:
Jakon Sp. z o.o.
Inwestycja:
Merano Park IIDeweloper:
Jakon Sp. z o.o.wolsztyński, Karpicko, ul. Klonowa
wolsztyński, Karpicko, ul. Klonowa
Termin oddania
Gotowe
Ilość pokoi
3 pokoje
Metraż
54,59 m²
Piętro
2 piętro
Strona świata
wschód, południe
Kuchnia
otwarta kuchnia
Wysokość pomieszczeń
270 cm wysokości
Ilość poziomów
1 poziom
Oznaczenie oferty
B1.B19

Raport o deweloperze
Poznaj dewelopera bliżej! Pobierz raport, w którym znajdziesz kluczowe informacje o firmie, jej doświadczeniu, nagrodach oraz aktualnych i zrealizowanych inwestycjach.
Budynek i otoczenie
Miejsca postojowe | |
|---|---|
Komórki lokatorskie | dostępne (4): od 2,8 m2 |
Standard wykończenia | standard deweloperski Ogrzewanie gazowe |
Realizacja inwestycji | rozpoczęcie budowy w 3 kw. 2023 roku, inwestycja została oddana do użytkowania w 2 kw. 2025 roku |
Udogodnienia | plac zabaw, teren ogrodzony |
Przyroda | w okolicy inwestycji znajduje się jezioro |
Charakterystyka energetyczna nieruchomości |
|
Rezerwacja i finanse
Rodzaj własności | Odrębna własność z własnością gruntu |
|---|---|
Wysokość czynszu | informacja u dewelopera |
Warunki rezerwacji | umowa rezerwacyjna, wpłata 2000 zł |
Zabezpieczenie środków | Otwarty mieszkaniowy rachunek powierniczy |
Zdjęcia z budowy
Zobacz na jakim etapie budowy jest ta inwestycja
Lokalizacja inwestycji
Stacja kolejowa - Wolsztyn - 1971 m
Przystanek Autobusowy - 956 m
Dojazd do centrum Zielonej Góry: pokaż
W pobliżu 1 km od tej inwestycji znajdują się:
1 kawiarnia lub restauracja, 6 sklepów, 9 obiektów sportowych, 2 placówki medyczne, 1 plac zabaw
Przeczytaj więcej o lokalizacji
Województwo wielkopolskie - jedna z szesnastu jednostek administracyjnych Polski ze stolicą w Poznaniu, które jest siedzibą wojewody oraz władz samorządu województwa. Wielkopolskie to drugie województwo w kraju pod względem powierzchni oraz trzecie pod względem liczby ludności. W regionie tym przeważają tereny wybitnie nizinne, średnia wysokość wynosi 101,1 m.n.p.m. Najniższym punktem jest obszar znajdujący się w dolinie Warty, u ujścia Noteci - wynosi -21 m.p.p.m., zaś najwyższym wierzchołek Kobylej Góry - jego wysokość wynosi 284 m.n.p.m.
Opis oferty
Nowe 3-pokojowe mieszkanie na sprzedaż o powierzchni 54,59 m² znajduje się w nowo budowanej inwestycji deweloperskiej Merano Park II w Karpicko, ul. Klonowa (36.3 km od Zielonej Góry).
Inwestycja jest realizowana przez Jakon Sp. z o.o.
Cała inwestycja składa się z 3 budynków, w których łącznie znajdują się 23 nowe mieszkania.
Na sprzedaż pozostają 32 oferty o powierzchni od 52 do 71 m².
W budynkach są 3 kondygnacje naziemne. Budynek nie posiada kondygnacji podziemnych.
Inwestycja Merano Park II została wybudowana i oddana do użytkowania w 2 kw. 2025 roku.
Nowe mieszkanie o oznaczeniu B1.B19 znajduje się na 2 piętrze i jest 1-poziomowe. Pomieszczenia mają 270 centymetrów wysokości. W mieszkaniu znajdują się 3 pokoje.
Do mieszkania przewidziano możliwość zakupu komórki lokatorskiej, którą można zagospodarować na spiżarnię, warsztat czy składzik.
Okna w mieszkaniu wychodzą na wschód, południe.
Okna wychodzące na południe gwarantują maksymalną ilość naturalnego światła, co czyni wnętrza jasnymi i ciepłymi. Dodatkowo południowa ekspozycja pomaga obniżyć koszty ogrzewania w zimie. Okna na południe są idealne dla osób pragnących cieszyć się jasnym otoczeniem, które sprzyja dobremu samopoczuciu oraz pozytywnej energii.
Wschodnia orientacja zapewnia dostęp do łagodnego porannego światła, idealnego dla rozpoczęcia dnia pełnego energii. Wnętrza pozostają jasne, ale nieprzegrzane, co sprzyja utrzymaniu komfortowej temperatury. Przebywanie w pomieszczeniu z oknami na wschód inspiruje do działania i pozytywnie wpływa na poranny rytuał.
Dla przyszłych mieszkańców Merano Park II deweloper przewidział miejsca postojowe naziemne.
Dzięki temu przyszli właściciele nie będą musieli poszukiwać wolnej przestrzeni parkingowej.
Opis Inwestycji
Wybór mieszkania na Merano Park 2 to gwarancja wysokiej jakości życia. Kameralne, trzykondygnacyjne budynki mieszkalne oferują niepowtarzalny design i komfortowe wnętrza. Nasza oferta obejmuje mieszkania 2, 3 i 4-pokojowe o powierzchniach od 41 do 72 m2, dostosowane do różnych potrzeb i preferencji naszych klientów. Każde mieszkanie zostało starannie zaprojektowane z myślą o funkcjonalności i estetyce. Mieszkania parterowe posiadają prywatne ogródki, a te na wyższych kondygnacjach – przestronne balkony.
Atuty inwestycji
Merano Park 2 to nie tylko komfortowe wnętrza, ale również kompleksowo zrealizowana infrastruktura. Na terenie osiedla przewidziano naziemne miejsca postojowe, place zabaw dla najmłodszych i kompleksowo zagospodarowane tereny zielone, wraz z nasadzeniami oraz elementami małej architektury.
Dodatkowe korzyści
Dla wygody mieszkańców wszystkie lokale zostaną wyposażone w sterowane elektrycznie rolety zewnętrzne. W strefie wejścia każdej klatki schodowej znajdzie się pomieszczenie wózkarni do dyspozycji wspólnej wszystkich mieszkańców. Dodatkowo na parterze ulokowane zostały komórki lokatorskie.
Wychodząc na wprost nowym potrzebom naszych Klientów, na terenie osiedla zaplanowaliśmy dwustanowiskową ładowarkę samochodów elektrycznych o mocy 22 kW, a budynki zostaną wyposażone w odnawialne źródła energii – kolektory słoneczne, wspomagające podgrzewanie ciepłej wody użytkowej.
Zapraszamy do zapoznania się z naszą ofertą na Merano Park 2 - miejscu, gdzie nowoczesność spotyka się z komfortem, a piękno okolicy harmonizuje z funkcjonalnością mieszkań. To idealne miejsce dla tych, którzy pragną cieszyć się życiem w otoczeniu przyrody, nie rezygnując z nowoczesnych udogodnień.
Mieszkanie znajduje się w inwestycji Merano Park II, w której znajduje się w sprzedaży jeszcze 29 podobnych nowych mieszkań.
Jakon Sp. z o.o.
Strona internetowa inwestycjiAdres biura sprzedaży:
ul. Dobrzyckiego 4, PoznańGodziny otwarcia biura sprzedaży:
- Poniedziałek: 08:00 - 16:00
- Wtorek: 08:00 - 16:00
- Środa: 08:00 - 16:00
- Czwartek: 08:00 - 16:00
- Piątek: 08:00 - 16:00





