Mieszkanie na sprzedaż 2 pokoje o powierzchni 37,98 m² numer M50
Inwestycja:
Osiedle Mała Dziesiąta etap IIDeweloper:
INWESTOR DOM
Inwestycja:
Osiedle Mała Dziesiąta etap IIDeweloper:
INWESTOR DOMLublin, Dziesiąta, ul. Wojenna
Lublin, Dziesiąta, ul. Wojenna
Promocje
Nieruchomość bez wkładu własnego
Wybrane mieszkania w tej inwestycji kupisz bez wkładu własnego
Szczegóły dostępne w biurze sprzedaży
Termin oddania
3 kw. 2027
Ilość pokoi
2 pokoje
Metraż
37,98 m²
Piętro
1 piętro
Strona świata
wschód, północ
Wysokość pomieszczeń
od 260 do 280 cm wysokości
Ilość poziomów
1 poziom
Oznaczenie oferty
M50

Raport o deweloperze
Poznaj dewelopera bliżej! Pobierz raport, w którym znajdziesz kluczowe informacje o firmie, jej doświadczeniu, nagrodach oraz aktualnych i zrealizowanych inwestycjach.
Budynek i otoczenie
Miejsca postojowe | |
|---|---|
Standard wykończenia | standard deweloperski |
Realizacja inwestycji | rozpoczęcie budowy w 3 kw. 2025 roku, planowane oddanie do użytkowania w 3 kw. 2027 roku |
Udogodnienia | winda, teren ogrodzony, plac zabaw, siłownia plenerowa |
Przyroda | informacja u dewelopera |
Charakterystyka energetyczna nieruchomości | informacja u dewelopera |
Rezerwacja i finanse
Rodzaj własności | Odrębna własność z własnością gruntu |
|---|---|
Wysokość czynszu | informacja u dewelopera |
Warunki rezerwacji | Informacja u dewelopera |
Zabezpieczenie środków | Informacja u dewelopera |
Zdjęcia z budowy
Zobacz na jakim etapie budowy jest ta inwestycja
Lokalizacja inwestycji
Stacja kolejowa - Lublin Główny - 736 m
Przystanek Autobusowy - 130 m
Dojazd do centrum: pokaż
W pobliżu 1 km od tej inwestycji znajdują się:
11 kawiarni i restauracji, 19 sklepów, 12 obiektów sportowych, 5 placówek medycznych, 19 placówek edukacyjnych, 28 placów zabaw
Przeczytaj więcej o lokalizacji
Lublin jest miastem powiatowym i stolicą woj. lubelskiego. To największy ośrodek miejski wschodniej Polski. Ze względu na bliskość Ukrainy i Białorusi, miasto wyróżnia się wielokulturowością, co widoczne jest m.in. w stylistyce architektonicznej miasta. Typ zabudowy jest natomiast zależny od dzielnicy, np. na Starym Mieście przeważają zabytkowe kamienice, Rury składają się niemal z samych osiedli mieszkalnych, a Zemborzyce to spokojna okolica otoczona przyrodą. Lublin to także ważny ośrodek akademicki. Mieści się tu kilkanaście szkół wyższych, takich jak Politechnika Lubelska, Uniwersytet Medyczny i Katolicki Uniwersytet Lubelski Jana Pawła II. Jest tu też kilkanaście szpitali, w tym kilka szpitali wojewódzkich i klinicznych. Pod względem rekreacyjnym miasto słynie z dróg rowerowych o łącznej długości ok. 100 km. Kwitnie tu życie kulturalne, działa filharmonia, wiele kin i teatrów. Mieści się tu również kilka galerii handlowych. Prężnie funkcjonuje komunikacja miejska, w tym trolejbusy, a z resztą kraju Lublin łączą dwie drogi krajowe, droga ekspresowa i okoliczna sieć ponad kilkunastu przecinających się dróg wojewódzkich.
Opis oferty
Nowe 2-pokojowe mieszkanie na sprzedaż o powierzchni 37,98 m² znajduje się w nowo budowanej inwestycji deweloperskiej Osiedle Mała Dziesiąta etap II na Dziesiątej, ul. Wojenna (2.5 km od centrum Lublina).
Inwestycja jest realizowana przez INWESTOR DOM.
Cała inwestycja składa się z 1 budynku, w którym łącznie znajdują się 84 nowe mieszkania.
Na sprzedaż pozostaje 61 ofert o powierzchni od 35 do 58 m².
W budynku jest 6 kondygnacji naziemnych oraz 1 kondygnacja podziemna.
Inwestycja Osiedle Mała Dziesiąta etap II jest w trakcie budowy z planowanym na 3 kw. 2027 roku terminem oddania do użytkowania.
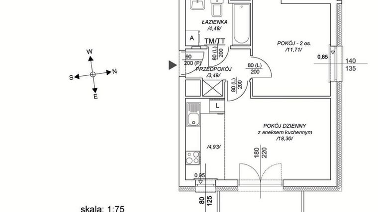
Nowe mieszkanie o oznaczeniu M50 znajduje się na 1 piętrze i jest 1-poziomowe. Pomieszczenia mają od 260 do 280 centymetrów wysokości. W mieszkaniu znajdują się 2 pokoje.
Okna w mieszkaniu wychodzą na wschód, północ.
Północna ekspozycja to idealny wybór dla osób ceniących przytulne i klimatyczne wnętrza. Delikatne, rozproszone światło sprzyja harmonii i stwarza doskonałe warunki do relaksu lub pracy. Okna na północ zapewnią równomierne oświetlenie przez cały dzień.
Wschodnia orientacja zapewnia dostęp do łagodnego porannego światła, idealnego dla rozpoczęcia dnia pełnego energii. Wnętrza pozostają jasne, ale nieprzegrzane, co sprzyja utrzymaniu komfortowej temperatury. Przebywanie w pomieszczeniu z oknami na wschód inspiruje do działania i pozytywnie wpływa na poranny rytuał.
Dla przyszłych mieszkańców Osiedle Mała Dziesiąta etap II deweloper przewidział miejsca postojowe podziemne, miejsca postojowe naziemne.
Dzięki temu przyszli właściciele nie będą musieli poszukiwać wolnej przestrzeni parkingowej. Dodatkowo, miejsce postojowe w garażu podziemnym zabezpiecza przed niekorzystnymi warunkami atmosferycznymi.
Opis Inwestycji
Okazyjna cena
Tereny zielone
Mała Dziesiąta – nowe osiedle w sercu miasta
W samym sercu Lublina, na jednej z najstarszych dzielnic miasta powstaje nowe osiedle oferujące komfortowe mieszkania w wysokim standardzie. Mała Dziesiąta to zespół niewysokich budynków wraz ze specjalnie zaaranżowanymi przestrzeniami zielonymi i rekreacyjnymi. Położenie przy ulicy Wojennej sprawia, że mieszkania są blisko centrum Lublina i posiadają doskonałe połączenia komunikacyjne z każdą częścią miasta. Zarazem, jest to miejsce, z którego pieszo dostaniemy się do sklepów, przychodni czy szkół.
Mała Dziesiąta będzie kameralnym osiedlem złożonym z czterech pięciopiętrowych budynków oraz przestrzeni zachęcających do spędzania czasu na świeżym powietrzu. W obrębie osiedla znajdzie się plac zabaw oraz siłownia, a także szereg zielonych przestrzeni z ławkami. Całość zostanie ogrodzona aby zapewnić mieszkańcom komfort, wygodę i bezpieczeństwo.
Mała Dziesiąta jest bardzo dobrze skomunikowana z resztą miasta. Dojazd autobusem do centrum Lublina zajmie około 10-15 minut. Równie łatwe co przemieszczanie się po mieście będą dalsze podróże – niedaleko Małej Dziesiątej znajduje się nowoczesne Zintegrowane Centrum Komunikacyjne stanowiące nowy dworzec PKS wraz z PKP. Rewitalizacja Dworca oraz pobliskich terenów znacząco poprawiła jakość przestrzeni publicznej w okolicy osiedla. Ponadto, w bezpośrednim sąsiedztwie Małej Dziesiątej znajdują się przedszkole i zespół szkół, a także osiedlowe sklepy. W pieszej odległości jest szkoła podstawowa oraz supermarket Lidl.
Mała Dziesiąta to najlepszy wybór dla osób ceniących miejską wygodę, a zarazem wymagających pewności jeśli chodzi o jakość wykończenia i komfort. Swoje miejsce na ziemi znajdą tu rodziny z dziećmi oczekujące bezpieczeństwa oraz bliskości szkół i placu zabaw, osoby w starszym wieku ceniące spokój i niewielkie odległości do sklepów czy przystanku, a także młodzi rozpoczynający samodzielne życie, stawiający na wygodę oraz dobre połączenia z miejscem pracy i spędzania czasu wolnego.
Mała Dziesiąta w skrócie:
- lokalizacja: ul. Wojenna, dzielnica Dziesiąta
- pięć budynków 5-piętrowych wyposażonych w windy
- miejsca parkingowe naziemne, podziemne oraz garaże
- osiedle ogrodzone
- możliwość indywidualnego zaprojektowania mieszkania pod kątem własnych potrzeb
- aranżacja przestrzeni: plac zabaw, siłownia, przestrzenie do wspólnego spędzania czasu
- okolice osiedla: w bezpośrednim sąsiedztwie Przedszkole nr 22 i Zespół Szkół nr 3, 650 m do Szkoły Podstawowej nr 1, 400m do sklepu Lidl
- połączenia komunikacyjne: przystanki komunikacji miejskiej w pieszej odległości, stacje roweru miejskiego, bliskość Zintegrowanego Centrum Komunikacyjnego (nowy dworzec)
- znany i zaufany deweloper – Inwestor Dom.
Mieszkanie znajduje się w inwestycji Osiedle Mała Dziesiąta etap II, w której znajduje się w sprzedaży jeszcze 11 podobnych nowych mieszkań.





