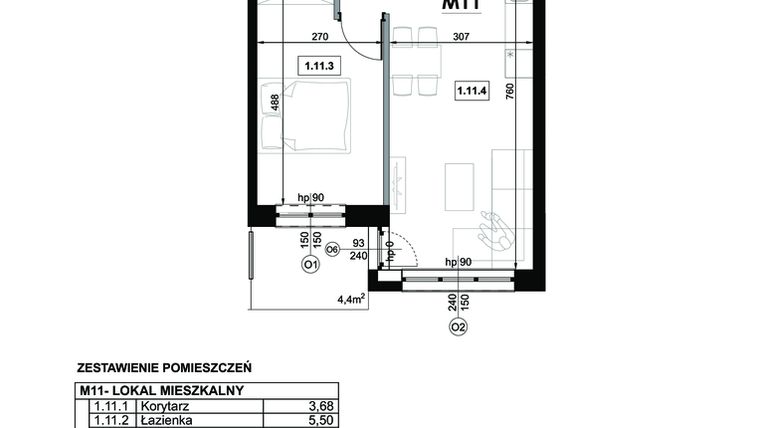
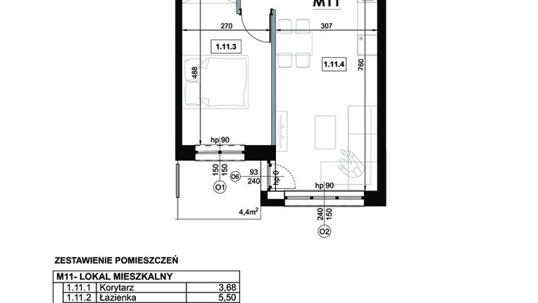
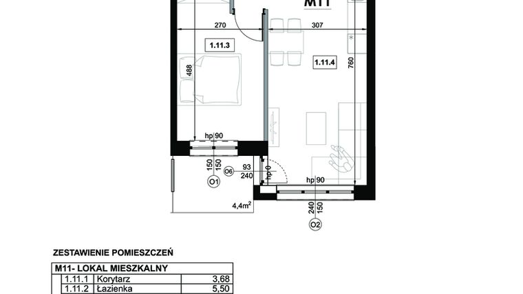
Mieszkanie na sprzedaż 2 pokoje o powierzchni 42,99 m² numer M11
Rezerwacja
Inwestycja:
Miejska Premium IIDeweloper:
Innova House
Inwestycja:
Miejska Premium IIDeweloper:
Innova Housesłupski, Siemianice, ul. Graniczna
słupski, Siemianice, ul. Graniczna
Termin oddania
4 kw. 2026
Ilość pokoi
2 pokoje
Metraż
42,99 m²
Piętro
Parter
Kuchnia
otwarta kuchnia
Wysokość pomieszczeń
270 cm wysokości
Ilość poziomów
1 poziom
Oznaczenie oferty
M11

Raport o deweloperze
Poznaj dewelopera bliżej! Pobierz raport, w którym znajdziesz kluczowe informacje o firmie, jej doświadczeniu, nagrodach oraz aktualnych i zrealizowanych inwestycjach.
Budynek i otoczenie
Miejsca postojowe | |
|---|---|
Komórki lokatorskie | dostępne |
Standard wykończenia | standard deweloperski Ogrzewanie własne |
Realizacja inwestycji | rozpoczęcie budowy w 2 kw. 2025 roku, planowane oddanie do użytkowania w 4 kw. 2026 roku |
Udogodnienia | plac zabaw, monitoring, instalacja fotowoltaiczna |
Przyroda | w okolicy inwestycji znajduje się las |
Charakterystyka energetyczna nieruchomości | informacja u dewelopera |
Rezerwacja i finanse
Rodzaj własności | Odrębna własność z własnością gruntu |
|---|---|
Wysokość czynszu | informacja u dewelopera |
Warunki rezerwacji | Informacja u dewelopera |
Zabezpieczenie środków | Otwarty mieszkaniowy rachunek powierniczy |
Zdjęcia z budowy
Zobacz na jakim etapie budowy jest ta inwestycja
Lokalizacja inwestycji
Stacja kolejowa - Siemianice - 1166 m
Przystanek Autobusowy - 241 m
Dojazd do centrum Słupska: pokaż
W pobliżu 1 km od tej inwestycji znajdują się:
1 kawiarnia lub restauracja, 4 sklepy, 2 obiekty sportowe, 1 placówka edukacyjna, 4 place zabaw
Przeczytaj więcej o lokalizacji
Powiat słupski zajmuje 2304 kilometry kwadratowe. Mieszka w nim ponad 97 tysięcy osób. W skład powiatu wchodzą gmina miejska Ustka, gmina miejsko-wiejska Kępice oraz następujące gminy wiejskie: Damnica, Dębnica Kaszubska, Główczyce, Kobylnica, Potęgowo, Słupsk, Smołdzino, Ustka. Słupsk jest siedzibą władz powiatu słupskiego, ale stanowi odrębną jednostkę administracyjną. Najpopularniejszą miejscowością turystyczną powiatu jest Ustka, która ma status uzdrowiska. Gości z całej Polski przyciągają także lasy Słowińskiego Parku Narodowego, częściowo leżącego na ziemi słupskiej. Znajduje się tu również kilka rezerwatów przyrody, w których występują rzadkie rośliny, ptaki wodne, chronione ssaki. Piękne krajobrazy przyciągają nie tylko turystów, lecz także nowych mieszkańców – z roku na rok wzrasta liczba ludności. Ponad trzy czwarte osób zameldowanych w powiecie mieszka na wsi. Ważnymi dziedzinami gospodarki są rolnictwo oraz przemysł drzewny, spożywczy, stoczniowy, metalowy, obuwniczy, tworzyw sztucznych. Od XIV do XVII wieku ziemią słupską władali książęta pomorscy. W 1653 roku, po bezpotomnej śmierci księcia Bogusława XIV, obszar ten znalazł się w granicach Brandenburgii. Do Polski przyłączono go dopiero po drugiej wojnie światowej. Większość rdzennej ludności wysiedlono wtedy do Niemiec, a na Pomorze przybyły osoby z różnych części Polski. Największa miejscowość powiatu – Ustka – istniała już w XIV stuleciu. Wieś bardzo długo podlegała miastu Słupsk. Przejściowo – w latach 1329–1342 – rządzili nią Krzyżacy, gdyż książę pomorski zastawił Słupsk i okoliczne wsie. Przez stulecia coraz większego znaczenia nabierał port w Ustce. Niestety, podupadł w wyniku wojny trzydziestoletniej i wielkiego pożaru. Dopiero na początku XX wieku, kiedy do Ustki doprowadzono tory kolejowe, wieś zaczęła się rozwijać jako miejscowość wypoczynkowa. Od 1935 roku jest miastem.
Opis oferty
Nowe 2-pokojowe mieszkanie na sprzedaż o powierzchni 42,99 m² znajduje się w nowo budowanej inwestycji deweloperskiej Miejska Premium II w Siemianicach, ul. Graniczna (0.2 km od Słupska).
Inwestycja jest realizowana przez Innova House.
Cała inwestycja składa się z 1 budynku, w którym łącznie znajduje się 36 nowych mieszkań.
Na sprzedaż pozostaje 8 ofert o powierzchni od 29 do 59 m².
W budynku są 3 kondygnacje naziemne oraz 1 kondygnacja podziemna.
Inwestycja Miejska Premium II jest w trakcie budowy z planowanym na 4 kw. 2026 roku terminem oddania do użytkowania.
Nowe mieszkanie o oznaczeniu M11 znajduje się na parterze i jest 1-poziomowe. Pomieszczenia mają 270 centymetrów wysokości. W mieszkaniu znajdują się 2 pokoje.
Dla przyszłych mieszkańców Miejska Premium II deweloper przewidział miejsca postojowe naziemne.
Dzięki temu przyszli właściciele nie będą musieli poszukiwać wolnej przestrzeni parkingowej.
Opis Inwestycji
Z dumą prezentujemy nowoczesne Osiedle Mieszkaniowe „Miejska Premium” w Siemianicach, stworzone z myślą o komforcie, elegancji i dostępie do wszystkich ważnych punktów życia codziennego.
Nasze mieszkania o powierzchni od 28 do 56 metrów kwadratowych oferują doskonałą przestrzeń dla singli, par oraz rodzin.
Osiedle „Miejska Premium” jest doskonale ulokowane w spokojnej i zielonej okolicy, jednocześnie zapewniając wygodny dostęp do kluczowych punktów.
Znajduje się w bliskiej odległości od sklepów, szkół, przedszkoli, fryzjera, piekarni oraz szkoły językowej.
Dzięki temu mieszkańcy naszego osiedla będą mieli wszystko, czego potrzebują, w zasięgu ręki.
Mieszkanie znajduje się w inwestycji Miejska Premium II, w której znajdują się w sprzedaży jeszcze 2 podobne nowe mieszkania.
Innova House
Strona internetowa inwestycjiAdres biura sprzedaży:
INNOVA HOUSE ul. Mostnika 7c, 76-200 SłupskGodziny otwarcia biura sprzedaży:
- Poniedziałek: 08:00 - 17:00
- Wtorek: 08:00 - 17:00
- Środa: 08:00 - 17:00
- Czwartek: 08:00 - 17:00
- Piątek: 08:00 - 17:00





