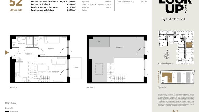
Mieszkanie na sprzedaż 2 pokoje o powierzchni 65,48 m² numer A52
Inwestycja:
Look Up HouseDeweloper:
Imperial Capital
Inwestycja:
Look Up HouseDeweloper:
Imperial CapitalKraków, Prądnik Biały, ul. Pękowicka
Kraków, Prądnik Biały, ul. Pękowicka
Promocje
Promocja
Mieszkania już od 12 460 zł/m2!
Majowa promocja na mieszkania w LOOK UP House. Ceny już od 12 460 zł/m² – z rabatem 11% na wybrane lokale. Sprawdź!
Termin oddania
2 kw. 2027
Ilość pokoi
2 pokoje
Metraż
65,48 m²
Piętro
3 piętro
Wysokość pomieszczeń
od 260 do 280 cm wysokości
Ilość poziomów
2 poziomy + antresola
Oznaczenie oferty
A52

Raport o deweloperze
Poznaj dewelopera bliżej! Pobierz raport, w którym znajdziesz kluczowe informacje o firmie, jej doświadczeniu, nagrodach oraz aktualnych i zrealizowanych inwestycjach.
Budynek i otoczenie
Miejsca postojowe | |
|---|---|
Komórki lokatorskie | dostępne: wielkość: 2,26 - 5,78 mkw |
Standard wykończenia | standard deweloperski podwyższony Ogrzewanie miejskie |
Realizacja inwestycji | rozpoczęcie budowy w 3 kw. 2024 roku, planowane oddanie do użytkowania w 2 kw. 2027 roku |
Udogodnienia | plac zabaw, monitoring, winda |
Przyroda | informacja u dewelopera |
Charakterystyka energetyczna nieruchomości | informacja u dewelopera |
Rezerwacja i finanse
Rodzaj własności | Odrębna własność z własnością gruntu |
|---|---|
Wysokość czynszu | informacja u dewelopera |
Warunki rezerwacji | Informacja u dewelopera |
Zabezpieczenie środków | Informacja u dewelopera |

Zdjęcia z budowy i widok 3D
Zobacz na jakim etapie budowy jest ta inwestycja
Lokalizacja inwestycji
Stacja kolejowa - Kraków Łobzów tor 304 - 1445 m
Przystanek Tramwajowy - 914 m
Przystanek Autobusowy - 152 m
Dojazd do centrum: pokaż
W pobliżu 1 km od tej inwestycji znajdują się:
11 kawiarni i restauracji, 31 sklepów, 27 obiektów sportowych, 5 placówek medycznych, 25 placówek edukacyjnych, 19 placów zabaw
Przeczytaj więcej o lokalizacji
Prądnik Biały to obecnie jeden z najszybciej przeobrażających się obszarów Krakowa. Dotyczy to przede wszystkim komunikacji, czego najlepszym przykładem jest uruchomiona we wrześniu 2023 linia tramwajowa na Górkę Narodową. Przebiega ona w odległości zaledwie kilkuset metrów od osiedla LOOK UP, podobnie jak Trasa Wolbromska łącząca centrum miasta z powstającą północną obwodnicą. Z pewnością komunikacja jest jednym z największych atutów tej lokalizacji. Okolica obfituje również w tereny zielone. W odległości zaledwie 10 minut spacerem znajdują się urokliwe Parki: Krowoderski z rozbudowaną infrastrukturą sportową oraz bardziej rekreacyjny Park Wyspiańskiego. Na północ od osiedla rozciągają się kojące przestrzenie pól Witkowickich, przeciętych nurtem Białuchy, a nieco dalej Park Leśny Witkowice, do którego można dotrzeć niemalże polnymi, malowniczymi drogami.
Prądnik Biały to dzielnica IV Krakowa. Jest częścią miasta najbardziej wysuniętą na północ i zajmującą obszar 2341,87 ha. Powstała z połączenia 5 historycznych miejscowości. Zamieszkuje ją 69 135 osób. Jest jedną z tych części Krakowa, których zabudowa jest najbardziej zróżnicowana. Większość nieruchomości stanowią tu osiedla bloków mieszkalnych wzniesione w latach 60-tych, jednak uzupełnione są one blokami z wielkiej płyty powstałymi w latach 70-tych. Do tego dochodzą nowsze osiedla domów jednorodzinnych, a także domy szeregowe. Choć rozmaitość krajobrazu architektonicznego wskazuje na stały rozwój dzielnicy, to wciąż jeszcze można tu znaleźć elementy zabudowy typowo wiejskiej. W okolicy wiele jest miejsc rekreacyjnych idealnych do zabaw dla dzieci. Znajduje się tu 20 ogródków jordanowskich. W dzielnicy działa też 5 klubów sportowych. Dobrze rozbudowana jest infrastruktura oświatowa, o czym świadczy 10 funkcjonujących tu szkół i 4 zespoły szkolne. Zaletą dzielnicy jest też sieć połączeń komunikacyjnych z innymi częściami Krakowa. Działa tu łącznie 30 linii autobusowych i 5 linii tramwajowych. Przez Prądnik Biały przechodzi też droga krajowa nr 7 i droga wojewódzka nr 794.
Opis oferty
Nowe 2-pokojowe mieszkanie na sprzedaż o powierzchni 65,48 m² znajduje się w nowo budowanej inwestycji deweloperskiej Look Up House na Prądniku Białym, ul. Pękowicka (3.9 km od centrum Krakowa).
Inwestycja jest realizowana przez Imperial Capital.
Cała inwestycja składa się z 3 budynków, w których łącznie znajduje się 140 nowych mieszkań.
Na sprzedaż pozostaje 80 ofert o powierzchni od 39 do 157 m².
W budynkach są 4 kondygnacje naziemne oraz 1 kondygnacja podziemna.
Inwestycja Look Up House jest w trakcie budowy z planowanym na 2 kw. 2027 roku terminem oddania do użytkowania.
Nowe mieszkanie o oznaczeniu A52 znajduje się na 3 piętrze i jest 2-poziomowe. Pomieszczenia mają od 260 do 280 centymetrów wysokości. W mieszkaniu znajdują się 2 pokoje.
Dla przyszłych mieszkańców Look Up House deweloper przewidział miejsca postojowe podziemne.
Dzięki temu przyszli właściciele nie będą musieli poszukiwać wolnej przestrzeni parkingowej. Dodatkowo, miejsce postojowe w garażu podziemnym zabezpiecza przed niekorzystnymi warunkami atmosferycznymi.
Opis Inwestycji
Tereny zielone
LOOK UP House – nowy wymiar przestrzeni na Prądniku Białym
LOOK UP House to unikalne osiedle mieszkaniowe, które redefiniuje pojęcie komfortu i designu. To inwestycja stworzona dla osób poszukujących nieszablonowych rozwiązań i
przestrzeni, która inspiruje do życia po swojemu. Wyobraź sobie imponujące, przeszklone salony wysokie na 6 metrów lub prywatny, zielony taras na dachu, dostępny wprost Twojego mieszkania z antresolą. Brzmi jak marzenie? Pozwól mu się spełnić razem z Imperial Capital.
Najważniejsze informacje o inwestycji LOOK UP House:
Unikalna architektura – mieszkania z antresolami, wysokimi tarasami oraz imponującymi, 6-metrowymi przeszkleniami w salonach, które wypełniają wnętrza naturalnym światłem.
Prywatne tarasy na dachu – Twoja własna oaza spokoju i idealne miejsce do relaksu z widokiem na panoramę miasta.
Zróżnicowana oferta – 140 nowoczesnych mieszkań w pierwszym etapie o metrażach od 39 do 157 m², dopasowanych do potrzeb singli, par i rodzin.
Standard premium – wysokiej jakości materiały, duże przeszklenia z filtrami antysmogowymi oraz pakiety szyb akustycznych gwarantujące ciszę i komfort.
Przestrzeń dla rodziny – na terenie osiedla zaplanowano nowoczesny plac zabaw oraz zielone tereny wspólne, sprzyjające integracji i aktywnemu wypoczynkowi.
Pełna wygoda – do dyspozycji mieszkańców oddane zostaną miejsca postojowe w garażu podziemnym oraz komórki lokatorskie (od 2,26 do 5,78 m²).
Dynamicznie rozwijająca się lokalizacja – inwestycja powstaje przy ul. Pękowickiej, zaledwie 3,9 km od centrum Krakowa.
Status projektu – w trakcie budowy.
Planowany termin oddania do użytkowania – IV kwartał 2026 r.
Mieszkanie znajduje się w inwestycji Look Up House, w której znajduje się w sprzedaży jeszcze 71 podobnych nowych mieszkań.
Imperial Capital
Adres biura sprzedaży:
ul. Wadowicka 7, VII piętro, 30-347 KrakówGodziny otwarcia biura sprzedaży:
- Poniedziałek: 09:00 - 17:00
- Wtorek: 09:00 - 17:00
- Środa: 09:00 - 17:00
- Czwartek: 09:00 - 17:00
- Piątek: 09:00 - 17:00
- Sobota: 09:00 - 13:00





