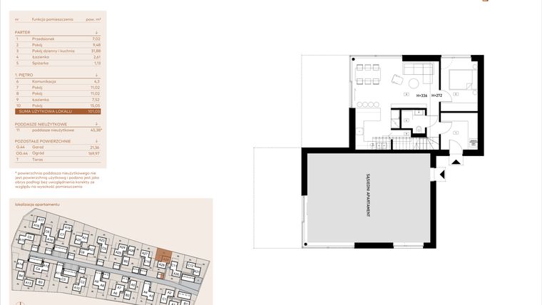
Mieszkanie na sprzedaż 5 pokoi o powierzchni 101,03 m² numer A29
Inwestycja:
Kosocicka AmbientDeweloper:
Hammak
Inwestycja:
Kosocicka AmbientDeweloper:
HammakKraków, Podgórze Duchackie, ul. Kosocicka 112-114
Kraków, Podgórze Duchackie, ul. Kosocicka 112-114
Oddanie
1 kw. 2028
Ilość pokoi
5 pokoi
Metraż
101,03 m²
Piętro
Parter
Dodatkowe
Ogródek
Kuchnia
otwarta kuchnia
Wysokość
od 265 do 336 cm wysokości
Poziomy
2 poziomy w tym poddasze
Oznaczenie oferty
A29

Raport o deweloperze
Poznaj dewelopera bliżej! Pobierz raport, w którym znajdziesz kluczowe informacje o firmie, jej doświadczeniu, nagrodach oraz aktualnych i zrealizowanych inwestycjach.
Budynek i otoczenie
Miejsca postojowe | |
|---|---|
Garaże | garaż jednostanowiskowy |
Standard wykończenia | standard deweloperski system gromadzenia wody deszczowej,
ponadprzeciętna wysokość salonu 3,36 m Stolarka okienna stolarka aluminiowa, panoramiczne okna w salonie typu HS (przesuwne) Posadzka wylewki betonowe Ściany tynki gipsowe Instalacje Przygotowanie instalacji pod montaż fotowoltaiki wyprowadzona instalacja klimatyzacji w każdym pokoju Ogrzewanie pompa ciepła, ogrzewanie podłogowe Wentylacja wentylacja mechaniczna z odzyskiem ciepła – Rekuperacja |
Realizacja inwestycji | rozpoczęcie budowy w 1 kw. 2026 roku, planowane oddanie do użytkowania w 1 kw. 2028 roku |
Udogodnienia | rekuperacja, pompa ciepła, klimatyzacja |
Przyroda | w okolicy inwestycji znajduje się park, las, rezerwat przyrody |
Charakterystyka energetyczna nieruchomości | informacja u dewelopera |
Rezerwacja i finanse
Rodzaj własności | Odrębna własność z własnością gruntu |
|---|---|
Wysokość czynszu | informacja u dewelopera |
Warunki rezerwacji | Informacja u dewelopera |
Zabezpieczenie środków | Otwarty mieszkaniowy rachunek powierniczy |
Postępy i zdjęcia z budowy
Zobacz na jakim etapie budowy jest ta inwestycja
Lokalizacja inwestycji
Stacja kolejowa - Kraków Prokocim - 2456 m
Przystanek Tramwajowy - 1124 m
Przystanek Autobusowy - 141 m
Dojazd do centrum: pokaż
W pobliżu 1 km od tej inwestycji znajdują się:
6 kawiarni i restauracji, 6 sklepów, 30 obiektów sportowych, 37 placówek medycznych, 11 placówek edukacyjnych, 35 placów zabaw
Przeczytaj więcej o lokalizacji
Podgórze Duchackie, czyli dzielnica XI Krakowa, zlokalizowane jest na południe od Wisły i zajmuje terytorium 954,00 ha. Mieszka tu 52 859 osób, co przekłada się na dużą gęstość zaludnienia. Dzielnica powstała z przyłączenia do Krakowa wsi Kurdwanów, Wola Duchacka i Piaski. Zabudowa tej części miasta jest zróżnicowana. Widoczne są zarówno liczne zespoły mieszkaniowe stawiane w latach 70-tych i 80-tych, jak i typowe domy jednorodzinne budowane w różnych okresach XXw. Jedną z cech charakterystycznych dzielnicy jest duża liczba urokliwych kapliczek. Niewiele jest natomiast terenów zielonych, ale w celach rekreacyjnych można wybrać się do parku na Woli Duchackiej, który niedawno został odnowiony i przekształcony z parku dworskiego na park miejski. Znaleźć można tu także kino, teatr oraz 3 kluby sportowe. Dumą dzielnicy jest duże centrum handlowe Bonarka City Center. Przez południową część Podgórza Duchackiego przebiega droga krajowa nr 7 będąca częścią autostrady A4, której fragment stanowi IV obwodnicę Krakowa. Na dobre połączenia komunikacyjne z resztą miasta wpływają też regularne kursy linii autobusowych i tramwajowych oraz znajdująca się na północy dzielnicy zajezdnia autobusowa.
Opis oferty
Nowe 5-pokojowe mieszkanie na sprzedaż o powierzchni 101,03 m² znajduje się w nowo budowanej inwestycji deweloperskiej Kosocicka Ambient na Podgórzu Duchackim, ul. Kosocicka 112-114 (7.6 km od centrum Krakowa).
Inwestycja jest realizowana przez Hammak.
Cała inwestycja składa się z 24 budynków, w których łącznie znajduje się 48 nowych mieszkań.
Na sprzedaż pozostaje 48 ofert o powierzchni od 100 do 101 m².
W budynkach są 2 kondygnacje naziemne. Budynek nie posiada kondygnacji podziemnych.
Inwestycja Kosocicka Ambient jest w trakcie budowy z planowanym na 1 kw. 2028 roku terminem oddania do użytkowania.
Nowe mieszkanie o oznaczeniu A29 znajduje się na parterze i jest 2-poziomowe. Pomieszczenia mają od 265 do 336 centymetrów wysokości. W mieszkaniu znajduje się 5 pokoi.
Dla przyszłych mieszkańców Kosocicka Ambient deweloper przewidział miejsca postojowe naziemne.
Dzięki temu przyszli właściciele nie będą musieli poszukiwać wolnej przestrzeni parkingowej.
Opis Inwestycji
Pow. dodatkowe
KOSOCICKA AMBIENT to osiedle 24 budynków jednorodzinnych dwulokalowych. Obiekty dzielą się na trzy podstawowe typy, zróżnicowane pod względem powierzchni dodatkowych takich jak tarasy czy układ ogrodu, a w każdym z nich znajdują się dwa lokale mieszkalne o powierzchni użytkowej ok. 100 m2. Każdy z lokali mieszkalnych na terenie inwestycji jest dwupoziomowy i posiada dostęp do ogrodu – natomiast tylko wybrane posiadają dodatkowo taras na pierwszym piętrze.
Nietypowe układy budynków oraz ich wzajemne, nieregularne położenie tworzy naturalny układ – stworzona została struktura, która wpasowała się w istniejący krajobraz i uwarunkowania przyrodnicze. Dzięki temu osiedle zyskuje bardziej złożony rytm przestrzenny, lepsze wkomponowanie w otoczenie oraz większy komfort użytkowników, przy jednoczesnym utrzymaniu spójnej estetyki całej zabudowy. Perspektywa ciągle się zmienia – zamiast jednego osiowego widoku są krótkie kadry, w których domy co chwilę „zasłaniają” i „odkrywają” kolejne fragmenty zieleni.
Niezwykle wygodne do aranżacji układy mieszkań są wynikiem starannie przemyślanej koncepcji architektonicznej a duże przeszklenia pozwolą na idealne doświetlenie i niezakłócony widok na przyrodę użytku ekologicznego Słona Woda. Salony znajdują się na parterze otwierają się na ogród wysokimi, przesuwnymi witrynami – szkło biegnie niemal od stropu po posadzkę, zapewniając kontakt wnętrza z zielenią. Na piętrach znajdziemy poziome, panoramiczne okna a w części lokali przestronne tarasy.
Układ osiedla został przemyślany tak, aby pozostawić jak najwięcej drzew rosnących na terenie inwestycji. Przewidziano również dodatkowe nasadzenia oraz tarasy i stropodachy zielone – to co widać na naszych wizualizacjach jest rzeczywistym projektem gospodarki zielenią.
Każdy z lokali mieszkalnych wyposażony będzie w indywidualną pompę ciepła oraz podejście instalacyjne pod instalacje fotowoltaiczne na dachu. Ogrzewanie podłogowe oraz rekuperacja z odzyskiem ciepła zapewnią komfortowe warunki termiczne. Dla każdego z mieszkań przewidziano jedno miejsce postojowe w garażu oraz możliwość zaparkowania drugiego samochodu na podjeździe. Woda deszczowa odprowadzana będzie do zbiorników i wykorzystywana do podlewania ogrodów.
Nasza oferta obejmuje 48 dwupoziomowych apartamentów – każdy z nich jest 5 – pokojowym mieszkaniem z dwoma łazienkami, ogrodem i dodatkowym garażem. Wybrane apartamenty posiadają dostęp do tarasu na pierwszym piętrze.
Lokale mieszkalne będą oddawane do użytku w stanie deweloperskim obejmującym między innymi:
• Wylewki cementowe
• Tynki gipsowe
• Stolarkę aluminiową (okna uchylne z kontaktronami, jedno okno w lokalu typu HS);
• Ogrzewanie podłogowe zasilane pompą ciepła,
• Instalację wentylacji z odzyskiem ciepła (rekuperacja),
• Instalację alarmową w zakresie okablowania kontaktronów,
• Przyłącze internetowe do każdego lokalu mieszkalnego,
• Rozprowadzenie instalacji pod montaż klimatyzacji.
Dodatkowo:
• Przygotowanie pod instalację fotowoltaiczną w formie peszla z wyjściem na dach doprowadzonego do rozdzielni głównej,
• Możliwość podlewania ogródka wodą deszczową
Wysokość pomieszczeń: od 265 cm do 336 cm
Miejsca postojowe
Wszystkie lokale mieszkalne będą posiadać miejsca postojowe w garażach (samodzielnych lub wbudowanych w bryłę budynku). Dodatkowo przewidziano możliwość parkowania na podjazdach oraz w innych wyznaczonych miejscach.
Ogrody
Wszystkie lokale mieszkalne posiadać będą dostęp do samodzielnych ogrodów o zróżnicowanej powierzchni – od 70m2 do 280m2. Ogródki przeznaczone będą do wyłącznej dyspozycji Właścicieli a ich areał wydzielony zostanie ogrodzeniem.
Mieszkanie znajduje się w inwestycji Kosocicka Ambient, w której znajduje się w sprzedaży jeszcze 47 podobnych nowych mieszkań.
Hammak
Strona internetowa inwestycjiAdres biura sprzedaży:
ul. Armii Krajowej 25, 30-150 KrakówGodziny otwarcia biura sprzedaży:
- Poniedziałek: 09:00 - 17:00
- Wtorek: 09:00 - 17:00
- Środa: 09:00 - 17:00
- Czwartek: 09:00 - 17:00
- Piątek: 09:00 - 17:00





