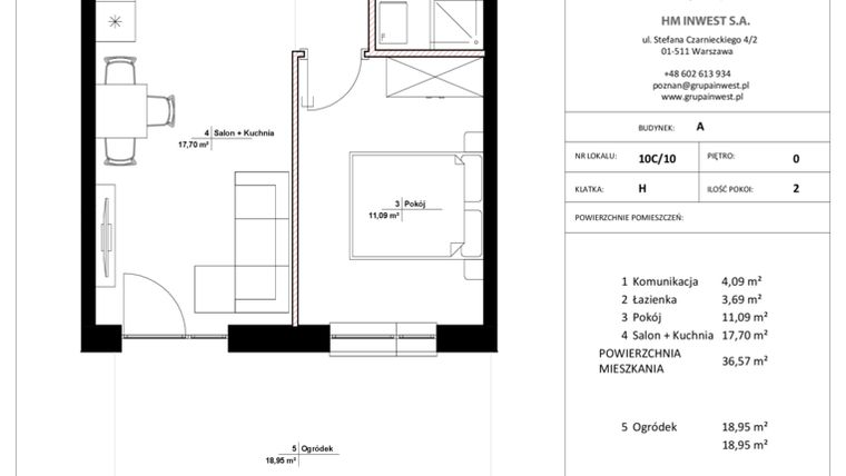
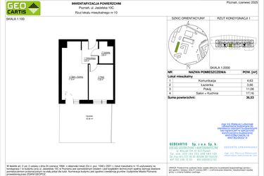
Mieszkanie na sprzedaż 2 pokoje o powierzchni 36,53 m² numer 10C/10
Inwestycja:
Jasielska 8C etap IIDeweloper:
Grupa Inwest
Inwestycja:
Jasielska 8C etap IIDeweloper:
Grupa InwestPoznań, Jeżyce, Podolany, ul. Jasielska
Poznań, Jeżyce, Podolany, ul. Jasielska
Promocje
Promocja
Promocje!
Koszt aktu przeniesienia własności - GRATIS! Drugie miejsce postojowe w hali garażowej w cenie 50% pierwszego miejsca! Szpachlowanie lokalu w cenie 0zł!
Termin oddania
Gotowe
Ilość pokoi
2 pokoje
Metraż
36,53 m²
Piętro
Parter
Powierzchnie dodatkowe
Ogródek
Kuchnia
otwarta kuchnia
Wysokość pomieszczeń
od 260 do 280 cm wysokości
Ilość poziomów
1 poziom
Oznaczenie oferty
10C/10

Raport o deweloperze
Poznaj dewelopera bliżej! Pobierz raport, w którym znajdziesz kluczowe informacje o firmie, jej doświadczeniu, nagrodach oraz aktualnych i zrealizowanych inwestycjach.
Budynek i otoczenie
Miejsca postojowe | |
|---|---|
Komórki lokatorskie | dostępne |
Standard wykończenia | standard deweloperski |
Realizacja inwestycji | rozpoczęcie budowy w 4 kw. 2023 roku, inwestycja została oddana do użytkowania w 4 kw. 2025 roku |
Udogodnienia | plac zabaw, winda, rowerownia, miejsce do ładowania samochodów elektrycznych |
Przyroda | w okolicy inwestycji znajduje się jezioro |
Charakterystyka energetyczna nieruchomości | informacja u dewelopera |
Rezerwacja i finanse
Rodzaj własności | Odrębna własność z własnością gruntu |
|---|---|
Wysokość czynszu | informacja u dewelopera |
Warunki rezerwacji | Informacja u dewelopera |
Zabezpieczenie środków | Informacja u dewelopera |
Zdjęcia z budowy
Zobacz na jakim etapie budowy jest ta inwestycja
Lokalizacja inwestycji
Stacja kolejowa - Poznań Podolany - 941 m
Przystanek Tramwajowy - 1199 m
Przystanek Autobusowy - 62 m
Dojazd do centrum: pokaż
W pobliżu 1 km od tej inwestycji znajdują się:
8 kawiarni i restauracji, 14 sklepów, 19 obiektów sportowych, 10 placówek medycznych, 10 placówek edukacyjnych, 19 placów zabaw
Przeczytaj więcej o lokalizacji
Jeżyce to dzielnica Poznania rozmieszczona na planie niemal idealnego kwadratu. Na jego zachodzie można znaleźć Jezioro Kerskie, natomiast południową granicę wyznacza obszar Lotniska Poznań-Ławica. Na wschodzie dzielnicę ogranicza ul. Obornicka a na północy osiedla Suchy Las i Jelonek. Jeżyce składają się głównie z zabytkowych, przedwojennych kamienic, które coraz częściej dzięki renowacji okazują się być perełkami architektonicznymi miasta. Na Jeżycach na powierzchni 2 km kw mieszka ok. 24 tys. mieszkańców. Największy zakład opieki zdrowotnej to Szpital Rehabilitacyjny dla dzieci. W odległości ok. 500 metrów na wschód mieści się wydział Nauk Politycznych i Dziennikarstwa Uniwersytetu im. Adama Mickiewicza. W odległości ok. 1 km od granic dzielnicy można znaleźć liczne centra handlowe, kina i teatry. Największe centrum handlowe okolicy to Galeria Podolany, jednak w odległości ok. 1 km na południe i wschód można znaleźć inne sklepy wielkopowierzchniowe, takie jak CH Poznań Plaza, Galeria Pestka czy King Cross Marcelin.
Opis oferty
Nowe 2-pokojowe mieszkanie na sprzedaż o powierzchni 36,53 m² znajduje się w nowo budowanej inwestycji deweloperskiej Jasielska 8C etap II na Podolanach, ul. Jasielska (4.7 km od centrum Poznania).
Inwestycja jest realizowana przez Grupa Inwest.
Cała inwestycja składa się z 2 budynków, w których łącznie znajduje się 208 nowych mieszkań.
Na sprzedaż pozostaje 195 ofert o powierzchni od 29 do 107 m².
W budynkach jest 7 kondygnacji naziemnych oraz 2 kondygnacje podziemne.
Inwestycja Jasielska 8C etap II została wybudowana i oddana do użytkowania w 4 kw. 2025 roku.
Nowe mieszkanie o oznaczeniu 10C/10 znajduje się na parterze i jest 1-poziomowe. Pomieszczenia mają od 260 do 280 centymetrów wysokości. W mieszkaniu znajdują się 2 pokoje.
Dla przyszłych mieszkańców Jasielska 8C etap II deweloper przewidział miejsca postojowe podziemne.
Dzięki temu przyszli właściciele nie będą musieli poszukiwać wolnej przestrzeni parkingowej. Dodatkowo, miejsce postojowe w garażu podziemnym zabezpiecza przed niekorzystnymi warunkami atmosferycznymi.
Opis Inwestycji
Okazyjna cena
Tereny zielone
Pow. dodatkowe
JASIELSKA 8C to nowa inwestycja mieszkaniowa realizowana przez dewelopera Grupa Inwest. Oferuje ona 374 lokali mieszkalnych 1-5 pokojowych, w tym także mieszkań dwupoziomowych z antresolami. Lokale będą wyposażone w balkony, tarasy lub ogródki. W ramach inwestycji przewidziana jest także podziemna hala garażowa z miejscami postojowymi oraz komórkami lokatorskimi.
Struktura budynku i mieszkań:
- 374 mieszkania,
- 28-116 m2,
- trzy budynki,
- V pięter + mieszkania dwupoziomowe na VI piętro,
- podziemna hala garażowa,
- miejsca postojowe nadziemne,
- komórki lokatorskie.
- ogródki dla mieszkań parterowych,
- tarasy dla lokali z antresolami,
- winda w każdej klatce.
Mieszkanie znajduje się w inwestycji Jasielska 8C etap II, w której znajdują się w sprzedaży jeszcze 123 podobne nowe mieszkania.
Grupa Inwest
Strona internetowa inwestycjiAdres biura sprzedaży:
ul. Jasielska 10b, 60-476 PoznańGodziny otwarcia biura sprzedaży:
- Poniedziałek: 08:00 - 18:00
- Wtorek: 08:00 - 18:00
- Środa: 08:00 - 18:00
- Czwartek: 08:00 - 18:00
- Piątek: 08:00 - 18:00
Artykuły powiązane:
:format(jpg)/articles/gallery/image/700/co-sie-buduje-w-katowicach_8dd3c8.jpg)
Co buduje się w Katowicach?
Katowice wyróżnia innowacja, przedsiębiorczość i wszechobecny przemysł. W stolicy województwa śląskiego i Górnośląskiego Okręgu Przemysłowego odbywa się wiele międzynarodowych imprez, na które ściągają tłumy z całego świata. Bogata oferta edukacyjna i przemysłowa zachęca młodych ludzi do zamieszkania i rozpoczęcia kariery zawodowej w Katowicach. Inwestycje mieszkaniowe to kolejny atut miasta.
02 marca 2022
Redakcja





