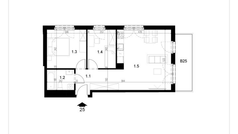
Mieszkanie na sprzedaż 3 pokoje o powierzchni 56,83 m² numer LM25
Inwestycja:
Kameralna KoszykarskaDeweloper:
Kameralna Koszykarska
Inwestycja:
Kameralna KoszykarskaDeweloper:
Kameralna KoszykarskaKraków, Podgórze, ul. Koszykarska 20b
Kraków, Podgórze, ul. Koszykarska 20b
Termin oddania
1 kw. 2027
Ilość pokoi
3 pokoje
Metraż
56,83 m²
Piętro
1 piętro
Powierzchnie dodatkowe
Balkon
Kuchnia
otwarta kuchnia
Wysokość pomieszczeń
od 260 do 280 cm wysokości
Ilość poziomów
1 poziom
Oznaczenie oferty
LM25

Raport o deweloperze
Poznaj dewelopera bliżej! Pobierz raport, w którym znajdziesz kluczowe informacje o firmie, jej doświadczeniu, nagrodach oraz aktualnych i zrealizowanych inwestycjach.
Budynek i otoczenie
Miejsca postojowe | |
|---|---|
Standard wykończenia | standard deweloperski |
Realizacja inwestycji | rozpoczęcie budowy w 2 kw. 2025 roku, planowane oddanie do użytkowania w 1 kw. 2027 roku |
Udogodnienia | winda, teren ogrodzony, monitoring, videodomofon, rowerownia, plac zabaw |
Przyroda | informacja u dewelopera |
Charakterystyka energetyczna nieruchomości | informacja u dewelopera |
Rezerwacja i finanse
Rodzaj własności | informacja u dewelopera |
|---|---|
Wysokość czynszu | informacja u dewelopera |
Warunki rezerwacji | Informacja u dewelopera |
Zabezpieczenie środków | Otwarty mieszkaniowy rachunek powierniczy |
Zdjęcia z budowy
Zobacz na jakim etapie budowy jest ta inwestycja
Lokalizacja inwestycji
Stacja kolejowa - Kraków Płaszów - 1704 m
Przystanek Tramwajowy - 888 m
Przystanek Autobusowy - 216 m
Dojazd do centrum: pokaż
W pobliżu 1 km od tej inwestycji znajdują się:
10 kawiarni i restauracji, 24 sklepy, 13 obiektów sportowych, 5 placówek medycznych, 12 placówek edukacyjnych, 27 placów zabaw
Przeczytaj więcej o lokalizacji
Dzielnica Podgórze znajduje się w centrum Krakowa i jest zamieszkiwana przez 34 045 osób. Dzielnicę można podzielić na 3 podregiony, z których każdy cechuje się odmiennym typem zabudowy. Stare Podgórze pełne jest zabytków i budynków wzniesionych w XIX i na początku XXw., w Płaszowie dominują czterokondygnacyjne budynki z lat 90-tych XXw. oraz domy jednorodzinne, natomiast na Rybitwach domy jednorodzinne mieszają się z nieruchomościami przemysłowymi. Dzielnica rozwija się w szybkim tempie i może pochwalić się dobrze rozbudowaną infrastrukturą, czego przykładem jest niemal 20 szkół, 2 galerie, 2 muzea, Kino Teatr „Wrzos”, domy kultury. Odpocząć można tu na Plantach im. F. Nowackiego lub w Parku im. W. Bednarskiego. Dodatkowo Podgórze ma dobre połączenia komunikacyjne z pozostałymi dzielnicami Krakowa, a dojazdy ułatwiają przechodzące przez dzielnicę drogi: krajowa nr 7 i wojewódzka nr 776.
Opis oferty
Nowe 3-pokojowe mieszkanie na sprzedaż o powierzchni 56,83 m² znajduje się w nowo budowanej inwestycji deweloperskiej Kameralna Koszykarska na Podgórzu, ul. Koszykarska 20b (3.4 km od centrum Krakowa).
Sprzedaż prowadzi Kameralna Koszykarska.
Cała inwestycja składa się z 2 budynków, w których łącznie znajduje się 38 nowych mieszkań.
Na sprzedaż pozostaje 21 ofert o powierzchni od 47 do 109 m².
W budynkach są 4 kondygnacje naziemne oraz 1 kondygnacja podziemna.
Inwestycja Kameralna Koszykarska jest w trakcie budowy z planowanym na 1 kw. 2027 roku terminem oddania do użytkowania.
Nowe mieszkanie o oznaczeniu LM25 znajduje się na 1 piętrze i jest 1-poziomowe. Pomieszczenia mają od 260 do 280 centymetrów wysokości. W mieszkaniu znajdują się 3 pokoje.
Dla przyszłych mieszkańców Kameralna Koszykarska deweloper przewidział miejsca postojowe podziemne, miejsca postojowe naziemne.
Dzięki temu przyszli właściciele nie będą musieli poszukiwać wolnej przestrzeni parkingowej. Dodatkowo, miejsce postojowe w garażu podziemnym zabezpiecza przed niekorzystnymi warunkami atmosferycznymi.
Opis Inwestycji
Pow. dodatkowe
Kameralny klimat, nowoczesny styl
Kameralna Koszykarska to inwestycja stworzona z myślą o tych, którzy cenią spokój, wygodę i ponadczasowy design. Prosta, elegancka bryła budynków uzupełniona jest starannie zaprojektowanymi nasadzeniami wokół, dzięki którym osiedle zyskuje przytulny, sąsiedzki charakter. Przestrzenie wspólne zachęcają do spotkań, a otoczenie pełne roślin sprzyja codziennemu odpoczynkowi. Od pierwszej chwili wiesz, że to Twój adres w Krakowie.
Przestrzeń na świeżym powietrzu
Lubisz wypić poranną kawę na balkonie, zjeść kolację w ogrodzie, a może spędzić wieczór na tarasie z widokiem? Tu masz taką możliwość – w zależności od wybranego mieszkania możesz cieszyć się własnym ogródkiem, przestronnym balkonem lub wyjątkowym tarasem na dachu. Dla Twojej wygody zaplanowaliśmy również komfortowe miejsca parkingowe, zarówno w garażu podziemnym, jak i na terenie inwestycji.
Udogodnienia na wyciągnięcie ręki
W Kameralnej Koszykarskiej zawsze czujesz się bezpiecznie. Cały teren jest ogrodzony, monitorowany, ze zdalnie sterowaną bramą i wideodomofonem, a starannie zaplanowane oświetlenie zewnętrzne zapewnia komfort także po zmroku. Do dyspozycji mieszkańców jest rowerownia z miejscem serwisowym, plac zabaw oraz wyjątkowa strefa do kąpieli psów, dzięki której zadbasz o pupila przed wejściem do mieszkania. W budynkach działają nowoczesne windy, a ogrzewanie i ciepła woda z MPEC zapewniają oszczędność i wygodę niezależnie od pory roku.
Zielone dachy to nie tylko efektowny element architektury, ale też rozwiązanie, które realnie wpływa na Twój komfort – poprawiają mikroklimat, zwiększają izolację cieplną i pomagają obniżyć temperaturę w upalne dni.
Mieszkanie znajduje się w inwestycji Kameralna Koszykarska, w której znajduje się w sprzedaży jeszcze 11 podobnych nowych mieszkań.
Kameralna Koszykarska
Strona internetowa inwestycjiAdres biura sprzedaży:
ul. Mały Płaszów 4 30-720 Kraków




