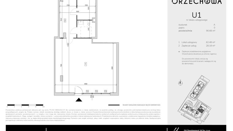
Lokal użytkowy na sprzedaż 1 pokój o powierzchni 90,66 m² numer U1
Inwestycja:
Orzechowa 2Deweloper:
GH Development
Inwestycja:
Orzechowa 2Deweloper:
GH DevelopmentWarszawa, Włochy, Raków, ul. Orzechowa 1
Warszawa, Włochy, Raków, ul. Orzechowa 1
Termin oddania
1 kw. 2028
Ilość pokoi
1 pokój
Metraż
90,66 m²
Piętro
Parter
Strona świata
wschód, południe
Wysokość pomieszczeń
od 260 do 280 cm wysokości
Ilość poziomów
1 poziom
Oznaczenie oferty
U1

Raport o deweloperze
Poznaj dewelopera bliżej! Pobierz raport, w którym znajdziesz kluczowe informacje o firmie, jej doświadczeniu, nagrodach oraz aktualnych i zrealizowanych inwestycjach.
Budynek i otoczenie
Miejsca postojowe | |
|---|---|
Standard wykończenia | standard deweloperski Ogrzewanie miejskie |
Realizacja inwestycji | rozpoczęcie budowy w 2 kw. 2026 roku, planowane oddanie do użytkowania w 1 kw. 2028 roku |
Udogodnienia | monitoring, teren ogrodzony, usługi w budynku, winda, inteligentny dom, instalacja fotowoltaiczna |
Przyroda | informacja u dewelopera |
Charakterystyka energetyczna nieruchomości | informacja u dewelopera |
Rezerwacja i finanse
Rodzaj własności | Odrębna własność z własnością gruntu |
|---|---|
Wysokość czynszu | informacja u dewelopera |
Warunki rezerwacji | Informacja u dewelopera |
Zabezpieczenie środków | Otwarty mieszkaniowy rachunek powierniczy |
Zdjęcia z budowy
Zobacz na jakim etapie budowy jest ta inwestycja
Lokalizacja inwestycji
Stacja kolejowa - Warszawa Raków - 824 m
Przystanek Tramwajowy - 787 m
Przystanek Autobusowy - 447 m
Dojazd do centrum: pokaż
W pobliżu 1 km od tej inwestycji znajdują się:
34 kawiarnie i restauracje, 15 sklepów, 9 obiektów sportowych, 3 placówki medyczne, 7 placówek edukacyjnych, 15 placów zabaw
Przeczytaj więcej o lokalizacji
Włochy to warszawska dzielnica o powierzchni ok. 29 km2, która położona jest na południowo-zachodnim krańcu miasta. Charakterystyczną częścią obszaru jest największy w Polsce port lotniczy Warszawa-Okęcie. Ze względu na obecność lotniska występuje tutaj niska zabudowa: nowoczesne domy wielorodzinne oraz budynki biurowo-usługowe, będące siedzibami znanych firm, np. Avon, Philips, Microsoft, Mercedes-Benz. Włochy zamieszkuje obecnie ok. 39 tys. osób, lecz intensywny rozwój osiedli mieszkaniowych powoduje wzrost liczby ludności. W obrębie dzielnicy znajdują się przestrzenie zielonego krajobrazu: Park Kombatantów, Park Staw Koziorożca, Park Stawy Cietrzewia oraz kilka zieleńców. Tereny zielone wyposażone są w place zabaw, siłownie, place wypoczynkowe i pomosty dla wędkarzy. Pociągi Szybkiej Kolei Miejskiej i Warszawskiej Kolei Dojazdowej pozwalają dojechać do centrum w czasie 15-20 minut. Ważnymi trasami wylotowymi są Al. Jerozolimskie i Al. Krakowska, a arteriami miejskimi – 2 obwodnice.
Opis oferty
Nowy lokal użytkowy na sprzedaż o powierzchni 90,66 m² znajduje się w nowo budowanej inwestycji deweloperskiej Orzechowa 2 na Rakowie, ul. Orzechowa 1 (6.5 km od centrum Warszawy).
Inwestycja jest realizowana przez GH Development.
Cała inwestycja składa się z 2 budynków, w których łącznie znajdują się 5 nowych lokali użytkowych.
Budynki posiadają 6 kondygnacji naziemnych oraz 1 kondygnację podziemną.
Inwestycja Orzechowa 2 jest w trakcie budowy z planowanym na 1 kw. 2028 roku terminem oddania do użytkowania.
Lokal użytkowy o oznaczeniu U1 znajduje się na parterze budynku, a wysokość pomieszczeń wynosi od 260 do 280 cm.
Dla przyszłych właścicieli GH Development przewidział: miejsca postojowe podziemne (127 miejsc), miejsca postojowe naziemne (9 miejsc).
GH Development
Strona internetowa inwestycjiAdres biura sprzedaży:
ul. Orzechowa 3, lokal nr 5, WarszawaGodziny otwarcia biura sprzedaży:
- Poniedziałek: 10:00 - 18:00
- Wtorek: 10:00 - 18:00
- Środa: 10:00 - 18:00
- Czwartek: 10:00 - 18:00
- Piątek: 10:00 - 18:00
- Sobota: 10:00 - 14:00
Biuro znajduje się w lokalu usługowym w budynku inwestycji.





