Apartamenty inwestycyjne z vat 23%
pucki, Mechelinki, ul. Wielopole 36
pucki, Mechelinki, ul. Wielopole 36
:format(jpg)/offers/offer/None/main_image/anchoria-holiday_385c47.jpg)
:format(jpg)/offers/offer/None/main_image/anchoria-holiday_385c47.jpg)
1 zdjęcie
Termin oddania
Gotowe
Powierzchnie
37 - 53/m2
Przedział pokoi
2 - 3
Kondygnacje
4
Budynki
2
Stand. wykończenia
Wykończenie pod klucz
Apartamenty w inwestycji (16)
od 20 161 zł/m2
Sortuj
Przystanek Autobusowy - 274 m
Dojazd do centrum Gdyni: pokaż
W pobliżu 1 km od tej inwestycji znajdują się:
9 kawiarni i restauracji, 10 sklepów, 5 obiektów sportowych, 3 placówki edukacyjne, 5 placów zabaw
Zdjęcia z budowy
Zobacz na jakim etapie budowy jest ta inwestycja
Udogodnienia Inwestycji
Standard i bezpieczeństwo
- monitoring
- recepcja
- winda
- rowerownia
- Wykończenie pod klucz
Instalacje i energetyka
- klimatyzacja
- instalacja fotowoltaiczna
- miejsce do ładowania samochodów elektrycznych
- pompa ciepła
Rekreacja
- plac zabaw
- basen
- sauna
- sala fitness
Przyroda w okolicy
- las
- morze
- rezerwat przyrody
Szczegóły inwestycji
Realizacja inwestycji:
Liczba budynków:
Liczba kondygnacji:
Liczba apartamentów:
Wysokość pomieszczeń:
Standard wykończenia
wykończenie pod klucz
Rodzaj własności:
Powierzchnie dodatkowe:
Komórki lokatorskie:
Miejsca postojowe:
- miejsca postojowe naziemne
Przyroda:
Typ nieruchomości:
Aktualna oferta
Dostępne apartamenty:
Powierzchnie apartamentów:
Liczba pokoi:
Ceny apartamentów:
- kształtują się w zakresie od 809 340 do 1 273 050 zł
- koszt metra kwadratowego wynosi od 20 161 do 24 982 zł
Opis płatności:
Warunki rezerwacji:
Zabezpieczenie środków klienta:
Wysokość czynszu:
Opis inwestycji
Na kompleks Anchoria Holiday złożą się docelowo 2 budynki, w których wygodnie spędzisz czas o każdej porze roku. Znajdować się tu będą apartamenty wraz z zapleczem dodatkowych atrakcji. Na część SPA&Wellness złożą się: basen, sauna oraz strefa fitness. Wygoda to nie tylko czas na relaks, ale również praktyczne rozwiązania. Nieoczywistym udogodnieniem, które z pewnością ułatwi Ci życie na co dzień będzie w naszym obiekcie pralnia, w której zadbasz o odzież do codziennych aktywności, uprawiania sportu i na ważne spotkania.
Inwestycja Anchoria Holiday znajduje się w Mechelinkach, ul. Wielopole 36 (3.2 km od Gdyni), została zrealizowana przez DS Development Sp. z o.o. Sp. K.
Inwestycja Anchoria Holiday została wybudowana i oddana do użytkowania w 2 kw. 2024 roku.
Cały projekt składa się z 88 nowych apartamentów znajdujących się w 2 budynkach. Budynki posiadają 4 kondygnacje naziemne wraz z parterem oraz nie posiadają kondygnacji podziemnych.
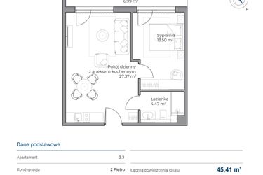
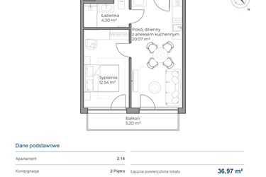
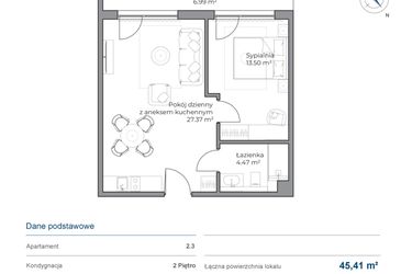
Aktualnie w inwestycji Anchoria Holiday w sprzedaży jest 16 nowych apartamentów o powierzchni od 37 do 53 metrów kwadratowych , w cenie od 20 161 zł za metr kwadratowy.
Dla przyszłych mieszkańców Anchoria Holiday deweloper przewidział:
- miejsca postojowe naziemne
W inwestycji znajdują się komórki lokatorskie wielkość: 3m2.
Lokalizacja inwestycji
Powiat pucki to region o powierzchni 572 km2, leżący w północnej części woj. pomorskiego i liczący sobie ok. 82 400 mieszkańców. Składa się na niego 7 gmin, w których leżą cztery miasta. Stolicą regionu jest Puck. Powiat leży wyjątkowo malowniczym miejscu, od północy granicząc z Bałtykiem, od wschodu z Zatoką Pucką, od południa z Puszczą Darzlubską, Jeziorem Żarnowieckim i wzgórzami morenowymi. W jego granicach leży Półwysep Helski. Znaczna część zabudowy ma tu charakter małomiasteczkowy. Wiele budynków pełni jedynie funkcję turystyczną. W regionie działa szereg ośrodków i domów kultury oraz instytucji sportowych, co zapewnia mieszkańcom liczne rozrywki i daje dostęp do rozbudowanej infrastruktury sportowej. Dzięki plażom, trasom rowerowym i ścieżkom dydaktycznym, są to tereny o wysokich walorach rekreacyjnych. Znajduje się tu ok. 70 szkół różnego szczebla, a o zdrowie mieszkańców dbają lekarze z puckiego szpitala i 34 przychodni lekarskich. Biegną tędy 4 drogi wojewódzkie, kursuje linia kolejowa, a w Pucku mieści się port jachtowy.
Komunikacja
Jak wygląda komunikacja w okolicy inwestycji Anchoria Holiday?
Przez powiat pucki biegną drogi wojewódzkie nr: 213, 215, 216, 218, a niespełna 5 km od jego południowo-wschodniej granicy ciągnie się droga krajowa nr 6. Czynna jest tu także kolej, kursuje linia nr 213. W regionie można również korzystać z mikrobusów. W niektórych miejscowościach latem do dyspozycji są tramwaje wodne i można wypożyczyć melexy. W Pucku znajduje się port jachtowy.
Przyszli mieszkańcy inwestycji Anchoria Holiday mogą korzystać z rozbudowanej sieci połączeń komunikacyjnych. W odległości 300 metrów od inwestycji Anchoria Holiday znajduje się najbliższy punkt komunikacyjny - Mechelinki - Przystań 02.
Edukacja
Czy w pobliżu inwestycji Anchoria Holiday znajdują się szkoły/przedszkola?
Mieszkańcy mogą korzystać z bogatej oferty edukacyjnej. W najbliższej okolicy inwestycji Anchoria Holiday znajdują się 3 placówki edukacyjne. Najbliżej położone to: Zespół Szkolno-Przedszkolny w Mostach w odległości 400 m, Przedszkole Poziomkowo w odległości 1000 m.
Sklepy i usługi
Jak daleko jest do najbliższego sklepu?
Na infrastrukturę handlowo-usługową inwestycji Anchoria Holiday składa się wiele punktów. Nieopodal, w odległości 300 m znajduje się Odido, w odległości 400 m znajduje się sklep z żywnością.
Sport
Bliskość terenów rekreacyjnych oraz obiektów sportowych to mocna strona tej lokalizacji. W najbliższej okolicy inwestycji Anchoria Holiday w odległości 400 m znajduje się siłownia na świeżym powietrzu, w odległości 400 m znajduje się boisko / kort, w odległości 400 m znajduje się bieżnia / tor.
DS Development Sp. z o.o. Sp. K.
Strona internetowa inwestycjiAdres biura sprzedaży:
ul. Wielopole 36, MechelinkiNie mamy stałych godzin pracy. Nasze biuro sprzedaży pracuje od poniedziałku do soboty.
Oferty, które mogą Cię zainteresować
Polecane Lokalizacje
- Mieszkania na sprzedaż Dębogórze (8 ofert)
- Mieszkania na sprzedaż Jastrzębia Góra (177 ofert)
- Mieszkania na sprzedaż Kosakowo (8 ofert)
- Mieszkania na sprzedaż Mosty (8 ofert)
- Mieszkania na sprzedaż Ostrowo (134 oferty)
- Mieszkania na sprzedaż Pogórze (122 oferty)
- Mieszkania na sprzedaż Rozewie (6 ofert)
- Mieszkania na sprzedaż Suchy Dwór (54 oferty)
- Mieszkania na sprzedaż Tupadły (177 ofert)





