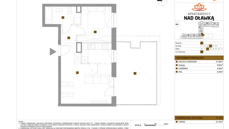
Mieszkanie na sprzedaż 2 pokoje o powierzchni 41,74 m² numer 92
Inwestycja:
Apartamenty nad Oławką etap IIDeweloper:
Dom Development S.A.
Inwestycja:
Apartamenty nad Oławką etap IIDeweloper:
Dom Development S.A.Wrocław, Krzyki, Południe, ul. Krakowska 98
Wrocław, Krzyki, Południe, ul. Krakowska 98
Termin oddania
3 kw. 2026
Ilość pokoi
2 pokoje
Metraż
41,74 m²
Piętro
2 piętro
Powierzchnie dodatkowe
Taras
Kuchnia
otwarta kuchnia
Wysokość pomieszczeń
od 260 do 280 cm wysokości
Ilość poziomów
1 poziom
Oznaczenie oferty
92

Raport o deweloperze
Poznaj dewelopera bliżej! Pobierz raport, w którym znajdziesz kluczowe informacje o firmie, jej doświadczeniu, nagrodach oraz aktualnych i zrealizowanych inwestycjach.
Budynek i otoczenie
Miejsca postojowe | |
|---|---|
Komórki lokatorskie | dostępne |
Standard wykończenia | standard deweloperski |
Realizacja inwestycji | rozpoczęcie budowy w 4 kw. 2023 roku, planowane oddanie do użytkowania w 3 kw. 2026 roku |
Udogodnienia | monitoring, internet, TV kablowa, winda, rowerownia, inteligentny dom, videodomofon, wózkarnia |
Przyroda | w okolicy inwestycji znajduje się park, rzeka |
Charakterystyka energetyczna nieruchomości | informacja u dewelopera |
Rezerwacja i finanse
Rodzaj własności | Odrębna własność z własnością gruntu |
|---|---|
Wysokość czynszu | informacja u dewelopera |
Warunki rezerwacji | Informacja u dewelopera |
Zabezpieczenie środków | Informacja u dewelopera |
Zdjęcia z budowy
Zobacz na jakim etapie budowy jest ta inwestycja
Lokalizacja inwestycji
Stacja kolejowa - Wrocław Główny - 2121 m
Przystanek Tramwajowy - 251 m
Przystanek Autobusowy - 256 m
Dojazd do centrum: pokaż
W pobliżu 1 km od tej inwestycji znajdują się:
4 kawiarnie i restauracje, 11 sklepów, 14 obiektów sportowych, 3 placówki medyczne, 19 placówek edukacyjnych, 11 placów zabaw
Przeczytaj więcej o lokalizacji
Krzyki to dawna dzielnica Wrocławia, znajduje się w południowej części miasta. Zajmuje ponad 54 km2 a na jej terenie mieszka prawie 170 tysięcy osób. Na zabudowę dzielnicy składają się zarówno duże osiedla mieszkaniowe, jak i domy jednorodzinne. Został tu wybudowany także najwyższy budynek w Polsce – Sky Tower. Znajduje się tu dużo zabytkowych willi i inne zabytki takie jak Wieża Ciśnień czy Stary Cmentarz Żydowski. Na Krzykach znajduje się Wrocławski Uniwersytet Ekonomiczny a także ponad 100 szkół elementarnych. Największym centrum handlowym jest Wroclavia o powierzchni 71 000 m2. W południowej części Krzyków znajduje się tor wyścigów konnych Partynice oraz Wrocławski Tatr Pantomimy. Dzielnica posiada połączenia autobusowe i tramwajowe – znajduje się tu 5 pętli tramwajowych. Dwie główne ulice Krzyków, które łączą je z centrum miasta to Powstańców Śląskich oraz Ślężna. Znajduje się tu także Wrocławski Dworzec Główny.
Opis oferty
Nowe 2-pokojowe mieszkanie na sprzedaż o powierzchni 41,74 m² znajduje się w nowo budowanej inwestycji deweloperskiej Apartamenty nad Oławką etap II na Południu, ul. Krakowska 98 (2.6 km od centrum Wrocławia).
Inwestycja jest realizowana przez Dom Development S.A.
Cała inwestycja składa się z 1 budynku, w którym łącznie znajduje się 148 nowych mieszkań.
Na sprzedaż pozostaje 29 ofert o powierzchni od 26 do 107 m².
W budynku jest od 6 do 7 kondygnacji naziemnych oraz 2 kondygnacje podziemne.
Inwestycja Apartamenty nad Oławką etap II jest w trakcie budowy z planowanym na 3 kw. 2026 roku terminem oddania do użytkowania.
Nowe mieszkanie o oznaczeniu 92 znajduje się na 2 piętrze i jest 1-poziomowe. Pomieszczenia mają od 260 do 280 centymetrów wysokości. W mieszkaniu znajdują się 2 pokoje.
Dla przyszłych mieszkańców Apartamenty nad Oławką etap II deweloper przewidział miejsca postojowe podziemne.
Dzięki temu przyszli właściciele nie będą musieli poszukiwać wolnej przestrzeni parkingowej. Dodatkowo, miejsce postojowe w garażu podziemnym zabezpiecza przed niekorzystnymi warunkami atmosferycznymi.
Opis Inwestycji
Tereny zielone
Pow. dodatkowe
Apartamenty nad Oławką to nowa inwestycja premium w ofercie Dom Development, zlokalizowana tuż nad malowniczą rzeką Oławą – w otoczeniu bulwarów, Parku na Niskich Łąkach i Lasu Rakowieckiego. Nowoczesna architektura, eleganckie wnętrza, wysoka jakość materiałów oraz doskonała lokalizacja sprawiają, że jest to wyjątkowe miejsce na mapie Wrocławia.
Lokalizacja jest jednym z największych atutów inwestycji Apartamenty nad Oławką:
• doskonale skomunikowana okolica – kilka przystanków tramwajowych i autobusowych w najbliższej okolicy
• szybki dojazd do centrum (2,5km)
• łatwy wyjazd z miasta dzięki bliskości Alei Wielkiej Wyspy
• bezpośrednie sąsiedztwo bulwarów nad Oławą
• bliska odległość Lasu Rakowieckiego i Parku na Niskich Łąkach
• widok na rzekę Oławę
• bogata oferta szkół i przedszkoli w najbliższym otoczeniu
• liczne punkty usługowe i centrum handlowe Famili Point
Mieszkanie znajduje się w inwestycji Apartamenty nad Oławką etap II, w której znajduje się w sprzedaży jeszcze 17 podobnych nowych mieszkań.
Dom Development S.A.
Strona internetowa inwestycjiAdres biura sprzedaży:
ul. Braniborska 48, Wrocław, Stare MiastoGodziny otwarcia biura sprzedaży:
- Poniedziałek: 10:00 - 18:00
- Wtorek: 11:00 - 18:00
- Środa: 10:00 - 18:00
- Czwartek: 10:00 - 18:00
- Piątek: 10:00 - 18:00
- Sobota: 10:00 - 15:00
Artykuły powiązane:
:format(jpg)/articles/gallery/image/9581/mural-zoliborz-artystyczny_1f4dae.jpg)
Warszawskie projekty deweloperskie ze sztuką
03 maja 2026
Paulina Bartkowska
:format(jpg)/articles/gallery/image/7108/ff77b5.jpg)
Jak deweloperzy zmieniają krajobraz polskich miast?
03 maja 2026
Magdalena Szwed





