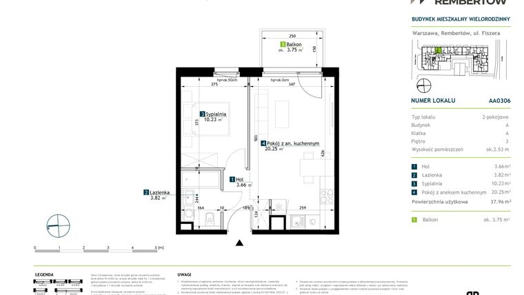
Mieszkanie na sprzedaż 2 pokoje o powierzchni 37,96 m² numer AA0306
Inwestycja:
Stacja RembertówDeweloper:
Develia
Inwestycja:
Stacja RembertówDeweloper:
DeveliaWarszawa, Rembertów, Stary Rembertów, ul. Fiszera 36
Warszawa, Rembertów, Stary Rembertów, ul. Fiszera 36
Termin oddania
2 kw. 2027
Ilość pokoi
2 pokoje
Metraż
37,96 m²
Piętro
3 piętro
Strona świata
wschód
Kuchnia
otwarta kuchnia
Wysokość pomieszczeń
253 cm wysokości
Ilość poziomów
1 poziom
Oznaczenie oferty
AA0306

Raport o deweloperze
Poznaj dewelopera bliżej! Pobierz raport, w którym znajdziesz kluczowe informacje o firmie, jej doświadczeniu, nagrodach oraz aktualnych i zrealizowanych inwestycjach.
Budynek i otoczenie
Miejsca postojowe | |
|---|---|
Komórki lokatorskie | dostępne (9): obowiązkowy zakup; od 2,7 do 3,5 m2; 17 000.28 zł/m2 |
Standard wykończenia | standard deweloperski Ogrzewanie kotłownie gazowe |
Realizacja inwestycji | rozpoczęcie budowy w 4 kw. 2025 roku, planowane oddanie do użytkowania w 2 kw. 2027 roku |
Udogodnienia | monitoring, teren ogrodzony, winda, instalacja fotowoltaiczna, miejsce do ładowania samochodów elektrycznych |
Przyroda | informacja u dewelopera |
Charakterystyka energetyczna nieruchomości | informacja u dewelopera |
Rezerwacja i finanse
Rodzaj własności | Odrębna własność z własnością gruntu |
|---|---|
Wysokość czynszu | informacja u dewelopera |
Warunki rezerwacji | Informacja u dewelopera |
Zabezpieczenie środków | Otwarty mieszkaniowy rachunek powierniczy |
Zdjęcia z budowy
Zobacz na jakim etapie budowy jest ta inwestycja
Lokalizacja inwestycji
Stacja kolejowa - Warszawa Rembertów - 616 m
Przystanek Autobusowy - 91 m
Dojazd do centrum: pokaż
W pobliżu 1 km od tej inwestycji znajdują się:
15 kawiarni i restauracji, 29 sklepów, 43 obiekty sportowe, 5 placówek medycznych, 33 placówki edukacyjne, 11 placów zabaw
Przeczytaj więcej o lokalizacji
Stacja Rembertów powstaje zaledwie 200 metrów od stacji SKM Warszawa Rembertów, co gwarantuje szybki i wygodny dojazd do centrum stolicy. W promieniu spaceru znajdują się sklepy punkty usługowe, restauracje, kawiarnie, a także place zabaw, siłownie plenerowe i Las Rembertowski – idealne miejsce na codzienny odpoczynek.
Dzielnica Rembertów na wschodzie Warszawy należy do najmniej zaludnionych rejonów miasta. Na obszarze liczącym niespełna 20 km2 powierzchni zamieszkuje ok. 24 tys. osób, co wpływa na bezpieczeństwo lokalnej ludności. Przyczyną niewielkiej liczby mieszkańców jest niska – jednorodzinna i wielorodzinna zabudowa oraz znaczna ilość obszarów leśnych, które stanowią aż 30% terenu Rembertowa. Do najbardziej wartościowych kompleksów zieleni należy rezerwat przyrody Kawęczyn. Usytuowanie na obrzeżach miasta, zaciszna i spokojna okolica, walory przyrodnicze oraz wciąż powstająca niska zabudowa mieszkaniowa sprawiają, że dzielnica jest atrakcyjnym miejscem zamieszkania. Sprawną komunikację między Rembertowem a centrum stolicy zapewniają linie Szybkiej Kolei Miejskiej (podróż trwa zaledwie 15 minut). Charakterystycznym rysem dzielnicy są obiekty wojskowe: Akademia Obrony Narodowej, Centralne Archiwum Wojskowe oraz Wojskowy Instytut Chemii i Radiometrii.
Opis oferty
Nowe 2-pokojowe mieszkanie na sprzedaż o powierzchni 37,96 m² znajduje się w nowo budowanej inwestycji deweloperskiej Stacja Rembertów na Starym Rembertowie, ul. Fiszera 36 (11.1 km od centrum Warszawy).
Inwestycja jest realizowana przez Develia.
Cała inwestycja składa się z 1 budynku, w którym łącznie znajdują się 64 nowe mieszkania.
Na sprzedaż pozostaje 19 ofert o powierzchni od 29 do 178 m².
W budynku są 4 kondygnacje naziemne oraz 1 kondygnacja podziemna.
Inwestycja Stacja Rembertów jest w trakcie budowy z planowanym na 2 kw. 2027 roku terminem oddania do użytkowania.
Nowe mieszkanie o oznaczeniu AA0306 znajduje się na 3 piętrze i jest 1-poziomowe. Pomieszczenia mają 253 centymetrów wysokości. W mieszkaniu znajdują się 2 pokoje.
Do mieszkania przewidziano możliwość zakupu komórki lokatorskiej, którą można zagospodarować na spiżarnię, warsztat czy składzik.
Okna w mieszkaniu wychodzą na wschód.
Wschodnia orientacja zapewnia dostęp do łagodnego porannego światła, idealnego dla rozpoczęcia dnia pełnego energii. Wnętrza pozostają jasne, ale nieprzegrzane, co sprzyja utrzymaniu komfortowej temperatury. Przebywanie w pomieszczeniu z oknami na wschód inspiruje do działania i pozytywnie wpływa na poranny rytuał.
Dla przyszłych mieszkańców Stacja Rembertów deweloper przewidział miejsca postojowe podziemne.
Dzięki temu przyszli właściciele nie będą musieli poszukiwać wolnej przestrzeni parkingowej. Dodatkowo, miejsce postojowe w garażu podziemnym zabezpiecza przed niekorzystnymi warunkami atmosferycznymi.
Opis Inwestycji
Stacja Rembertów to nowoczesna i kameralna inwestycja mieszkaniowa zlokalizowana przy ul. S. Fiszera 36, w zielonej i spokojnej części warszawskiego Rembertowa. W 3-piętrowym budynku zaplanowano 62 funkcjonalne mieszkania o powierzchni od 28 do 77 mkw. – od kompaktowych kawalerek idealnych na start, po przestronne 4-pokojowe lokale odpowiadające na potrzeby rodzin. Każde mieszkanie posiadać będzie balkon lub loggię, które stworzą dodatkową przestrzeń do relaksu.
Dodatkowym elementem oferty są dwa unikatowe apartamenty powstające w zmodernizowanym, zabytkowym budynku przy ul. Cyrulików – o powierzchni 86 mkw. i 180 mkw.
W ramach inwestycji mieszkańcy zyskają dostęp do stylowo zaprojektowanych części wspólnych, hali garażowej i zadaszonego parkingu rowerowego, ogrodzonego terenu zapewniającego prywatność i bezpieczeństwo.
Projekt realizowany jest z myślą o ekologii – zastosowano tu panele fotowoltaiczne, jasne pokrycie dachu redukujące nagrzewanie budynku oraz system retencji wody deszczowej wykorzystywanej m.in. do podlewania zieleni.
ATUTY
• Kameralne budynki o minimalistycznej, eleganckiej formie
• Stylowe części wspólne wykończone materiałami wysokiej jakości
• Szeroki wybór funkcjonalnych mieszkań
• Balkony i loggie
• Proekologiczne rozwiązania
• Zadaszony parking rowerowy
• 200 m od stacji SKM Warszawa Rembertów
• Liczne tereny zielone i rekreacyjne w okolicy
Niniejszy materiał nie stanowi oferty w rozumieniu Kodeksu cywilnego i ma charakter wyłącznie informacyjny.
Mieszkanie znajduje się w inwestycji Stacja Rembertów, w której znajduje się w sprzedaży jeszcze 5 podobnych nowych mieszkań.
Develia
Strona internetowa inwestycjiAdres biura sprzedaży:
ul. Podskarbińska 32, 03-829 Warszawa (Lokal usługowy U6, wejście od ul. Drwęckiej)Godziny otwarcia biura sprzedaży:
- Poniedziałek: 10:00 - 18:00
- Wtorek: 10:00 - 18:00
- Środa: 10:00 - 18:00
- Czwartek: 10:00 - 18:00
- Piątek: 09:00 - 17:00
- Sobota: 10:00 - 15:00





