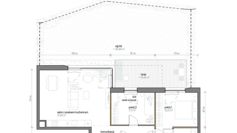
Mieszkanie na sprzedaż 3 pokoje o powierzchni 79,02 m² numer B/-1/2
Inwestycja:
Kopernika 71Deweloper:
Develia
Inwestycja:
Kopernika 71Deweloper:
DeveliaGdynia, Redłowo, ul. Kopernika 71A
Gdynia, Redłowo, ul. Kopernika 71A
Termin oddania
2 kw. 2027
Ilość pokoi
3 pokoje
Metraż
79,02 m²
Piętro
-1 piętro
Strona świata
wschód
Powierzchnie dodatkowe
Taras, Ogródek
Kuchnia
otwarta kuchnia
Wysokość pomieszczeń
od 280 do 300 cm wysokości
Ilość poziomów
1 poziom
Oznaczenie oferty
B/-1/2

Raport o deweloperze
Poznaj dewelopera bliżej! Pobierz raport, w którym znajdziesz kluczowe informacje o firmie, jej doświadczeniu, nagrodach oraz aktualnych i zrealizowanych inwestycjach.
Budynek i otoczenie
Miejsca postojowe | |
|---|---|
Komórki lokatorskie | dostępne (56): obowiązkowy zakup; od 2,8 do 10 m2 |
Standard wykończenia | standard deweloperski Ogrzewanie miejskie OPEC |
Realizacja inwestycji | oddanie do użytkowania w 2 kw. 2027 roku |
Udogodnienia | winda, monitoring, ochrona całodobowa, teren ogrodzony, plac zabaw, sauna, rowerownia, inteligentny dom, sala fitness, wózkarnia, instalacja fotowoltaiczna, videodomofon, klub fitness |
Przyroda | w okolicy inwestycji znajduje się morze, las, rezerwat przyrody |
Charakterystyka energetyczna nieruchomości | informacja u dewelopera |
Rezerwacja i finanse
Rodzaj własności | Odrębna własność z własnością gruntu |
|---|---|
Wysokość czynszu | informacja u dewelopera |
Warunki rezerwacji | 5 000 zł |
Zabezpieczenie środków | Otwarty mieszkaniowy rachunek powierniczy i gwarancję bankową |
Zdjęcia z budowy
Zobacz na jakim etapie budowy jest ta inwestycja
Lokalizacja inwestycji
Stacja kolejowa - Gdynia Redłowo - 1007 m
Przystanek Autobusowy - 447 m
Dojazd do centrum: pokaż
W pobliżu 1 km od tej inwestycji znajdują się:
10 kawiarni i restauracji, 32 sklepy, 47 obiektów sportowych, 23 placówki medyczne, 18 placówek edukacyjnych, 26 placów zabaw
Przeczytaj więcej o lokalizacji
Gdynia Redłowo, to jedna z nielicznych gdyńskich dzielnic, która styka się z bezpośrednio z pasem nadmorskim. Sąsiaduje z rezerwatem przyrody Kępa Redłowska. To unikalny i sławny z obrazów marynistycznych fragment stromego brzegu morskiego, gdzie u podnóża biegnie romantyczna trasa spacerowa. Łączy ona Gdynię z Sopotem. Idąc w kierunku centrum Gdyni, zaledwie po 20 minutach spacerowym tempem dojdziemy do urokliwej Polanki Redłowskiej. To miejsce upodobali sobie na relaks i odpoczynek mieszkańcy Gdyni. Natomiast kierując się leśnymi ścieżkami w kierunku Sopotu napotkamy wiele romantycznych widoków panoramy morza oraz starodrzewia. Nieopodal znajduje się molo w Orłowie z przystanią łodzi rybackich. Po porannych połowach można tu nabyć świeże ryby. Miejsce to sobie upatrzył i pomieszkiwał Stefan Żeromski, tworząc swoje dzieła literatury. Na orłowskiej plaży, w sezonie możemy spędzić czas w Letnim Teatrze Gombrowicza, oglądając szereg sztuk. Wrażenie odbioru potęguje szum fal i ciepła morska bryza. Gdynia Redłowo składa się w głównie z bloków mieszkalnych z lat 80-tych i domków jednorodzinnych. Główna ulica to al. Zwycięstwa a połączenia kolejowe umożliwia lokalny przystanek SKM Redłowo. Jeśli chodzi o opiekę medyczną, znajduje się tu Szpital Morski im. PCK a także Instytut Medycyny Morskiej i Tropikalnej. Największą atrakcją Redłowa- poza warunkami przyrodniczymi – jest Pomorski Park Naukowo-Technologiczny. Na terenie dzielnicy znajduje się supermarket Alma i kilkadziesiąt sklepów osiedlowych a najbliższym centrum handlowym jest Riviera (100 m).
Opis oferty
Nowe 3-pokojowe mieszkanie na sprzedaż o powierzchni 79,02 m² znajduje się w nowo wybudowanej inwestycji deweloperskiej Kopernika 71 na Redłowie, ul. Kopernika 71A (2.2 km od centrum Gdyni).
Inwestycja została zrealizowana przez Develia.
Cała inwestycja składa się z 3 budynków, w których łącznie znajduje się 56 nowych mieszkań.
Na sprzedaż pozostają 32 oferty o powierzchni od 43 do 119 m².
W budynkach są 3 kondygnacje naziemne oraz 2 kondygnacje podziemne.
Inwestycja Kopernika 71 jest w trakcie budowy z planowanym na 2 kw. 2027 roku terminem oddania do użytkowania.
Nowe mieszkanie o oznaczeniu B/-1/2 znajduje się na -1 piętrze i jest 1-poziomowe. Pomieszczenia mają od 280 do 300 centymetrów wysokości. W mieszkaniu znajdują się 3 pokoje.
Do mieszkania przewidziano możliwość zakupu komórki lokatorskiej, którą można zagospodarować na spiżarnię, warsztat czy składzik.
Okna w mieszkaniu wychodzą na wschód.
Wschodnia orientacja zapewnia dostęp do łagodnego porannego światła, idealnego dla rozpoczęcia dnia pełnego energii. Wnętrza pozostają jasne, ale nieprzegrzane, co sprzyja utrzymaniu komfortowej temperatury. Przebywanie w pomieszczeniu z oknami na wschód inspiruje do działania i pozytywnie wpływa na poranny rytuał.
Dla przyszłych mieszkańców Kopernika 71 deweloper przewidział miejsca postojowe podziemne.
Dzięki temu przyszli właściciele nie będą musieli poszukiwać wolnej przestrzeni parkingowej. Dodatkowo, miejsce postojowe w garażu podziemnym zabezpiecza przed niekorzystnymi warunkami atmosferycznymi.
Opis Inwestycji
Pow. dodatkowe
Projekt obejmuje trzy kameralne segmenty o łącznej liczbie 56 apartamentów, o powierzchniach od 43 do 125 m². Lokale wyróżniają się dużymi, przesuwnymi oknami, które zapewniają maksymalne doświetlenie wnętrz i widok na otaczającą przyrodę. Do każdego apartamentu przynależy przestronny taras lub prywatny ogródek.
Atuty inwestycji
• Elegancki design i ponadczasowa architektura autorstwa pracowni Arch-Deco
• Kameralny charakter – tylko 56 apartamentów w trzech budynkach
• Bliskość morza i centrum Gdyni, w otoczeniu zieleni rezerwatu Kępa Redłowska
• Strefa rekreacyjna: sala fitness, sauna, przestrzeń do jogi, sala klubowa
• Przestrzeń dla mieszkańców: patio z kaskadową roślinnością, rowerownia z warsztatem, myjka dla pupili i rowerów, wózkarnia
• Rozwiązania smart: wideodomofony, monitoring, systemy oszczędzania energii
• Ekologia w praktyce: panele fotowoltaiczne i system retencji deszczówki
• Parking podziemny i komórki lokatorskie dla wygody mieszkańców
Niniejszy materiał nie stanowi oferty w rozumieniu Kodeksu cywilnego i ma charakter wyłącznie informacyjny.
Mieszkanie znajduje się w inwestycji Kopernika 71, w której znajduje się w sprzedaży jeszcze 9 podobnych nowych mieszkań.
Develia
Strona internetowa inwestycjiAdres biura sprzedaży:
ul. Morska 189, 81-222 GdyniaGodziny otwarcia biura sprzedaży:
- Poniedziałek: 10:00 - 18:00
- Wtorek: 10:00 - 18:00
- Środa: 10:00 - 18:00
- Czwartek: 10:00 - 18:00
- Piątek: 10:00 - 18:00
- Sobota: 10:00 - 15:00





