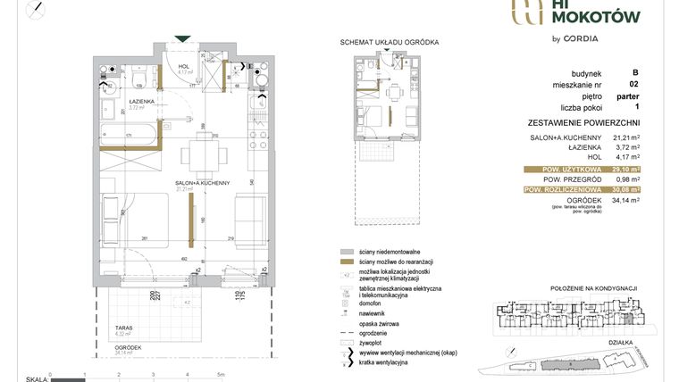
Mieszkanie na sprzedaż 1 pokój o powierzchni 29,08 m² numer A1.B.02
Inwestycja:
Hi MokotówDeweloper:
Cordia Polska
Inwestycja:
Hi MokotówDeweloper:
Cordia PolskaWarszawa, Ursynów, Osiedle Wyczółki, ul. Bokserska 63
Warszawa, Ursynów, Osiedle Wyczółki, ul. Bokserska 63
Oddanie
Gotowe
Ilość pokoi
1 pokój
Metraż
29,08 m²
Piętro
Parter
Kuchnia
otwarta kuchnia
Wysokość
263 cm wysokości
Poziomy
1 poziom
Oznaczenie oferty
A1.B.02

Raport o deweloperze
Poznaj dewelopera bliżej! Pobierz raport, w którym znajdziesz kluczowe informacje o firmie, jej doświadczeniu, nagrodach oraz aktualnych i zrealizowanych inwestycjach.
Budynek i otoczenie
Miejsca postojowe | |
|---|---|
Komórki lokatorskie | dostępne: boks rowerowy z paneli systemowych, cena od 9 000 do 47 000 zł |
Standard wykończenia | standard deweloperski Ogrzewanie miejskie |
Realizacja inwestycji | rozpoczęcie budowy w 2 kw. 2024 roku, inwestycja została oddana do użytkowania w 1 kw. 2026 roku |
Udogodnienia | ochrona całodobowa, plac zabaw, monitoring, winda, rowerownia, siłownia plenerowa, instalacja fotowoltaiczna, miejsce do ładowania samochodów elektrycznych |
Przyroda | informacja u dewelopera |
Charakterystyka energetyczna nieruchomości |
|
Rezerwacja i finanse
Rodzaj własności | Odrębna własność z użytkowaniem wieczystym gruntu |
|---|---|
Wysokość czynszu | informacja u dewelopera |
Warunki rezerwacji | bezpłatna na 48 godzin |
Zabezpieczenie środków | Otwarty mieszkaniowy rachunek powierniczy |
Postępy i zdjęcia z budowy
Zobacz na jakim etapie budowy jest ta inwestycja
Lokalizacja inwestycji
Metro - Służew - 2255 m
Przystanek Tramwajowy - 1078 m
Przystanek Autobusowy - 138 m
Dojazd do centrum: pokaż
W pobliżu 1 km od tej inwestycji znajdują się:
71 kawiarni i restauracji, 57 sklepów, 24 obiekty sportowe, 23 placówki medyczne, 20 placówek edukacyjnych, 29 placów zabaw
Przeczytaj więcej o lokalizacji
Usytuowany na południu Warszawy Ursynów zajmuje zarówno pod względem obszaru, jak i liczby mieszkańców, trzecie miejsce wśród największych dzielnic stolicy. Na powierzchni liczącej ok. 44 km2 mieszka ok. 148 tys. ludzi, lecz dzielnica nie jest zatłoczona. Sprzyja temu obecność przestrzeni naturalnego krajobrazu: Rezerwatu Las Kabacki i polodowcowego Jeziora Imielińskiego, a także miejskiej zieleni, jak: Park Romana Kozłowskiego, Gucin Gaj czy Ogród Botaniczny PAN. Ursynów to największe w stolicy skupisko osiedli mieszkaniowych, jednakże zabudowa jest niejednolita. Dominują blokowiska, na Moczydle i Ursynowie Zachodnim znajdują się osiedla domków jednorodzinnych, zaś w Wolicy występują domy reprezentujące dawne budownictwo podmiejskie. Na terenie dzielnicy znajdują się tory do wyścigów konnych, Arena Ursynów oraz Park Kultury w Powsinie. Do Śródmieścia można dojechać metrem, które odjeżdża z pięciu stacji, a głównymi arteriami są: Al. KEN, Al. Jana Anody Rodowicza czy ul. Puławska.
Opis oferty
Nowe 1-pokojowe mieszkanie na sprzedaż o powierzchni 29,08 m² znajduje się w nowo budowanej inwestycji deweloperskiej Hi Mokotów na Osiedlu Wyczółki, ul. Bokserska 63 (6.8 km od centrum Warszawy).
Inwestycja jest realizowana przez Cordia Polska.
Cała inwestycja składa się z 3 budynków, w których łącznie znajdują się 224 nowe mieszkania.
Na sprzedaż pozostaje 57 ofert o powierzchni od 29 do 92 m².
W budynkach jest 8 kondygnacji naziemnych oraz 2 kondygnacje podziemne.
Inwestycja Hi Mokotów została wybudowana i oddana do użytkowania w 1 kw. 2026 roku.
Nowe mieszkanie o oznaczeniu A1.B.02 znajduje się na parterze i jest 1-poziomowe. Pomieszczenia mają 263 centymetrów wysokości. W mieszkaniu znajduje się 1 pokój.
Dla przyszłych mieszkańców Hi Mokotów deweloper przewidział miejsca postojowe naziemne.
Dzięki temu przyszli właściciele nie będą musieli poszukiwać wolnej przestrzeni parkingowej.
Opis Inwestycji
Okazyjna cena
Inwestycja Hi Mokotów to nowe, gotowe, pełne charakteru osiedle mieszkaniowe powstałe przy ulicy Bokserskiej 63, która stanowi granicę pomiędzy Mokotowem i Ursynowem. Jest to idealne miejsce do zamieszkania, oferujące łatwy dostęp do sklepów, restauracji, parków i komunikacji miejskiej. Dzięki bliskości centrum miasta i strefy biurowej Służewca, a także nowoczesnej architekturze, bogatej ofercie udogodnień i zastosowaniu rozwiązań przyjaznych środowisku, projekt ten przyciąga młodych i energicznych ludzi, którzy szukają mieszkania bez kompromisów. Hi Mokotów zapewnia nie tylko przyjazne otoczenie i łatwe dojazdy, ale także wyróżnia się kreatywnym akcentem w postaci artystycznego muralu, który zdobi jedną ze ścian.
Inwestycja Hi Mokotów kładzie duży nacisk na nowoczesne udogodnienia, które mają na celu zapewnienie komfortu na co dzień, nie zapominając przy tym o ekologii. Wśród nich znajdują się:
• system rozpoznawania tablic rejestracyjnych przy wjeździe do garażu podziemnego,
• plac zabaw i siłownia na świeżym powietrzu,
• system kontroli dostępu do budynku, obsługiwany za pomocą aplikacji mobilnej,
• panele fotowoltaiczne na dachu, które mogą dostarczyć do 20% energii potrzebnej do obsługi części wspólnych, wykorzystując energię odnawialną,
• stojaki na rowery na zewnątrz oraz w garażu podziemnym,
• system retencji wody deszczowej, wykorzystywany do nawadniania terenów zielonych,
• AED znajdujące się na terenie osiedla.
Hi Mokotów cieszy się doskonałą lokalizacją, która sprzyja aktywnemu trybowi życia w mieście. Pomimo spokojnego charakteru okolicy, mieszkańcy mają łatwy dostęp do różnorodnych aktywności, od joggingu w parku, przez spotkania biznesowe na Służewcu, po codzienne zakupy czy przedszkole dla dzieci.
- 3 min pieszo do sklepu Biedronka
- 10 min. spacerem do PKP Okęcie
- 8 min. autem do Galerii Handlowej Westfield Mokotów
- 9 min. samochodem do P+R Metro Wilanowska
- 8 min rowerem do Parku nad Stawem Służewieckim
Mieszkanie znajduje się w inwestycji Hi Mokotów, w której znajdują się w sprzedaży jeszcze 4 podobne nowe mieszkania.
Cordia Polska
Strona internetowa inwestycjiAdres biura sprzedaży:
ul. Kłobucka 27 lok. U4 WarszawaGodziny otwarcia biura sprzedaży:
- Poniedziałek: 09:30 - 17:30
- Wtorek: 09:30 - 17:30
- Środa: 09:30 - 17:30
- Czwartek: 09:30 - 17:30
- Piątek: 09:30 - 17:30





