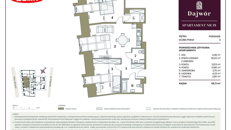
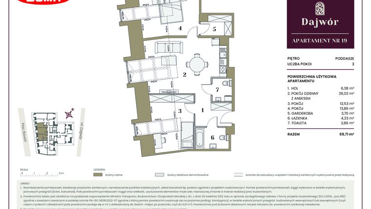
Mieszkanie na sprzedaż 3 pokoje o powierzchni 69,71 m² numer 19
Inwestycja:
DajwórDeweloper:
Buma Dajwór P.S.A.
Inwestycja:
DajwórDeweloper:
Buma Dajwór P.S.A.Kraków, Stare Miasto, ul. Dajwór
Kraków, Stare Miasto, ul. Dajwór
Termin oddania
2 kw. 2028
Ilość pokoi
3 pokoje
Metraż
69,71 m²
Piętro
3 piętro
Kuchnia
otwarta kuchnia
Wysokość pomieszczeń
od 260 do 280 cm wysokości
Ilość poziomów
1 poziom
Oznaczenie oferty
19

Raport o deweloperze
Poznaj dewelopera bliżej! Pobierz raport, w którym znajdziesz kluczowe informacje o firmie, jej doświadczeniu, nagrodach oraz aktualnych i zrealizowanych inwestycjach.
Budynek i otoczenie
Miejsca postojowe | |
|---|---|
Standard wykończenia | standard deweloperski Ogrzewanie MPEC |
Realizacja inwestycji | rozpoczęcie budowy w 3 kw. 2025 roku, planowane oddanie do użytkowania w 2 kw. 2028 roku |
Udogodnienia | ochrona całodobowa, monitoring, teren ogrodzony, usługi concierge, klimatyzacja, recepcja, usługi w budynku, winda, rowerownia, inteligentny dom, miejsce do ładowania samochodów elektrycznych, rekuperacja |
Przyroda | informacja u dewelopera |
Charakterystyka energetyczna nieruchomości | informacja u dewelopera |
Rezerwacja i finanse
Rodzaj własności | Odrębna własność z własnością gruntu |
|---|---|
Wysokość czynszu | informacja u dewelopera |
Warunki rezerwacji | Informacja u dewelopera |
Zabezpieczenie środków | Informacja u dewelopera |
Zdjęcia z budowy
Zobacz na jakim etapie budowy jest ta inwestycja
Lokalizacja inwestycji
Stacja kolejowa - Kraków Zabłocie - 635 m
Przystanek Tramwajowy - 127 m
Przystanek Autobusowy - 149 m
Dojazd do centrum: pokaż
W pobliżu 1 km od tej inwestycji znajdują się:
525 kawiarni i restauracji, 150 sklepów, 33 obiekty sportowe, 42 placówki medyczne, 58 placówek edukacyjnych, 22 place zabaw
Przeczytaj więcej o lokalizacji
Stare Miasto to z pewnością najważniejsza część Krakowa. Jest dzielnicą I i zajmuje powierzchnię 556,76 ha. Ze względu na długą, sięgającą VIII w. historię, jest to okolica obfitująca w zabytki znane nie tylko w kraju, ale i na całym świecie. Stare Miasto w Krakowie wpisane jest na Listę Światowego Dziedzictwa UNESCO. Na krakowskim Starym Mieście poza budowlami utrzymanymi w stylistyce barokowej, gotyckiej i renesansowej, znajdują się także obiekty eklektyczne. Mimo wypełnienia powierzchni użytkowej, na krakowskim Starym Mieście wciąż powstają luksusowe lokale mieszkalne tworzone w kamienicach poddawanych renowacji. Choć jest to serce Krakowa, to można znaleźć tu tereny zielone, jak np. Bulwary Nadwiślańskie, Planty czy place zabaw. Specyficzny klimat zabytków Starego Miasta w Krakowie wspaniale łączy się z nowoczesnością, a Sukiennice i Zamek Królewski na Wawelu znajdują się w niedalekiej odległości od liczącej sobie 270 sklepów Galerii Krakowskiej. Na Starym Mieście mieszczą się 4 kina i 6 teatrów, funkcjonuje 15 szkół i 6 zespołów oświatowych, o różnych profilach kształcenia. Najważniejszy jest krakowski Uniwersytet Jagielloński, który ma tu swoją główną siedzibę. Dzielnica I Stare Miasto tętni życiem. Wiele osób kojarzy obszar tylko i wyłącznie z turystyką. Jednak nic bardziej mylnego, w dzielnicy znajdziemy wszystkie potrzebne urzędy takie jak: Urząd Skarbowy Kraków - Stare Miasto czy pocztę.
Opis oferty
Nowe 3-pokojowe mieszkanie na sprzedaż o powierzchni 69,71 m² znajduje się w nowo budowanej inwestycji deweloperskiej Dajwór na Starym Mieście, ul. Dajwór (1.5 km od centrum Krakowa).
Inwestycja jest realizowana przez Buma Dajwór P.S.A.
Cała inwestycja składa się z 1 budynku, w którym łącznie znajduje się 20 nowych mieszkań.
Na sprzedaż pozostaje 15 ofert o powierzchni od 40 do 106 m².
W budynku są 3 kondygnacje naziemne oraz 1 kondygnacja podziemna.
Inwestycja Dajwór jest w trakcie budowy z planowanym na 2 kw. 2028 roku terminem oddania do użytkowania.
Nowe mieszkanie o oznaczeniu 19 znajduje się na 3 piętrze i jest 1-poziomowe. Pomieszczenia mają od 260 do 280 centymetrów wysokości. W mieszkaniu znajdują się 3 pokoje.
Dla przyszłych mieszkańców Dajwór deweloper przewidział miejsca postojowe podziemne, miejsca postojowe naziemne.
Dzięki temu przyszli właściciele nie będą musieli poszukiwać wolnej przestrzeni parkingowej. Dodatkowo, miejsce postojowe w garażu podziemnym zabezpiecza przed niekorzystnymi warunkami atmosferycznymi.
Opis Inwestycji
Kameralny budynek
Tereny zielone
Zamieszkaj na Kazimierzu
Krakowski Kazimierz to jedno z najbardziej klimatycznych i rozpoznawalnych miejsc w Polsce. Sztuka, nauka i kultura łączą się tu w niepowtarzalny sposób, a tradycja przeplata się z nowoczesnością.
W jego sercu, przy ulicy Dajwór, ulokowana została wyjątkowa inwestycja, która wpisuje się w historyczny charakter okolicy, oferując jednocześnie najwyższy komfort życia. Stylowy budynek, nawiązujący do kulturowego i architektonicznego Kazimierza, zapewnia wiele udogodnień współczesnego budownictwa.
Mieszkanie znajduje się w inwestycji Dajwór, w której znajduje się w sprzedaży jeszcze 6 podobnych nowych mieszkań.
Buma Dajwór P.S.A.
Strona internetowa inwestycjiAdres biura sprzedaży:
ul. Wadowicka 3b, 30-347 KrakówGodziny otwarcia biura sprzedaży:
- Poniedziałek: 08:00 - 16:00
- Wtorek: 08:00 - 16:00
- Środa: 08:00 - 16:00
- Czwartek: 08:00 - 16:00
- Piątek: 08:00 - 16:00





