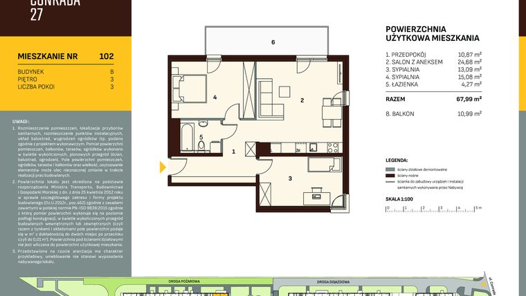
Mieszkanie na sprzedaż 3 pokoje o powierzchni 67,99 m² numer B.102
Promocja
Inwestycja:
Conrada 27Deweloper:
Buma Conrada Sp. z o.o.
Inwestycja:
Conrada 27Deweloper:
Buma Conrada Sp. z o.o.Kraków, Prądnik Biały, ul. Josepha Conrada 27
Kraków, Prądnik Biały, ul. Josepha Conrada 27
Termin oddania
Gotowe
Ilość pokoi
3 pokoje
Metraż
67,99 m²
Piętro
3 piętro
Kuchnia
otwarta kuchnia
Wysokość pomieszczeń
260 cm wysokości
Ilość poziomów
1 poziom
Oznaczenie oferty
B.102

Raport o deweloperze
Poznaj dewelopera bliżej! Pobierz raport, w którym znajdziesz kluczowe informacje o firmie, jej doświadczeniu, nagrodach oraz aktualnych i zrealizowanych inwestycjach.
Budynek i otoczenie
Miejsca postojowe | |
|---|---|
Komórki lokatorskie | dostępne (53) |
Standard wykończenia | standard deweloperski Ogrzewanie MPEC |
Realizacja inwestycji | rozpoczęcie budowy w 3 kw. 2023 roku, inwestycja została oddana do użytkowania w 4 kw. 2025 roku |
Udogodnienia | plac zabaw, winda, rowerownia, wózkarnia |
Przyroda | informacja u dewelopera |
Charakterystyka energetyczna nieruchomości |
|
Rezerwacja i finanse
Rodzaj własności | Odrębna własność z własnością gruntu |
|---|---|
Wysokość czynszu | informacja u dewelopera |
Warunki rezerwacji | 30 dni |
Zabezpieczenie środków | Otwarty mieszkaniowy rachunek powierniczy |
Zdjęcia z budowy
Zobacz na jakim etapie budowy jest ta inwestycja
Lokalizacja inwestycji
Stacja kolejowa - Kraków Bronowice - 975 m
Przystanek Tramwajowy - 1139 m
Przystanek Autobusowy - 210 m
Dojazd do centrum: pokaż
W pobliżu 1 km od tej inwestycji znajdują się:
29 kawiarni i restauracji, 42 sklepy, 24 obiekty sportowe, 12 placówek medycznych, 31 placówek edukacyjnych, 31 placów zabaw
Przeczytaj więcej o lokalizacji
Prądnik Biały to dzielnica IV Krakowa. Jest częścią miasta najbardziej wysuniętą na północ i zajmującą obszar 2341,87 ha. Powstała z połączenia 5 historycznych miejscowości. Zamieszkuje ją 69 135 osób. Jest jedną z tych części Krakowa, których zabudowa jest najbardziej zróżnicowana. Większość nieruchomości stanowią tu osiedla bloków mieszkalnych wzniesione w latach 60-tych, jednak uzupełnione są one blokami z wielkiej płyty powstałymi w latach 70-tych. Do tego dochodzą nowsze osiedla domów jednorodzinnych, a także domy szeregowe. Choć rozmaitość krajobrazu architektonicznego wskazuje na stały rozwój dzielnicy, to wciąż jeszcze można tu znaleźć elementy zabudowy typowo wiejskiej. W okolicy wiele jest miejsc rekreacyjnych idealnych do zabaw dla dzieci. Znajduje się tu 20 ogródków jordanowskich. W dzielnicy działa też 5 klubów sportowych. Dobrze rozbudowana jest infrastruktura oświatowa, o czym świadczy 10 funkcjonujących tu szkół i 4 zespoły szkolne. Zaletą dzielnicy jest też sieć połączeń komunikacyjnych z innymi częściami Krakowa. Działa tu łącznie 30 linii autobusowych i 5 linii tramwajowych. Przez Prądnik Biały przechodzi też droga krajowa nr 7 i droga wojewódzka nr 794.
Opis oferty
Nowe 3-pokojowe mieszkanie na sprzedaż o powierzchni 67,99 m² znajduje się w nowo budowanej inwestycji deweloperskiej Conrada 27 na Prądniku Białym, ul. Josepha Conrada 27 (4 km od centrum Krakowa).
Inwestycja jest realizowana przez Buma Conrada Sp. z o.o.
Cała inwestycja składa się z 3 budynków, w których łącznie znajdują się 144 nowe mieszkania.
Na sprzedaż pozostają 23 oferty o powierzchni od 27 do 71 m².
W budynkach jest 6 kondygnacji naziemnych oraz 1 kondygnacja podziemna.
Inwestycja Conrada 27 została wybudowana i oddana do użytkowania w 4 kw. 2025 roku.
Nowe mieszkanie o oznaczeniu B.102 znajduje się na 3 piętrze i jest 1-poziomowe. Pomieszczenia mają 260 centymetrów wysokości. W mieszkaniu znajdują się 3 pokoje.
Do mieszkania przewidziano możliwość zakupu komórki lokatorskiej, którą można zagospodarować na spiżarnię, warsztat czy składzik.
Dla przyszłych mieszkańców Conrada 27 deweloper przewidział miejsca postojowe podziemne.
Dzięki temu przyszli właściciele nie będą musieli poszukiwać wolnej przestrzeni parkingowej. Dodatkowo, miejsce postojowe w garażu podziemnym zabezpiecza przed niekorzystnymi warunkami atmosferycznymi.
Opis Inwestycji
Okazyjna cena
Tereny zielone
Conrada 27 z pewnością będzie się wyróżniać ciekawą elewacją, z charakterystycznymi dwukolorowymi pasami. Od głównej ulicy osiedle oddzielone będzie zieleńcem izolującym od tętniącej życiem części miasta. Inwestycja podzielona jest na dwa budynki, z których jeden składa się z dwóch brył połączonych garażem umieszczonym na parterze.
W budynku jednobryłowym przewidzieliśmy kilka lokali usługowych i garaż w podziemiu. Maksymalnie ograniczyliśmy ruch samochodowy w obrębie osiedla, tworząc przyjazną półprywatną przestrzeń z zieloną drogą przeciwpożarową. Całość jest zaprojektowana zgodnie z potrzebami osób niepełnosprawnych.
Mieszkanie znajduje się w inwestycji Conrada 27, w której znajduje się w sprzedaży jeszcze 16 podobnych nowych mieszkań.
Buma Conrada Sp. z o.o.
Strona internetowa inwestycjiAdres biura sprzedaży:
ul. Wadowicka 3b, 30-347 Kraków




