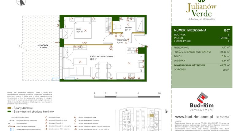
Mieszkanie na sprzedaż 2 pokoje o powierzchni 40,76 m² numer 7
Inwestycja:
Julianów Verde IIDeweloper:
BUD-RIM Development
Inwestycja:
Julianów Verde IIDeweloper:
BUD-RIM Developmentpiaseczyński, Julianów, ul. Urbanistów
piaseczyński, Julianów, ul. Urbanistów
Promocje
Promocja
Rabat na m² i miejsca postojowe w specjalnych cenach — sprawdź ofertę!
Skorzystaj z promocji: 400 zł/m² rabatu na mieszkanie oraz atrakcyjne ceny miejsc postojowych — od 10 000 zł za pierwsze. Przy dwóch miejscach łączna cena to 45 000 zł. Oferta ograniczona czasowo — nie zwlekaj!
Termin oddania
4 kw. 2027
Ilość pokoi
2 pokoje
Metraż
40,76 m²
Piętro
Parter
Strona świata
zachód
Powierzchnie dodatkowe
Ogródek
Kuchnia
otwarta kuchnia
Wysokość pomieszczeń
od 260 do 280 cm wysokości
Ilość poziomów
1 poziom
Oznaczenie oferty
7

Raport o deweloperze
Poznaj dewelopera bliżej! Pobierz raport, w którym znajdziesz kluczowe informacje o firmie, jej doświadczeniu, nagrodach oraz aktualnych i zrealizowanych inwestycjach.
Budynek i otoczenie
Miejsca postojowe | |
|---|---|
Standard wykończenia | standard deweloperski |
Realizacja inwestycji | oddanie do użytkowania w 4 kw. 2027 roku |
Udogodnienia | plac zabaw, winda, instalacja fotowoltaiczna, miejsce do ładowania samochodów elektrycznych, miejsca parkingowe dla gości |
Przyroda | informacja u dewelopera |
Charakterystyka energetyczna nieruchomości | informacja u dewelopera |
Rezerwacja i finanse
Rodzaj własności | informacja u dewelopera |
|---|---|
Wysokość czynszu | informacja u dewelopera |
Warunki rezerwacji | Informacja u dewelopera |
Zabezpieczenie środków | Informacja u dewelopera |
Zdjęcia z budowy
Zobacz na jakim etapie budowy jest ta inwestycja
Lokalizacja inwestycji
Przystanek Autobusowy - 69 m
Dojazd do centrum Warszawy: pokaż
W pobliżu 1 km od tej inwestycji znajdują się:
4 kawiarnie i restauracje, 9 sklepów, 14 obiektów sportowych, 3 placówki medyczne, 11 placówek edukacyjnych, 10 placów zabaw
Przeczytaj więcej o lokalizacji
Powiat piaseczyński znajduje się w środkowej części województwa mazowieckiego i należy do najbogatszych oraz najintensywniej rozwijających się powiatów w Polsce. W jego obrębie znajdują się miasta: Piaseczno, Konstancin-Jeziorna, Góra Kalwaria, Tarczyn oraz 223 wsie. Obszar o powierzchni 621 km2 przecinają liczne rzeki, m.in. Wisła, Jeziorka, Czarna, Utrata, a w ich dolinach występują łąki i torfowiska. Znaczne połacie terenu zajmują lasy, np. Chojnowskie, zaś pejzaż urozmaicają stawy, zalewy i wydmy. Warunki naturalne sprzyjają turystce i rekreacji, toteż w powiecie znajdują się liczne obiekty i kluby sportowe, tereny do jazdy konnej, kąpielisko Zalesie Górne oraz dobrze rozwinięta baza noclegowa i gastronomiczna. Dominuje niska zabudowa mieszkaniowa i usługowo-handlowa, a do obiektów zabytkowych należą m.in. Zamek w Czersku, wille i dwory. Ważne arterie to trasa E77 oraz drogi krajowe: nr 79 i nr 50. Do stolicy kursuje stąd 18 linii autobusowych warszawskiej komunikacji miejskiej.
Opis oferty
Nowe 2-pokojowe mieszkanie na sprzedaż o powierzchni 40,76 m² znajduje się w nowo wybudowanej inwestycji deweloperskiej Julianów Verde II w Julianowie, ul. Urbanistów (1.7 km od Warszawy).
Inwestycja została zrealizowana przez BUD-RIM Development.
Cała inwestycja składa się z 1 budynku, w którym łącznie znajduje się 50 nowych mieszkań.
Na sprzedaż pozostaje 50 ofert o powierzchni od 39 do 68 m².
W budynku są 4 kondygnacje naziemne oraz 1 kondygnacja podziemna.
Inwestycja Julianów Verde II jest w trakcie budowy z planowanym na 1 kw. 2028 roku terminem oddania do użytkowania.
Nowe mieszkanie o oznaczeniu 7 znajduje się na parterze i jest 1-poziomowe. Pomieszczenia mają od 260 do 280 centymetrów wysokości. W mieszkaniu znajdują się 2 pokoje.
Okna w mieszkaniu wychodzą na zachód.
Zachodnia ekspozycja to gwarancja intensywnego popołudniowego światła, które nadaje wnętrzom przytulności i ciepła. Idealne dla miłośników słonecznych wieczorów, którzy pragną cieszyć się pięknymi zachodami słońca we własnym domu. Zachodnie światło podkreśla kolory i faktury w aranżacji wnętrz, tworząc atmosferę sprzyjającą relaksowi po długim dniu.
Dla przyszłych mieszkańców Julianów Verde II deweloper przewidział miejsca postojowe podziemne.
Dzięki temu przyszli właściciele nie będą musieli poszukiwać wolnej przestrzeni parkingowej. Dodatkowo, miejsce postojowe w garażu podziemnym zabezpiecza przed niekorzystnymi warunkami atmosferycznymi.
Opis Inwestycji
Pow. dodatkowe
Nowoczesne mieszkania w zielonym sercu Julianowa
ul. Urbanistów, Julianów (k. Piaseczna)
Julianów Verde wkracza w kolejny etap – budynek B, który łączy nowoczesną architekturę, funkcjonalność i komfort codziennego życia w kameralnym otoczeniu zieleni. To kolejna odsłona spójnej, dopracowanej inwestycji stworzonej z myślą o wymagających mieszkańcach, którzy chcą żyć wygodnie, spokojnie i jednocześnie blisko miasta.
W budynku B zaprojektowano 50 mieszkań o przemyślanych układach i powierzchniach już od 38 m², idealnych zarówno dla singli, par, jak i rodzin szukających funkcjonalnej przestrzeni do życia.
Architektura, która przyciąga uwagę
Budynek B wyróżnia się nowoczesną, minimalistyczną formą oraz elegancką, ponadczasową stylistyką. Jasna elewacja w połączeniu z subtelnymi detalami nadaje całości lekkości i harmonii, wpisując się w zielony charakter Julianowa.
Duże przeszklenia zapewniają doskonałe doświetlenie wnętrz, a przemyślany układ mieszkań gwarantuje maksymalną funkcjonalność i komfort użytkowania.
Komfort na co dzień – standard, który robi różnicę
Każde mieszkanie zostało zaprojektowane tak, aby zapewnić wygodę i nowoczesne rozwiązania w standardzie. Budynek wyposażony będzie w windę, a części wspólne zaprojektowano z myślą o estetyce i trwałości.
Dla mieszkańców przewidziano również miejsca postojowe na nowoczesnych platformach parkingowych, które pozwalają efektywnie wykorzystać przestrzeń i zwiększyć liczbę dostępnych miejsc.
Funkcjonalność i wygoda w otoczeniu zieleni
Julianów Verde to nie tylko mieszkania – to styl życia. Inwestycja oferuje spokojną, zieloną okolicę z szybkim dostępem do Piaseczna i Warszawy, łącząc prywatność przedmieścia z wygodą miejskiej infrastruktury.
Mieszkanie znajduje się w inwestycji Julianów Verde II, w której znajduje się w sprzedaży jeszcze 30 podobnych nowych mieszkań.
BUD-RIM Development
Strona internetowa inwestycjiAdres biura sprzedaży:
Chyliczki ul. Wschodnia 31AGodziny otwarcia biura sprzedaży:
- Poniedziałek: 09:00 - 17:00
- Wtorek: 09:00 - 17:00
- Środa: 09:00 - 17:00
- Czwartek: 09:00 - 17:00
- Piątek: 09:00 - 17:00





