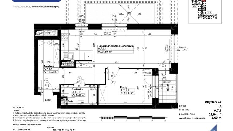
Mieszkanie na sprzedaż 2 pokoje o powierzchni 52,84 m² numer A/7/1
Inwestycja:
Świerzawska 13Deweloper:
Ataner Sp. z o.o.
Inwestycja:
Świerzawska 13Deweloper:
Ataner Sp. z o.o.Poznań, Grunwald, Ławica, ul. Świerzawska 13
Poznań, Grunwald, Ławica, ul. Świerzawska 13
Termin oddania
2 kw. 2026
Ilość pokoi
2 pokoje
Metraż
52,84 m²
Piętro
7 piętro
Kuchnia
otwarta kuchnia
Wysokość pomieszczeń
od 260 do 280 cm wysokości
Ilość poziomów
1 poziom
Oznaczenie oferty
A/7/1

Raport o deweloperze
Poznaj dewelopera bliżej! Pobierz raport, w którym znajdziesz kluczowe informacje o firmie, jej doświadczeniu, nagrodach oraz aktualnych i zrealizowanych inwestycjach.
Budynek i otoczenie
Miejsca postojowe | |
|---|---|
Standard wykończenia | standard deweloperski |
Realizacja inwestycji | rozpoczęcie budowy w 1 kw. 2024 roku, planowane oddanie do użytkowania w 2 kw. 2026 roku |
Udogodnienia | ochrona całodobowa, plac zabaw, monitoring, boisko, usługi w budynku, winda, siłownia plenerowa, patio / dziedziniec |
Przyroda | w okolicy inwestycji znajduje się las |
Charakterystyka energetyczna nieruchomości |
|
Rezerwacja i finanse
Rodzaj własności | Odrębna własność z własnością gruntu |
|---|---|
Wysokość czynszu | informacja u dewelopera |
Warunki rezerwacji | Informacja u dewelopera |
Zabezpieczenie środków | Informacja u dewelopera |
Zdjęcia z budowy
Zobacz na jakim etapie budowy jest ta inwestycja
Lokalizacja inwestycji
Stacja kolejowa - Poznań Górczyn - 2767 m
Przystanek Tramwajowy - 693 m
Przystanek Autobusowy - 268 m
Dojazd do centrum: pokaż
W pobliżu 1 km od tej inwestycji znajdują się:
25 kawiarni i restauracji, 32 sklepy, 70 obiektów sportowych, 24 placówki medyczne, 35 placówek edukacyjnych, 37 placów zabaw
Przeczytaj więcej o lokalizacji
Grunwald to leżąca na zachodzie miasta dzielnica Poznania o powierzchni 36 km kw i populacji 125 tys. mieszkańców. Dzielnica zamyka się w ulicach Skórzewskiej, Bukowskiej, Kolejowej i Leszczyńskiej. Dzielnicę z południowego zachodu na północy wschód przedziela ul. Głogowska, za miastem przechodząca w drogę krajową E261. Na terenie Grunwaldu krzyżuje się z nią droga europejska E30. Dzielnica ma własną szkołę wyższą – to Wyższa Szkoła Bezpieczeństwa. Jest stąd również blisko do Portu Lotniczego Poznań-Ławica, który zaczyna się tuż za północną granicą. Dzielnica ma też dobry dostęp do opieki zdrowotnej dzięki dwóm szpitalom klinicznym, prywatnej lecznicy (Certus), 60 aptekom, 15 przychodniom i gabinetom lekarskim. Fani sportu docenią Arenę Poznań i stadion INEA a także Lasek Marceliński, idealny do uprawiania joggingu czy nordic walkingu. Na terenie dzielnicy są też dwa kina.
Opis oferty
Nowe 2-pokojowe mieszkanie na sprzedaż o powierzchni 52,84 m² znajduje się w nowo budowanej inwestycji deweloperskiej Świerzawska 13 na Ławicy, ul. Świerzawska 13 (4.4 km od centrum Poznania).
Inwestycja jest realizowana przez Ataner Sp. z o.o.
Cała inwestycja składa się z 1 budynku, w którym łącznie znajdują się 182 nowe mieszkania.
Na sprzedaż pozostają 94 oferty o powierzchni od 42 do 80 m².
W budynku jest od 6 do 11 kondygnacji naziemnych oraz 1 kondygnacja podziemna.
Inwestycja Świerzawska 13 jest w trakcie budowy z planowanym na 2 kw. 2026 roku terminem oddania do użytkowania.
Nowe mieszkanie o oznaczeniu A/7/1 znajduje się na 7 piętrze i jest 1-poziomowe. Pomieszczenia mają od 260 do 280 centymetrów wysokości. W mieszkaniu znajdują się 2 pokoje.
Dla przyszłych mieszkańców Świerzawska 13 deweloper przewidział miejsca postojowe podziemne.
Dzięki temu przyszli właściciele nie będą musieli poszukiwać wolnej przestrzeni parkingowej. Dodatkowo, miejsce postojowe w garażu podziemnym zabezpiecza przed niekorzystnymi warunkami atmosferycznymi.
Opis Inwestycji
Wszędzie dobrze, ale na Marcelinie najlepiej
Świerzawska 13 to spokojne osiedle, które powstaje na poznańskim Grunwaldzie tuż obok Lasku Marcelińskiego. Osiedle składać się będzie z dwóch etapów. W pierwszym etapie powstanie budynek o wysokości od 6 do 11 kondygnacji. Znajdą się w nim funkcjonalne mieszkania z balkonami lub tarasami o powierzchniach od 40 m2 do 106 m2. Na parterze będą lokale usługowe. Sklepy i usługi znajdują się także na sąsiednich osiedlach wybudowanych przez Ataner: os. Marcelin, os. Nowy Marcelin i Świerzawska 4. Niedaleko jest CH King Cross, a dojazd do centrum zajmuje ok. 15 minut.
Bezpiecznie i rodzinnie wśród zieleni
Na osiedlu powstanie plac zabaw dla dzieci oraz centrum sportowe z siłownią. Po męczącym dniu będzie można odpocząć i porozmawiać z sąsiadami na dziedzińcu. Dzięki systemowi monitoringu, portierni ochrony oraz podziemnej hali garażowej, każdy poczuje się bezpiecznie.
Znajdujący się w sąsiedztwie Lasek Marceliński zajmuje powierzchnię 230 hektarów, jest więc gdzie spacerować czy biegać. W Lasku znajduje się staw, place zabaw dla dzieci i miejsca na ognisko. Tereny te są atrakcyjne nie tylko latem, ale przez cały rok. Mieszkańcy osiedla będą je mieć na wyciągnięcie ręki.
Osiedle Świerzawska 13 zostało zaprojektowane w Pracowni Architektonicznej Michała Domagalskiego.
Mieszkanie znajduje się w inwestycji Świerzawska 13, w której znajdują się w sprzedaży jeszcze 63 podobne nowe mieszkania.
Ataner Sp. z o.o.
Strona internetowa inwestycjiAdres biura sprzedaży:
Towarowa 35, 61-896 PoznańGodziny otwarcia biura sprzedaży:
- Poniedziałek: 08:00 - 16:00
- Wtorek: 08:00 - 16:00
- Środa: 08:00 - 16:00
- Czwartek: 08:00 - 16:00
- Piątek: 08:00 - 16:00





