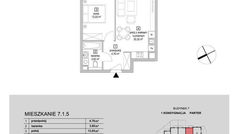
Mieszkanie na sprzedaż 2 pokoje o powierzchni 42,03 m² numer 7.1.5
Inwestycja:
Osiedle Przyjemne IVDeweloper:
ATAL S.A.
Inwestycja:
Osiedle Przyjemne IVDeweloper:
ATAL S.A.Gdańsk, Jasień, ul. Flisykowskiego
Gdańsk, Jasień, ul. Flisykowskiego
Promocje
Promocja
Zyskaj więcej na starcie!
Rabaty do 24 000 zł Harmonogram 10/90
Termin oddania
4 kw. 2026
Ilość pokoi
2 pokoje
Metraż
42,03 m²
Piętro
Parter
Powierzchnie dodatkowe
Balkon
Kuchnia
otwarta kuchnia
Wysokość pomieszczeń
252 cm wysokości
Ilość poziomów
1 poziom
Oznaczenie oferty
7.1.5

Raport o deweloperze
Poznaj dewelopera bliżej! Pobierz raport, w którym znajdziesz kluczowe informacje o firmie, jej doświadczeniu, nagrodach oraz aktualnych i zrealizowanych inwestycjach.
Budynek i otoczenie
Miejsca postojowe | |
|---|---|
Komórki lokatorskie | dostępne |
Standard wykończenia | standard deweloperski Pakiety wykończeń:
Pakiet Classic – 950 zł/mkw
Pakiet Comfort – 1 150 zł/mkw
Pakiet Premium – 1 650 zł/mkw |
Realizacja inwestycji | rozpoczęcie budowy w 4 kw. 2023 roku, planowane oddanie do użytkowania w 4 kw. 2026 roku |
Udogodnienia | plac zabaw, winda |
Przyroda | w okolicy inwestycji znajduje się park |
Charakterystyka energetyczna nieruchomości | informacja u dewelopera |
Rezerwacja i finanse
Rodzaj własności | Odrębna własność z własnością gruntu |
|---|---|
Wysokość czynszu | informacja u dewelopera |
Warunki rezerwacji | Informacja u dewelopera |
Zabezpieczenie środków | Informacja u dewelopera |
Zdjęcia z budowy
Zobacz na jakim etapie budowy jest ta inwestycja
Lokalizacja inwestycji
Przystanek Tramwajowy - 657 m
Przystanek Autobusowy - 291 m
Dojazd do centrum: pokaż
W pobliżu 1 km od tej inwestycji znajdują się:
6 kawiarni i restauracji, 22 sklepy, 29 obiektów sportowych, 1 placówka medyczna, 13 placówek edukacyjnych, 69 placów zabaw
Przeczytaj więcej o lokalizacji
Jasień to jedna z ciekawszych dzielnic mieszkalnych Gdańska, która znana jest z nowej zabudowy osiedlowej oraz licznych domków jednorodzinnych. To właśnie tutaj najlepiej odnajdują się osoby chcące łączyć wygodę komunikacyjną z przestrzenią do aktywnego wypoczynku. Zachodnia część dzielnicy to głównie lasy, ogródki działkowe Zabornia i Jezioro Jasień. Znajdują się tu również zabytki takie, jak dworek z XIX wieku i park dworski. Jasień cieszy się świetną infrastrukturą komunikacyjną dzięki kilku liniom autobusowym oraz Pomorskiej Kolei Metropolitalnej (PKM). Udane zakupy zapewniają centra handlowe położone na zachód od dzielnicy, takie jak Auchan, Leroy Merlin czy Decathlon. Ok. 50 m od południowo-wschodniej granicy Jasienia znajduje się Centrum Diagnostyki Medycznej ENDOMED w Kowalach. Ponadto, w odległości ok. 100 metrów na północ działają Pomorskie Centra Kardiologiczne. Graniczy z dzielnicami miejskimi Matarnia, Brętowo i Piecki-Migowo, Ujeścisko-Łostowice i Kokoszki (przez Obwodnicę Trójmiasta), a także z obszarami wiejskimi (Kolbudy) oraz malowniczym Pojezierzem Kaszubskim. Południowo-zachodnią granicę dzielnicy wyznacza droga krajowa S7, a dzielnicę w połowie przedziela główna arteria Aleja Armii Krajowej. Jasień liczy sobie powierzchnię 18,68 km kw., zamieszkiwaną przez ponad 14 tys. osób.
Opis oferty
Nowe 2-pokojowe mieszkanie na sprzedaż o powierzchni 42,03 m² znajduje się w nowo budowanej inwestycji deweloperskiej Osiedle Przyjemne IV na Jasieniu, ul. Flisykowskiego (6.2 km od centrum Gdańska).
Inwestycja jest realizowana przez ATAL S.A.
Cała inwestycja składa się z 2 budynków, w których łącznie znajduje się 111 nowych mieszkań.
Na sprzedaż pozostaje 77 ofert o powierzchni od 32 do 79 m².
W budynkach jest 5 kondygnacji naziemnych oraz 1 kondygnacja podziemna.
Inwestycja Osiedle Przyjemne IV jest w trakcie budowy z planowanym na 4 kw. 2026 roku terminem oddania do użytkowania.
Nowe mieszkanie o oznaczeniu 7.1.5 znajduje się na parterze i jest 1-poziomowe. Pomieszczenia mają 252 centymetrów wysokości. W mieszkaniu znajdują się 2 pokoje.
Dla przyszłych mieszkańców Osiedle Przyjemne IV deweloper przewidział miejsca postojowe podziemne, miejsca postojowe naziemne.
Dzięki temu przyszli właściciele nie będą musieli poszukiwać wolnej przestrzeni parkingowej. Dodatkowo, miejsce postojowe w garażu podziemnym zabezpiecza przed niekorzystnymi warunkami atmosferycznymi.
Opis Inwestycji
Okazyjna cena
Pow. dodatkowe
Osiedle Przyjemne powstaje w dynamicznie rozwijającej się części miasta, oferując wyjątkową kombinację doskonałej lokalizacji i starannie zaprojektowanych, przestronnych mieszkań. Funkcjonalne układy wnętrz zapewnią wygodę i komfort codziennego życia. Atutem tego miejsca będzie także bliskość malowniczych terenów zielonych, które zagwarantują spokój i możliwość relaksu na łonie natury.
Jednocześnie dogodny dostęp do różnych dzielnic miasta sprawi, że inwestycja ta spełni oczekiwania zarówno osób ceniących ciszę, jak i tych, którzy potrzebują szybkiej i wygodnej komunikacji z innymi częściami Gdańska.
Czwarty etap składać się będzie z dwóch budynków ze 111 mieszkaniami o metrażach od 31,51 – 78,58 mkw. i z układami od 1 do 4 pokoi. Przyszli mieszkańcy będą mogli korzystać z wielu udogodnień, w tym z placu zabaw, ze ścieżek spacerowych oraz bliskości placówek edukacyjnych i punktów usługowych.
Osiedle zachwyci nowoczesną architekturą, która harmonijnie połączy elegancję z przytulnym charakterem. Projekt budynków został opracowany tak, aby doskonale współgrały z otaczającym krajobrazem. Niektóre z nich będą położone wzdłuż linii oferującej widok na pobliski zbiornik wodny. Przestronne balkony z dużymi przeszkleniami zapewnią możliwość podziwiania malowniczych widoków. W bezpośrednim sąsiedztwie osiedla planowany jest Park Południowy, który stanie się zielonym centrum tej okolicy, pozwalając przyszłym mieszkańcom cieszyć się bliskością natury na co dzień.
Osiedle Przyjemne zlokalizowane przy ulicy Flisykowskiego da możliwość odpoczynku od miejskiego zgiełku. Bliskość licznych ścieżek spacerowych, tras rowerowych i terenów zielonych stworzy doskonałe warunki zarówno do aktywnego spędzania czasu, jak i relaksu w otoczeniu przyrody.
Lokalizacja inwestycji zapewni sprawną komunikację z różnymi częściami miasta. Najbliższy przystanek autobusowy znajduje się w odległości kilkuminutowego spaceru. Dzięki dogodnemu dostępowi do centrum, dworca kolejowego i autobusowego oraz głównych dróg wyjazdowych, każda podróż – zarówno w obrębie miasta, jak i poza jego granice – będzie szybka i komfortowa.
Osiedle Przyjemne zaoferuje doskonałe warunki do wygodnego przemieszczania się po Gdańsku, jednocześnie umożliwiając harmonijne życie blisko natury.
Mieszkanie znajduje się w inwestycji Osiedle Przyjemne IV, w której znajduje się w sprzedaży jeszcze 30 podobnych nowych mieszkań.
ATAL S.A.
Strona internetowa inwestycjiAdres biura sprzedaży:
ul. Długa Grobla 8, lok. 9, 80-754 GdańskGodziny otwarcia biura sprzedaży:
- Poniedziałek: 08:00 - 18:00
- Wtorek: 08:00 - 17:00
- Środa: 08:00 - 17:00
- Czwartek: 08:00 - 17:00
- Piątek: 08:00 - 17:00
Artykuły powiązane:
:format(jpg)/articles/gallery/image/9813/e54c4c.jpg)
Czy warto zamieszkać na peryferiach Wrocławia?
04 maja 2026
Bartosz Moch





