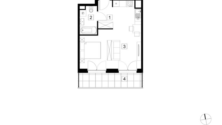
Mieszkanie na sprzedaż 1 pokój o powierzchni 35,06 m² numer A3-1-90
Inwestycja:
Hipoteczna ParkDeweloper:
ATAL S.A.
Inwestycja:
Hipoteczna ParkDeweloper:
ATAL S.A.Łódź, Bałuty, Bałuty-Centrum, Hipoteczna 7
Łódź, Bałuty, Bałuty-Centrum, Hipoteczna 7
Termin oddania
1 kw. 2027
Ilość pokoi
1 pokój
Metraż
35,06 m²
Piętro
1 piętro
Powierzchnie dodatkowe
Balkon
Kuchnia
otwarta kuchnia
Wysokość pomieszczeń
od 263 do 267 cm wysokości
Ilość poziomów
1 poziom
Oznaczenie oferty
A3-1-90

Raport o deweloperze
Poznaj dewelopera bliżej! Pobierz raport, w którym znajdziesz kluczowe informacje o firmie, jej doświadczeniu, nagrodach oraz aktualnych i zrealizowanych inwestycjach.
Budynek i otoczenie
Miejsca postojowe | |
|---|---|
Komórki lokatorskie | dostępne |
Standard wykończenia | standard deweloperski Pakiety wykończeń:
Pakiet Classic – 950 zł/mkw
Pakiet Comfort – 1 150 zł/mkw
Pakiet Premium – 1 650 zł/mkw |
Realizacja inwestycji | rozpoczęcie budowy w 4 kw. 2024 roku, planowane oddanie do użytkowania w 1 kw. 2027 roku |
Udogodnienia | winda |
Przyroda | w okolicy inwestycji znajduje się park |
Charakterystyka energetyczna nieruchomości | informacja u dewelopera |
Rezerwacja i finanse
Rodzaj własności | Odrębna własność z użytkowaniem wieczystym gruntu |
|---|---|
Wysokość czynszu | informacja u dewelopera |
Warunki rezerwacji | Informacja u dewelopera |
Zabezpieczenie środków | Informacja u dewelopera |
Zdjęcia z budowy
Zobacz na jakim etapie budowy jest ta inwestycja
Lokalizacja inwestycji
Stacja kolejowa - Łódź Żabieniec - 1812 m
Przystanek Tramwajowy - 353 m
Przystanek Autobusowy - 248 m
Dojazd do centrum: pokaż
W pobliżu 1 km od tej inwestycji znajdują się:
16 kawiarni i restauracji, 57 sklepów, 39 obiektów sportowych, 18 placówek medycznych, 46 placówek edukacyjnych, 40 placów zabaw
Przeczytaj więcej o lokalizacji
Rozciągające się w północnej części miasta Bałuty to największa dzielnica Łodzi, na którą składa się 8 osiedli. Ich łączna powierzchnia liczy sobie 79km2, a zamieszkuje ją ponad 203 tysiące osób. Część dzielnicy od początku miała charakter typowo mieszkalny i była przeznaczona dla pracowników łódzkich fabryk. Obok szarych blokowisk i licznych kamienic budowane są dziś nowe osiedla domów jednorodzinnych. Wciąż jednak widać pozostałości zabudowań przemysłowych. Niektóre z nich, tak jak Manufaktura, odzyskują dawną świetność i po gruntownej rewitalizacji stają się cenionymi nieruchomościami handlowymi lub biurowymi. Mimo to Bałuty są najbardziej zieloną częścią miasta, a znajdujący się na ich terenie las Łagiewnicki jest największym w kraju obszarem leśnym leżącym w granicach miasta. Przez Bałuty biegną 3 drogi krajowe, w tym droga E75 będąca częścią międzynarodowego szlaku z Helsinek do Aten. Z Bałut do centrum miasta prowadzą linie autobusowe i tramwajowe odbywające regularne kursy dzienne i nocne.
Opis oferty
Nowe 1-pokojowe mieszkanie na sprzedaż o powierzchni 35,06 m² znajduje się w nowo budowanej inwestycji deweloperskiej Hipoteczna Park na Bałutach-Centrum (4 km od centrum Łodzi).
Inwestycja jest realizowana przez ATAL S.A.
Cała inwestycja składa się z 2 budynków, w których łącznie znajdują się 204 nowe mieszkania.
Na sprzedaż pozostaje 187 ofert o powierzchni od 32 do 107 m².
W budynkach jest od 5 do 7 kondygnacji naziemnych oraz 1 kondygnacja podziemna.
Inwestycja Hipoteczna Park jest w trakcie budowy z planowanym na 1 kw. 2027 roku terminem oddania do użytkowania.
Nowe mieszkanie o oznaczeniu A3-1-90 znajduje się na 1 piętrze i jest 1-poziomowe. Pomieszczenia mają od 263 do 267 centymetrów wysokości. W mieszkaniu znajduje się 1 pokój.
Dla przyszłych mieszkańców Hipoteczna Park deweloper przewidział miejsca postojowe podziemne, miejsca postojowe naziemne.
Dzięki temu przyszli właściciele nie będą musieli poszukiwać wolnej przestrzeni parkingowej. Dodatkowo, miejsce postojowe w garażu podziemnym zabezpiecza przed niekorzystnymi warunkami atmosferycznymi.
Opis Inwestycji
Okazyjna cena
Tereny zielone
Pow. dodatkowe
Hipoteczna Park to wyjątkowa inwestycja mieszkaniowa zlokalizowana przy ulicy Hipotecznej w Łodzi, która redefiniuje współczesny styl życia. Projekt wyróżnia się nowoczesną architekturą, łączącą minimalizm z funkcjonalnością, oraz doskonałym położeniem w dobrze skomunikowanej części miasta.
Inwestycja zaoferuje szeroką gamę udogodnień, które ułatwią codzienne funkcjonowanie. Na parterach budynków zaplanowano aż 15 lokali usługowych, które pozwolą mieszkańcom załatwiać codzienne sprawy bez potrzeby opuszczania osiedla. Dodatkowo, w ramach projektu powstanie budynek o powierzchni 25 m², który zostanie przekazany na potrzeby mieszkańców.
Ważnym elementem projektu jest rewitalizacja istniejącego parku na rogu ulic Hipotecznej i Srebrnej, który stanie się prywatną przestrzenią rekreacyjną dla mieszkańców. Prace obejmą nowe nasadzenia, pielęgnację istniejącej zieleni oraz miejsca do wypoczynku, takie jak alejki spacerowe, ławki, skwery zieleni i plac zabaw dla dzieci.
Bliskość terenów zielonych, takich jak Parku Julianowskiego, umożliwi codzienny kontakt z naturą, a dogodna lokalizacja zapewni szybki dostęp do centrum miasta i innych kluczowych punktów Łodzi. W okolicy znajdują się sklepy, szkoły, przedszkola i punkty usługowe, które ułatwią życie mieszkańcom. Na miłośników zakupów i rozrywki czeka Manufaktura, największe centrum handlowo-rozrywkowe w Łodzi, z bogatą ofertą sklepów, restauracji oraz atrakcji kulturalnych. Położenie nieopodal ulicy Piotrkowskiej oraz Pałacu Izraela Poznańskiego zapewni dodatkowe możliwości obcowania z historią i kulturą miasta.
Hipoteczna Park to przestrzeń, która harmonijnie połączy miejski styl życia z bliskością natury. Dzięki atrakcyjnej lokalizacji oraz bogactwu udogodnień, inwestycja ta odpowie na potrzeby nowoczesnych mieszkańców, szukających komfortu i estetyki w swoim otoczeniu.
Mieszkanie znajduje się w inwestycji Hipoteczna Park, w której znajduje się w sprzedaży jeszcze 7 podobnych nowych mieszkań.
ATAL S.A.
Strona internetowa inwestycjiAdres biura sprzedaży:
91-002 Łódź ul. Drewnowska 43a lok. LB1Godziny otwarcia biura sprzedaży:
- Poniedziałek: 08:00 - 18:00
- Wtorek: 08:00 - 17:00
- Środa: 08:00 - 17:00
- Czwartek: 08:00 - 17:00
- Piątek: 08:00 - 17:00
Artykuły powiązane:
:format(jpg)/articles/gallery/image/9813/e54c4c.jpg)
Czy warto zamieszkać na peryferiach Wrocławia?
Jakie są zalety mieszkania na peryferiach? Sprawdźcie ofertę mieszkań od deweloperów na peryferiach Wrocławia! We Wrocławiu ceny nowych mieszkań w samym centrum lub stosunkowo blisko Rynku potrafią sięgać nawet 8 tys. złotych za metr kwadratowy. Średnia cena na rynku deweloperskim...
30 października 2019
Bartosz Moch





