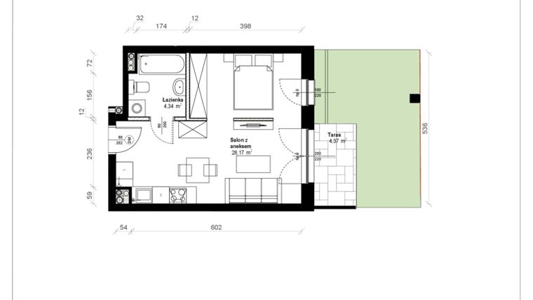
Mieszkanie na sprzedaż 1 pokój o powierzchni 32,91 m² numer B.0.12.1a
Inwestycja:
ATRIUMDeweloper:
art.Locum S.A.
Inwestycja:
ATRIUMDeweloper:
art.Locum S.A.Łódź, Polesie, Stare Polesie, ul. kpt. Stefana Pogonowskiego 44/46
Łódź, Polesie, Stare Polesie, ul. kpt. Stefana Pogonowskiego 44/46
Oddanie
4 kw. 2026
Ilość pokoi
1 pokój
Metraż
32,91 m²
Piętro
Parter
Strona świata
wschód
Dodatkowe
Taras, Ogródek
Kuchnia
otwarta kuchnia
Wysokość
260 cm wysokości
Poziomy
1 poziom
Oznaczenie oferty
B.0.12.1a

Raport o deweloperze
Poznaj dewelopera bliżej! Pobierz raport, w którym znajdziesz kluczowe informacje o firmie, jej doświadczeniu, nagrodach oraz aktualnych i zrealizowanych inwestycjach.
Budynek i otoczenie
Miejsca postojowe | |
|---|---|
Komórki lokatorskie | dostępne: wielkość: 3,14-6,78 m2 |
Standard wykończenia | standard deweloperski Ogrzewanie miejskie |
Realizacja inwestycji | rozpoczęcie budowy w 3 kw. 2024 roku, planowane oddanie do użytkowania w 4 kw. 2026 roku |
Udogodnienia | monitoring, teren ogrodzony, usługi w budynku, winda, rowerownia |
Przyroda | informacja u dewelopera |
Charakterystyka energetyczna nieruchomości | informacja u dewelopera |
Rezerwacja i finanse
Rodzaj własności | Odrębna własność z własnością gruntu |
|---|---|
Wysokość czynszu | informacja u dewelopera |
Warunki rezerwacji | umowa rezerwacyjna |
Zabezpieczenie środków | Otwarty mieszkaniowy rachunek powierniczy |
Postępy i zdjęcia z budowy
Zobacz na jakim etapie budowy jest ta inwestycja
Lokalizacja inwestycji
Stacja kolejowa - Łódź Kaliska - 1402 m
Przystanek Tramwajowy - 414 m
Przystanek Autobusowy - 93 m
Dojazd do centrum: pokaż
W pobliżu 1 km od tej inwestycji znajdują się:
103 kawiarnie i restauracje, 88 sklepów, 32 obiekty sportowe, 20 placówek medycznych, 47 placówek edukacyjnych, 33 place zabaw
Przeczytaj więcej o lokalizacji
Łódź Polesie to dzielnica Łodzi o powierzchni 46 km. kw., w której mieszka ok. 140 tys. osób. W centralnym obszarze dzielnicy położony jest Park im. J. Piłsudskiego, dworzec Łódź Kaliska i droga E75. Dzielnicę okala od wschodu rzeka Ner, od południa port lotniczy im. W. Reymonta a od północy ul. Szczecińska i Rąbieńska. Polesie dzieli się na osiedla Złotno, Zdrowie-Mania, Karolew-Retkinia Wschód, Osiedla im. Montwiłła-Mireckiego, Retkinia Zachód, Lublinek, Stare Polesie i Koziny. O jej przyjaznym mieszkańcom charakterze świadczy położony tu największy łódzki park, Ogród Botaniczny, las Lublinek i 5 supermarketów i liczne punkty usługowe. Do tego dochodzi ciekawa oferta szkół wyższych z kampusem Politechniki Łódzkiej na czele.
Opis oferty
Nowe 1-pokojowe mieszkanie na sprzedaż o powierzchni 32,91 m² znajduje się w nowo budowanej inwestycji deweloperskiej ATRIUM w Starym Polesiu, ul. kpt. Stefana Pogonowskiego 44/46 (1.3 km od centrum Łodzi).
Inwestycja jest realizowana przez art.Locum S.A.
Cała inwestycja składa się z 1 budynku, w którym łącznie znajduje się 165 nowych mieszkań.
Na sprzedaż pozostaje 150 ofert o powierzchni od 29 do 82 m².
W budynku jest od 4 do 6 kondygnacji naziemnych oraz 1 kondygnacja podziemna.
Inwestycja ATRIUM jest w trakcie budowy z planowanym na 4 kw. 2026 roku terminem oddania do użytkowania.
Nowe mieszkanie o oznaczeniu B.0.12.1a znajduje się na parterze i jest 1-poziomowe. Pomieszczenia mają 260 centymetrów wysokości. W mieszkaniu znajduje się 1 pokój.
Okna w mieszkaniu wychodzą na wschód.
Wschodnia orientacja zapewnia dostęp do łagodnego porannego światła, idealnego dla rozpoczęcia dnia pełnego energii. Wnętrza pozostają jasne, ale nieprzegrzane, co sprzyja utrzymaniu komfortowej temperatury. Przebywanie w pomieszczeniu z oknami na wschód inspiruje do działania i pozytywnie wpływa na poranny rytuał.
Dla przyszłych mieszkańców ATRIUM deweloper przewidział miejsca postojowe podziemne.
Dzięki temu przyszli właściciele nie będą musieli poszukiwać wolnej przestrzeni parkingowej. Dodatkowo, miejsce postojowe w garażu podziemnym zabezpiecza przed niekorzystnymi warunkami atmosferycznymi.
Opis Inwestycji
Okazyjna cena
Tereny zielone
Pow. dodatkowe
Poznaj adres wielu możliwości
- Możesz mieszkać w cichej, spokojnej okolicy nie rezygnując z zalet mieszkania w centrum.
- Wolisz nietuzinkowe mieszkanie z antresolą czy klasyczne jednopoziomowe?
- Masz różne opcje do wyboru: mieszkanie z ogródkiem, balkonem lub przestronnym tarasem.
- Singiel/ka, para czy rodzina z dziećmi - każdy tu znajdzie mieszkanie spełniające jego potrzeby.
- Czy to mieszkanie na własne potrzeby, czy w celach inwestycyjnych, jego wartość z czasem wzrośnie.
- Chcesz otworzyć swój biznes i szukasz lokalu usługowego? Zapraszamy - mamy trzy w ofercie!
Mieszkanie znajduje się w inwestycji ATRIUM, w której znajduje się w sprzedaży jeszcze 51 podobnych nowych mieszkań.
art.Locum S.A.
Strona internetowa inwestycjiAdres biura sprzedaży:
ul. Piotrkowska 172/180, ŁódźGodziny otwarcia biura sprzedaży:
- Poniedziałek: 08:00 - 16:00
- Wtorek: 08:00 - 16:00
- Środa: 08:00 - 16:00
- Czwartek: 08:00 - 16:00
- Piątek: 08:00 - 16:00
Artykuły powiązane:
:format(jpg)/articles/gallery/image/7080/b83566.jpg)
Przestrzeń wspólna na nowych osiedlach
Deweloperzy coraz częściej zdają o estetyczną i funkcjonalną przestrzeń wspólną na nowoczesnych osiedlach - sprawdź dlaczego! Osoby myślące o zakupie swojego mieszkania coraz częściej przykładają uwagę nie tylko do czynników i parametrów charakteryzujących sam lokal, lecz także do projektu osiedla...
27 października 2016
Polski Związek Firm Deweloperskich Wrocław





