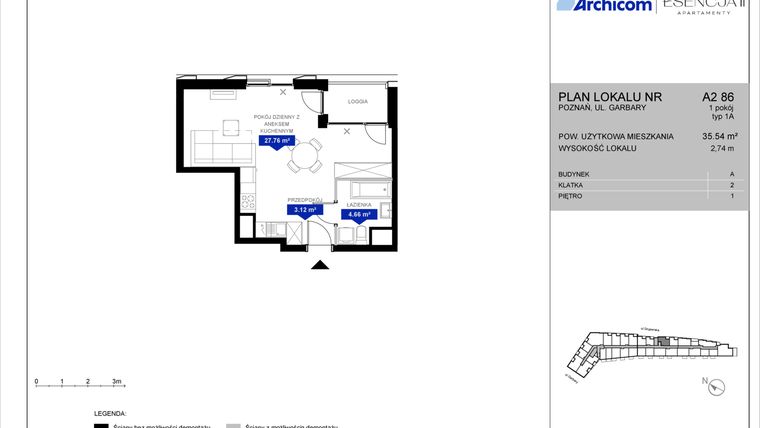
Mieszkanie na sprzedaż 1 pokój o powierzchni 35,54 m² numer A2.86
Inwestycja:
Apartamenty Esencja IIDeweloper:
Archicom S.A.
Inwestycja:
Apartamenty Esencja IIDeweloper:
Archicom S.A.Poznań, Stare Miasto, Osiedle Stare Miasto, ul. Garbary 104
Poznań, Stare Miasto, Osiedle Stare Miasto, ul. Garbary 104
Termin oddania
4 kw. 2026
Ilość pokoi
1 pokój
Metraż
35,54 m²
Piętro
1 piętro
Strona świata
wschód, północ
Kuchnia
otwarta kuchnia
Wysokość pomieszczeń
od 274 do 400 cm wysokości
Ilość poziomów
1 poziom
Oznaczenie oferty
A2.86

Raport o deweloperze
Poznaj dewelopera bliżej! Pobierz raport, w którym znajdziesz kluczowe informacje o firmie, jej doświadczeniu, nagrodach oraz aktualnych i zrealizowanych inwestycjach.
Budynek i otoczenie
Miejsca postojowe | |
|---|---|
Komórki lokatorskie | dostępne |
Standard wykończenia | standard deweloperski Ogrzewanie miejskie |
Realizacja inwestycji | rozpoczęcie budowy w 1 kw. 2025 roku, planowane oddanie do użytkowania w 4 kw. 2026 roku |
Udogodnienia | plac zabaw, monitoring, winda, inteligentny dom, miejsce do ładowania samochodów elektrycznych, patio / dziedziniec |
Przyroda | w okolicy inwestycji znajduje się park |
Charakterystyka energetyczna nieruchomości | informacja u dewelopera |
Rezerwacja i finanse
Rodzaj własności | Odrębna własność z własnością gruntu |
|---|---|
Wysokość czynszu | informacja u dewelopera |
Warunki rezerwacji | Informacja u dewelopera |
Zabezpieczenie środków | Informacja u dewelopera |
Zdjęcia z budowy
Zobacz na jakim etapie budowy jest ta inwestycja
Lokalizacja inwestycji
Stacja kolejowa - Poznań Garbary - 367 m
Przystanek Tramwajowy - 330 m
Przystanek Autobusowy - 72 m
Dojazd do centrum: pokaż
W pobliżu 1 km od tej inwestycji znajdują się:
231 kawiarni i restauracji, 42 sklepy, 41 obiektów sportowych, 10 placówek medycznych, 22 placówki edukacyjne, 27 placów zabaw
Przeczytaj więcej o lokalizacji
Stare Miasto to część Poznania zajmująca powierzchnię 3,8 km kw. W jej obrębie znajdują się takie jednostki administracyjne jak: Chwaliszewo, Dzielnica Cesarska, Garbary, Grobla, Piaski, Piekary, Przepadek, Rybaki, Stare Miasto, Święty Marcin, Święty Wojciech. Łącznie mieszka tu ok. 30 tys. osób. Z zachodu na wschód obszar ten przecina droga nr 92. Od wschodu ograniczony jest rzeką Wartą, od zachodu ul. Obornicką, od południa ul. królowej Jadwigi a od północy Lasem Moralskim. Przy ul. Dworcowej znajduje się dworzec Poznań Główny, jeden z największych w Polsce. Stanowiący serce Poznania rynek Starego Miasta nadal pełni ważne funkcje handlowe i kulturalne. Zabytkowa zabudowa z niepowtarzalnym renesansowym ratuszem na czele, nadaje temu miejscu wyjątkowy klimat. Zainteresowani mogą tu odwiedzić Muzeum Rogalowe, Archeologiczne i Muzeum Historii Miasta Poznania. Znajduje się tu 8 uniwersytetów, w tym Wyższa Szkoła Umiejętności Społecznych, Wyższa Szkoła Handlu i Rachunkowości, Wyższa Szkoła Bankowa w Poznaniu, Wyższa Szkoła Logistyki oraz Wyższa Szkoła Komunikacji i Zarządzania. Największe centra handlowe to Avenida, Stary Browar i Kupiec Poznański. Na Starym Mieście znajdują się też liczne szpitale i przychodnie, m.in. Wielkopolskie Centrum Onkologii, Szpital Miejski im. Z. Strusia, Szpital Prywatny Med Polonia i Specjalistyczny Zakład Opieki Zdrowotnej.
Opis oferty
Nowe 1-pokojowe mieszkanie na sprzedaż o powierzchni 35,54 m² znajduje się w nowo budowanej inwestycji deweloperskiej Apartamenty Esencja II na Starym Mieście, ul. Garbary 104 (1.2 km od centrum Poznania).
Inwestycja jest realizowana przez Archicom S.A.
Cała inwestycja składa się z 1 budynku, w którym łącznie znajduje się 118 nowych mieszkań.
Na sprzedaż pozostaje 51 ofert o powierzchni od 27 do 119 m².
W budynku jest od 3 do 8 kondygnacji naziemnych oraz 1 kondygnacja podziemna.
Inwestycja Apartamenty Esencja II jest w trakcie budowy z planowanym na 4 kw. 2026 roku terminem oddania do użytkowania.
Nowe mieszkanie o oznaczeniu A2.86 znajduje się na 1 piętrze i jest 1-poziomowe. Pomieszczenia mają od 274 do 400 centymetrów wysokości. W mieszkaniu znajduje się 1 pokój.
Okna w mieszkaniu wychodzą na wschód, północ.
Północna ekspozycja to idealny wybór dla osób ceniących przytulne i klimatyczne wnętrza. Delikatne, rozproszone światło sprzyja harmonii i stwarza doskonałe warunki do relaksu lub pracy. Okna na północ zapewnią równomierne oświetlenie przez cały dzień.
Wschodnia orientacja zapewnia dostęp do łagodnego porannego światła, idealnego dla rozpoczęcia dnia pełnego energii. Wnętrza pozostają jasne, ale nieprzegrzane, co sprzyja utrzymaniu komfortowej temperatury. Przebywanie w pomieszczeniu z oknami na wschód inspiruje do działania i pozytywnie wpływa na poranny rytuał.
Dla przyszłych mieszkańców Apartamenty Esencja II deweloper przewidział miejsca postojowe podziemne.
Dzięki temu przyszli właściciele nie będą musieli poszukiwać wolnej przestrzeni parkingowej. Dodatkowo, miejsce postojowe w garażu podziemnym zabezpiecza przed niekorzystnymi warunkami atmosferycznymi.
Opis Inwestycji
Tereny zielone
Apartamenty Esencja II to nowoczesna inwestycja klasy premium, realizowana przez renomowanego dewelopera Archicom, należącego do Grupy Echo Investment.
Zlokalizowana na styku ul. Szyperskiej i Garbary 104 oferuje mieszkańcom wyjątkowe połączenie miejskiego stylu życia z bliskością natury. Położenie inwestycji na Starym Mieście zapewnia łatwy dostęp do centrum Poznania, nadwarciańskich bulwarów oraz rozległych terenów zielonych Parku Cytadela. Garbary, jako dynamicznie rozwijająca się dzielnica, łączą historyczny charakter z nowoczesną infrastrukturą, stając się atrakcyjnym miejscem do życia. Projekt autorstwa pracowni Maarte wyróżnia się kaskadową zabudową, beżową elewacją i dużymi oknami typu porte-fenêtre, które zapewniają doskonałe doświetlenie wnętrz. Budynek harmonijnie wpisuje się w otoczenie ul. Szyperskiej i Garbar, schodząc ku prywatnemu skwerowi dla mieszkańców, wyposażonemu w starannie zaprojektowaną małą architekturę i nasadzenia.
W ramach inwestycji przewidziano 118 mieszkań o zróżnicowanych metrażach – od kompaktowych kawalerek po przestronne apartamenty o powierzchni blisko 120 m² z dużymi tarasami.
Na parterze znajdzie się 9 lokali usługowych oraz mieszkanie dostosowane do potrzeb osób z niepełnosprawnością ruchową. Dla mieszkańców dostępny będzie podziemny garaż ze stacją ładowania pojazdów elektrycznych oraz system Archicom Smart, umożliwiający zdalne sterowanie oświetleniem, ogrzewaniem i innymi funkcjami mieszkania.
Apartamenty Esencja II to idealna propozycja dla osób poszukujących komfortowego życia w centrum miasta, z dostępem do zielonych przestrzeni i nowoczesnych udogodnień.
Mieszkanie znajduje się w inwestycji Apartamenty Esencja II, w której znajduje się w sprzedaży jeszcze 15 podobnych nowych mieszkań.
Archicom S.A.
Strona internetowa inwestycjiAdres biura sprzedaży:
ul. Garbary 104Godziny otwarcia biura sprzedaży:
- Poniedziałek: 09:00 - 17:00
- Wtorek: 09:00 - 17:00
- Środa: 09:00 - 17:00
- Czwartek: 09:00 - 17:00
- Piątek: 09:00 - 17:00





