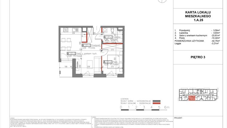
Mieszkanie na sprzedaż 2 pokoje o powierzchni 43,18 m² numer A.25
Inwestycja:
Piaseczno ResidenceDeweloper:
Piaseczno Ancona Residence Sp. z o.o.
Inwestycja:
Piaseczno ResidenceDeweloper:
Piaseczno Ancona Residence Sp. z o.o.Piaseczno, ul. Wojska Polskiego
Piaseczno, ul. Wojska Polskiego
Termin oddania
2 kw. 2027
Ilość pokoi
2 pokoje
Metraż
43,18 m²
Piętro
3 piętro
Strona świata
zachód
Powierzchnie dodatkowe
Loggia
Kuchnia
otwarta kuchnia
Wysokość pomieszczeń
270 cm wysokości
Ilość poziomów
1 poziom
Oznaczenie oferty
A.25

Raport o deweloperze
Poznaj dewelopera bliżej! Pobierz raport, w którym znajdziesz kluczowe informacje o firmie, jej doświadczeniu, nagrodach oraz aktualnych i zrealizowanych inwestycjach.
Budynek i otoczenie
Miejsca postojowe | |
|---|---|
Komórki lokatorskie | dostępne (16): nieobowiązkowy zakup; od 3,15 do 4,02 m2; od 5 000 do 7 000 zł/m2 |
Standard wykończenia | standard deweloperski Ogrzewanie kotłownia |
Realizacja inwestycji | rozpoczęcie budowy w 1 kw. 2026 roku, planowane oddanie do użytkowania w 2 kw. 2027 roku |
Udogodnienia | monitoring, klimatyzacja, paczkomat, winda, usługi w budynku |
Przyroda | informacja u dewelopera |
Charakterystyka energetyczna nieruchomości | informacja u dewelopera |
Rezerwacja i finanse
Rodzaj własności | Odrębna własność z własnością gruntu |
|---|---|
Wysokość czynszu | informacja u dewelopera |
Warunki rezerwacji | Informacja u dewelopera |
Zabezpieczenie środków | Otwarty mieszkaniowy rachunek powierniczy |
Zdjęcia z budowy
Zobacz na jakim etapie budowy jest ta inwestycja
Lokalizacja inwestycji
Stacja kolejowa - Piaseczno Miasto Wąskotorowe - 668 m
Przystanek Autobusowy - 49 m
Dojazd do centrum Warszawy: pokaż
W pobliżu 1 km od tej inwestycji znajdują się:
44 kawiarnie i restauracje, 57 sklepów, 32 obiekty sportowe, 17 placówek medycznych, 34 placówki edukacyjne, 24 place zabaw
Przeczytaj więcej o lokalizacji
Piaseczno to miasto aglomeracji warszawskiej położone w odległości 17 km od centrum stolicy. Liczba ludności Piaseczna ciągle wzrasta ze względu na dogodność lokalizacji oraz dynamicznie rozwijające się budownictwo mieszkaniowe i biznesowo-usługowe. Niską zabudowę mieszkalną tworzą domy jednorodzinne lub wielorodzinne oraz wille. Do terenów miejskiej zieleni należą: Park Miejski i Skwer im. Stefana Kisielewskiego, zaś do zabytków ─ Ratusz Miejski i Dworek Poniatówka. Miasto stanowi siedzibę wielu firm, np.: VIMEX, Creotech Instruments czy Olmar. Zlokalizowane są tu liczne obiekty sportowo-rekreacyjne m.in.: pływalnie, korty tenisowe, skate park, hale paintballowe i ścianka wspinaczkowa.
Opis oferty
Nowe 2-pokojowe mieszkanie na sprzedaż o powierzchni 43,18 m² znajduje się w nowo budowanej inwestycji deweloperskiej Piaseczno Residence w Piasecznie, ul. Wojska Polskiego (3.2 km od Warszawy).
Inwestycja jest realizowana przez Piaseczno Ancona Residence Sp. z o.o.
Cała inwestycja składa się z 1 budynku, w którym łącznie znajduje się 29 nowych mieszkań.
Na sprzedaż pozostaje 29 ofert o powierzchni od 31 do 78 m².
W budynku są 4 kondygnacje naziemne oraz 1 kondygnacja podziemna.
Inwestycja Piaseczno Residence jest w trakcie budowy z planowanym na 2 kw. 2027 roku terminem oddania do użytkowania.
Nowe mieszkanie o oznaczeniu A.25 znajduje się na 3 piętrze i jest 1-poziomowe. Pomieszczenia mają 270 centymetrów wysokości. W mieszkaniu znajdują się 2 pokoje.
Do mieszkania przewidziano możliwość zakupu komórki lokatorskiej, którą można zagospodarować na spiżarnię, warsztat czy składzik.
Okna w mieszkaniu wychodzą na zachód.
Zachodnia ekspozycja to gwarancja intensywnego popołudniowego światła, które nadaje wnętrzom przytulności i ciepła. Idealne dla miłośników słonecznych wieczorów, którzy pragną cieszyć się pięknymi zachodami słońca we własnym domu. Zachodnie światło podkreśla kolory i faktury w aranżacji wnętrz, tworząc atmosferę sprzyjającą relaksowi po długim dniu.
Dla przyszłych mieszkańców Piaseczno Residence deweloper przewidział miejsca postojowe podziemne.
Dzięki temu przyszli właściciele nie będą musieli poszukiwać wolnej przestrzeni parkingowej. Dodatkowo, miejsce postojowe w garażu podziemnym zabezpiecza przed niekorzystnymi warunkami atmosferycznymi.
Opis Inwestycji
Tereny zielone
Pow. dodatkowe
Piaseczno Residence to nowoczesna i kameralna inwestycja mieszkaniowa, wyróżniająca się elegancką, minimalistyczną architekturą oraz wyjątkowo przemyślanym układem przestrzeni.
Czterokondygnacyjny budynek został zaprojektowany z dbałością o detale i funkcjonalność, tworząc miejsce idealne do komfortowego, miejskiego życia.
Projekt łączy jasną, ponadczasową kolorystykę elewacji z subtelnymi akcentami z cegły i szkła, dzięki czemu budynek harmonijnie wpisuje się w otoczenie.
Szerokie przeszklenia, nowoczesne balustrady i naturalna zieleń nadają inwestycji lekkości i współczesnego charakteru.
Mieszkanie znajduje się w inwestycji Piaseczno Residence, w której znajduje się w sprzedaży jeszcze 5 podobnych nowych mieszkań.
Piaseczno Ancona Residence Sp. z o.o.
Strona internetowa inwestycjiAdres biura sprzedaży:
ul. Jana Pawła II 9 lok. 9, PiasecznoGodziny otwarcia biura sprzedaży:
- Poniedziałek: 10:00 - 16:00
- Wtorek: 10:00 - 16:00
- Środa: 10:00 - 16:00
- Czwartek: 10:00 - 16:00
- Piątek: 10:00 - 16:00





