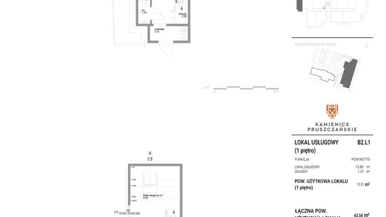
Lokal użytkowy na sprzedaż 4 pokoje o powierzchni 43,54 m² numer B2.L2
Inwestycja:
Kamienice PruszczańskieDeweloper:
Activa AP Andrzej Pastuszka Sp. K.
Inwestycja:
Kamienice PruszczańskieDeweloper:
Activa AP Andrzej Pastuszka Sp. K.Pruszcz Gdański, ul. Grunwaldzka 71B
Pruszcz Gdański, ul. Grunwaldzka 71B
Termin oddania
1 kw. 2027
Ilość pokoi
4 pokoje
Metraż
43,54 m²
Piętro
Parter
Strona świata
wschód, zachód, północ
Powierzchnie dodatkowe
Ogródek
Wysokość pomieszczeń
265 cm wysokości
Ilość poziomów
2 poziomy
Oznaczenie oferty
B2.L2

Raport o deweloperze
Poznaj dewelopera bliżej! Pobierz raport, w którym znajdziesz kluczowe informacje o firmie, jej doświadczeniu, nagrodach oraz aktualnych i zrealizowanych inwestycjach.
Budynek i otoczenie
Miejsca postojowe | |
|---|---|
Standard wykończenia | standard deweloperski podwyższony Ogrzewanie miejska sieć gazowa |
Realizacja inwestycji | rozpoczęcie budowy w 3 kw. 2025 roku, planowane oddanie do użytkowania w 1 kw. 2027 roku |
Udogodnienia | plac zabaw, klimatyzacja, monitoring, usługi w budynku, winda, instalacja fotowoltaiczna, miejsce do ładowania samochodów elektrycznych, pompa ciepła |
Przyroda | w okolicy inwestycji znajduje się park |
Charakterystyka energetyczna nieruchomości | informacja u dewelopera |
Rezerwacja i finanse
Rodzaj własności | Odrębna własność z własnością gruntu |
|---|---|
Wysokość czynszu | informacja u dewelopera |
Warunki rezerwacji | Informacja u dewelopera |
Zabezpieczenie środków | Otwarty mieszkaniowy rachunek powierniczy i gwarancję bankową |
Zdjęcia z budowy
Zobacz na jakim etapie budowy jest ta inwestycja
Lokalizacja inwestycji
Stacja kolejowa - Pruszcz Gdański - 778 m
Przystanek Autobusowy - 58 m
Dojazd do centrum Gdańska: pokaż
W pobliżu 1 km od tej inwestycji znajdują się:
23 kawiarnie i restauracje, 36 sklepów, 26 obiektów sportowych, 11 placówek medycznych, 14 placówek edukacyjnych, 20 placów zabaw
Przeczytaj więcej o lokalizacji
Pruszcz Gdański to leżąca nad rzeką Radunią siedziba powiatu gdańskiego. Miasto liczy sobie ok. 27 000 mieszkańców, a jego powierzchnia wynosi 16,5 km2. Zabudowa zasługuje tu na szczególną uwagę, ponieważ Pruszcz został nagrodzony za nowoczesne budownictwo mieszkaniowo-usługowe znajdujące się w centrum. Przemyślane odnowienie i ponowne zagospodarowanie zabytkowych nieruchomości nadało miastu wyjątkowego charakteru. W Pruszczu Gdańskim znajdują się szkoły wszystkich szczebli. Za zdrowie mieszkańców odpowiadają lekarze z 10 przychodni. Zadowalające jest zaplecze sportowe, na które składa się m.in. 6 boisk, basen, dwa skateparki i 16 placów zabaw. Odpocząć można np. na deptaku w centrum miasta. Rozrywki zazna się tu w Centrum Kultury i Sportu. Miasto ma także własną orkiestrę. Na zakupy można wybrać się do Tesco lub Biedronki albo szeregu mniejszych sklepów branżowych.
Opis oferty
Nowy lokal użytkowy na sprzedaż o powierzchni 43,54 m² znajduje się w nowo budowanej inwestycji deweloperskiej Kamienice Pruszczańskie w Pruszczu Gdańskim, ul. Grunwaldzka 71B (2.1 km od Gdańska).
Inwestycja jest realizowana przez Activa AP Andrzej Pastuszka Sp. K.
Cała inwestycja składa się z 2 budynków, w których łącznie znajdują się 2 nowy lokale użytkowe.
Budynki posiadają 3 kondygnacje naziemne oraz 1 kondygnację podziemną.
Inwestycja Kamienice Pruszczańskie jest w trakcie budowy z planowanym na 1 kw. 2027 roku terminem oddania do użytkowania.
Lokal użytkowy o oznaczeniu B2.L2 znajduje się na parterze budynku, a wysokość pomieszczeń wynosi 265 cm.
Dla przyszłych właścicieli Activa AP Andrzej Pastuszka Sp. K. przewidział: miejsca postojowe podziemne, miejsca postojowe naziemne (11 miejsc).
Opis Inwestycji
Tereny zielone
Pow. dodatkowe
Inwestycja Kamienice Pruszczańskie, która powstaje w Pruszczu Gdańskim przy ulicy Grunwaldzkiej 71B i 71C, to znakomita i bezkonkurencyjna lokalizacja w historycznym sercu Pruszcza Gdańskiego, nadzwyczaj blisko większości niezbędnych usług publicznych i komercyjnych, przy zachowaniu charakteru osiedla jako spokojnej enklawy. Jest to pierwsza inwestycja mieszkaniowa tak unikalna w skali miasta, historycznie inspirowana i starannie przygotowana w standardzie premium.
Spójrz na mapę, a będziesz zaskoczony jak wiele spraw i potrzeb będziesz w stanie codziennie zrealizować w promieniu kilkuset metrów od domu. Szkoła, przedszkole, apteka, Urząd Miasta, restauracje, kościół, markety, studia urody, park a nawet zabytkowy młyn z doskonałą mąką. Z kolei w odległości kilometra lista możliwości staje się już tak długa, że trudno ją tu wymienić.
Zwróć uwagę na świetną lokalizację dookoła której tętni życie. Kamienice Pruszczańskie będą jednak elegancką enklawą.
Na naszej inwestycji powstaną 4 budynki (B1 – B4). Znajdzie się w nich 80 lokali – od kawalerek po 5-pokojowe apartamenty – których powierzchnia użytkowa wynosić będzie między 26 a 110 m², podziemny garaż z komórkami lokatorskimi i schowkami. Mieszkania na parterze będą posiadały ogródki do 167 m2.
Nowa inwestycja dewelopera Activa to bezpieczeństwo wyboru i gwarancja najwyższej jakości wykonania z dbałością o najmniejsze detale. To również dbałość o zastosowanie sprawdzonych rozwiązań architektonicznych zapewniających możliwie jak największy komfort oferowanych mieszkań. Osiedle Kamice Pruszczańskie to najlepszy wybór z możliwych.
Nasza inwestycja jest doskonale usytułowana pod względem komunikacyjnym:
• Przystanek ZTM Gdańsk z kilkoma liniami autobusowymi oraz z bezpośrednim dojazdem do Gdańska Głównego – 300 m
• Dworzec PKP Pruszcz Gdański z zamykaną wiatą na rowery – 1 km
• liczne ścieżki rowerowe w najbliższej okolicy, w tym urokliwa ścieżka rowerowa wzdłuż Kanału Raduni
• centrum Pruszcza Gdańskiego – 300 m
• 10 minut samochodem do Obwodnicy Trójmiasta
• samochodem do Głównego Miasta w Gdańsku dojedziesz w 20 minut!
Atrakcyjne części wspólne:
• cichobieżne windy,
• hale garażowe,
• miejsca postojowe zewnętrzne,
• komórki lokatorskie i schowki,
• przestronne klatki schodowe wykończone granitem,
• plac zabaw.
Standard wykończenia mieszkań z inwestycji Kamienice Pruszczańskie obejmuje m.in.:
• gładź na ścianach,
• 2 krotne wstępne malowanie ścian na biało,
• murowane ściany działowe (nie używamy płyt GK),
• okna 3-szybowe,
• granitowe parapety,
• balkon wykończony deską kompozytową,
• zamontowany osprzęt elektryczny
• klimatyzacja w pokoju dziennym
• w mieszkaniach parterowych w oknach okucia RC2, klamki zamykane na kluczyk, szyby P4, ogródki z częścią tarasową i trawą z rolki
Dodatki:
• miejsce postojowe podziemne - od 30 000,00 zł brutto
• miejsce postojowe naziemne - 28 000,00 zł brutto
• komórka lokatorska - 4 500,00 zł brutto za m2
• schowek - 5 500,00 zł brutto za m2
Zapraszamy na naszą stronę internetową https://activa.pl/inwestycje/adnromeda , na której do dyspozycji Klientów mamy wyszukiwarkę 3D.
Prospekt informacyjny inwestycji Antares dostępny jest na stronie internetowej dewelopera.
Activa AP Andrzej Pastuszka Sp. K.
Strona internetowa inwestycjiAdres biura sprzedaży:
ul. Obrońców Wybrzeża 2B, 83-000 Pruszcz GdańskiGodziny otwarcia biura sprzedaży:
- Poniedziałek: 10:00 - 18:00
- Wtorek: 08:30 - 16:30
- Środa: 08:30 - 16:30
- Czwartek: 08:30 - 16:30
- Piątek: 08:30 - 16:30





