Mieszkanie na sprzedaż 3 pokoje o powierzchni 50,99 m² numer DA0303
Rezerwacja
Inwestycja:
Spokojny MokotówDeweloper:
YIT Development Sp. z o.o.
Inwestycja:
Spokojny MokotówDeweloper:
YIT Development Sp. z o.o.Warszawa, Mokotów, Siekierki, ul. Polska 17
Warszawa, Mokotów, Siekierki, ul. Polska 17
Termin oddania
Gotowe
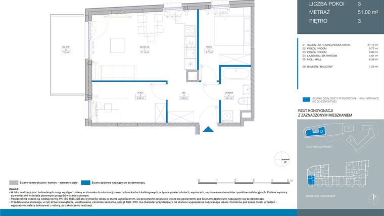
Ilość pokoi
3 pokoje
Metraż
50,99 m²
Piętro
3 piętro
Powierzchnie dodatkowe
Balkon
Kuchnia
otwarta kuchnia
Wysokość pomieszczeń
od 253 do 264 cm wysokości
Ilość poziomów
1 poziom
Oznaczenie oferty
DA0303

Raport o deweloperze
Poznaj dewelopera bliżej! Pobierz raport, w którym znajdziesz kluczowe informacje o firmie, jej doświadczeniu, nagrodach oraz aktualnych i zrealizowanych inwestycjach.
Budynek i otoczenie
Miejsca postojowe | |
|---|---|
Komórki lokatorskie | dostępne |
Standard wykończenia | standard deweloperski |
Realizacja inwestycji | została oddana do użytkowania w 1 kw. 2025 roku |
Udogodnienia | plac zabaw, monitoring, usługi w budynku, winda, siłownia plenerowa, miejsce do ładowania samochodów elektrycznych |
Przyroda | informacja u dewelopera |
Charakterystyka energetyczna nieruchomości |
|
Rezerwacja i finanse
Rodzaj własności | Odrębna własność z własnością gruntu |
|---|---|
Wysokość czynszu | informacja u dewelopera |
Warunki rezerwacji | Informacja u dewelopera |
Zabezpieczenie środków | Informacja u dewelopera |
Zdjęcia z budowy
Zobacz na jakim etapie budowy jest ta inwestycja
Lokalizacja inwestycji
Przystanek Tramwajowy - 2034 m
Przystanek Autobusowy - 194 m
Dojazd do centrum: pokaż
W pobliżu 1 km od tej inwestycji znajdują się:
14 kawiarni i restauracji, 19 sklepów, 8 obiektów sportowych, 3 placówki medyczne, 14 placówek edukacyjnych, 26 placów zabaw
Przeczytaj więcej o lokalizacji
Na położonym w lewobrzeżnej części stolicy Mokotowie mieszka ok. 219 tys. osób, co sprawia, że jest to najludniejsza spośród warszawskich dzielnic. Mimo dużej liczby mieszkańców, obszar o powierzchni ok. 35 km2 nie należy do zatłoczonych, bowiem zabudowa jest zróżnicowana. Mokotów słynie z luksusowych apartamentowców, jak: Apartamenty przy Królikarni, Rezydencja Merliniego czy Osiedle Eco Park. Występują tutaj zarówno otoczone zielenią wille, jak i wielkie blokowiska na osiedlach: Stegny, Służew i Domaniewska. Dawny Służewiec Przemysłowy zagospodarowany jest na rzecz centrów handlowo-usługowych, jak Galeria Mokotów lub biurowo-biznesowych typu: GTC, TOP 2000, Zepter, Curtis Plaza. Funkcję rekreacyjną pełnią liczne parki, skwery i zieleńce oraz rezerwat Jezioro Czerniakowskie. Niezwykle bogata jest oferta kulturalna: 18 teatrów, 10 muzeów, 5 kin oraz 15 galerii sztuki. W dzielnicy kursuje metro, a główne arterie to: most Siekierkowski, Wisłostrada, Al. Niepodległości i ul. Puławska.
Opis oferty
Nowe 3-pokojowe mieszkanie na sprzedaż o powierzchni 50,99 m² znajduje się w nowo wybudowanej inwestycji deweloperskiej Spokojny Mokotów na Siekierkach, ul. Polska 17 (5.2 km od centrum Warszawy).
Inwestycja została zrealizowana przez YIT Development Sp. z o.o.
Cała inwestycja składa się z 3 budynków, w których łącznie znajdują się 154 nowe mieszkania.
Na sprzedaż pozostaje 8 ofert o powierzchni od 47 do 89 m².
W budynkach są 4 kondygnacje naziemne oraz 1 kondygnacja podziemna.
Inwestycja Spokojny Mokotów została wybudowana i oddana do użytkowania w 1 kw. 2025 roku.
Nowe mieszkanie o oznaczeniu DA0303 znajduje się na 3 piętrze i jest 1-poziomowe. Pomieszczenia mają od 253 do 264 centymetrów wysokości. W mieszkaniu znajdują się 3 pokoje.
Dla przyszłych mieszkańców Spokojny Mokotów deweloper przewidział miejsca postojowe podziemne.
Dzięki temu przyszli właściciele nie będą musieli poszukiwać wolnej przestrzeni parkingowej. Dodatkowo, miejsce postojowe w garażu podziemnym zabezpiecza przed niekorzystnymi warunkami atmosferycznymi.
Opis Inwestycji
Okazyjna cena
Pow. dodatkowe
Spokojny Mokotów to inwestycja największego fińskiego dewelopera – YIT.
Osiedle Spokojny Mokotów jest idealne dla osób, dla których odpoczynek nie ogranicza się tylko do czterech ścian. Na terenie osiedla powstaną dedykowane strefy: rekreacji, relaksu oraz strefa społeczna. W każdej ze stref możesz realizować się w zależności od potrzeb. Relaks na hamaku w cieniu drzew, ruch na świeżym powietrzu, a może wspólne sadzenie warzyw w ogródku sąsiedzkim? Wybór należy do Ciebie.
Mimo, że inwestycja zlokalizowana jest w dzielnicy znajdującej się blisko centrum, możesz liczyć tu na spokój oraz ciszę. Budynki na terenie osiedla, tak samo jak te okoliczne nie przekraczają swoją wysokością 4 kondygnacji. Panuje tu sielska atmosfera.
W YIT dbamy o to, aby mieszkańcy naszych osiedli codziennie mogli cieszyć się swoim otoczeniem. Przy budowie naszych inwestycji korzystamy z naszych fińskich korzeni, zgodnie z którymi projektując zachowujemy minimalizm oraz wysokiej jakości materiały. Spokojny Mokotów nie jest wyjątkiem. W przypadku tego projektu zdecydowaliśmy się na pokrycie całej elewacji budynków elegancką płytką klinkierową.
Aktualnie w sprzedaży znajdują się 3 budynki:
- budynek z etapu 1A – 40 mieszkań,
- 2 budynki z etapu 1B – w jednym 20 lokali mieszkalnych, a w drugim 94.
Mieszkanie znajduje się w inwestycji Spokojny Mokotów, w której znajdują się w sprzedaży jeszcze 4 podobne nowe mieszkania.
YIT Development Sp. z o.o.
Strona internetowa inwestycjiAdres biura sprzedaży:
ul. Marzycieli 6, 02-757 WarszawaGodziny otwarcia biura sprzedaży:
- Poniedziałek: 10:00 - 18:00
- Wtorek: 10:00 - 18:00
- Środa: 10:00 - 18:00
- Czwartek: 10:00 - 18:00
- Piątek: 10:00 - 18:00
- Sobota: 10:00 - 15:00





