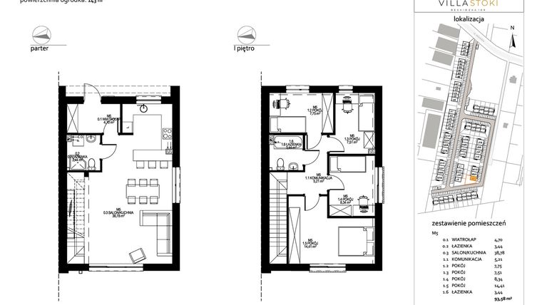
Dom na sprzedaż 5 pokoi o powierzchni 93,58 m² numer M5
Inwestycja:
Villa Stoki (domy)Deweloper:
Varitex Sp. z o.o.
Inwestycja:
Villa Stoki (domy)Deweloper:
Varitex Sp. z o.o.Łódź, Dolina Łódki, ul. Beskidzka 109
Łódź, Dolina Łódki, ul. Beskidzka 109
Termin oddania
3 kw. 2026
Ilość pokoi
5 pokoi
Metraż
93,58 m²
Piętro
2 piętro
Strona świata
zachód
Powierzchnie dodatkowe
Ogródek
Wysokość pomieszczeń
od 260 do 280 cm wysokości
Ilość kondygnacji
1 poziom
Oznaczenie oferty
M5

Raport o deweloperze
Poznaj dewelopera bliżej! Pobierz raport, w którym znajdziesz kluczowe informacje o firmie, jej doświadczeniu, nagrodach oraz aktualnych i zrealizowanych inwestycjach.
Budynek i otoczenie
Miejsca postojowe | |
|---|---|
Standard wykończenia | standard deweloperski Ogrzewanie Gazowe |
Realizacja inwestycji | rozpoczęcie budowy w 1 kw. 2025 roku, planowane oddanie do użytkowania w 3 kw. 2026 roku |
Udogodnienia | teren ogrodzony, internet, TV kablowa |
Przyroda | w okolicy inwestycji znajduje się park |
Charakterystyka energetyczna nieruchomości | informacja u dewelopera |
Rezerwacja i finanse
Rodzaj własności | Odrębna własność z własnością gruntu |
|---|---|
Wysokość czynszu | informacja u dewelopera |
Warunki rezerwacji | Informacja u dewelopera |
Zabezpieczenie środków | Otwarty mieszkaniowy rachunek powierniczy |
Zdjęcia z budowy
Zobacz na jakim etapie budowy jest ta inwestycja
Lokalizacja inwestycji
Stacja kolejowa - Łódź Stoki - 2897 m
Przystanek Tramwajowy - 1876 m
Przystanek Autobusowy - 155 m
Dojazd do centrum: pokaż
W pobliżu 1 km od tej inwestycji znajdują się:
1 kawiarnia lub restauracja, 6 sklepów, 4 obiekty sportowe, 2 placówki medyczne, 6 placówek edukacyjnych, 3 place zabaw
Przeczytaj więcej o lokalizacji
To niewątpliwa zaleta projektu Villa Stoki. W mieście, ale na uboczu. Z szybkim dostępem do pełnej oferty miasta, ale w otoczeniu przyrody i w zaciszu bocznych uliczek. Bliskość komunikacji miejskiej, szkoły, sklepów czy stacji benzynowych to tutaj oczywistość. W bezpośrednim sąsiedztwie pozostają Centrum Handlowe M1, rynek Zjazdowa oraz Biedronka. Niedaleko jest do Parku Krajobrazowego Wzniesień Łódzkich, zaś odległość do centrum miasta mierzona z poziomu Placu Wolności to zaledwie 6 km. Atutem szczególnym w zakresie lokalizacji osiedla Villa Park jest praktycznie otwarty wylot z miasta w kierunku węzła komunikacyjnego Stryków u zbiegu autostrad A1 i A2 – poprzez ulicę Brzezińską, a dalej Strykowską. Dla osób dużo podróżujących po kraju to punkt wręcz wymarzony. Jednym słowem, lokalizacja inwestycji Villa Stoki łączy w sobie zalety mieszkania w mieście z komfortem życia w otoczeniu przyrody. Jesteśmy o tym przekonani.
Widzew jest największą dzielnicą Łodzi i ma powierzchnię ok. 91 km², a liczba jego mieszkańców wynosi ok. 140 000. Gęstość zaludnienia jest niska, gdyż na obrzeżach Widzewa znajduje się sporo terenów zielonych – pól, lasów, nieużytków. Poza tym dominuje zabudowa przemysłowa i duże osiedla mieszkaniowe (złożone z bloków i wieżowców). Dzielnica leży na terenie dawnej wsi Widzew, która przez lata stopniowo była inkorporowana do granic miasta. Najbardziej uprzemysłowioną część wsi przyłączono do Łodzi już w 1906 roku, a kolejne wcielenia miały miejsce w 1915 i 1946 roku. Także dawna wieś Widzew jest w całości częścią Łodzi od zakończenia II wojny światowej, natomiast jako osobna dzielnica funkcjonuje od 1954 roku. Od tego czasu jej powierzchnia kilkukrotnie rozszerzała się o nowe tereny.
Opis oferty
Nowy 5-pokojowy dom na sprzedaż o powierzchni 93,58 m² znajduje się w nowo budowanej inwestycji deweloperskiej Villa Stoki (domy) na Dolinie Łódki, ul. Beskidzka 109 (6.8 km od centrum Łodzi).
Inwestycja jest realizowana przez Varitex Sp. z o.o.
Cała inwestycja składa się z 11 nowych domów.
Inwestycja Villa Stoki (domy) jest w trakcie budowy z planowanym na 3 kw. 2026 roku terminem oddania do użytkowania.
Nowy dom o oznaczeniu M5 , składa się z 1 kondygnacji bez poddasza, nie posiada podpiwniczenia. Wysokość pomieszczeń wynosi od 260 do 280 cm.
W domu numer M5 znajduje się się 5 pokoi.
Okna domu wychodzą na zachód.
Do domu przynależy ogródek o powierzchni 143 m².
Dla przyszłych mieszkańców Villa Stoki (domy) deweloper przewidział miejsca postojowe naziemne
Opis Inwestycji
Okazyjna cena
Pow. dodatkowe
Projektując osiedle Villa Stoki zależało nam na stworzeniu przestrzeni oddającej wartości bliskie współczesnej rodzinie. Podeszliśmy więc do zadania z entuzjazmem równym potencjałowi miejsca. Cel był jasny – w wielkomiejskie otoczenie wrysować zaciszne osiedle o wysokich walorach użytkowych i atrakcyjnej formie wizualnej. W rezultacie powstał projekt funkcjonalnej i nowoczesnej szeregowej zabudowy mieszkaniowej jednorodzinnej. Projekt, który z dumą Państwu przedstawiamy.
Zespół nowoczesnych w formie budynków jednorodzinnych nawiązuje do prostego ładu miejskiej architektury użytkowej łączącej swobodę i niezależność z komfortem codziennego życia. Starannie dobrane proporcje w elementach przestrzennych i przyjazna stonowana kolorystka odzwierciedlają ducha współczesnego ideału mieszkaniowego. Uporządkowana w ten sposób przestrzeń daje odpoczynek od zgiełku miasta, ciesząc mieszkańców harmonią otoczenia.
Osiedle Villa Stoki to przede wszystkim wygodne, przestronne i jasne wnętrza domów, dopasowane do potrzeb swoich mieszkańców. Idealne połączenie najlepszych cech mieszkania i komfortu posiadania własnego domu.
Wszystkie domy oferują wysoki standard użytkowy. Ponadto dają możliwość autorskiej, niebanalnej aranżacji wnętrz. Posiadają przytulne ogródki od strony salonów zachęcające do spędzania czasu na zewnątrz, a także podjazdy od frontu zapewniające wygodne parkowanie aut.
Osiedle gwarantuje także przyjazną przestrzeń wspólną dla swoich mieszkańców, w postaci chodników, wybudowanych i wykończonych dróg wewnętrznych, małej architektury oraz oświetlenia.
Do wyboru pozostają domy o powierzchniach od 95 do 112 m2.
Do tego elementu przykładamy szczególną uwagę. Budujemy na lata. Jakość wykonania osiedla Villa Stoki to dla nas wartość sama w sobie, która leży u podstaw bezpieczeństwa i komfortu przyszłych użytkowników. Dlatego odwołujemy się do całego naszego długoletniego doświadczenia w obszarze projektów deweloperskich, które z sukcesem przeprowadziliśmy. Ta wiedza jest naszym kapitałem i gwarancją jakości.
Dom znajduje się w inwestycji Villa Stoki (domy), w której znajduje się w sprzedaży jeszcze 7 podobnych nowych domów.
Varitex Sp. z o.o.
Strona internetowa inwestycjiAdres biura sprzedaży:
ul. Żeromskiego 96, 90-550 ŁódźGodziny otwarcia biura sprzedaży:
- Poniedziałek: 08:00 - 16:00
- Wtorek: 08:00 - 16:00
- Środa: 08:00 - 16:00
- Czwartek: 08:00 - 16:00
- Piątek: 08:00 - 16:00





