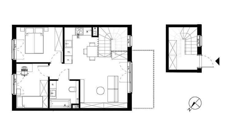
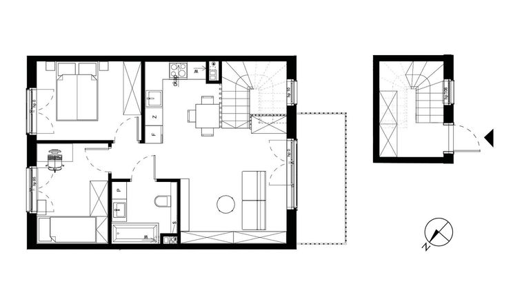
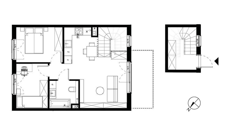
Mieszkanie na sprzedaż 3 pokoje o powierzchni 49,31 m² numer 23.2
Rezerwacja
Inwestycja:
Komfortia IVDeweloper:
Twoje M
Inwestycja:
Komfortia IVDeweloper:
Twoje Mpoznański, Skórzewo, ul. Fryderyka Chopina
poznański, Skórzewo, ul. Fryderyka Chopina
Termin oddania
2 kw. 2026
Ilość pokoi
3 pokoje
Metraż
49,31 m²
Piętro
1 piętro
Powierzchnie dodatkowe
Balkon
Kuchnia
otwarta kuchnia
Wysokość pomieszczeń
290 cm wysokości
Ilość poziomów
1 poziom
Oznaczenie oferty
23.2

Raport o deweloperze
Poznaj dewelopera bliżej! Pobierz raport, w którym znajdziesz kluczowe informacje o firmie, jej doświadczeniu, nagrodach oraz aktualnych i zrealizowanych inwestycjach.
Budynek i otoczenie
Miejsca postojowe | |
|---|---|
Standard wykończenia | standard deweloperski Ogrzewanie gazowe |
Realizacja inwestycji | rozpoczęcie budowy w 1 kw. 2024 roku, planowane oddanie do użytkowania w 2 kw. 2026 roku |
Udogodnienia | informacja u dewelopera |
Przyroda | informacja u dewelopera |
Charakterystyka energetyczna nieruchomości | informacja u dewelopera |
Rezerwacja i finanse
Rodzaj własności | Odrębna własność z własnością gruntu |
|---|---|
Wysokość czynszu | informacja u dewelopera |
Warunki rezerwacji | Informacja u dewelopera |
Zabezpieczenie środków | Otwarty mieszkaniowy rachunek powierniczy |
Zdjęcia z budowy
Zobacz na jakim etapie budowy jest ta inwestycja
Lokalizacja inwestycji
Stacja kolejowa - Palędzie - 2726 m
Przystanek Autobusowy - 543 m
Dojazd do centrum Poznania: pokaż
W pobliżu 1 km od tej inwestycji znajdują się:
2 kawiarnie i restauracje, 13 sklepów, 12 obiektów sportowych, 5 placówek medycznych, 6 placówek edukacyjnych, 9 placów zabaw
Przeczytaj więcej o lokalizacji
Powiat poznański znajduje się w centralnej części województwa wielkopolskiego i składa z 17 gmin okalających miasto Poznań. Na obszarze o powierzchni ok. 1900 km2 zamieszkuje ponad 344 tys. osób, toteż poznański jest najludniejszym powiatem w Polsce. Pod względem krajobrazowym powiat należy do Pojezierza Wielkopolskiego, a walorami pejzażu są: rzeka Warta wraz z dopływami, liczne jeziora, 11 rezerwatów przyrody oraz kompleksy leśne, min. Wielkopolski Park Narodowy, Rogaliński Park Krajobrazowy, Puszcza Zielonka i Park Krajobrazowy Promno. Przez powiat przebiegają ważne arterie jak: wschodnia i zachodnia obwodnica Poznania, autostrada A2 czy droga krajowa nr 92, dlatego zlokalizowanych jest tu wiele firm, hal magazynowych oraz zakładów produkcyjnych, a także 4 centra i 10 galerii handlowych. Dogodna lokalizacja w pobliżu Poznania oraz łatwy dojazd do miasta dzięki 29 połączeniom autobusowym sprawiają, że intensywnie rozwija się budownictwo mieszkaniowe – zwłaszcza jednorodzinne.
Opis oferty
Nowe 3-pokojowe mieszkanie na sprzedaż o powierzchni 49,31 m² znajduje się w nowo budowanej inwestycji deweloperskiej Komfortia IV w Skórzewie, ul. Fryderyka Chopina (1.9 km od Poznania).
Inwestycja jest realizowana przez Twoje M.
Cała inwestycja składa się z 6 budynków, w których łącznie znajduje się 36 nowych mieszkań.
Na sprzedaż pozostaje 14 ofert o powierzchni od 42 do 50 m².
W budynkach są 2 kondygnacje naziemne. Budynek nie posiada kondygnacji podziemnych.
Inwestycja Komfortia IV jest w trakcie budowy z planowanym na 2 kw. 2026 roku terminem oddania do użytkowania.
Nowe mieszkanie o oznaczeniu 23.2 znajduje się na 1 piętrze i jest 1-poziomowe. Pomieszczenia mają 290 centymetrów wysokości. W mieszkaniu znajdują się 3 pokoje.
Dla przyszłych mieszkańców Komfortia IV deweloper przewidział miejsca postojowe naziemne.
Dzięki temu przyszli właściciele nie będą musieli poszukiwać wolnej przestrzeni parkingowej.
Opis Inwestycji
Pow. dodatkowe
Inspiracją do powstania osiedla Komfortia IV były potrzeby naszych klientów. Ustawne i przestronne mieszkania o optymalnym metrażu, poczucie komfortu i intymności oraz doskonała lokalizacja w dynamicznie rozwijającym się Skórzewie to główne atuty naszej inwestycji. Osiedle Komfortia IV to sześć powtarzalnych, dwukondygnacyjnych szeregów z mieszkaniami o powierzchni 41 m2 lub 49 m2 oraz z bliźniakami o metrażu 69 m2. Mieszkania w bliźniakach to lokale czteropokojowe z ogrodami. Usytuowane są na szczytach szeregów, co zapewnia prywatność i poczucie komfortu. Tutaj każdy znajdzie coś dla siebie.
Termin realizacji:
Etap I, czyli lokale od 1-1 do 10-1 --> gotowe do odbioru
Etap II, czyli lokale od 11-1 do 20-1--> II kwartał 2026 r.
Etap III, czyli lokale od 21-1 do 30-1 --> II kwartał 2026 r.
https://youtu.be/5p3DQJNSbPU?si=BdNQ3RLOqCNLHL8l
Mieszkanie znajduje się w inwestycji Komfortia IV, w której znajduje się w sprzedaży jeszcze 10 podobnych nowych mieszkań.
Twoje M
Strona internetowa inwestycjiAdres biura sprzedaży:
Bizpark B, ul. Kozierowskiego 4/201, 60-185 SkórzewoArtykuły powiązane:
:format(jpg)/articles/gallery/image/3592/dzieci-na-placu-zabaw.jpg)
Plac zabaw w nowych inwestycjach
Zagospodarowanie terenów osiedlowych to już od lat stały element inwestycji dla wielu firm deweloperskich. Okazuje się jednak, że plac zabaw stworzony dla najmłodszych mieszkańców to wciąż nie jest standard, nawet w największych polskich miastach, gdzie powstają osiedla dla kilku tysięcy ludzi. Co więcej, w niektórych mniejszych miastach próżno szukać nowej inwestycji deweloperskiej wyposażonej w miejsce zabaw dla najmłodszych. Osiedlowy plac zabaw wciąż pozostaje magnesem na klienta.
02 lipca 2021
Marzena Zbierska





