Rumia, ul. Kosynierów 9
Rumia, ul. Kosynierów 9
:format(jpg)/offers/offer/19608/main_image/kamieniczki-za-struga_d0f93f.jpg)
:format(jpg)/offers/offer/19608/main_image/kamieniczki-za-struga_d0f93f.jpg)
1 zdjęcie
Termin oddania
3 kw. 2027
Powierzchnie
36 - 92/m2
Przedział pokoi
2 - 4
Kondygnacje
3
Budynki
1
Stand. wykończenia
Standard deweloperski
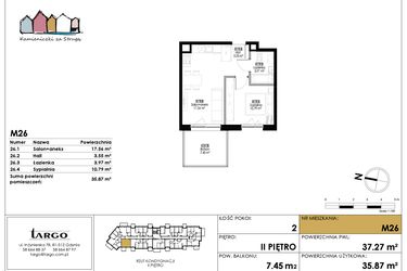
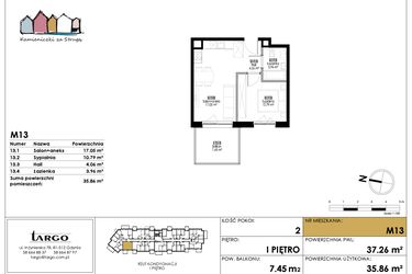
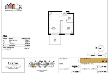
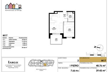
Mieszkania w inwestycji (32)
od 9 310 zł/m2
Sortuj
Stacja kolejowa - Rumia - 1190 m
Przystanek Autobusowy - 203 m
Dojazd do centrum Gdyni: pokaż
W pobliżu 1 km od tej inwestycji znajdują się:
5 kawiarni i restauracji, 27 sklepów, 18 obiektów sportowych, 6 placówek medycznych, 8 placówek edukacyjnych, 9 placów zabaw
Zdjęcia z budowy
Zobacz na jakim etapie budowy jest ta inwestycja
Udogodnienia Inwestycji
Standard i bezpieczeństwo
- usługi w budynku
- winda
- Standard deweloperski
Instalacje i energetyka
- instalacja fotowoltaiczna
Przyroda w okolicy
- park
- las
- rezerwat przyrody
Szczegóły inwestycji
Realizacja inwestycji:
Liczba budynków:
Liczba kondygnacji:
Liczba mieszkań:
Wysokość pomieszczeń:
Standard wykończenia
standard deweloperski
Ogrzewanie
miejskie
Rodzaj własności:
Powierzchnie dodatkowe:
Komórki lokatorskie:
Miejsca postojowe:
- miejsca postojowe podziemne (41 miejsc) w cenie 38 000 zł
- miejsca postojowe naziemne (10 miejsc) w cenie 15 000 zł
Przyroda:
Aktualna oferta
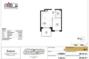
Dostępne mieszkania:
Powierzchnie mieszkań:
Liczba pokoi:
Ceny mieszkań:
- kształtują się w zakresie od 355 731 do 854 565 zł
- koszt metra kwadratowego wynosi od 9 310 do 10 600 zł
Opis płatności:
Warunki rezerwacji:
Zabezpieczenie środków klienta:
Wysokość czynszu:
Opis inwestycji
Kamieniczki za Strugą — Twój spokojny azyl w sercu Rumii
„Kamieniczki za Strugą” to kameralna, nowoczesna inwestycja mieszkaniowa położona przy ul. Kosynierów 9 w Rumii. Projekt stworzono z myślą o osobach, które pragną cieszyć się komfortem codziennego życia w otoczeniu zieleni, nie rezygnując przy tym z bliskości miejskich udogodnień.
To idealne miejsce zarówno dla rodzin, jak i osób szukających spokojnej przystani lub bezpiecznej inwestycji na lata.
Charakter inwestycji:
• Kameralna zabudowa – tylko 2 piętra
• Nowoczesna, elegancka architektura nawiązująca do klimatu nadmorskich kamieniczek
• Starannie zaprojektowane części wspólne i przestronne układy mieszkań
• Wysokość pomieszczeń: 2,7 m (parter i I piętro), do 3 m na II piętrze z nastrojowymi skosami
• Hala garażowa i komórki lokatorskie dostępne dla każdego mieszkania
• Mieszkania z ogródkami, balkonami lub tarasami
• Szeroki wybór metraży – od funkcjonalnych 2-pokojowych po przestronne 4-pokojowe apartamenty
Lokalizacja: Rumia, ul. Kosynierów 9
Położenie inwestycji gwarantuje idealną równowagę między spokojem a wygodą.
W najbliższym otoczeniu znajdują się sklepy, szkoły, przedszkola, punkty usługowe i przystanki komunikacji miejskiej. Zaledwie kilka minut dzieli mieszkańców od centrum Rumi, a doskonałe połączenie z Gdynią i całym Trójmiastem czyni tę lokalizację wyjątkowo atrakcyjną.
Bliskość parków i terenów rekreacyjnych sprawia, że to miejsce sprzyja aktywnemu i rodzinnemu stylowi życia.
Dlaczego warto wybrać Kamieniczki za Strugą:
✔ Kameralna, przyjazna społeczność
✔ Wysoka jakość wykonania i dbałość o każdy detal
✔ Funkcjonalne i dobrze doświetlone wnętrza
✔ Spokojna, zielona okolica
✔ Doskonała komunikacja i rozwinięta infrastruktura
✔ Inwestycja o rosnącej wartości – idealna również pod wynajem
Kamieniczki za Strugą to wyjątkowe połączenie nowoczesnego stylu, komfortu i natury.
To miejsce, w którym można naprawdę odpocząć – a jednocześnie mieć wszystko, co potrzebne, w zasięgu spaceru.
Inwestycja Kamieniczki za Strugą znajduje się w Rumi, ul. Kosynierów 9 (2.6 km od Gdyni), jest realizowana przez Targo S.A.
Inwestycja obecnie jest w trakcie budowy z planowanym na 3 kw. 2027 roku terminem oddania do użytkowania.
Cały projekt składa się z 37 nowych mieszkań znajdujących się w 1 budynku. Budynek posiada 3 kondygnacje naziemne wraz z parterem oraz 1 kondygnację podziemną.
Aktualnie w inwestycji Kamieniczki za Strugą w sprzedaży są 32 nowe mieszkania o powierzchni od 36 do 92 metrów kwadratowych , w cenie od 9 310 zł za metr kwadratowy.
Dla przyszłych mieszkańców Kamieniczki za Strugą deweloper przewidział:
- miejsca postojowe podziemne (41 miejsc) w cenie 38 000 zł
- miejsca postojowe naziemne (10 miejsc) w cenie 15 000 zł
W inwestycji znajdują się komórki lokatorskie od 2,42 do 9,13 m2; od 4600 do 5000 zł/m2.
Lokalizacja inwestycji
Rumia to miasto o powierzchni 30,08 km2, które zamieszkuje ok. 43 700 osób. Leży w pow. wejherowskim, w woj. pomorskim i graniczy z Gdynią oraz Redą. Wchodzi w skład Aglomeracji Gdańskiej i jest jedną z miejscowości tworzących Małe Trójmiasto Kaszubskie. Częściowo leży na terenie Trójmiejskiego Parku Krajobrazowego, który zajmuje ok. 40% terytorium miasta. Centrum Rumi wciąż jeszcze nie jest w pełni ukształtowane, za to na obrzeżach miasta z każdym rokiem rozrasta się zabudowa mieszkalna. Znaczne obszary dopiero czekają na zagospodarowanie. Póki co, powoli rozbudowywane jest tu zaplecze oświatowe, na które składa się 15 przedszkoli i 15 szkół różnego szczebla. Działa tu poradnia medyczna i 7 zakładów opieki zdrowotnej. Miasto posiada najważniejsze elementy infrastruktury sportowej. Znajduje się tu także galeria handlowa i centrum handlowe.
Komunikacja
Jak wygląda komunikacja w okolicy inwestycji Kamieniczki za Strugą?
Rumia położona jest przy drodze krajowej nr 6, co zapewnia jej dobre połączenie z Trójmiastem i innymi, okolicznymi miejscowościami. Przez miasto przechodzi też droga wojewódzka nr 100. Znajduje się tu dworzec kolejowy, z którego odchodzą pociągi do Szczecina, Gdańska i na Hel. Ok. 10 km od Rumi znajduje się morski port pasażerski, a ok. 25 km stąd, w Gdańsku-Rębiechowie, znajduje się port lotniczy.
Przyszli mieszkańcy inwestycji Kamieniczki za Strugą mogą korzystać z rozbudowanej sieci połączeń komunikacyjnych. W odległości 200 metrów od inwestycji Kamieniczki za Strugą znajduje się najbliższy punkt komunikacyjny - Rondo Jana Pawła II.
Edukacja
Czy w pobliżu inwestycji Kamieniczki za Strugą znajdują się szkoły/przedszkola?
Mieszkańcy mogą korzystać z bogatej oferty edukacyjnej. W najbliższej okolicy inwestycji Kamieniczki za Strugą znajduje się 8 placówek edukacyjnych. Najbliżej położone to: Szkoła Podstawowa Nr 1 im. Józefa Wybickiego w Rumi w odległości 300 m, przedszkole w odległości 400 m.
Opieka medyczna
Dużym atutem inwestycji Kamieniczki za Strugą jest bliskość ośrodków zdrowotnych. Dostęp do opieki medycznej zapewnią położone w pobliżu: Stomatolog w odległości 600 m.
Sklepy i usługi
Jak daleko jest do najbliższego sklepu?
Na infrastrukturę handlowo-usługową inwestycji Kamieniczki za Strugą składa się wiele punktów. Nieopodal, w odległości 100 m znajduje się Isabel - centrum zdrowych stóp.
Sport
Bliskość terenów rekreacyjnych oraz obiektów sportowych to mocna strona tej lokalizacji. W najbliższej okolicy inwestycji Kamieniczki za Strugą w odległości 200 m znajduje się boisko / kort, w odległości 200 m znajduje się Hala Widowiskowo-Sportowa.
Targo S.A.
Strona internetowa inwestycjiAdres biura sprzedaży:
ul. Inżynierska 78, 81-512 GdyniaGodziny otwarcia biura sprzedaży:
- Poniedziałek: 08:00 - 16:00
- Wtorek: 08:00 - 16:00
- Środa: 08:00 - 16:00
- Czwartek: 08:00 - 16:00
- Piątek: 08:00 - 16:00
Oferty, które mogą Cię zainteresować
Polecane Lokalizacje
Inwestycje w pobliżu w Rumi
- Rumia Osiedle Zielone Zacisze (95 ofert)
- WIDOKI etap II (1 oferta)
- Novum Rumia - bud. 22 (9 ofert)
- Osiedle Przy Błoniach 3 etap IV (107 ofert)
- Osiedle Przy Błoniach 3 etap III (51 ofert)
- Rumia Centralna (51 ofert)
- Przystań Rumia (2 oferty)
- Altro A2/1 (8 ofert)
- Jeziorna 1 (14 ofert)
- Zielone Błonia III (45 ofert)
- Altro A2/2 (3 oferty)
- Vela Park (1 oferta)





