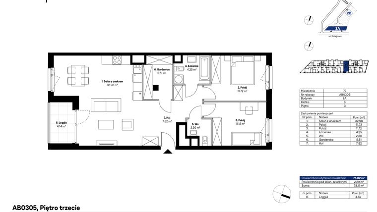
Mieszkanie na sprzedaż 3 pokoje o powierzchni 75,59 m² numer AB0305
Inwestycja:
NU2 Warszawa Wola
Inwestycja:
NU2 Warszawa WolaWarszawa, Wola, Czyste, ul. Kolejowa
Warszawa, Wola, Czyste, ul. Kolejowa
Termin oddania
1 kw. 2026
Ilość pokoi
3 pokoje
Metraż
75,59 m²
Piętro
3 piętro
Strona świata
północ, południe
Powierzchnie dodatkowe
Balkon
Kuchnia
otwarta kuchnia
Wysokość pomieszczeń
275 cm wysokości
Ilość poziomów
1 poziom
Oznaczenie oferty
AB0305

Raport o deweloperze
Poznaj dewelopera bliżej! Pobierz raport, w którym znajdziesz kluczowe informacje o firmie, jej doświadczeniu, nagrodach oraz aktualnych i zrealizowanych inwestycjach.
Budynek i otoczenie
Miejsca postojowe | |
|---|---|
Komórki lokatorskie | dostępne |
Standard wykończenia | standard deweloperski |
Realizacja inwestycji | rozpoczęcie budowy w 2 kw. 2024 roku, planowane oddanie do użytkowania w 1 kw. 2026 roku |
Udogodnienia | przystosowane dla niepełnosprawnych, inteligentny dom, instalacja fotowoltaiczna, miejsce do ładowania samochodów elektrycznych |
Przyroda | informacja u dewelopera |
Charakterystyka energetyczna nieruchomości |
|
Rezerwacja i finanse
Rodzaj własności | Odrębna własność z użytkowaniem wieczystym gruntu |
|---|---|
Wysokość czynszu | informacja u dewelopera |
Warunki rezerwacji | Informacja u dewelopera |
Zabezpieczenie środków | Informacja u dewelopera |
Zdjęcia z budowy
Zobacz na jakim etapie budowy jest ta inwestycja
Lokalizacja inwestycji
Metro - Rondo Daszyńskiego - 809 m
Przystanek Tramwajowy - 561 m
Przystanek Autobusowy - 352 m
Dojazd do centrum: pokaż
W pobliżu 1 km od tej inwestycji znajdują się:
105 kawiarni i restauracji, 85 sklepów, 41 obiektów sportowych, 67 placówek medycznych, 38 placówek edukacyjnych, 32 place zabaw
Przeczytaj więcej o lokalizacji
Znajdująca się w lewobrzeżnej części Warszawy, w bezpośrednim sąsiedztwie Śródmieścia, dzielnica Wola należy do najgęściej i najliczniej zaludnionych rejonów miasta. Dawny teren przemysłowy, na którym niegdyś powstały wielkie blokowiska, do dnia dzisiejszego stanowi skupisko wysokościowców. Współczesna architektura to przede wszystkim nowoczesne, postmodernistyczne biurowce, jak Atrium, budynki Kredyt Banku czy najwyższy na Woli drapacz – Warsaw Trade Tower. Atrakcyjne położenie dzielnicy sprzyja również dynamicznemu rozwojowi wysokiego budownictwa mieszkaniowego. Współczesna Wola to także ważny ośrodek życia kulturalnego, gdyż znajdują się tu znane w kraju i na świecie placówki muzealne: Muzeum Powstania Warszawskiego, Muzeum Historii Żydów Polskich oraz Muzeum Więzienia Pawiak, a ponadto: teatry, galerie sztuki i klubokawiarnie. Na tereny zielone dzielnicy składają się 4 parki i Lasek na Kole, a najważniejsze arterie to Al. Jana Pawła II i Trasa W-Z.
Opis oferty
Nowe 3-pokojowe mieszkanie na sprzedaż o powierzchni 75,59 m² znajduje się w nowo budowanej inwestycji deweloperskiej NU2 Warszawa Wola na Czystem, ul. Kolejowa (2.6 km od centrum Warszawy).
Inwestycja jest realizowana przez Skanska Residential Development Poland Sp. z o.o.
Cała inwestycja składa się z 2 budynków, w których łącznie znajduje się 136 nowych mieszkań.
Na sprzedaż pozostaje 29 ofert o powierzchni od 41 do 93 m².
W budynkach jest od 7 do 8 kondygnacji naziemnych oraz 1 kondygnacja podziemna.
Inwestycja NU2 Warszawa Wola jest w trakcie budowy z planowanym na 1 kw. 2026 roku terminem oddania do użytkowania.
Nowe mieszkanie o oznaczeniu AB0305 znajduje się na 3 piętrze i jest 1-poziomowe. Pomieszczenia mają 275 centymetrów wysokości. W mieszkaniu znajdują się 3 pokoje.
Okna w mieszkaniu wychodzą na północ, południe.
Północna ekspozycja to idealny wybór dla osób ceniących przytulne i klimatyczne wnętrza. Delikatne, rozproszone światło sprzyja harmonii i stwarza doskonałe warunki do relaksu lub pracy. Okna na północ zapewnią równomierne oświetlenie przez cały dzień.
Okna wychodzące na południe gwarantują maksymalną ilość naturalnego światła, co czyni wnętrza jasnymi i ciepłymi. Dodatkowo południowa ekspozycja pomaga obniżyć koszty ogrzewania w zimie. Okna na południe są idealne dla osób pragnących cieszyć się jasnym otoczeniem, które sprzyja dobremu samopoczuciu oraz pozytywnej energii.
Dla przyszłych mieszkańców NU2 Warszawa Wola deweloper przewidział miejsca postojowe podziemne, miejsca postojowe naziemne.
Dzięki temu przyszli właściciele nie będą musieli poszukiwać wolnej przestrzeni parkingowej. Dodatkowo, miejsce postojowe w garażu podziemnym zabezpiecza przed niekorzystnymi warunkami atmosferycznymi.
Opis Inwestycji
Tereny zielone
Pow. dodatkowe
Mieszkania NU2 znajdują się na ulicy Kolejowej, w jednej z popularniejszych dzielnic Warszawy – Woli. Wchodzi w skład osiedla NU, liczącego w sumie 136 mieszkań o metrażach od 28,4 m2 do 96,0 m2. Każde z nich ma balkon, taras lub ogródek, w których można bez reszty oddać się letniemu relaksowi. Dostępne są też mieszkania z loggią, idealną do tego, by stworzyć ogród zimowy lub całoroczną mini-szklarnię – z własnymi owocami, warzywami czy kwiatami.
Doskonała jakość, ciekawe rozwiązania architektoniczne i dbałość o każdy szczegół – NU2 to inwestycja, która sprawi, że docenisz życie w mieście. To kolejny etap osiedla NU – pełnego innowacji i nowoczesnych rozwiązań.
Mieszkanie znajduje się w inwestycji NU2 Warszawa Wola, w której znajduje się w sprzedaży jeszcze 7 podobnych nowych mieszkań.
Artykuły powiązane:
:format(jpg)/articles/gallery/image/5081/sonda-zielen_66f239.jpg)
Polacy chcą mieszkać w zieleni
Już nie tylko świetna lokalizacja i dobra komunikacja z centrum stanowi ważne kryterium wyboru inwestycji. Dla osób szukających mieszkań równie ważny stał się dostęp do terenów zielonych. Coraz częściej zwracają uwagę np. na zielone dachy, łąki kwietne czy nasadzenia drzew i roślin na terenie osiedla. O zielone otoczenie dbają również deweloperzy, którzy już w fazie planowania i realizacji projektu m.in. wybierają działki w pobliżu parków i skwerów. W których inwestycjach znajdziemy najwięcej zieleni i jakie dodatkowe działania podejmują deweloperzy, aby rozwijać "zielony trend"? O to RynekPierwotny.pl zapytał przedstawicieli firm deweloperskich.
16 września 2021
Agnieszka Studzińska
:format(jpg)/articles/gallery/image/1084/mieszkanie-dla-studenta-kompleksowy-poradnik_f26e85.jpg)
Mieszkanie dla studenta
W dużych miastach - ośrodkach akademickich znaczną część mieszkańców stanowią studenci. Przyjeżdżają z małych, okolicznych miejscowości, ale i z drugiego końca Polski. Przyciąga ich bogata oferta edukacyjna i możliwości zawodowe, bo zdecydowana większość z nich zostaje w danym mieście po zakończeniu nauki. Gdzie mieszkają? Możliwości jest kilka: akademik, pokoje do wynajęcia czy mieszkanie lub lokal własnościowy. Które rozwiązanie jest najlepsze? Co bardziej się opłaca? I w końcu - jakich nieruchomości szukają studenci i gdzie mogą je znaleźć? Wszystkiego dowiesz się z tego artykułu!
01 września 2021
Redakcja
![[SONDA] Jakich promocji szukają klienci deweloperów?](https://thumbs.rynekpierwotny.pl/2fafa89d:9-_fZi6jnrIBq1G-4WqLMvPnymg/440x440/filters:upscale():format(jpg)/articles/gallery/image/8601/a005ae.jpg)
[SONDA] Jakich promocji szukają klienci deweloperów?
Deweloperzy kuszą promocjami, rabatami i różnymi „okazjami” dla osób szukających mieszkań. Które z nich jednak najbardziej przykuwają uwagę klientów? Największym powodzeniem wśród klientów cieszą się promocje związane przede wszystkim ceną. Są to wszelkiego rodzaju obniżki, ale także promocje w ramach...
26 czerwca 2017
Mikołaj Ostrowski
![[SONDA] Deweloperzy wskazują na co ich klienci zwracają uwagę przy zakupie mieszkania](https://thumbs.rynekpierwotny.pl/2fafa89d:gTQiOHiVOWBcRuZ0nibaXZIadC4/440x440/filters:upscale():format(jpg)/articles/gallery/image/8454/cfc616.jpg)
[SONDA] Deweloperzy wskazują na co ich klienci zwracają uwagę przy zakupie mieszkania
RynekPierwotny.pl postanowił zapytać deweloperów na co ich klienci, w szczególności, zwracają uwagę szukając mieszkania dla siebie i swoich bliskich. Jakie cechy inwestycji, zdaniem deweloperów, mogą podnosić jej atrakcyjność? Co rzutuje na to, że jest ona w oczach klienta atrakcyjna? Zapraszamy...
31 maja 2017
Mikołaj Ostrowski





