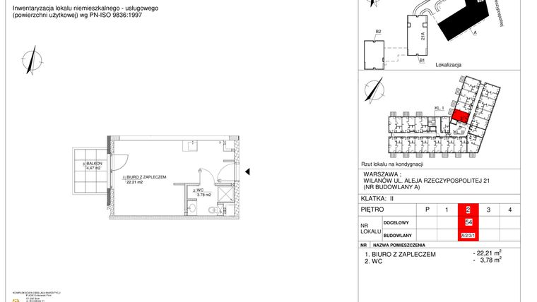
Lokal użytkowy na sprzedaż 1 pokój o powierzchni 25,99 m² numer 54
Inwestycja:
RZ21Deweloper:
SIW 2 Sp. z o.o.
Inwestycja:
RZ21Deweloper:
SIW 2 Sp. z o.o.Warszawa, Wilanów, Błonia Wilanowskie, Al. Rzeczypospolitej 21
Warszawa, Wilanów, Błonia Wilanowskie, Al. Rzeczypospolitej 21
Termin oddania
Gotowe
Ilość pokoi
1 pokój
Metraż
25,99 m²
Piętro
2 piętro
Wysokość pomieszczeń
od 260 do 280 cm wysokości
Ilość poziomów
1 poziom
Oznaczenie oferty
54

Raport o deweloperze
Poznaj dewelopera bliżej! Pobierz raport, w którym znajdziesz kluczowe informacje o firmie, jej doświadczeniu, nagrodach oraz aktualnych i zrealizowanych inwestycjach.
Budynek i otoczenie
Miejsca postojowe | |
|---|---|
Standard wykończenia | standard deweloperski |
Realizacja inwestycji | rozpoczęcie budowy w 3 kw. 2020 roku, inwestycja została oddana do użytkowania w 3 kw. 2022 roku |
Udogodnienia | winda, ochrona całodobowa, plac zabaw, monitoring, teren ogrodzony, usługi w budynku |
Przyroda | informacja u dewelopera |
Charakterystyka energetyczna nieruchomości | informacja u dewelopera |
Rezerwacja i finanse
Rodzaj własności | informacja u dewelopera |
|---|---|
Wysokość czynszu | informacja u dewelopera |
Warunki rezerwacji | Informacja u dewelopera |
Zabezpieczenie środków | Informacja u dewelopera |
Zdjęcia z budowy
Zobacz na jakim etapie budowy jest ta inwestycja
Lokalizacja inwestycji
Metro - Imielin - 2288 m
Przystanek Tramwajowy - 45 m
Przystanek Autobusowy - 22 m
Dojazd do centrum: pokaż
W pobliżu 1 km od tej inwestycji znajdują się:
78 kawiarni i restauracji, 66 sklepów, 33 obiekty sportowe, 27 placówek medycznych, 35 placówek edukacyjnych, 50 placów zabaw
Przeczytaj więcej o lokalizacji
Położona w południowej części Warszawy, w bezpośrednim sąsiedztwie Wisły, ekskluzywna dzielnica Wilanów, to obszar ok. 37 km2, na którym dominuje efektowna zabudowa willowa i apartamentowa wkomponowana w niepowtarzalny pejzaż przyrody. Historyczna proweniencja dzielnicy, powstałej z inicjatywy Jana III Sobieskiego jako podmiejska rezydencja, stanowi o prestiżu miejsca, w którym zabytkową oraz luksusową architekturę otaczają ogrody, parki, rezerwaty przyrody oraz liczne zbiorniki wodne (m.in. jeden z najpiękniejszych ogrodów wodnych w Europie). Zaciszna i najrzadziej zaludniona spośród warszawskich dzielnic, stanowi od lat wymarzone miejsce wypoczynku, rekreacji, komfortowego życia oraz kontemplacji piękna natury i sztuki. Wilanów jest także przestrzenią intensywnego rozwoju: powstają tu nowoczesne osiedla mieszkaniowe, lokale biurowo-usługowe czy centra handlowe. Zaletę stanowią: dogodny dojazd do centrum za pomocą linii autobusowych oraz obecność głównej arterii miasta – Wisłostrady.
Opis oferty
Nowy lokal użytkowy na sprzedaż o powierzchni 25,99 m² znajduje się w nowo budowanej inwestycji deweloperskiej RZ21 na Błoniach Wilanowskich (8.3 km od centrum Warszawy).
Inwestycja jest realizowana przez SIW 2 Sp. z o.o.
Cała inwestycja składa się z 1 budynku, w którym łącznie znajdują się 20 nowych lokali użytkowych.
Budynek posiada 5 kondygnacji naziemnych oraz 1 kondygnację podziemną.
Inwestycja RZ21 została wybudowana i oddana do użytkowania w 3 kw. 2022 roku.
Lokal użytkowy o oznaczeniu 54 znajduje się na 2 piętrze budynku, a wysokość pomieszczeń wynosi od 260 do 280 cm.
Dla przyszłych właścicieli SIW 2 Sp. z o.o. przewidział: miejsca postojowe podziemne.
Opis Inwestycji
Kameralny budynek
Lokale użytkowe o powierzchni od 20,87 m² do 49 m² - lokalizacja - Miasteczko Wilanów.
Nowoczesny budynek usytuowany wzdłuż Al. Rzeczypospolitej. Składa się z pięciu kondygnacji naziemnych oraz jednej podziemnej (garaż wielostanowiskowy).
Co oferujemy:
- DOSKONAŁA KOMUNIKACJA – szybki dojazd, obwodnica S2 oraz nowa linia tramwajowa, przystanki bezpośrednio przy budynku. Linia łączy Wilanów z Centrum – szybkim 25 minutowym połączeniem,
- GOTOWA INWESTYCJA – budynek oddany do użytkowania, części wspólne wykończone w wysokim standardzie,
- FUNKCJONALNIE ZAPROJEKTOWANE LOKALE – małe powierzchnie idealne pod wynajem,
- SZYBKI ZWROT INWESTYCJI – gotowy budynek, szeroka gama potencjalnych najemców szukających małego metrażu w doskonałej lokalizacji,
- BRAK KONKURENCYJNYCH PROJEKTÓW W BEZPOŚREDNIM SĄSIEDZTWIE,
- PRESTIŻ MIEJSCA – Miasteczko Wilanów,
- PIĘKNIE ZAGOSPODAROWANA ZIELEŃ – doskonale zaprojektowane części wspólne.
W związku z tym, że lokale objęte niniejszą prezentacją nie powstały w ramach przedsięwzięcia deweloperskiego realizowanego przez Spółkę, a Spółka nie posiada statusu dewelopera w rozumieniu ustawy z dnia 20 maja 2021 r. o ochronie praw nabywcy lokalu mieszkalnego lub domu jednorodzinnego oraz deweloperskim funduszu gwarancyjnym („Ustawa Deweloperska”), do umów zawieranych przez Spółkę w ramach procesu sprzedaży lokali nie stosuje się Ustawy Deweloperskiej, w tym środków ochrony w tej Ustawie przewidzianych.
SIW 2 Sp. z o.o.
Strona internetowa inwestycjiAdres biura sprzedaży:
Al. Rzeczypospolitej 21, 02-972 WarszawaW celu umówienia spotkania prosimy o kontakt





