RZ21
Mieszkania na sprzedaż oferowane bezpośrednio przez SIW 2 Sp. z o.o.
Warszawa, Wilanów, Błonia Wilanowskie, Al. Rzeczypospolitej 21
Warszawa, Wilanów, Błonia Wilanowskie, Al. Rzeczypospolitej 21
RZ21
Warszawa, Wilanów, Błonia Wilanowskie, Al. Rzeczypospolitej 21
Termin oddania
Gotowe
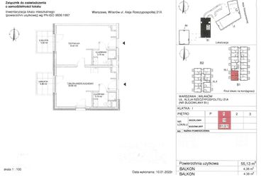
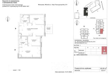
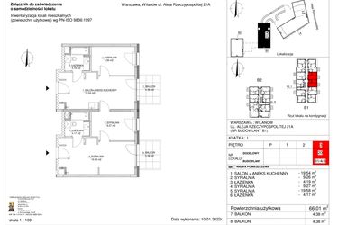
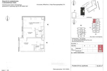
Powierzchnie
28 - 88/m2
Przedział pokoi
1 - 5
Kondygnacje
4
Budynki
1
Stand. wykończenia
Standard deweloperski
Mieszkania w inwestycji (22)
Sortuj
Metro - Imielin - 2264 m
Przystanek Tramwajowy - 72 m
Przystanek Autobusowy - 49 m
Dojazd do centrum: pokaż
W pobliżu 1 km od tej inwestycji znajdują się:
79 kawiarni i restauracji, 66 sklepów, 33 obiekty sportowe, 27 placówek medycznych, 35 placówek edukacyjnych, 50 placów zabaw
Zdjęcia z budowy
Zobacz na jakim etapie budowy jest ta inwestycja
Udogodnienia Inwestycji
Standard i bezpieczeństwo
- ochrona całodobowa
- monitoring
- teren ogrodzony
- usługi w budynku
- winda
- Standard deweloperski
Rekreacja
- plac zabaw
Szczegóły inwestycji
Realizacja inwestycji: | rozpoczęcie budowy w 3 kw. 2020 roku, inwestycja została oddana do użytkowania w 3 kw. 2022 roku |
|---|---|
Liczba budynków: | cała inwestycja składa się z 1 budynku |
Liczba kondygnacji: | budynek posiada 4 kondygnacje naziemne wraz z parterem oraz 1 kondygnację podziemną |
Liczba mieszkań: | cała inwestycja składa się z 22 lokali mieszkalnych |
Wysokość pomieszczeń: | w zależności od kondygnacji od 260 do 280 cm wysokości |
Standard wykończenia | standard deweloperski |
Rodzaj własności: | informacja u dewelopera |
Powierzchnie dodatkowe: | nie przewidziano powierzchni dodatkowych |
Komórki lokatorskie: | nie przewidziano |
Miejsca postojowe: | w inwestycji przewidziano:
|
Przyroda: | informacja u dewelopera |
Aktualna oferta
Dostępne mieszkania: | aktualnie dostępne są 22 mieszkania |
|---|---|
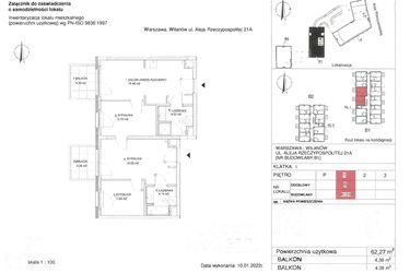
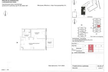
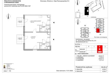
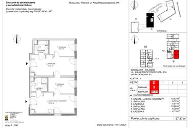
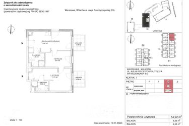
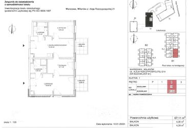
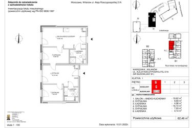
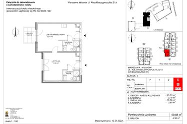
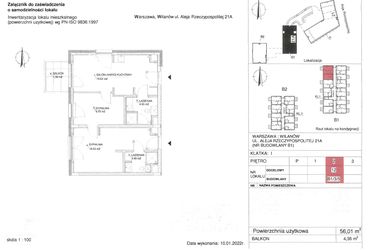
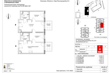
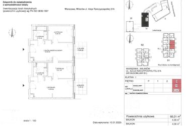
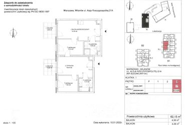
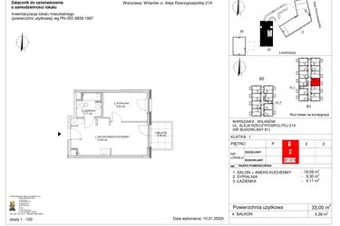
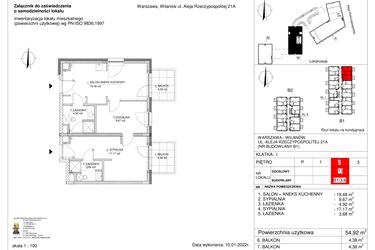
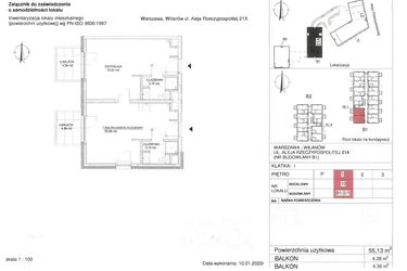
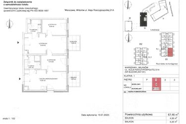
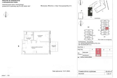
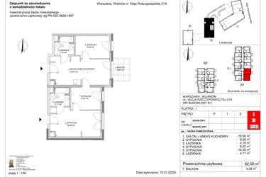
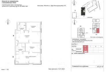
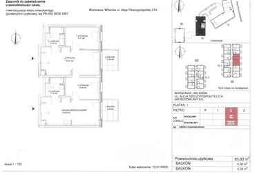
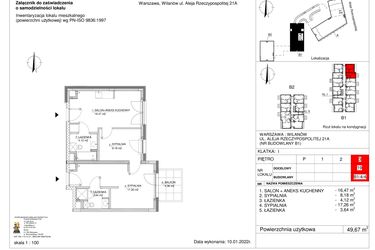
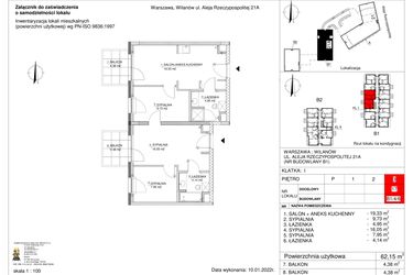
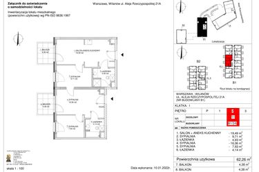
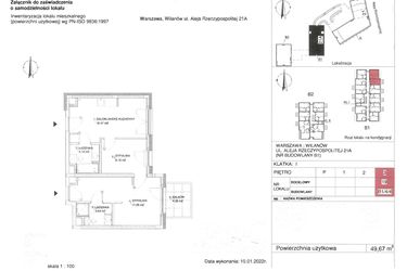
Powierzchnie mieszkań: | od 28 do 88 m² |
Liczba pokoi: | dostępne są mieszkania 1, 2, 3, 4, 5-pokojowe |
Opis płatności: | Informacja u dewelopera |
Warunki rezerwacji: | Informacja u dewelopera |
Zabezpieczenie środków klienta: | informacja u dewelopera |
Wysokość czynszu: | informacja u dewelopera |
Opis inwestycji
RZ 21 to adres w sercu Miasteczka Wilanów, który łączy funkcję mieszkalną i usługową, oferując wygodę życia na wyciągnięcie ręki oraz stabilny zwrot z inwestycji. Pewna lokalizacja, przemyślany projekt i nowoczesne rozwiązania. To jakość, której szukasz.
RZ 21 to adres gdzie pełny dostęp do miejskiej infrastruktury spotyka się z cichym, zielonym otoczeniem. Nie czekaj – skontaktuj się z nami i poznaj możliwości nabycia mieszkań w metrażach od 33 m2. Mieszkania dostępne od ręki. Już dziś.
W związku z tym, że lokale objęte niniejszą prezentacją nie powstały w ramach przedsięwzięcia deweloperskiego realizowanego przez Spółkę, a Spółka nie posiada statusu dewelopera w rozumieniu ustawy z dnia 20 maja 2021 r. o ochronie praw nabywcy lokalu mieszkalnego lub domu jednorodzinnego oraz deweloperskim funduszu gwarancyjnym („Ustawa Deweloperska”), do umów zawieranych przez Spółkę w ramach procesu sprzedaży lokali nie stosuje się Ustawy Deweloperskiej, w tym środków ochrony w tej Ustawie przewidzianych.
Inwestycja RZ21 znajduje się na Błoniach Wilanowskich (8.3 km od centrum Warszawy), została zrealizowana przez SIW 2 Sp. z o.o.
Inwestycja RZ21 została wybudowana i oddana do użytkowania w 3 kw. 2022 roku.
Cały projekt składa się z 22 nowych mieszkania znajdujących się w 1 budynku. Budynek posiada 4 kondygnacje naziemne wraz z parterem oraz 1 kondygnację podziemną.
Aktualnie w inwestycji RZ21 w sprzedaży są 22 nowe mieszkania o powierzchni od 28 do 88 metrów kwadratowych , w cenie od 16 800 zł za metr kwadratowy.
Dla przyszłych mieszkańców RZ21 deweloper przewidział:
- miejsca postojowe podziemne
Lokalizacja inwestycji
Położona w południowej części Warszawy, w bezpośrednim sąsiedztwie Wisły, ekskluzywna dzielnica Wilanów, to obszar ok. 37 km2, na którym dominuje efektowna zabudowa willowa i apartamentowa wkomponowana w niepowtarzalny pejzaż przyrody. Historyczna proweniencja dzielnicy, powstałej z inicjatywy Jana III Sobieskiego jako podmiejska rezydencja, stanowi o prestiżu miejsca, w którym zabytkową oraz luksusową architekturę otaczają ogrody, parki, rezerwaty przyrody oraz liczne zbiorniki wodne (m.in. jeden z najpiękniejszych ogrodów wodnych w Europie). Zaciszna i najrzadziej zaludniona spośród warszawskich dzielnic, stanowi od lat wymarzone miejsce wypoczynku, rekreacji, komfortowego życia oraz kontemplacji piękna natury i sztuki. Wilanów jest także przestrzenią intensywnego rozwoju: powstają tu nowoczesne osiedla mieszkaniowe, lokale biurowo-usługowe czy centra handlowe. Zaletę stanowią: dogodny dojazd do centrum za pomocą linii autobusowych oraz obecność głównej arterii miasta – Wisłostrady.
Komunikacja
Jak wygląda komunikacja w okolicy inwestycji RZ21?
Główna arteria – Wisłostrada, ulice o dużym znaczeniu lokalnym: ul. Jana III Sobieskiego i Al. Wilanowska oraz liczne połączenia autobusowe, umożliwiają dogodny dojazd z Wilanowa do centrum, a także do Konstancina i Piaseczna.
Przyszli mieszkańcy inwestycji RZ21 mogą korzystać z rozbudowanej sieci połączeń komunikacyjnych. W odległości 50 metrów od inwestycji RZ21 znajduje się najbliższy punkt komunikacyjny - Oś Królewska 01.
Edukacja
Czy w pobliżu inwestycji RZ21 znajdują się szkoły/przedszkola?
Mieszkańcy mogą korzystać z bogatej oferty edukacyjnej. W najbliższej okolicy inwestycji RZ21 znajduje się 35 placówek edukacyjnych. Najbliżej położone to: szkoła w odległości 200 m, Przedszkole Numer Jeden w odległości 400 m.
Opieka medyczna
Dużym atutem inwestycji RZ21 jest bliskość ośrodków zdrowotnych. Dostęp do opieki medycznej zapewnią położone w pobliżu: Enel-Med Oddział Wilanów w odległości 100 m.
Sklepy i usługi
Jak daleko jest do najbliższego sklepu?
Na infrastrukturę handlowo-usługową inwestycji RZ21 składa się wiele punktów. Nieopodal, w odległości 100 m znajduje się CrossFit 12U1, w odległości 100 m znajduje się Sezam.
Sport
Bliskość terenów rekreacyjnych oraz obiektów sportowych to mocna strona tej lokalizacji. W najbliższej okolicy inwestycji RZ21 w odległości 100 m znajduje się boisko / kort, w odległości 400 m znajduje się bieżnia / tor.
SIW 2 Sp. z o.o.
Strona internetowa inwestycjiAdres biura sprzedaży:
Al. Rzeczypospolitej 21, 02-972 WarszawaW celu umówienia spotkania prosimy o kontakt
Oferty, które mogą Cię zainteresować
Polecane Lokalizacje
Inwestycje w pobliżu na Błoniach Wilanowskich
- Flatta Wilanów (10 ofert)
- Enso Wilanów – bud. B (39 ofert)
- Royal Residence 6A (4 oferty)
- Chorągwi Pancernej 16 (1 oferta)
- Royal Residence 6B (29 ofert)
- Ale!Ken (73 oferty)
- SENGERA 1 (34 oferty)
- Sikorskiego Vita (7 ofert)
- Sadyba Spot (32 oferty)
- Augustówka Residence (95 ofert)
- Jaśminowy Mokotów etap VI (18 ofert)
- Vilanovia Park (9 ofert)





