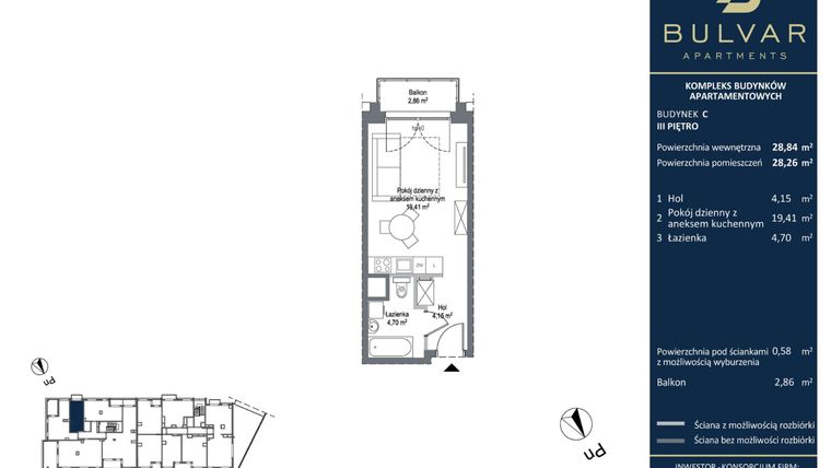
Mieszkanie na sprzedaż 1 pokój o powierzchni 28,26 m² numer C.4.04
Inwestycja:
Bulvar Apartments - etap IIDeweloper:
Sea Park Sp. z o. o.
Inwestycja:
Bulvar Apartments - etap IIDeweloper:
Sea Park Sp. z o. o.Gdańsk, Przymorze Wielkie, ul. Czarny Dwór
Gdańsk, Przymorze Wielkie, ul. Czarny Dwór
Termin oddania
2 kw. 2028
Ilość pokoi
1 pokój
Metraż
28,26 m²
Piętro
3 piętro
Strona świata
południe
Powierzchnie dodatkowe
Balkon
Wysokość pomieszczeń
od 260 do 280 cm wysokości
Ilość poziomów
1 poziom
Oznaczenie oferty
C.4.04

Raport o deweloperze
Poznaj dewelopera bliżej! Pobierz raport, w którym znajdziesz kluczowe informacje o firmie, jej doświadczeniu, nagrodach oraz aktualnych i zrealizowanych inwestycjach.
Budynek i otoczenie
Miejsca postojowe | |
|---|---|
Komórki lokatorskie | dostępne |
Standard wykończenia | standard deweloperski |
Realizacja inwestycji | rozpoczęcie budowy w 2 kw. 2024 roku, planowane oddanie do użytkowania w 2 kw. 2028 roku |
Udogodnienia | winda, plac zabaw, sauna, usługi w budynku, sala fitness, patio / dziedziniec |
Przyroda | w okolicy inwestycji znajduje się park, morze |
Charakterystyka energetyczna nieruchomości | informacja u dewelopera |
Rezerwacja i finanse
Rodzaj własności | Odrębna własność z własnością gruntu |
|---|---|
Wysokość czynszu | informacja u dewelopera |
Warunki rezerwacji | Informacja u dewelopera |
Zabezpieczenie środków | Informacja u dewelopera |
Zdjęcia z budowy
Zobacz na jakim etapie budowy jest ta inwestycja
Lokalizacja inwestycji
Stacja kolejowa - Gdańsk Przymorze-Uniwersytet - 2225 m
Przystanek Tramwajowy - 1122 m
Przystanek Autobusowy - 194 m
Dojazd do centrum: pokaż
W pobliżu 1 km od tej inwestycji znajdują się:
22 kawiarnie i restauracje, 50 sklepów, 76 obiektów sportowych, 26 placówek medycznych, 30 placówek edukacyjnych, 46 placów zabaw
Przeczytaj więcej o lokalizacji
Przymorze Wielkie to niewielka (3 km kw) dzielnica zamieszkana przez 30 tys. mieszkańców. Tak dużą liczbę mieszkańców na małej powierzchni tłumaczy fakt, że na jej krajobraz składają się głównie duże blokowiska, np. „Falowiec”, czyli najdłuższy blok mieszkalny w Polsce. Jednak Przymorze Wielkie to nie tylko blokowiska, bo na północy rozciąga się Park im. R. Reagana a za nim plaża i Morze Bałtyckie. Naokoło mieszczą się dzielnice Brzeźno, Zaspa-Rozstaje a także Żabianka-Wejhera-Jelitkowo-Tysiąclecia. Za opiekę medyczną odpowiada centrum medyczne Endomed, położony 50 m dalej szpital Copernicus i Przychodnia Specjalistyczna Falck. W promieniu 3 km mieści się 5 uniwersytetów, w tym wydział Uniwersytetu Gdańskiego. Za rozrywkę i zakupy odpowiada galeria Alfa z kinem Helios a także Galeria Przymorze. Maksymalnie 1 km dzieli Przymorze od ważniejszych zabytków Gdańska, takich jak Westerplatte czy Starówka.
Opis oferty
Nowe 1-pokojowe mieszkanie na sprzedaż o powierzchni 28,26 m² znajduje się w nowo budowanej inwestycji deweloperskiej Bulvar Apartments - etap II na Przymorzu Wielkim, ul. Czarny Dwór (6.8 km od centrum Gdańska).
Inwestycja jest realizowana przez Sea Park Sp. z o. o.
Cała inwestycja składa się z 4 budynków, w których łącznie znajduje się 170 nowych mieszkań.
Na sprzedaż pozostaje 148 ofert o powierzchni od 28 do 159 m².
W budynkach jest 12 kondygnacji naziemnych oraz 2 kondygnacje podziemne.
Inwestycja Bulvar Apartments - etap II jest w trakcie budowy z planowanym na 2 kw. 2028 roku terminem oddania do użytkowania.
Nowe mieszkanie o oznaczeniu C.4.04 znajduje się na 3 piętrze i jest 1-poziomowe. Pomieszczenia mają od 260 do 280 centymetrów wysokości. W mieszkaniu znajduje się 1 pokój.
Okna w mieszkaniu wychodzą na południe.
Okna wychodzące na południe gwarantują maksymalną ilość naturalnego światła, co czyni wnętrza jasnymi i ciepłymi. Dodatkowo południowa ekspozycja pomaga obniżyć koszty ogrzewania w zimie. Okna na południe są idealne dla osób pragnących cieszyć się jasnym otoczeniem, które sprzyja dobremu samopoczuciu oraz pozytywnej energii.
Dla przyszłych mieszkańców Bulvar Apartments - etap II deweloper przewidział miejsca postojowe podziemne, miejsca postojowe naziemne.
Dzięki temu przyszli właściciele nie będą musieli poszukiwać wolnej przestrzeni parkingowej. Dodatkowo, miejsce postojowe w garażu podziemnym zabezpiecza przed niekorzystnymi warunkami atmosferycznymi.
Opis Inwestycji
Tereny zielone
Pow. dodatkowe
W BIEGU ŻYCIA, ZNAJDŹ CHWILĘ DLA SIEBIE
W naszej ofercie znajdują się lokale o zróżnicowanej powierzchni. Zaprojektowaliśmy 2- i 3-pokojowe mieszkania oraz przestronne apartamenty dla najbardziej wymagających.
Jednak na szczególną uwagę zasługuje penthouse z bezpośrednim dostępem do windy oraz prywatnym tarasem na dachu, z którego 365 dni w roku będzie rozpościerać się zapierający dech w piersiach nadmorski widok.
Bulvar to nie tylko komfortowe apartamenty, ale także szereg usług, możliwości i udogodnień, które zapewnią wygodne życie.
Mieszkańcy apartamentów będą mogli korzystać z w pełni wyposażonej siłowni, sauny suchej i mokrej oraz strefy rekreacyjnej ze stołem bilardowym, która też świetnie się sprawdzi jako przestrzeń do spotkań towarzyskich.
Mieszkanie znajduje się w inwestycji Bulvar Apartments - etap II, w której znajduje się w sprzedaży jeszcze 7 podobnych nowych mieszkań.
Sea Park Sp. z o. o.
Strona internetowa inwestycjiAdres biura sprzedaży:
ul. Joachima Lelewela 37 lok. E, 80-442 GdańskGodziny otwarcia biura sprzedaży:
- Poniedziałek: 08:00 - 17:00
- Wtorek: 08:00 - 17:00
- Środa: 08:00 - 17:00
- Czwartek: 08:00 - 17:00
- Piątek: 08:00 - 16:00
- Sobota: 09:00 - 14:00





