Mieszkanie na sprzedaż 1 pokój o powierzchni 92,9 m² numer 142.
Inwestycja:
Osiedle Parkowa etap BDeweloper:
Rutkowski Development Sp. J.
Inwestycja:
Osiedle Parkowa etap BDeweloper:
Rutkowski Development Sp. J.Grajewo, ul. mjr. Jana Tabortowskiego 6
Grajewo, ul. mjr. Jana Tabortowskiego 6
Termin oddania
3 kw. 2027
Ilość pokoi
1 pokój
Metraż
92,9 m²
Piętro
5 piętro
Kuchnia
otwarta kuchnia
Wysokość pomieszczeń
270 cm wysokości
Ilość poziomów
2 poziomy + antresola
Oznaczenie oferty
142.

Raport o deweloperze
Poznaj dewelopera bliżej! Pobierz raport, w którym znajdziesz kluczowe informacje o firmie, jej doświadczeniu, nagrodach oraz aktualnych i zrealizowanych inwestycjach.
Budynek i otoczenie
Miejsca postojowe | |
|---|---|
Komórki lokatorskie | dostępne (60) |
Standard wykończenia | standard deweloperski Ogrzewanie Centralne ogrzewanie z sieci miejskiej. W mieszkaniach przewidziane są grzejniki. |
Realizacja inwestycji | rozpoczęcie budowy w 2 kw. 2025 roku, planowane oddanie do użytkowania w 3 kw. 2027 roku |
Udogodnienia | winda, monitoring |
Przyroda | informacja u dewelopera |
Charakterystyka energetyczna nieruchomości | informacja u dewelopera |
Rezerwacja i finanse
Rodzaj własności | Odrębna własność z własnością gruntu |
|---|---|
Wysokość czynszu | informacja u dewelopera |
Warunki rezerwacji | Informacja u dewelopera |
Zabezpieczenie środków | Informacja u dewelopera |
Zdjęcia z budowy
Zobacz na jakim etapie budowy jest ta inwestycja
Lokalizacja inwestycji
Stacja kolejowa - Grajewo - 2266 m
Przystanek Autobusowy - 1160 m
Dojazd do centrum Ełku: pokaż
W pobliżu 1 km od tej inwestycji znajdują się:
2 kawiarnie i restauracje, 7 sklepów, 7 obiektów sportowych, 4 placówki medyczne, 9 placówek edukacyjnych, 10 placów zabaw
Przeczytaj więcej o lokalizacji
Województwo podlaskie to jedna z jednostek podziału administracyjnego Polski o powierzchni 20 187,02 kilometrów kwadratowych. Przez jego środek przepływa rzeka Narew. Stolicą Podlasia jest miasto Białystok. W obrębie regionu znajdują się fragmenty pierwotnej Puszczy Białowieskiej orz unikatowe bagna, mieszczące się w dolinie Biebrzy oraz nad rozlewiskami Narwi. Na tle innych województw to wyróżnia się wielokulturowością oraz wielowyznaniowością mieszkańców. Na terenie województwa podlaskiego przeważają tereny nizinne, a najwyższy wierzchołek wynosi 298 m.n.p.m.
Opis oferty
Nowe 1-pokojowe mieszkanie na sprzedaż o powierzchni 92,9 m² znajduje się w nowo budowanej inwestycji deweloperskiej Osiedle Parkowa etap B w Grajewie, ul. mjr. Jana Tabortowskiego 6 (18.9 km od Ełku).
Inwestycja jest realizowana przez Rutkowski Development Sp. J.
Cała inwestycja składa się z 1 budynku, w którym łącznie znajduje się 71 nowych mieszkań.
Na sprzedaż pozostaje 60 ofert o powierzchni od 36 do 113 m².
W budynku jest 5 kondygnacji naziemnych oraz 1 kondygnacja podziemna.
Inwestycja Osiedle Parkowa etap B jest w trakcie budowy z planowanym na 3 kw. 2027 roku terminem oddania do użytkowania.
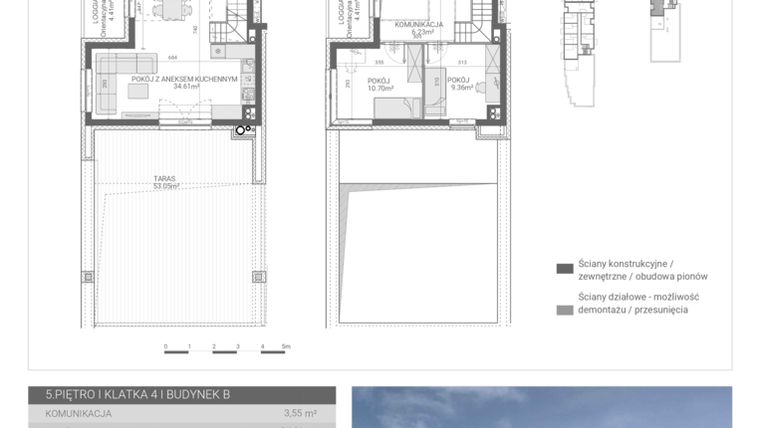
Nowe mieszkanie o oznaczeniu 142. znajduje się na 5 piętrze i jest 2-poziomowe. Pomieszczenia mają 270 centymetrów wysokości. W mieszkaniu znajduje się 1 pokój.
Do mieszkania przewidziano możliwość zakupu komórki lokatorskiej, którą można zagospodarować na spiżarnię, warsztat czy składzik.
Dla przyszłych mieszkańców Osiedle Parkowa etap B deweloper przewidział miejsca postojowe podziemne, miejsca postojowe naziemne.
Dzięki temu przyszli właściciele nie będą musieli poszukiwać wolnej przestrzeni parkingowej. Dodatkowo, miejsce postojowe w garażu podziemnym zabezpiecza przed niekorzystnymi warunkami atmosferycznymi.
Opis Inwestycji
W ofercie znajduje się szeroki wybór metraży od około 35 m² do 112 m², co stanowi doskonałą propozycję zarówno dla singli, jak i rodzin z dziećmi.
Przestronne balkony, tarasy dachowe i ogródki parterowe, zagwarantują upragnioną przestrzeń do wypoczynku na świeżym powietrzu. Ponadto, w mieszkaniach parterowych zaprojektowane zostały antresole, dzięki którym pomieszczenie staje się jeszcze przestronniejsze i jaśniejsze. Jest to dodatkowa przestrzeń do życia, którą można zaaranżować według własnych potrzeb na np. sypialnię, bawialnię, garderobę, bibliotekę czy biuro – ograniczeniem jest tylko wyobraźnia.
Mieszkanie znajduje się w inwestycji Osiedle Parkowa etap B, w której znajdują się w sprzedaży jeszcze 4 podobne nowe mieszkania.
Rutkowski Development Sp. J.
Strona internetowa inwestycjiAdres biura sprzedaży:
Armii Krajowej 7B/ lok. U6 19-300 EłkGodziny otwarcia biura sprzedaży:
- Poniedziałek: 08:00 - 17:00
- Wtorek: 08:00 - 17:00
- Środa: 08:00 - 17:00
- Czwartek: 08:00 - 17:00
- Piątek: 08:00 - 17:00





