Mieszkanie na sprzedaż 3 pokoje o powierzchni 57,61 m² numer 102
Inwestycja:
Ignatki Forest etap IIDeweloper:
Rutkowski Development Sp. J.
Inwestycja:
Ignatki Forest etap IIDeweloper:
Rutkowski Development Sp. J.białostocki, Ignatki-Osiedle, ul. Działkowa 1
białostocki, Ignatki-Osiedle, ul. Działkowa 1
Termin oddania
4 kw. 2026
Ilość pokoi
3 pokoje
Metraż
57,61 m²
Piętro
1 piętro
Powierzchnie dodatkowe
Balkon
Kuchnia
otwarta kuchnia
Wysokość pomieszczeń
261 cm wysokości
Ilość poziomów
1 poziom
Oznaczenie oferty
102

Raport o deweloperze
Poznaj dewelopera bliżej! Pobierz raport, w którym znajdziesz kluczowe informacje o firmie, jej doświadczeniu, nagrodach oraz aktualnych i zrealizowanych inwestycjach.
Budynek i otoczenie
Miejsca postojowe | |
|---|---|
Komórki lokatorskie | dostępne (28) |
Standard wykończenia | standard deweloperski Ogrzewanie kotłownia gazowa |
Realizacja inwestycji | rozpoczęcie budowy w 4 kw. 2024 roku, planowane oddanie do użytkowania w 4 kw. 2026 roku |
Udogodnienia | winda, monitoring, miejsce do ładowania samochodów elektrycznych |
Przyroda | informacja u dewelopera |
Charakterystyka energetyczna nieruchomości | informacja u dewelopera |
Rezerwacja i finanse
Rodzaj własności | Odrębna własność z własnością gruntu |
|---|---|
Wysokość czynszu | informacja u dewelopera |
Warunki rezerwacji | Informacja u dewelopera |
Zabezpieczenie środków | Informacja u dewelopera |
Zdjęcia z budowy
Zobacz na jakim etapie budowy jest ta inwestycja
Lokalizacja inwestycji
Stacja kolejowa - Białystok Stadion - 1496 m
Przystanek Autobusowy - 381 m
Dojazd do centrum Białegostoku: pokaż
W pobliżu 1 km od tej inwestycji znajdują się:
1 kawiarnia lub restauracja, 3 sklepy, 1 obiekt sportowy, 1 placówka edukacyjna, 1 plac zabaw
Przeczytaj więcej o lokalizacji
Powiat białostocki położony jest w środkowo- wschodniej części województwa Podlaskiego. Zajmuje obszar 2 984,64 km2 co czyni go największym powiatem w Polsce. Siedzibą powiatu jest Białystok, składają się na niego następujące gminy miejsko-wiejskie: Choroszcz, Czarna Białostocka, Łapy, Supraśl, Suraż, Tykocin, Wasilków, Zabłudów, Michałowo. Gminami wiejskimi są: Dobrzyniewo Duże, Gródek, Juchnowiec Kościelny, Poświętne, Turośń Kościelna, Zawady. Powiat białostocki zamieszkuję 143 864 ludzi. Połowę powierzchni powiatu stanowią użytki rolne, lasy zajmują tu 39% powierzchni. To właśnie zalesienie jak i malownicze rzeki sprawiają, że teren ten jest atrakcyjny turystycznie dzięki czemu rozwija się tu agroturystyka. W powiecie zachowało się wiele zabytków, szczególnie stare obiekty sakralne różnych religii – od drewnianych kościołów, po kapliczki przydrożne. Na uwagę zasługuje także Muzeum Wnętrz Pałacowych w Choroszczy, Wielka Synagoga w Tykocinie czy muzeum wsi w Jurowcach. Powiat białostocki przecina droga krajowa nr 19, znajduje się tu także fragment drogi E 67. Kursują tędy również pociągi, głównie spółki Przewozy Regionalne.
Opis oferty
Nowe 3-pokojowe mieszkanie na sprzedaż o powierzchni 57,61 m² znajduje się w nowo budowanej inwestycji deweloperskiej Ignatki Forest etap II w Ignatkach-Osiedlu, ul. Działkowa 1 (0.4 km od Białegostoku).
Inwestycja jest realizowana przez Rutkowski Development Sp. J.
Cała inwestycja składa się z 1 budynku, w którym łącznie znajduje się 36 nowych mieszkań.
Na sprzedaż pozostaje 35 ofert o powierzchni od 41 do 80 m².
W budynku są 4 kondygnacje naziemne oraz 1 kondygnacja podziemna.
Inwestycja Ignatki Forest etap II jest w trakcie budowy z planowanym na 4 kw. 2026 roku terminem oddania do użytkowania.
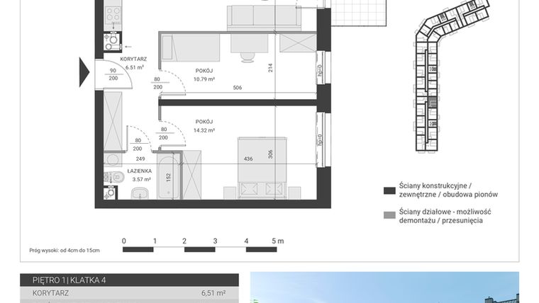
Nowe mieszkanie o oznaczeniu 102 znajduje się na 1 piętrze i jest 1-poziomowe. Pomieszczenia mają 261 centymetrów wysokości. W mieszkaniu znajdują się 3 pokoje.
Do mieszkania przewidziano możliwość zakupu komórki lokatorskiej, którą można zagospodarować na spiżarnię, warsztat czy składzik.
Dla przyszłych mieszkańców Ignatki Forest etap II deweloper przewidział miejsca postojowe podziemne, miejsca postojowe naziemne.
Dzięki temu przyszli właściciele nie będą musieli poszukiwać wolnej przestrzeni parkingowej. Dodatkowo, miejsce postojowe w garażu podziemnym zabezpiecza przed niekorzystnymi warunkami atmosferycznymi.
Opis Inwestycji
Pow. dodatkowe
W sąsiedztwie całorocznie zielonego Lasu Solnickiego, przy ul. Działkowej 1 w Ignatki-Osiedle, powstaje nowoczesna zabudowa mieszkalna z wyróżniającą się architekturą. Minimalistyczny design, wykorzystanie odcieni inspirowanych naturą, przestronne tarasy dachowe oraz balkony (z dużą liczbą przeszkleń), wpłyną na dobre samopoczucie mieszkańców i stworzą harmonijny obraz osiedla.
Apartamenty Ignatki Forest oferują mieszkańcom to, co najcenniejsze – spokój i ciszę po intensywnym dniu. Otaczająca zieleń koi zmysły, a ciekawy design cieszy oko.
Ignatki Forest – miejsce, w którym zwalnia czas.
Projekt architektoniczny Ignatki Forest to doskonałe połączenie skandynawskiego, minimalistycznego designu i mnogości faktur. Wykorzystanie odcieni inspirowanych naturą wpłyną na dobre samopoczucie mieszkańców i stworzą harmonijny obraz osiedla. Ciekawym rozwiązaniem jest połączenie dwóch typów dachu – płaskiego i spadzistego, nadając budynkowi unikatową, lekką formę.
Przyszli mieszkańcy będą mieli w czym wybierać – dostępne metraże od 37 m² do 96,9 m². Apartamenty wyposażone zostaną w przestronne balkony (wykończone szklanymi balustradami) lub tarasy parterowe. Mieszkania z antresolami, na najwyższej kondygnacji, będą posiadać prywatne tarasy dachowe o ponadstandardowej wielkości. To doskonały wybór dla tych, którzy cenią sobie wypoczynek na świeżym powietrzu oraz spotkania z przyjaciółmi bądź rodziną.
*W OSTATNIĄ SOBOTĘ MIESIĄCA WSZYSTKIE BIURA SPRZEDAŻY SĄ OTWARTE W GODZINACH 9-14. ZAPRASZAMY!*
Mieszkanie znajduje się w inwestycji Ignatki Forest etap II, w której znajduje się w sprzedaży jeszcze 31 podobnych nowych mieszkań.
Rutkowski Development Sp. J.
Strona internetowa inwestycjiAdres biura sprzedaży:
ul. Transportowa 2D/U4, BiałystokGodziny otwarcia biura sprzedaży:
- Poniedziałek: 08:00 - 17:00
- Wtorek: 08:00 - 17:00
- Środa: 08:00 - 17:00
- Czwartek: 08:00 - 17:00
- Piątek: 08:00 - 17:00
- Sobota: 09:00 - 14:00
Salony otwarte w każdą ostatnią sobotę miesiąca!





