Mieszkanie na sprzedaż 3 pokoje o powierzchni 58,81 m² numer M-8
Inwestycja:
Forma AugustówDeweloper:
Rutkowski Development Sp. J.
Inwestycja:
Forma AugustówDeweloper:
Rutkowski Development Sp. J.Augustów, ul. Arnikowa 10G
Augustów, ul. Arnikowa 10G
Termin oddania
4 kw. 2027
Ilość pokoi
3 pokoje
Metraż
58,81 m²
Piętro
1 piętro
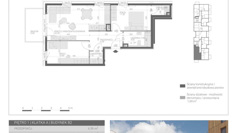
Powierzchnie dodatkowe
Balkon
Kuchnia
otwarta kuchnia
Wysokość pomieszczeń
263 cm wysokości
Ilość poziomów
1 poziom
Oznaczenie oferty
M-8

Raport o deweloperze
Poznaj dewelopera bliżej! Pobierz raport, w którym znajdziesz kluczowe informacje o firmie, jej doświadczeniu, nagrodach oraz aktualnych i zrealizowanych inwestycjach.
Budynek i otoczenie
Miejsca postojowe | |
|---|---|
Komórki lokatorskie | dostępne (39) |
Standard wykończenia | standard deweloperski |
Realizacja inwestycji | rozpoczęcie budowy w 2 kw. 2025 roku, planowane oddanie do użytkowania w 4 kw. 2027 roku |
Udogodnienia | rowerownia, plac zabaw, winda |
Przyroda | informacja u dewelopera |
Charakterystyka energetyczna nieruchomości | informacja u dewelopera |
Rezerwacja i finanse
Rodzaj własności | Odrębna własność z własnością gruntu |
|---|---|
Wysokość czynszu | informacja u dewelopera |
Warunki rezerwacji | Informacja u dewelopera |
Zabezpieczenie środków | Informacja u dewelopera |
Zdjęcia z budowy
Zobacz na jakim etapie budowy jest ta inwestycja
Lokalizacja inwestycji
Przystanek Autobusowy - 200 m
Dojazd do centrum: pokaż
W pobliżu 1 km od tej inwestycji znajdują się:
4 kawiarnie i restauracje, 10 sklepów, 1 placówka medyczna, 2 placówki edukacyjne
Przeczytaj więcej o lokalizacji
Augustów to miasto położone w północno-wschodniej Polsce, w województwie podlaskim. Leży w zachodniej części Równiny Augustowskiej, wchodzącej w skład Pojezierza Litewskiego, nad rzeką Nettą. Zlokalizowane jest pomiędzy 7 jeziorami: Necko, Białe, Rospuda Augustowska, Sajenek, Sajenko, Studzieniczne i Sajno. Obok miasta przepływa najkrótsza rzeka Polski – Klonownica, która została wpisana do księgi Guinnessa. Augustów od wschodu, południa i północy otoczony jest Puszczą Augustowską. Jest idealnym miejscem na letni wypoczynek na Podlasiu. Miasto zapewnia odwiedzającym mnóstwo możliwości spędzania czasu wolnego, od aktywnych form sportowych po spokojne, wyciszające spacery w otoczeniu pięknych krajobrazów.
Opis oferty
Nowe 3-pokojowe mieszkanie na sprzedaż o powierzchni 58,81 m² znajduje się w nowo budowanej inwestycji deweloperskiej Forma Augustów w Augustowie, ul. Arnikowa 10G (3.1 km od centrum Augustowa).
Inwestycja jest realizowana przez Rutkowski Development Sp. J.
Cała inwestycja składa się z 1 budynku, w którym łącznie znajdują się 42 nowe mieszkania.
Na sprzedaż pozostaje 25 ofert o powierzchni od 43 do 81 m².
W budynku jest od 4 do 5 kondygnacji naziemnych oraz 1 kondygnacja podziemna.
Inwestycja Forma Augustów jest w trakcie budowy z planowanym na 4 kw. 2027 roku terminem oddania do użytkowania.
Nowe mieszkanie o oznaczeniu M-8 znajduje się na 1 piętrze i jest 1-poziomowe. Pomieszczenia mają 263 centymetrów wysokości. W mieszkaniu znajdują się 3 pokoje.
Do mieszkania przewidziano możliwość zakupu komórki lokatorskiej, którą można zagospodarować na spiżarnię, warsztat czy składzik.
Dla przyszłych mieszkańców Forma Augustów deweloper przewidział miejsca postojowe podziemne, miejsca postojowe naziemne.
Dzięki temu przyszli właściciele nie będą musieli poszukiwać wolnej przestrzeni parkingowej. Dodatkowo, miejsce postojowe w garażu podziemnym zabezpiecza przed niekorzystnymi warunkami atmosferycznymi.
Opis Inwestycji
Pow. dodatkowe
POZNAJ OSIEDLE
Forma Augustów to wyjątkowe osiedle wyróżniające się nowoczesną architekturą inspirowaną skandynawskim designem i historyczną zabudową Augustowa. Ciekawa bryła, wykorzystanie jakościowych materiałów, duża liczba przeszkleń i spadziste dachy w nowatorskim wydaniu to wyróżniki inwestycji decydujące o jej niepowtarzalnej formie.
Apartamenty Forma Augustów budowane są w wygodnej odległości od centrum, nieopodal Jeziora Sajno. Na osiedlu zaplanowano bajkowy plac zabaw o dużej powierzchni, gdzie dzieci będą mogły miło i bezpiecznie spędzić czas.
Jezioro Sajno – 8 min
Jezioro Necko, Plaża Miejska – 7 minut
Królowa Woda – 8 min
Kanał Augustowski – 8 min
Szlak Papieski – 15 minut
Droga Krajowa 8 – 7 min
SPRAWDŹ STANDARD
Malowniczy Augustów otoczony jest aż 7 jeziorami. Atrakcyjne położenie miasta zostało docenione w projekcie budynków uwzględniającym trójkątne dachy, które przywodzą na myśl żagiel niezbędny na łodziach pływających po okolicznych wodach.
Przyszli mieszkańcy będą mieli w czym wybierać – dostępne metraże od 28 m² do 81 m². Apartamenty wyposażone zostaną w przestronne balkony (wykończone szklanymi balustradami), ogródki parterowe. Niektóre mieszkania na najwyższej kondygnacji, będą posiadać prywatne tarasy dachowe o ponadstandardowej wielkości od 13 m² do 22 m². To doskonały wybór dla tych, którzy cenią sobie wypoczynek na świeżym powietrzu oraz spotkania z przyjaciółmi bądź rodziną.
DOSKONAŁOŚĆ TKWI W SZCZEGÓŁACH:
- nowoczesna forma
- wysokiej jakości materiały
- rowerownia
- maksymalnie 5 mieszkań na piętrze
- bajkowy plac zabaw
- miejsca postojowe zewnętrzne
- hala garażowa
- reprezentacyjne części wspólne
Mieszkanie znajduje się w inwestycji Forma Augustów, w której znajduje się w sprzedaży jeszcze 16 podobnych nowych mieszkań.
Rutkowski Development Sp. J.
Strona internetowa inwestycjiAdres biura sprzedaży:
Suwałki, ul. A. Piłsudskiej 9D




